Bạn đang sở hữu một mảnh đất phân lô và trăn trở làm sao để xây được một ngôi nhà vừa sang trọng, vừa thoáng đãng lại tối ưu chi phí? Câu chuyện về mẫu nhà phố 2 tầng 1 tum tại Phú Thọ của gia đình anh Tình dưới đây sẽ là câu trả lời thực tế nhất dành cho bạn. Hãy cùng Techhome “mổ xẻ” chi tiết bản vẽ kỹ thuật để thấy được sự tinh tế trong từng mét vuông xây dựng.
1. Tổng quan dự án mẫu nhà phố 2 tầng 1 tum tại Phú Thọ
Khi tìm đến Techhome, anh Tình chia sẻ rằng anh muốn một ngôi nhà không quá phô trương nhưng phải hiện đại và quan trọng nhất là giải quyết được sự bí bách vốn có của nhà phố. Đội ngũ kiến trúc sư và kỹ sư đã dành nhiều ngày nghiên cứu để đưa ra phương án tối ưu nhất.
-
Chủ đầu tư: Anh Tình
-
Địa điểm: Phú Thọ
-
Quy mô: 2 tầng 1 tum (hay còn gọi là nhà 2 tầng 1 mái che thang).
-
Diện tích xây dựng: Chiều ngang 6m và chiều dài 13.1m .
-
Phong cách: Hiện đại, tối giản, tập trung vào công năng và ánh sáng tự nhiên.
Ngay từ cái nhìn đầu tiên, mẫu nhà phố 2 tầng 1 tum tại Phú Thọ này đã gây ấn tượng bởi những hình khối giật cấp mạnh mẽ, kết hợp giữa tông màu trắng tinh khôi và các mảng tường ốp gạch trang trí hiện đại.

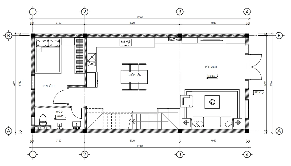
2. Phân tích chi tiết công năng tầng 1: Không gian sinh hoạt chung ấm cúng
Tại tầng 1, Techhome tập trung vào việc tạo ra một không gian mở, kết nối các thành viên trong gia đình. Tổng diện tích sàn tầng 1 là 6×13.1m.
Phòng khách – “Bộ mặt” của ngôi nhà
Bước qua hệ cửa chính nhôm kính cao cấp (D1 kích thước 2700 x 2700mm), bạn sẽ bắt gặp phòng khách rộng rãi. Điểm đặc biệt của mẫu nhà phố 2 tầng 1 tum tại Phú Thọ này là sự thông thoáng nhờ hệ cửa kính lớn đón trọn ánh sáng mặt trời. Sàn nhà được lát gạch Granite vân đá kích thước 800 x 800mm tạo sự sang trọng và sạch sẽ.
Khu vực bếp và phòng ăn
Phòng bếp được thiết kế liên thông với phòng khách, ngăn cách bởi khu vực cầu thang. Cách bố trí này không chỉ giúp căn nhà trông dài hơn mà còn giúp chị nhà vừa nấu nướng vừa có thể quan sát được không gian bên ngoài. Toàn bộ khu vực này đều được tính toán cao độ cốt nền là ±0.000 để đảm bảo sự thuận tiện.
Phòng ngủ tầng 1
Đây là sự tinh tế của mẫu nhà phố 2 tầng 1 tum tại Phú Thọ khi bố trí một phòng ngủ ngay tại tầng 1 (P. Ngủ 01), rất phù hợp cho người lớn tuổi trong nhà hoặc làm phòng nghỉ cho khách.
Nhà vệ sinh và các khu vực phụ
Nhà vệ sinh (WC 01) được đặt khéo léo phía cuối nhà, sàn hạ cốt xuống -0.050 để đảm bảo thoát nước tốt. Gạch lát là loại Ceramic chống trơn 400 x 400mm để đảm bảo an toàn tuyệt đối.

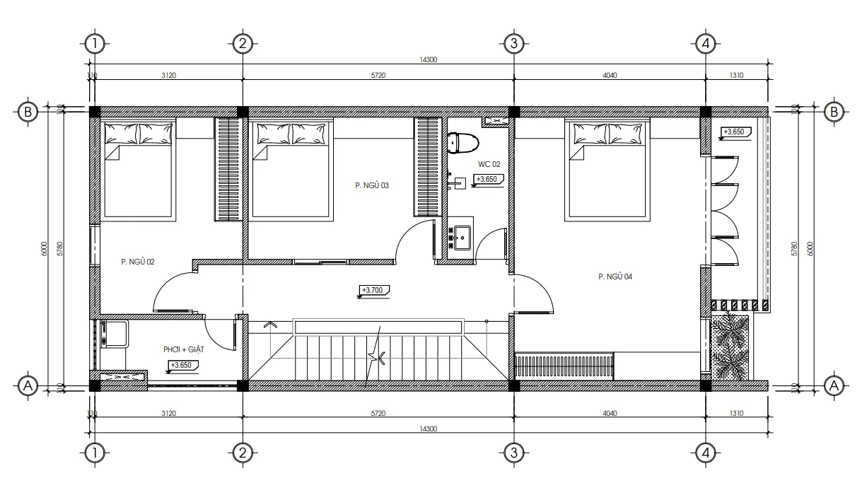
3. Khám phá tầng 2: Khu vực nghỉ ngơi riêng tư cho cả gia đình
Tầng 2 của mẫu nhà phố 2 tầng 1 tum tại Phú Thọ là nơi dành trọn cho sự riêng tư với 3 phòng ngủ.
-
Phòng ngủ 02 & 03: Được bố trí dọc theo hành lang, mỗi phòng đều có hệ thống cửa sổ riêng để lấy sáng tự nhiên từ giếng trời hoặc mặt sau.
-
Phòng ngủ 04: Là phòng ngủ lớn nhất hướng ra mặt tiền, có ban công rộng rãi để gia chủ có thể hóng mát mỗi tối. Hệ cửa đi nhôm kính (D3) kích thước 2400 x 2700mm giúp kết nối không gian bên trong và bên ngoài cực tốt.
-
Khu vực phơi + giặt: Được bố trí gọn gàng ở phía sau, kín đáo nhưng vẫn đảm bảo đón nắng gió để quần áo luôn thơm tho.
-
WC 02: Là nhà vệ sinh chung rộng rãi cho cả tầng, được ốp gạch cao tới trần (2700mm) để tránh ẩm mốc.
Sàn tầng 2 được lát gạch Granite đồng nhất với tầng 1 ở cốt cao độ +3.700. Sự đồng điệu này giúp mẫu nhà phố 2 tầng 1 tum tại Phú Thọ trở nên chỉn chu hơn trong mắt người nhìn.

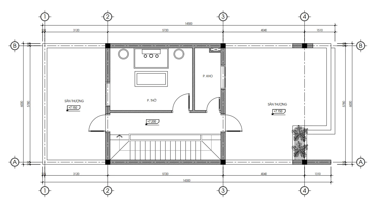
4. Tầng Tum – Điểm nhấn về tinh thần và sự thông thoáng
Nhiều người hỏi tại sao không xây luôn 3 tầng mà lại là 2 tầng 1 tum? Thực tế, mẫu nhà phố 2 tầng 1 tum tại Phú Thọ giúp gia chủ tiết kiệm đáng kể chi phí mà vẫn có được những không gian chức năng tuyệt vời.
Phòng thờ linh thiêng
Phòng thờ (P. Thờ) được đặt ở vị trí cao nhất, cốt nền +7.200. Đây là nơi trang nghiêm nhất trong ngôi nhà của anh Tình, đảm bảo sự yên tĩnh và thông thoáng.
Phòng kho và sân thượng
Phía sau phòng thờ là một phòng kho nhỏ (P. Kho) tiện lợi để cất giữ những vật dụng ít dùng đến. Hai khoảng sân thượng trước và sau là không gian “chill” lý tưởng. Sân thượng trước có cốt nền +7.150, được bố trí hệ lan can thép sơn tĩnh điện bền bỉ với thời tiết Phú Thọ.

5. Những điểm nhấn kiến trúc đặc sắc trong hồ sơ thiết kế
Làm nên sự khác biệt của mẫu nhà phố 2 tầng 1 tum tại Phú Thọ không thể không nhắc đến sự tỉ mỉ trong bản vẽ kỹ thuật của Techhome.
-
Hệ thống mái lấy sáng: Chúng tôi thiết kế hệ khung thép hộp 50 x 100mm mái lợp kính lấy sáng khu vực cầu thang. Điều này giúp ánh sáng len lỏi xuống tận tầng 1, xua tan đi sự u ám thường thấy ở nhà ống.
-
Vật liệu cửa hiện đại: Toàn bộ hệ cửa đi và cửa sổ đều sử dụng nhôm hệ cao cấp kết hợp kính dán an toàn 8.38mm (màu xám hoặc trắng tùy vị trí). Các mẫu cửa như D2 (930 x 2400mm) hay cửa sổ S1 (1200 x 1800mm) đều được chi tiết hóa từng mm.
-
Trần và đèn trang trí: Trần thạch cao khung xương chìm kết hợp đèn Downlight âm trần và đèn dây LED tạo ra hiệu ứng ánh sáng ấm cúng về đêm.
-
Cầu thang đá Granite: Cầu thang gồm 21 bậc, cổ bậc lát đá Granite màu trắng và mặt bậc lát đá Granite màu tối, tạo sự tương phản đầy tính nghệ thuật.
6. Báo giá tham khảo mẫu nhà phố 2 tầng 1 tum tại Phú Thọ (Cập nhật 2026)
Để quý khách hàng dễ dàng lập kế hoạch tài chính, Techhome xin đưa ra bảng báo giá sơ bộ dựa trên quy mô công trình tương tự anh Tình:
6.1. Chi phí thiết kế kiến trúc
-
Gói thiết kế tiêu chuẩn: 108.000đ/m2.
-
Gói thiết kế nội thất: 150.000đ/m2.
6.2. Dự toán thi công trọn gói
Dựa trên mẫu nhà phố 2 tầng 1 tum tại Phú Thọ với tổng diện tích sàn khoảng 200m2:
-
Thi công phần thô & nhân công hoàn thiện: 3.600.000đ – 4.500.000đ/m2 (Tổng khoảng 720 – 900 triệu đồng).
-
Hoàn thiện chìa khóa trao tay (Gói khá): 5.800.000đ – 6.500.000đ/m2 (Tổng khoảng 1,160 – 1,3 tỷ đồng).
-
Hoàn thiện chìa khóa trao tay (Gói cao cấp): Trên 6.500.000đ/m2.
Lưu ý: Đây chỉ là mức chi phí ước tính. Để nhận được báo giá chính xác và chi tiết nhất cho công trình của bạn, vui lòng liên hệ trực tiếp với chúng tôi. Hoặc để tìm hiểu rõ hơn về tiêu chuẩn vật liệu xây dựng và các yếu tố ảnh hưởng đến chi phí, bạn có thể tham khảo thêm tại các bài viết chuyên sâu về vật liệu xây dựng cao cấp trên Wikipedia.
7. Lời khuyên từ chuyên gia khi xây mẫu nhà phố 2 tầng 1 tum tại Phú Thọ
Xây nhà là việc quan trọng, với tư cách là người bạn đồng hành cùng hàng trăm gia chủ, tôi muốn chia sẻ vài kinh nghiệm thực tế:
-
Lựa chọn vật liệu phù hợp khí hậu: Phú Thọ là vùng trung du, có mùa đông lạnh và mùa hè nắng gắt. Vì vậy, hệ cửa kính dán an toàn 8.38mm mà chúng tôi tư vấn cho anh Tình là giải pháp tuyệt vời để cách nhiệt và cách âm.
-
Đừng bỏ qua hệ thống chống thấm: Với tầng tum và sân thượng, việc sử dụng gạch Ceramic chống trơn kết hợp các lớp phụ gia chống thấm là cực kỳ cần thiết để bảo vệ cấu trúc nhà lâu dài.
-
Hồ sơ kỹ thuật phải chi tiết: Một bản vẽ kỹ thuật đầy đủ từ mặt bằng định vị công trình (KT-01) đến chi tiết từng tay vịn gỗ (KT-15) sẽ giúp bạn tránh được 90% các phát sinh và lỗi thi công từ thợ.
-
Tối ưu phong thủy: Vị trí phòng thờ và hướng cửa chính luôn là ưu tiên hàng đầu trong các mẫu nhà phố 2 tầng 1 tum tại Phú Thọ do chúng tôi thiết kế, đảm bảo gia đạo luôn bình an.
8. Tại sao khách hàng tin chọn Kiến trúc Techhome?
Mỗi ngôi nhà là một tác phẩm nghệ thuật, và Techhome là những người thợ tâm huyết:
-
Minh bạch tuyệt đối: Chúng tôi cung cấp danh mục bản vẽ rõ ràng, từ KT-01 đến KT-33, không mập mờ về khối lượng.
-
Hỗ trợ kỹ thuật 24/7: Hotline 0387603333 luôn sẵn sàng giải đáp mọi thắc mắc của gia chủ trong suốt quá trình thi công.
-
Pháp lý rõ ràng: Mọi bản vẽ đều có sự kiểm duyệt chặt chẽ từ KTS và các kiến trúc sư chủ trì.
Mẫu nhà phố 2 tầng 1 tum tại Phú Thọ của gia đình anh Tình không chỉ là một công trình, đó là minh chứng cho sự chuyên nghiệp và cái tâm của người làm nghề kiến trúc. Nếu bạn đang mơ về một ngôi nhà tương tự, đừng ngần ngại kết nối với chúng tôi.
KIẾN TRÚC VÀ XÂY DỰNG TECHHOME – NƠI HIỆN THỰC HÓA GIẤC MƠ TỔ ẤM
-
Website: nhadeptechhome.vn
-
Hotline tư vấn: 0364042222 – 0387603333
-
Địa chỉ văn phòng: B1.1 LK18 Ô 3 – KĐT Thanh Hà – Cienco 5 – Thanh Oai- Hà Nội.




