Đã bao giờ bạn tự hỏi, làm thế nào để “hô biến” một mảnh đất phố thị chật hẹp thành một không gian sống thoáng đãng, nơi mà nắng và gió luôn ngập tràn? Câu chuyện về hành trình thiết kế nhà phố 3 tầng cho gia đình anh Giáp tại Hoa Lư, Ninh Bình mà Techhome chia sẻ dưới đây chính là câu trả lời hoàn hảo nhất. Không chỉ là một ngôi nhà, đây là sự kết hợp tinh tế giữa công năng khoa học và thẩm mỹ hiện đại.
1. Thông tin tổng quan dự án
Trước khi đi sâu vào chi tiết, mời bạn cùng điểm qua những thông số kỹ thuật chính của công trình này. Đây là những dữ liệu thực tế được đội ngũ Techhome khảo sát và lên phương án:
-
Chủ đầu tư: Anh Giáp.
-
Địa điểm xây dựng: Huyện Hoa Lư, Tỉnh Ninh Bình.
-
Đơn vị thiết kế & thi công: Công ty Cổ phần Kiến trúc và Xây dựng Techhome.
-
Loại hình công trình: Nhà ở gia đình (Nhà phố/Nhà ống).
-
Kích thước xây dựng: Mặt tiền 5m x Chiều sâu 16.5m (Diện tích sàn ~82.5m2/sàn).
-
Quy mô: 3 tầng.
-
Phong cách: Kiến trúc hiện đại, mái bằng.

2. Phân tích công năng: Sự khoa học trong từng mét vuông
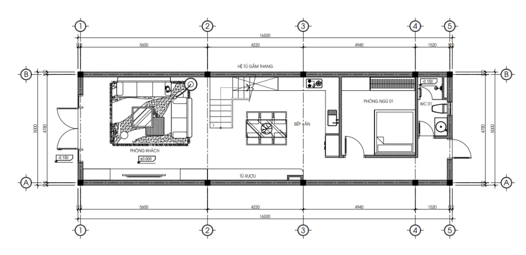
Điểm “ăn tiền” nhất của bản thiết kế nhà phố 3 tầng này chính là cách bố trí mặt bằng công năng. Mời bạn cùng tôi “tham quan” từng tầng qua bản vẽ kỹ thuật nhé.
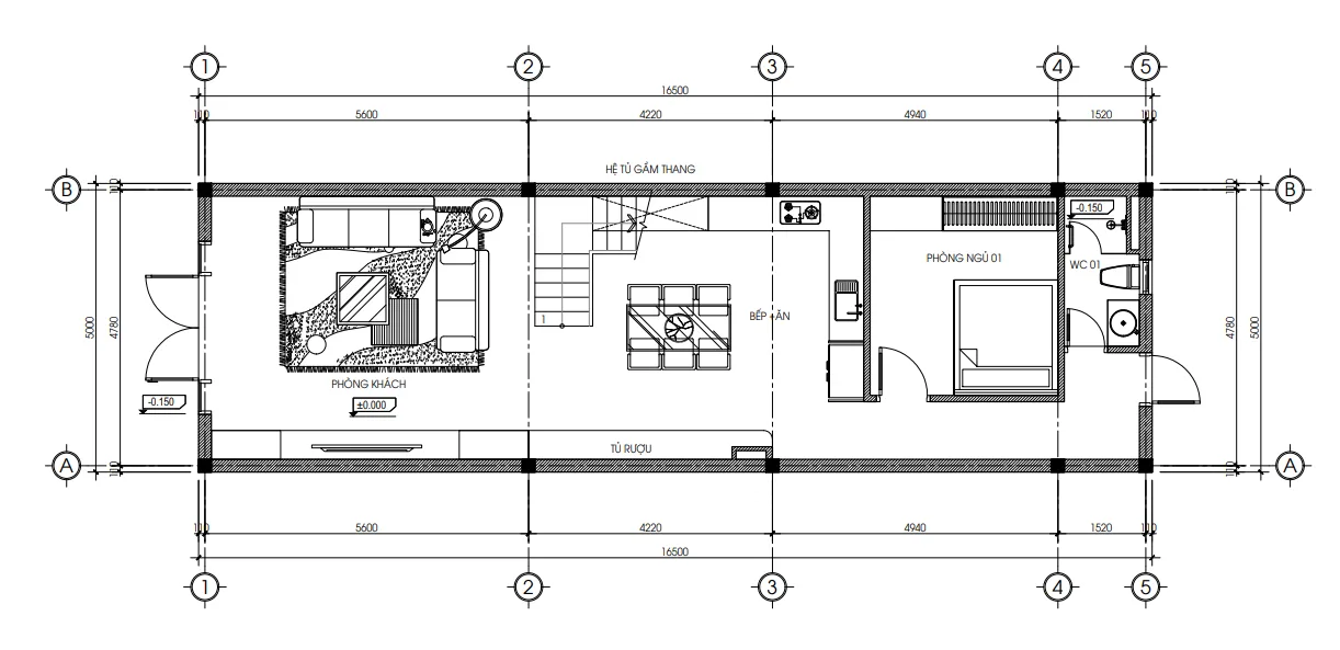
Tầng 1: Không gian kết nối chung
Bước vào từ sảnh chính, không gian tầng 1 được thiết kế mở để tạo sự thông thoáng tối đa:
-
Phòng khách: Với diện tích rộng rãi (5.6m x 5m), đây là bộ mặt của ngôi nhà, nơi anh Giáp tiếp đón bạn bè. Sàn được lát gạch Granite vân đá sang trọng kích thước 800×800.
-
Bếp ăn: Nằm phía sau cầu thang, tạo sự kín đáo nhưng vẫn liên thông với phòng khách. Diện tích bếp khoảng 4.22m chiều sâu, đủ cho một hệ tủ bếp tiện nghi và bàn ăn 6 người.
-
Phòng ngủ 01: Cuối nhà là một phòng ngủ nhỏ dành cho người lớn tuổi để hạn chế leo cầu thang, có cửa mở ra hành lang thông gió phía sau.
-
WC 01: Được bố trí kín đáo cạnh phòng ngủ, thuận tiện cho sinh hoạt.

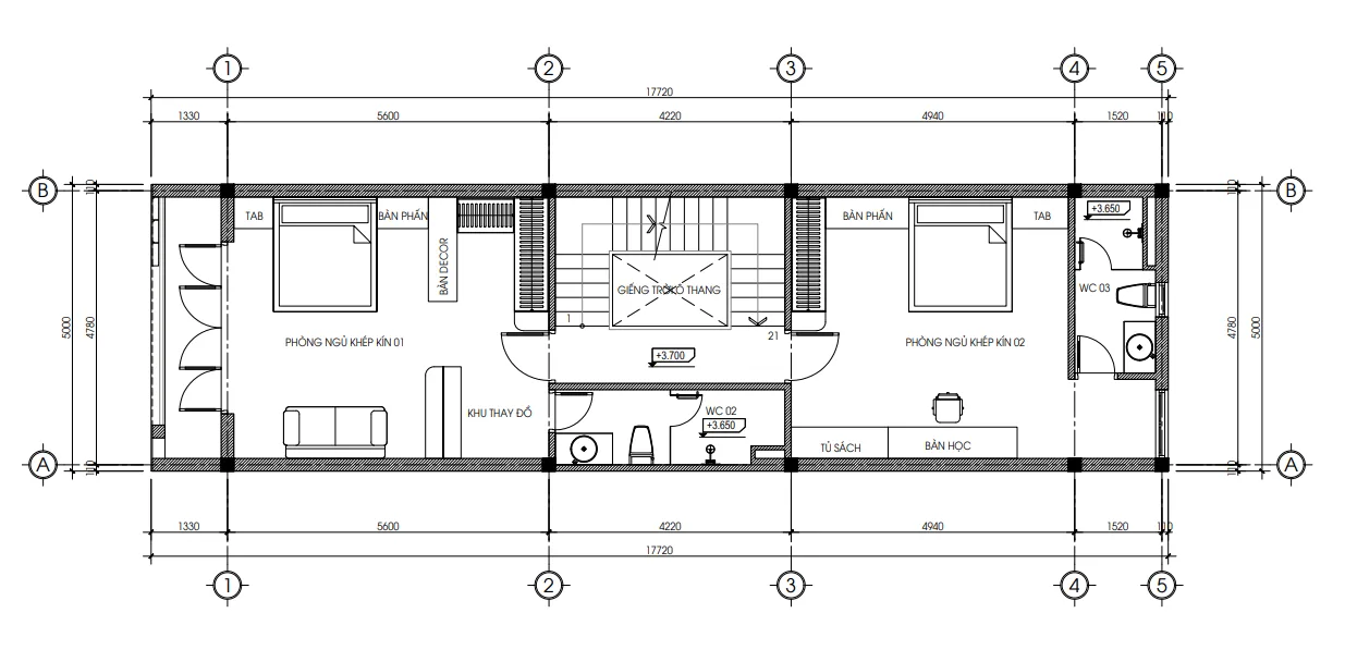
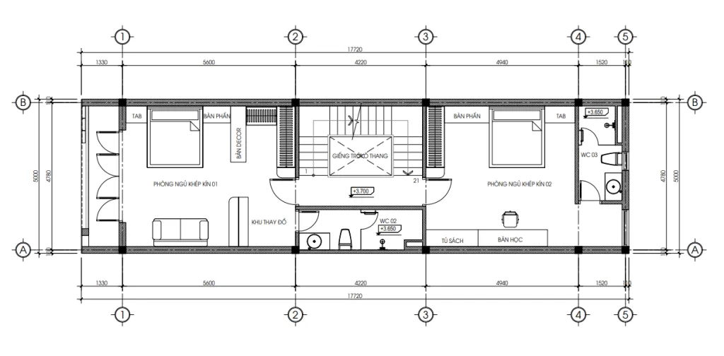
Tầng 2: Không gian nghỉ ngơi riêng tư
Yêu cầu quan trọng nhất trong thiết kế nhà phố 3 tầng là sự riêng tư. Tầng 2 được dành trọn vẹn cho việc nghỉ ngơi:
-
Phòng ngủ khép kín 01 (Master): Hướng ra ban công trước nhà, đón gió và ánh sáng. Phòng có khu thay đồ riêng và bàn trang điểm.
-
Phòng ngủ khép kín 02: Nằm phía sau, đảm bảo yên tĩnh cho giấc ngủ.
-
Giếng trời & Cầu thang: Khu vực trung tâm là “lá phổi” của ngôi nhà. Giếng trời kết hợp ô thang giúp đối lưu không khí, đưa gió tươi vào các phòng ngủ.
-
Sàn tầng 2: Được lát gạch Ceramic chống trơn giả gỗ hoặc vân đá tùy chọn, tạo cảm giác ấm cúng.

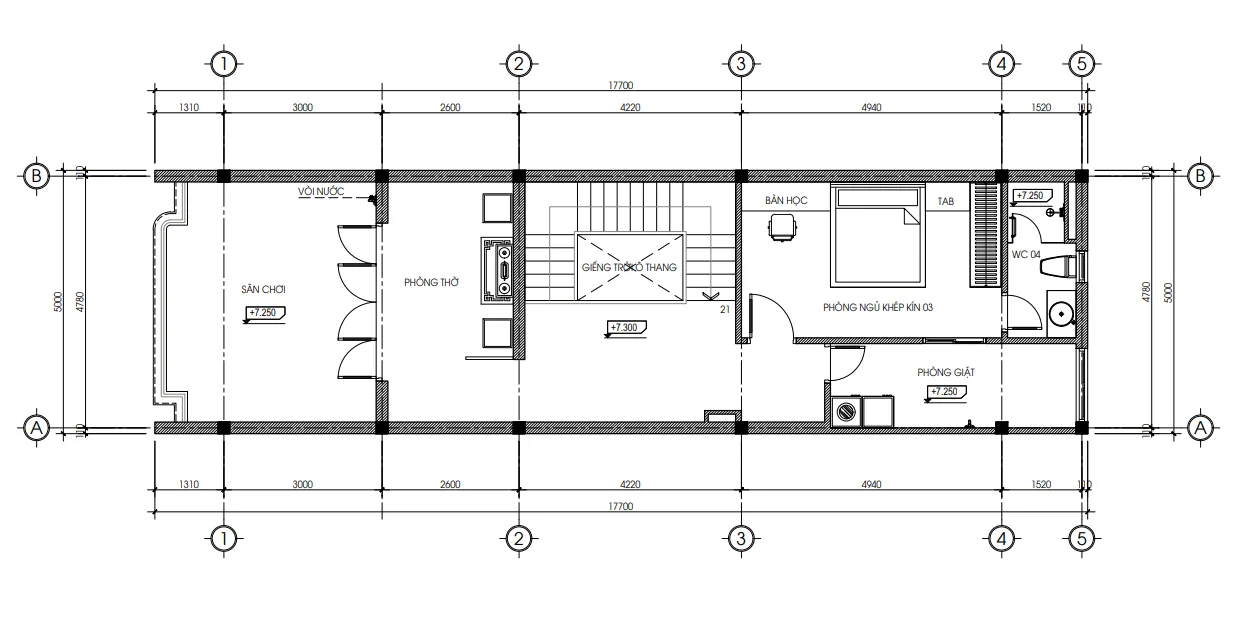
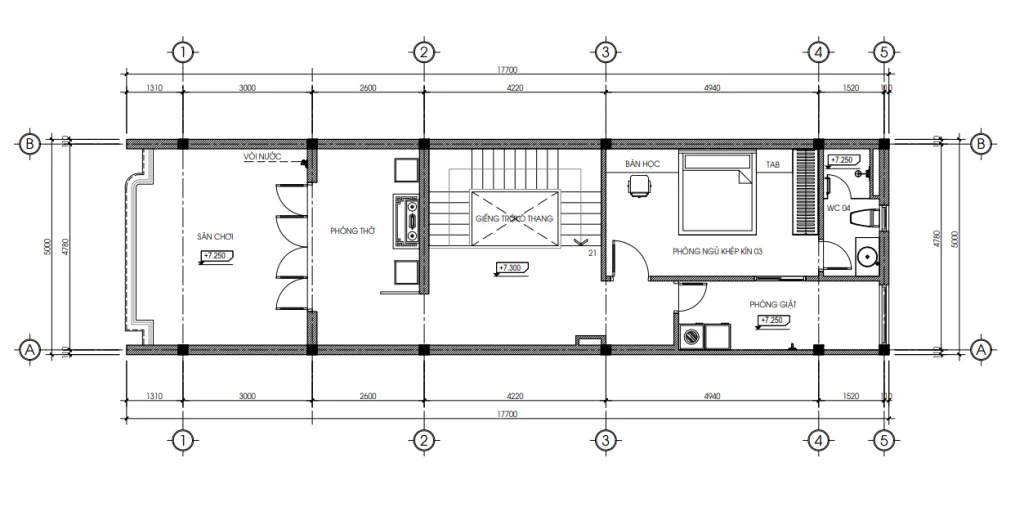
Tầng 3: Tâm linh và Thư giãn
Tầng cao nhất của mẫu thiết kế nhà phố 3 tầng này phục vụ các nhu cầu bổ trợ:
-
Phòng thờ: Đặt ở vị trí trang trọng phía trước, hướng ra sân chơi. Đây là nơi thể hiện lòng thành kính của con cháu.
-
Sân chơi (Terrace): Khoảng sân rộng phía trước phòng thờ là nơi anh Giáp có thể trồng cây cảnh, đặt bàn trà chiều ngắm cảnh núi non Hoa Lư.
-
Phòng ngủ 03 & Phòng giặt: Bố trí phía sau nhà, tối ưu hóa diện tích sử dụng.

3. Câu chuyện đằng sau bản vẽ thiết kế nhà phố 3 tầng
Khi tìm đến Techhome, anh Giáp chia sẻ với chúng tôi về mong muốn sở hữu một căn nhà không cần quá cầu kỳ, rườm rà nhưng phải “chất”. Bài toán đặt ra cho đội ngũ kiến trúc sư là thiết kế nhà phố 3 tầng trên khổ đất 5×16.5m sao cho tối ưu hóa diện tích sử dụng cho gia đình đa thế hệ, đồng thời giải quyết triệt để vấn đề thiếu sáng thường thấy ở nhà ống.
Sau quá trình trao đổi và khảo sát hiện trạng tại Hoa Lư , bản hồ sơ thiết kế kỹ thuật thi công đã được hoàn thiện và nhận được sự hài lòng tuyệt đối từ gia chủ.
4. Vẻ đẹp kiến trúc ngoại thất: Hiện đại và Tinh tế
Nhìn vào phối cảnh mặt tiền, bạn sẽ thấy mẫu thiết kế nhà phố 3 tầng này toát lên vẻ đẹp khỏe khoắn của phong cách hiện đại.
-
Hình khối kiến trúc: Techhome sử dụng các khối hình học vuông vức, xếp chồng lên nhau tạo cảm giác vững chãi nhưng không hề thô cứng. Điểm nhấn là các đường cong mềm mại ở ban công tầng 2 và tầng 3, giúp làm “mềm” đi sự góc cạnh của bê tông cốt thép.
-
Màu sắc: Tông màu chủ đạo là trắng sứ kết hợp với màu ghi xám của gạch ốp và màu gỗ của hệ lam trần ban công . Sự phối màu này giúp ngôi nhà luôn bền đẹp theo thời gian và không bị lỗi mốt.
-
Vật liệu: Hệ thống cửa nhôm kính Xingfa cao cấp kết hợp kính cường lực được sử dụng triệt để cho cửa chính và cửa sổ. Điều này giúp mặt tiền ngôi nhà như một tấm gương lớn phản chiếu bầu trời, đồng thời đón nhận tối đa ánh sáng tự nhiên vào bên trong. Lan can ban công cũng sử dụng kính cường lực, mở rộng tầm nhìn cho gia chủ.

5. Giải pháp kỹ thuật và Vật liệu hoàn thiện
Là một chuyên gia tại Techhome, tôi muốn nhấn mạnh những chi tiết kỹ thuật đắt giá trong bản thiết kế nhà phố 3 tầng này mà có thể bạn sẽ bỏ qua nếu chỉ nhìn lướt:
-
Hệ thống cửa: Toàn bộ cửa đi đều sử dụng nhôm hệ kết hợp kính an toàn dày 8.38mm. Riêng cửa sổ sử dụng kính dày 6.38mm. Điều này đảm bảo cách âm, cách nhiệt tuyệt vời cho ngôi nhà phố mặt đường.
-
Cầu thang: Mặt bậc được lát đá Granite màu tối sạch sẽ, cổ bậc lát đá màu trắng tạo sự tương phản nổi bật. Lan can kính cường lực tay vịn gỗ là điểm nhấn thẩm mỹ hiện đại.
-
Trần thạch cao: Techhome thiết kế trần thạch cao khung xương chìm, kết hợp đèn downlight âm trần và đèn hắt khe rèm, tạo hiệu ứng ánh sáng sang trọng cho nội thất.
-
Chống thấm & Mái: Mái được đổ bê tông cốt thép, có lớp tôn chống nóng phía trên. Đặc biệt khu vực giếng trời sử dụng mái kính khung thép hộp 50x100mm để lấy sáng.
6. Tại sao nên chọn thiết kế nhà phố 3 tầng tại Techhome?
Thị trường có hàng trăm đơn vị, nhưng tại sao anh Giáp lại chọn Techhome để gửi gắm bản thiết kế nhà phố 3 tầng của mình?
-
Hồ sơ chi tiết, minh bạch: Như bạn thấy, từ mặt bằng định vị, mặt bằng lát sàn, trần đèn cho đến chi tiết từng ô cửa, bậc thang đều được chúng tôi thể hiện tỉ mỉ. Không có sự mập mờ trong thi công.
-
Am hiểu địa phương: Với kinh nghiệm thi công nhiều công trình tại Ninh Bình, chúng tôi hiểu rõ địa chất, khí hậu Hoa Lư để đưa ra giải pháp kết cấu móng và chống thấm hiệu quả nhất.
-
Tư vấn tận tâm: Đội ngũ Kiến Trúc Sư và Kỹ Sư luôn theo sát dự án từ lúc đặt nét bút đầu tiên đến khi hoàn thiện.

7. Báo giá thiết kế và thi công (Tham khảo 2026)
Rất nhiều khách hàng thắc mắc về chi phí để sở hữu một mẫu thiết kế nhà phố 3 tầng đẹp như nhà anh Giáp. Dưới đây là bảng ước tính chi phí dựa trên đơn giá thị trường hiện tại (Lưu ý: Giá có thể thay đổi tùy thời điểm và vật liệu):
| Hạng mục | Đơn giá tham khảo | Diện tích tạm tính (3 tầng) | Thành tiền ước tính |
| Thiết kế kiến trúc | 108.000đ/m2 | ~250m2 | 27 triệu đ |
| Thi công phần thô | 3.800.000đ – 4.500.000đ/m2 | ~250m2 | ~950 triệu – 1.125 tỷ đ |
| Thi công trọn gói | 6.500.000đ – 7.500.000đ/m2 | ~250m2 | ~1.6 tỷ – 1.9 tỷ đ |
Chi phí trên chưa bao gồm nội thất rời và thiết bị điện tử.
Lưu ý: Đây chỉ là mức chi phí ước tính. Để nhận được báo giá chính xác và chi tiết nhất cho công trình của bạn, vui lòng liên hệ trực tiếp với chúng tôi. Hoặc để tìm hiểu rõ hơn về tiêu chuẩn vật liệu xây dựng và các yếu tố ảnh hưởng đến chi phí, bạn có thể tham khảo thêm tại các bài viết chuyên sâu về vật liệu xây dựng cao cấp trên Wikipedia.
8. Góc chuyên gia: Lời khuyên khi xây nhà phố 3 tầng
Từ kinh nghiệm thực tế qua dự án của anh Giáp, tôi có vài lời khuyên cho bạn khi chuẩn bị thiết kế nhà phố 3 tầng:
-
Đừng bỏ qua giếng trời: Với nhà ống dài trên 13m như nhà anh Giáp (16.5m), giếng trời khu vực cầu thang là bắt buộc. Nó không chỉ là phong thủy mà là khoa học, giúp luân chuyển không khí, tránh bí bách cho các phòng ngủ phía sau.
-
Chú trọng hệ thống điện nước: Trong bản vẽ kiến trúc, chúng tôi bố trí hệ thống đèn LED và quạt thông gió âm trần rất kỹ. Ánh sáng và thông gió quyết định 70% cảm xúc khi sống trong nhà.
-
Lựa chọn vật liệu sàn: Tầng 1 nên lát đá/gạch khổ lớn (800×800) để tạo cảm giác rộng. Tầng 2, 3 có thể dùng gạch giả gỗ để ấm chân và an toàn hơn cho trẻ nhỏ/người già.
Kết luận
Mẫu thiết kế nhà phố 3 tầng của gia đình anh Giáp tại Ninh Bình là minh chứng cho thấy: Một ngôi nhà đẹp không cần phải quá phô trương, mà nằm ở sự tinh tế trong phân chia không gian và sự tiện nghi trong sinh hoạt. Techhome tự hào là đơn vị kiến tạo nên không gian sống chất lượng này.
Nếu bạn đang ấp ủ dự định xây nhà và yêu thích phong cách hiện đại, tiện nghi này, hãy để Techhome giúp bạn hiện thực hóa giấc mơ.
BẠN MUỐN SỞ HỮU BẢN VẼ THIẾT KẾ NHÀ PHỐ 3 TẦNG ĐỘC BẢN?
👉 Bước tiếp theo: Đừng ngần ngại, hãy liên hệ với tôi hoặc đội ngũ KTS Techhome ngay hôm nay để được Tư vấn mặt bằng công năng MIỄN PHÍ và nhận Bảng dự toán chi phí xây dựng chi tiết nhất cho riêng khu đất của bạn!
-
Hotline/Zalo: 0364.04.2222 – 0387.60.3333
-
Website: https://nhadeptechhome.vn/
