Thiết kế nội thất hiện đại tại Đồng Nai: Biến nhà phố thành “resort” riêng cho gia đình Anh Phúc

Bạn có bao giờ tự hỏi, điều gì tạo nên sự khác biệt giữa một ngôi nhà “để ở” và một tổ ấm “để tận hưởng”? Câu trả lời không nằm ở sự xa hoa, mà ở cách chúng ta sắp xếp không gian sao cho vừa vặn với hơi thở của cuộc sống. Hôm nay, Techhome muốn mời bạn ghé thăm dự án thiết kế nội thất hiện đại mà chúng tôi vừa hoàn thiện cho gia đình Anh Phúc tại Đồng Nai. Một công trình không chỉ đẹp trên bản vẽ mà còn “chạm” đến từng cảm xúc thực tế khi bước chân vào.

Thiết kế nội thất phòng khách hiện đại kết hợp không gian kinh doanh tầng 1 nhà Anh Phúc.
Thiết kế nội thất phòng khách hiện đại kết hợp không gian kinh doanh tầng 1 nhà Anh Phúc.

1. Tổng quan dự án: Khi sự tối giản lên ngôi

Dự án này là một bài toán thú vị dành cho đội ngũ KTS tại Techhome. Với diện tích đất đặc trưng của nhà phố (khoảng 4m x 21m) , yêu cầu của Anh Phúc là phải tối ưu hóa công năng cho cả mục đích ở lẫn kinh doanh tại tầng 1.

Phong cách chủ đạo mà chúng tôi lựa chọn chính là thiết kế nội thất hiện đại. Tại sao lại là phong cách này? Bởi trong một không gian dài và hẹp, việc sử dụng những đường nét thanh mảnh, bảng màu trung tính và vật liệu thông minh sẽ giúp ngôi nhà “ăn gian” diện tích đáng kể.

  • Chủ đầu tư: Anh Phúc.

  • Địa điểm: Đồng Nai.

  • Đơn vị thực hiện: Công ty Cổ phần Kiến trúc và Xây dựng Techhome.

  • Hạng mục: Thiết kế kỹ thuật thi công nội thất.

thiết kế nội thất hiện đại


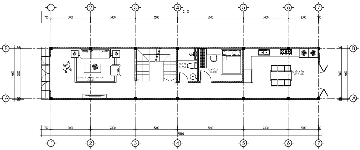
2. Tầng 1: Sự giao thoa giữa kinh doanh và tổ ấm

Bước vào từ cửa chính, không gian đầu tiên là khu vực phòng khách kết hợp kinh doanh. Đây là bộ mặt của ngôi nhà, nơi thể hiện rõ nét nhất tư duy thiết kế nội thất hiện đại mà Techhome theo đuổi.

Bản vẽ bố trí công năng tầng 1 nhà phố diện tích 4x21m tại Đồng Nai bao gồm phòng khách, bếp và sân sau.
Bản vẽ bố trí công năng tầng 1 nhà phố diện tích 4x21m tại Đồng Nai bao gồm phòng khách, bếp và sân sau.

Phòng khách sang trọng và đa năng

Điểm nhấn đầu tiên chính là bộ sofa màu be nhẹ nhàng, kết hợp cùng bàn trà tròn tối giản. Để không gian không bị đơn điệu, chúng tôi sử dụng vách ốp gỗ trang trí với các họa tiết 3D nổi khối. Ánh sáng tự nhiên từ cửa chính tràn vào, làm nổi bật nền gạch giả đá vân mây trắng muốt, tạo cảm giác sạch sẽ và thoáng đãng.

Một chi tiết nhỏ nhưng đắt giá chính là góc làm việc được tích hợp khéo léo ngay tại phòng khách. Với một chiếc PC cấu hình cao và kệ sách mở, đây là nơi Anh Phúc có thể vừa quản lý công việc, vừa bao quát được không gian chung của gia đình.

thiết kế nội thất hiện đại

Cầu thang và mảng xanh dưới gầm trời

Thay vì để gầm cầu thang là “góc chết”, Techhome đã biến nó thành một tiểu cảnh xanh mát. Việc đưa cây xanh vào trong thiết kế nội thất hiện đại không chỉ giúp lọc không khí mà còn làm dịu đi sự cứng nhắc của các khối bê tông. Những bậc thang ốp gỗ sáng màu, tích hợp đèn LED âm bản không chỉ đảm bảo an toàn khi di chuyển ban đêm mà còn tạo hiệu ứng thẩm mỹ cực kỳ bắt mắt.

Trang trí tiểu cảnh xanh và hệ thống đèn LED bậc cầu thang hiện đại tạo điểm nhấn cho ngôi nhà.
Trang trí tiểu cảnh xanh và hệ thống đèn LED bậc cầu thang hiện đại tạo điểm nhấn cho ngôi nhà.

Bếp và phòng ăn: Nơi giữ lửa yêu thương

Tiến vào phía trong là khu vực bếp và bàn ăn. Hệ tủ bếp chữ L kịch trần với tông màu trắng – gỗ là sự lựa chọn hoàn hảo để tối ưu không gian lưu trữ. Mặt bếp ốp đá marble trắng cùng tông với sàn nhà, tạo sự đồng nhất tuyệt đối.

Bàn ăn gỗ dài với những chiếc ghế bọc nệm màu nâu trầm mang lại cảm giác ấm cúng cho mỗi bữa cơm gia đình. Ánh đèn thả trần dạng thanh dài hiện đại chính là “gia vị” giúp không gian này thêm phần lãng mạn vào mỗi buổi tối.

thiết kế nội thất hiện đại


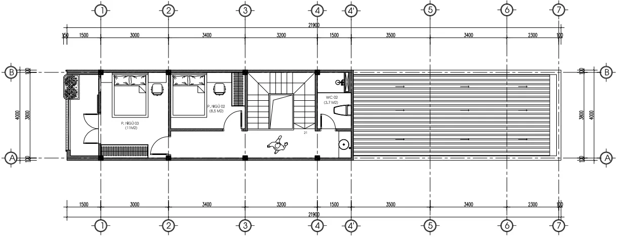
3. Tầng 2: Không gian nghỉ ngơi riêng tư và yên bình

Nếu tầng 1 là sự nhộn nhịp, năng động thì tầng 2 là nơi để các thành viên trong gia đình “sạc” lại năng lượng.

Bản vẽ bố trí công năng tầng 2 nhà phố diện tích 4x21m tại Đồng Nai
Bản vẽ bố trí công năng tầng 2 nhà phố diện tích 4x21m tại Đồng Nai

Phòng ngủ Master: Tinh tế trong từng điểm chạm

Phòng ngủ của Anh Phúc được thiết kế theo tinh thần “Less is More”. Giường ngủ dạng bục hiện đại, đầu giường ốp vách gỗ nan sọc tạo chiều sâu cho căn phòng. Chúng tôi hạn chế tối đa các chi tiết trang trí rườm rà, thay vào đó là tập trung vào chất lượng của ánh sáng và vật liệu.

Một chiếc đèn thả nghệ thuật bên cạnh giường không chỉ dùng để đọc sách mà còn là một tác phẩm decor ấn tượng. Hệ tủ quần áo kịch trần với tay cầm âm giúp bề mặt tủ phẳng phiu, như một phần của bức tường, giúp căn phòng trông rộng hơn thực tế.

Mẫu nội thất phòng ngủ Master tối giản với tông màu trung tính và ánh sáng dịu nhẹ.
Mẫu nội thất phòng ngủ Master tối giản với tông màu trung tính và ánh sáng dịu nhẹ.

Phòng làm việc và phòng ngủ phụ

Cũng trên tầng 2, chúng tôi bố trí thêm các phòng ngủ phụ cho thành viên khác và khu vực làm việc yên tĩnh. Mỗi căn phòng đều tuân thủ nguyên tắc thiết kế nội thất hiện đại: ưu tiên ánh sáng tự nhiên từ cửa sổ và sử dụng nội thất đa năng.


4. Phòng tắm: Trải nghiệm chuẩn Spa tại gia

Đừng bao giờ coi thường không gian phòng tắm. Trong bản thiết kế nội thất hiện đại này, phòng tắm được ốp hoàn toàn bằng đá vân đá trắng sang trọng. Thiết bị vệ sinh cao cấp với tông màu đen matte (mờ) tạo sự tương phản mạnh mẽ và cá tính. Gương tròn tích hợp đèn LED cảm ứng không chỉ hiện đại mà còn rất tiện dụng cho việc trang điểm hay vệ sinh cá nhân hàng ngày.

Thiết kế phòng tắm hiện đại ốp đá marble trắng sang trọng với thiết bị vệ sinh đen cao cấp.
Thiết kế phòng tắm hiện đại ốp đá marble trắng sang trọng với thiết bị vệ sinh đen cao cấp.

5. Tại sao nên chọn Techhome cho ngôi nhà của bạn?

Chúng tôi biết, ngoài kia có hàng trăm đơn vị thiết kế. Nhưng tại Techhome, chúng tôi không chỉ bán bản vẽ, chúng tôi bán giải pháp sống.

  1. Chính xác và thật tâm: Mọi chi tiết trong bản vẽ kỹ thuật từ số đo, vật liệu đến vị trí ổ cắm đều được tính toán kỹ lưỡng để việc thi công thực tế không xảy ra sai sót.

  2. Lắng nghe khách hàng: Techhome luôn bắt đầu bằng việc lắng nghe thói quen sinh hoạt của gia chủ. Nhà Anh Phúc đẹp vì nó phản ánh đúng phong cách sống của anh.

  3. Hỗ trợ tận tình: Số hotline 0364.04.2222 và 0387.60.3333 luôn sẵn sàng giải đáp mọi thắc mắc của bạn từ lúc bắt đầu đến khi bàn giao chìa khóa.

Việc sở hữu một mẫu thiết kế nội thất hiện đại không khó, cái khó là tìm được người đồng hành hiểu được tâm ý của bạn.

thiết kế nội thất hiện đại


6. Báo giá tham khảo dịch vụ thiết kế nội thất tại Techhome (Năm 2026)

Để bạn dễ dàng hình dung và chuẩn bị ngân sách, Techhome xin gửi đến bảng báo giá tham khảo cho hạng mục thiết kế và thi công nội thất. Lưu ý, giá thực tế sẽ phụ thuộc vào diện tích và loại vật liệu bạn lựa chọn.

Hạng mục Đơn giá thiết kế (VNĐ/m2) Ghi chú
Thiết kế nội thất nhà phố hiện đại 150.000 Bao gồm 3D, bản vẽ kỹ thuật, điện nước.
Thiết kế nội thất tân cổ điển 200.000 Yêu cầu chi tiết và độ phức tạp cao hơn.
Thiết kế nội thất chung cư 150.000  Tối ưu diện tích nhỏ.

Dự toán thi công nội thất sơ bộ (Gói hiện đại – Vật liệu gỗ công nghiệp MDF chống ẩm):

  • Phòng khách: 40.000.000 – 70.000.000 VNĐ.

  • Phòng bếp (bao gồm tủ bếp & bàn ăn): 50.000.000 – 90.000.000 VNĐ.

  • Phòng ngủ (giường, tủ, bàn làm việc): 30.000.000 – 50.000.000 VNĐ/phòng.

Lưu ý: Đây chỉ là mức chi phí ước tính. Để nhận được báo giá chính xác và chi tiết nhất cho công trình của bạn, vui lòng liên hệ trực tiếp với chúng tôi. Hoặc để tìm hiểu rõ hơn về tiêu chuẩn vật liệu xây dựng và các yếu tố ảnh hưởng đến chi phí, bạn có thể tham khảo thêm tại các bài viết chuyên sâu về vật liệu xây dựng cao cấp trên Wikipedia.

thiết kế nội thất hiện đại


7. Lời kết

Ngôi nhà của Anh Phúc tại Đồng Nai là minh chứng rõ nhất cho việc: Một không gian sống đẹp không cần quá cầu kỳ, chỉ cần sự tinh tế và hợp lý. Hy vọng bài viết về thiết kế nội thất hiện đại này đã tiếp thêm ý tưởng cho tổ ấm tương lai của bạn.

Đừng ngần ngại liên hệ với Techhome để hiện thực hóa giấc mơ về một không gian sống hoàn hảo. Chúng tôi luôn ở đây để lắng nghe và sáng tạo cùng bạn!

  • Địa chỉ: B1.1 LK18 Ô 3 – KĐT Thanh Hà – Cienco 5 – Thanh Oai- Hà Nội.

  • Website: https://nhadeptechhome.vn/

  • Hotline: 036.273.2222

Techhome – Xây dựng từ tâm, nâng tầm cuộc sống.

Để lại một bình luận

Email của bạn sẽ không được hiển thị công khai. Các trường bắt buộc được đánh dấu *

    Vui lòng nhấn nút YÊU CẦU TƯ VẤN và đợi 1 - 2 giây đến khi thấy thông báo thành công

    YÊU CẦU TƯ VẤN