Việc sở hữu một mảnh đất diện tích 5x20m nhưng chỉ muốn xây dựng trong khoảng 5x15m để dành không gian cho sân vườn là một lựa chọn cực kỳ thông minh trong năm 2026 này. Mẫu nhà phố 2 tầng 1 tum 5x15m hiện đại của gia đình anh Đức chính là minh chứng cho việc tối ưu công năng trên một diện tích vừa phải mà vẫn đảm bảo được sự sang trọng và thông thoáng.
1. Tại sao mẫu nhà phố 2 tầng 1 tum 5x15m hiện đại lại trở thành xu hướng?
Trong bối cảnh đất chật người đông, việc xây dựng một ngôi nhà có “khoảng thở” là ưu tiên hàng đầu. Với diện tích sàn thiết kế 75m2 mỗi tầng, ngôi nhà này mang lại:
-
Sự thông thoáng tối đa: Việc lùi sân trước và sân sau giúp đối lưu không khí cực tốt.
-
Tối ưu chi phí: Không quá đồ sộ như nhà 3-4 tầng nhưng vẫn đủ diện tích cho gia đình 2-3 thế hệ.
-
Thẩm mỹ hiện đại: Phong cách kiến trúc tối giản, sử dụng vật liệu mới như kính, gỗ nhựa và đá tự nhiên.

2. Phân tích kiến trúc ngoại thất: Sự giao thoa giữa thiên nhiên và vật liệu hiện đại
Nhìn vào phối cảnh 3D của Mẫu nhà phố 2 tầng 1 tum 5x15m hiện đại, bạn sẽ thấy một sự chỉn chu trong việc phối màu. Techhome sử dụng tông màu trắng chủ đạo, điểm xuyết bằng các mảng tường ốp đá màu xám và trần ban công ốp gỗ nhựa ấm áp.
-
Hệ thống cửa kính: Toàn bộ cửa mặt tiền sử dụng kính cường lực khung nhôm Xingfa cao cấp. Điều này giúp lấy sáng tự nhiên tối đa vào bên trong các phòng.
-
Mảng xanh ban công: Tại tầng 2 và tầng tum, chúng tôi bố trí các bồn hoa lớn. Đây không chỉ là trang trí mà còn giúp giảm bức xạ nhiệt vào mùa hè.
-
Hệ mái tum phá cách: Tầng tum không chỉ là nơi đặt phòng thờ mà còn là một khoảng sân chơi lý tưởng với tầm nhìn rộng mở.

3. Chi tiết công năng: “Đo ni đóng giày” cho từng thành viên
Một Mẫu nhà phố 2 tầng 1 tum 5x15m hiện đại đẹp thôi chưa đủ, nó phải tiện. Hãy cùng tôi đi sâu vào bản vẽ chi tiết của công trình này.
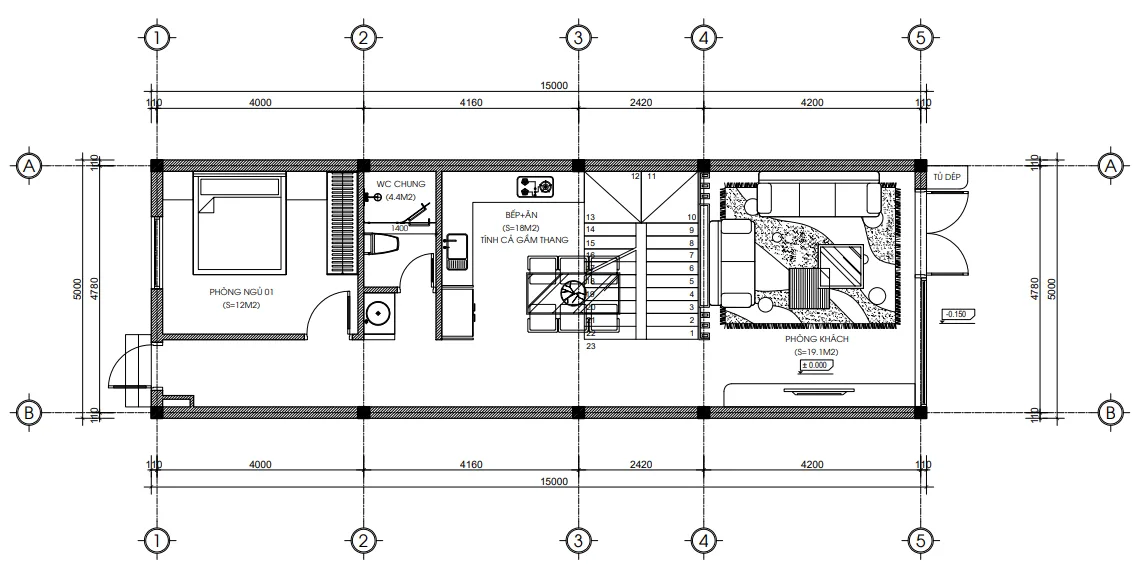
Tầng 1: Không gian sinh hoạt chung ấm cúng (75m2)
Tầng 1 được thiết kế với độ cao 3.9m, tạo cảm giác cực kỳ thoáng đãng.
-
Phòng khách (19.1m2): Nằm ngay sau sảnh chính, là bộ mặt của ngôi nhà.
-
Bếp và phòng ăn (18m2): Được ngăn cách tinh tế với phòng khách bởi cầu thang. Khu vực này tận dụng cả không gian dưới gầm thang để tối ưu diện tích.
-
Phòng ngủ 01 (12m2): Dành cho người lớn tuổi trong nhà để tránh việc phải leo trèo cầu thang, đảm bảo sự riêng tư và an toàn.
-
WC chung (4.4m2): Bố trí kín đáo nhưng thuận tiện cho cả khách và thành viên trong gia đình.

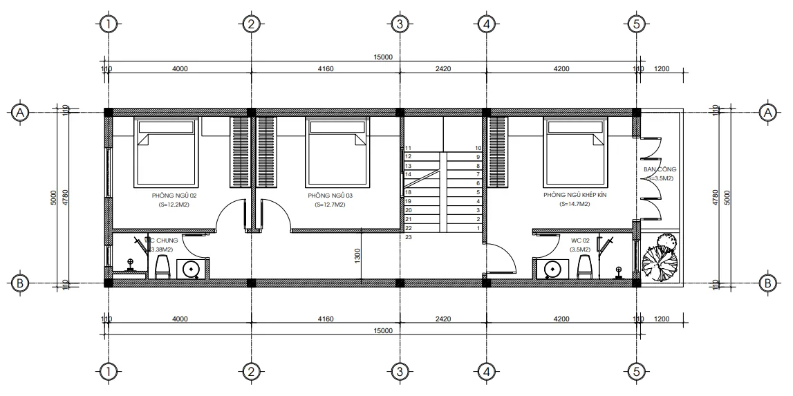
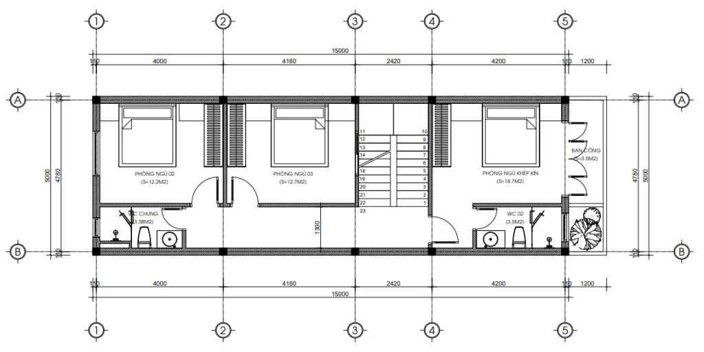
Tầng 2: Không gian nghỉ ngơi riêng tư (81m2)
Tầng 2 được đẩy diện tích lên 81m2 nhờ việc đua ban công. Với chiều cao 3.6m, không gian ngủ nghỉ vẫn đảm bảo sự dễ chịu.
-
Phòng ngủ Master (14.7m2): Có vệ sinh khép kín (3.5m2) và ban công riêng rộng 3.5m2 hướng ra mặt tiền. Đây là nơi lý tưởng để chủ nhà thư giãn mỗi tối.
-
2 Phòng ngủ nhỏ (12.2m2 & 12.7m2): Dành cho con cái, sử dụng chung một nhà vệ sinh 3.38m2 ở giữa. Tất cả các phòng đều có cửa sổ lấy sáng.

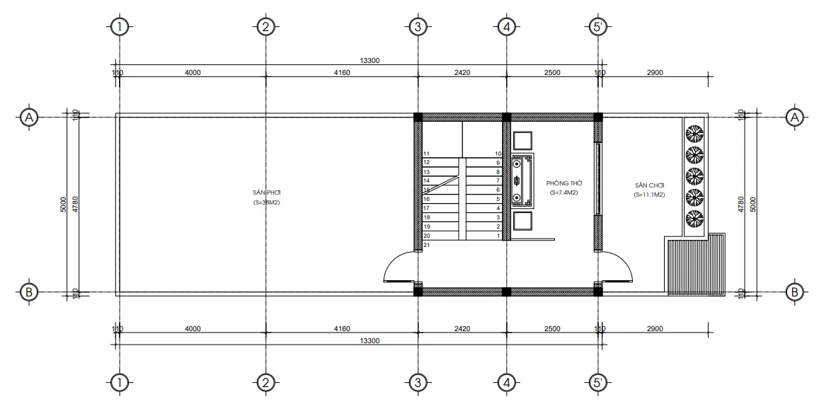
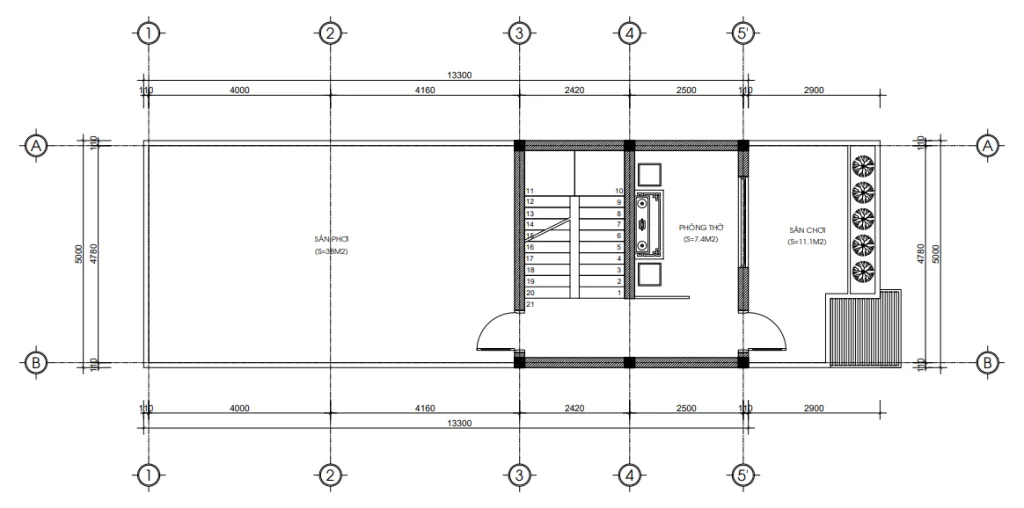
Tầng Tum: Nơi giao hòa tâm linh và giải trí (26m2)
Tầng tum là điểm nhấn cuối cùng của Mẫu nhà phố 2 tầng 1 tum 5x15m hiện đại.
-
Phòng thờ (7.4m2): Đặt ở vị trí trang nghiêm, yên tĩnh nhất.
-
Sân chơi (11.1m2): Phía trước phòng thờ, là nơi gia đình có thể tổ chức các buổi tiệc BBQ nhỏ hoặc trồng cây cảnh.
-
Sân phơi (38m2): Bố trí phía sau để đảm bảo tính thẩm mỹ cho mặt tiền nhà.

4. Góc nhìn chuyên gia: Gợi ý để ngôi nhà trở nên hoàn hảo hơn
Là một người tư vấn kỹ thuật tại Techhome, tôi có vài lời khuyên nhỏ dành cho bạn khi áp dụng Mẫu nhà phố 2 tầng 1 tum 5x15m hiện đại này:
-
Hệ thống giếng trời: Trong bản vẽ của anh Đức, chúng tôi đã bố trí ô lấy sáng ngay trên khu vực cầu thang. Với nhà phố dài 15m, giếng trời là “lá phổi” giúp đẩy khí nóng ra ngoài và đưa ánh sáng vào giữa nhà.
-
Vật liệu chống thấm: Đặc biệt với khu vực tầng tum và sân chơi, hãy đầu tư sơn chống thấm loại tốt nhất. Một vết nứt nhỏ trên mái có thể làm hỏng cả hệ thống trần thạch cao bên dưới.
-
Hệ thống điện thông minh: Năm 2026, đừng chỉ dừng lại ở công tắc cơ. Hãy tích hợp hệ thống cảm biến ánh sáng cho khu vực cầu thang và sân trước của Mẫu nhà phố 2 tầng 1 tum 5x15m hiện đại để tăng tính tiện nghi.

5. Báo giá thi công trọn gói (Tham khảo năm 2026)
Mức giá dưới đây áp dụng cho tiêu chuẩn vật tư khá và tốt, đảm bảo độ bền vững cho Mẫu nhà phố 2 tầng 1 tum 5x15m hiện đại với tổng diện tích thiết kế là 190m2.
| Hạng mục thi công | Đơn giá (VNĐ/m2) | Thành tiền (VNĐ) |
| Phần thô & Nhân công hoàn thiện | 4.000.000 – 4.200.000 | ~ 800.000.000 |
| Gói hoàn thiện (Vật tư khá) | 2.500.000 – 3.200.000 | ~ 600.000.000 |
| Tổng cộng (Chìa khóa trao tay) | 6.500.000 – 7.500.000 | ~ 1.400.000.000 |
Lưu ý: Đây chỉ là mức chi phí ước tính. Để nhận được báo giá chính xác và chi tiết nhất cho công trình của bạn, vui lòng liên hệ trực tiếp với chúng tôi. Hoặc để tìm hiểu rõ hơn về tiêu chuẩn vật liệu xây dựng và các yếu tố ảnh hưởng đến chi phí, bạn có thể tham khảo thêm tại các bài viết chuyên sâu về vật liệu xây dựng cao cấp trên Wikipedia.

6. Lời kết
Mẫu nhà phố 2 tầng 1 tum 5x15m hiện đại không chỉ giải quyết bài toán về không gian mà còn khẳng định gu thẩm mỹ tinh tế của gia chủ. Với sự tận tâm từ đội ngũ KTS và cộng sự tại Techhome, chúng tôi tự tin mang lại cho bạn một bản thiết kế “độc bản”.
Nếu bạn đang có mảnh đất tương tự và muốn sở hữu một Mẫu nhà phố 2 tầng 1 tum 5x15m hiện đại chuẩn phong thủy, chuẩn công năng như gia đình anh Đức, đừng ngần ngại liên hệ với chúng tôi.
Thông tin liên hệ:
-
Website: https://nhadeptechhome.vn/
-
Hotline : 036.273.2222
-
Địa chỉ: B1.1 LK18 Ô 3 – KĐT Thanh Hà – Cienco 5 – Thanh Oai- Hà Nội.

Câu hỏi thường gặp về Mẫu nhà phố 2 tầng 1 tum 5x15m hiện đại:
-
Xây nhà này mất bao lâu? Thông thường từ 4.5 đến 5.5 tháng.
-
Tầng tum có bị nóng không? Techhome sử dụng các lớp cách nhiệt chuyên dụng và thiết kế sân chơi phía trước để giảm nhiệt trực tiếp vào phòng thờ.
-
Có thể thay đổi vị trí phòng ngủ ở tầng 1 không? Hoàn toàn được, chúng tôi sẽ điều chỉnh dựa trên yêu cầu thực tế và phong thủy của bạn.
Việc lựa chọn Mẫu nhà phố 2 tầng 1 tum 5x15m hiện đại là một bước đi đúng đắn cho sự bền vững của tương lai. Hãy để Techhome đồng hành cùng bạn xây dựng giá trị sống đích thực!
