Bạn đã bao giờ mơ về một ngôi nhà mà chỉ cần nhìn từ xa, người ta đã thấy được sự chỉn chu, vững chãi nhưng vẫn đầy tinh tế của gia chủ chưa? Đó chính là cảm giác mà đội ngũ Techhome nhận được khi hoàn thiện mẫu nhà 2 tầng mái Thái đẹp cho gia đình chú Hải tại La Phù, An Khánh, Hà Nội.
Không quá phô trương, không cầu kỳ xa hoa như những tòa lâu đài, ngôi nhà này chinh phục lòng người bằng sự cân đối, gam màu nhã nhặn và công năng sử dụng được tối ưu đến từng centimet. Hãy cùng tôi khám phá chi tiết “siêu phẩm” 90m² này nhé!
1. Thông tin tổng quan dự án
Trước khi đi sâu vào vẻ đẹp kiến trúc, hãy cùng điểm qua những thông số “vàng” của công trình này:
-
Chủ đầu tư: Chú Hải.
-
Địa điểm xây dựng: La Phù – An Khánh – Hoài Đức – Hà Nội.
-
Đơn vị thiết kế & thi công: Công ty Cổ phần Kiến trúc và Xây dựng Techhome.
-
Diện tích sàn: 90m²/tầng (Tổng diện tích sử dụng khoảng 180m²).
-
Phong cách kiến trúc: Tân cổ điển kết hợp mái Thái hiện đại.
-
Công năng chính: 01 Phòng khách, 01 Bếp ăn, 03 Phòng ngủ, 01 Phòng thờ, 02 WC, Khu giặt phơi.
Đây là một mẫu nhà 2 tầng mái Thái đẹp điển hình, phù hợp với những khu đất có diện tích mặt tiền từ 7-9m, mang lại không gian sống thoáng đãng cho gia đình từ 2 đến 3 thế hệ.

2. Phân tích kiến trúc ngoại thất: Sự sang trọng đến từ sự giản đơn
Điểm nhấn đầu tiên đập vào mắt chính là hệ mái Thái chữ A xếp lớp cực kỳ thanh thoát. Trong xây dựng, mái Thái không chỉ có tác dụng chống nóng, thoát nước mưa nhanh mà còn giúp ngôi nhà trông cao ráo, thanh mảnh hơn.
Màu sắc và chất liệu
Ngôi nhà sử dụng tông màu trắng sứ làm chủ đạo, kết hợp với các mảng tường xanh ghi đậm ở phần đầu hồi và hệ mái. Sự tương phản nhẹ nhàng này tạo nên một diện mạo rất “Tây”. Hệ cột tròn phía trước ban công tầng 2 được phào chỉ nhẹ nhàng ở đầu và chân cột, đúng chất tân cổ điển nhưng không hề bị nặng nề.
Hệ thống cửa và ánh sáng
Techhome đã tư vấn cho chú Hải sử dụng hệ cửa nhôm kính Xingfa màu đen tuyền. Việc sử dụng kính cường lực bản lớn không chỉ giúp ngôi nhà đón trọn ánh sáng tự nhiên mà còn tạo ra những góc view cực chill từ bên trong nhìn ra sân vườn. Đây là yếu tố cốt lõi để tạo nên một mẫu nhà 2 tầng mái Thái đẹp và không bị lỗi mốt theo thời gian.

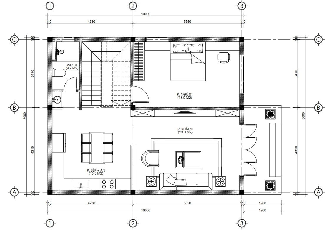
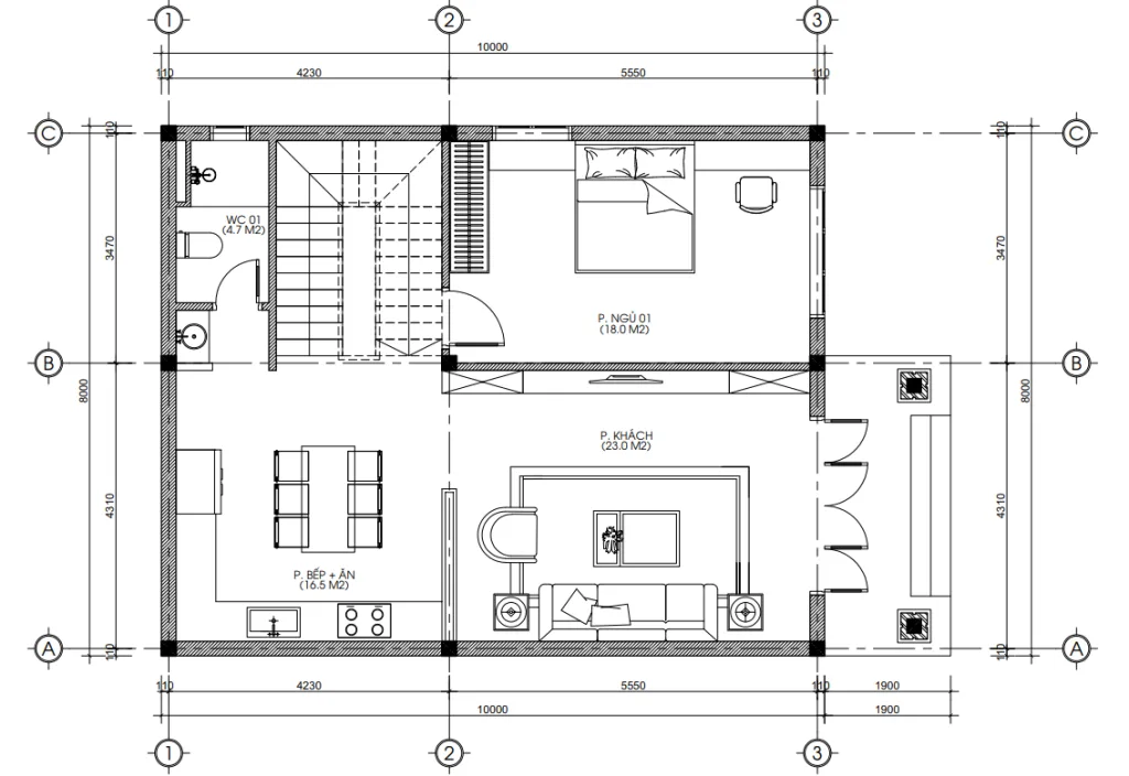
3. Giải pháp mặt bằng công năng: Tối ưu hóa không gian sống
Một ngôi nhà đẹp trước hết phải là một ngôi nhà tiện nghi. Dựa trên bản vẽ kỹ thuật, chúng tôi đã bố trí các phòng chức năng vô cùng khoa học.
Mặt bằng tầng 1: Không gian kết nối gia đình
Tầng 1 có chiều cao thông thủy lên tới 3.9m, tạo cảm giác cực kỳ thoáng đãng ngay khi bước vào.
-
Phòng khách (23m²): Nằm ngay sau sảnh chính, không gian đủ rộng để chú Hải tiếp khách và trang trí những bộ sofa lớn.
-
Phòng bếp + ăn (16.5m²): Được thiết kế mở, liên thông nhưng vẫn có sự phân tách tinh tế với phòng khách, giúp việc sinh hoạt thuận tiện hơn.
-
Phòng ngủ 01 (18m²): Đây là điểm cộng lớn. Việc bố trí phòng ngủ rộng rãi ở tầng 1 rất phù hợp cho người lớn tuổi trong gia đình, hạn chế việc phải leo cầu thang.
-
WC 01 (4.7m²): Đặt cạnh cầu thang, vừa kín đáo vừa tiện dụng.

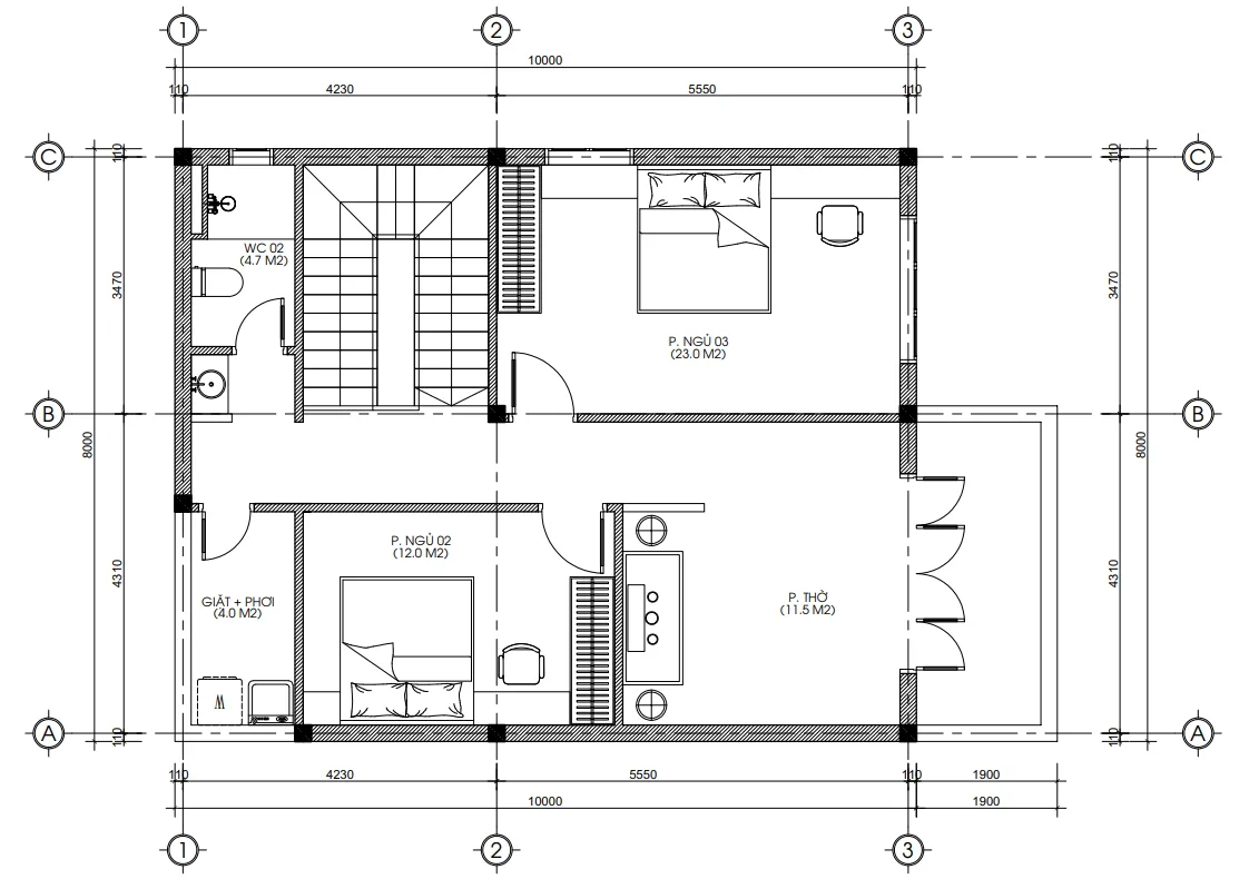
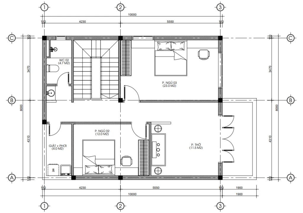
Mặt bằng tầng 2: Chốn riêng tư và sự tĩnh lặng
Tầng 2 có chiều cao 3.6m, tập trung vào việc nghỉ ngơi và thờ tự.
-
Phòng ngủ Master (23m²): Diện tích tương đương phòng khách tầng 1, view nhìn thẳng ra ban công phía trước. Đây chắc chắn là không gian thư giãn tuyệt vời sau ngày dài làm việc.
-
Phòng ngủ 02 (12m²): Phù hợp cho con cái.
-
Phòng thờ (11.5m²): Vị trí trang trọng nhất, hướng ra phía trước ngôi nhà, đảm bảo yếu tố phong thủy và sự tôn nghiêm.
-
Khu giặt phơi (4m²): Được thiết kế khéo léo phía sau, đảm bảo tính thẩm mỹ cho mặt tiền.
Cầu thang của ngôi nhà được thiết kế 25 bậc với chiều cao mỗi bậc là 156mm. Đây là con số “vàng” trong kiến trúc, vừa rơi vào cung “Sinh”, vừa giúp bước chân đi lại êm ái, không bị mỏi. Một chi tiết nhỏ nhưng thể hiện sự tận tâm của đội ngũ kiến trúc sư Techhome đối với mẫu nhà 2 tầng mái Thái đẹp này.

4. Báo giá thiết kế và thi công tham khảo
Tại Techhome, chúng tôi luôn minh bạch về chi phí để gia chủ dễ dàng dự toán ngân sách. Dưới đây là bảng giá tham khảo cho dòng nhà phố/biệt thự tân cổ điển:
Bảng báo giá dịch vụ (Năm 2026)
| Hạng mục | Đơn giá (VNĐ/m²) | Ghi chú |
| Thiết kế kiến trúc | 108.000 | Bao gồm 3D, hồ sơ kỹ thuật, điện nước |
| Thiết kế nội thất | 150.000 | Phối cảnh 3D các phòng, chi tiết đồ gỗ |
| Xây dựng phần thô | 3.800.000 – 4.200.000 | Bao gồm nhân công và vật tư thô |
| Xây nhà trọn gói | 7.000.000 – 8.000.000 | Chìa khóa trao tay (Tùy mức độ vật liệu) |
Lưu ý: Đây chỉ là mức chi phí ước tính. Để nhận được báo giá chính xác và chi tiết nhất cho công trình của bạn, vui lòng liên hệ trực tiếp với chúng tôi. Hoặc để tìm hiểu rõ hơn về tiêu chuẩn vật liệu xây dựng và các yếu tố ảnh hưởng đến chi phí, bạn có thể tham khảo thêm tại các bài viết chuyên sâu về vật liệu xây dựng cao cấp trên Wikipedia.

5. Tại sao bạn nên chọn Techhome làm đơn vị đồng hành?
Xây nhà là việc cả đời. Chúng tôi hiểu rằng, đằng sau mỗi bản vẽ là cả một niềm hy vọng và sự chắt chiu của gia chủ.
-
Chuyên môn hóa cao: Mỗi hồ sơ thiết kế (như của chú Hải) đều bao gồm đầy đủ các hạng mục từ kiến trúc, kết cấu đến điện nước, đảm bảo thợ thi công không bao giờ làm sai.
-
Thẩm mỹ cá nhân hóa: Chúng tôi không “copy-paste”. Mỗi mẫu nhà 2 tầng mái Thái đẹp ra đời là kết quả của việc lắng nghe sở thích, thói quen sinh hoạt và đặc biệt là phong thủy của từng chủ nhà.
-
Hỗ trợ kỹ thuật 24/7: Như bạn thấy trên bản vẽ, số điện thoại hỗ trợ kỹ thuật luôn hiển thị sẵn sàng. Chúng tôi đồng hành cùng bạn từ lúc động thổ đến khi tân gia.

6. Góc chuyên gia: 3 lưu ý để có mẫu nhà 2 tầng mái Thái đẹp hoàn hảo
Dưới góc độ là một kiến trúc sư lâu năm, tôi có vài lời khuyên “xương máu” dành cho bạn khi chọn mẫu nhà này:
-
Đừng tiết kiệm chi phí chống thấm mái: Mái Thái có độ dốc lớn nhưng các điểm tiếp giáp giữa mái và tường là nơi rất dễ thấm. Hãy sử dụng các loại phụ gia chống thấm cao cấp ngay từ đầu.
-
Chú ý hệ thống thoát nước: Với hệ mái đua ra ngoài như mẫu nhà 2 tầng mái Thái đẹp này, hãy tính toán sê-nô thu nước khéo léo để nước mưa không chảy trực tiếp xuống sân gây rêu mốc hoặc bắn sang nhà hàng xóm.
-
Màu sắc ngoại thất: Nên chọn các dòng sơn có độ bóng nhẹ và khả năng chống bám bẩn cao (như Jotun hay Dulux cao cấp). Màu trắng rất đẹp nhưng nếu dùng sơn rẻ tiền, chỉ sau 1-2 mùa mưa sẽ bị ố vàng, mất đi giá trị của ngôi nhà.
Ngôi nhà của chú Hải tại La Phù chính là minh chứng cho việc: Một diện tích vừa phải (90m²) nếu được đầu tư chất xám đúng cách sẽ tạo nên một không gian sống đẳng cấp. Nếu bạn cũng đang ấp ủ ý tưởng về một mẫu nhà 2 tầng mái Thái đẹp, đừng ngần ngại ghé thăm Website nhadeptechhome.vn để xem thêm hàng trăm mẫu nhà đẹp khác.
Hy vọng bài viết này đã mang đến cho bạn cái nhìn chân thực về quá trình kiến tạo nên một tổ ấm. Techhome không chỉ xây nhà, chúng tôi xây dựng niềm tin!

7. Tổng kết các đặc điểm nổi bật
Để quý khách tiện theo dõi, tôi xin tóm lược lại những giá trị cốt lõi của mẫu nhà 2 tầng mái Thái đẹp này:
-
Thiết kế: Chuẩn phong thủy, tỷ lệ hình khối cân đối.
-
Màu sắc: Sang trọng, bền bỉ với tông trắng – xanh ghi.
-
Công năng: Tối ưu không gian, có phòng ngủ tầng 1 cho người già.
-
Kỹ thuật: Cầu thang chuẩn số bậc may mắn, chiều cao tầng thông thoáng.
-
Vị trí: Phù hợp cả khu vực nông thôn và thành thị.
Xây dựng một mẫu nhà 2 tầng mái Thái đẹp không khó, cái khó là tìm được người thấu hiểu những mong muốn thầm kín của bạn để biến nó thành hiện thực. Và Techhome luôn ở đây để giúp bạn điều đó.
