Xây nhà phố ở các trục đường lớn như Quang Trung – Thanh Hóa luôn là một bài toán cân não. Làm sao để vừa có mặt tiền kinh doanh hút khách, vừa đảm bảo không gian sống riêng tư, thoáng đãng trên một diện tích đất ống điển hình? Dự án của gia đình anh Tâm mà Techhome vừa bàn giao hồ sơ thiết kế chính là câu trả lời hoàn hảo.
Nếu bạn đang tìm kiếm một mẫu nhà phố 3 tầng 1 lửng hiện đại để chuẩn bị cho kế hoạch xây tổ ấm sắp tới, đừng bỏ qua những phân tích chi tiết “người thật việc thật” dưới đây.
1. Thông tin tổng quan dự án anh Tâm (Thanh Hóa)
-
Chủ đầu tư: Anh Tâm.
-
Địa điểm xây dựng: Quang Trung – Thanh Hóa.
-
Đơn vị tư vấn & thiết kế: Công ty Cổ phần Kiến trúc và Xây dựng Techhome.
-
Loại hình: Nhà phố (Nhà ống) hiện đại.
-
Quy mô: 1 trệt, 1 lửng, 2 lầu (3 tầng 1 lửng).
-
Diện tích sàn tầng 1: 67m2 (Rộng ~4m x Dài 15.5m).

2. Tại sao “Mẫu nhà phố 3 tầng 1 lửng hiện đại” lại lên ngôi năm 2026?
Thú thật với các bác, đất phố ngày càng đắt đỏ. Với những mảnh đất có chiều ngang tầm 4m như nhà anh Tâm, nếu xây thẳng tuột 3-4 tầng theo kiểu cũ thì rất dễ rơi vào tình trạng “nhà hộp” – bí bách và thiếu ánh sáng.
Việc lựa chọn mẫu nhà phố 3 tầng 1 lửng hiện đại mang lại 3 cái lợi sát sườn:
-
Tăng chiều cao thông tầng: Giúp phòng khách hoặc khu vực kinh doanh ở tầng 1 cực kỳ thoáng.
-
Tối ưu diện tích sử dụng: Tầng lửng là không gian đệm tuyệt vời để làm phòng sinh hoạt chung hoặc phòng ngủ mà vẫn quan sát được phía dưới.
-
Lách luật xây dựng: Ở một số khu vực quy hoạch, tầng lửng không bị tính là một tầng chính thức nhưng công năng sử dụng lại không thua kém.

3. Phân tích kiến trúc ngoại thất: Đường cong mềm mại giữa phố thị
Nhìn vào phối cảnh 3D, các bạn sẽ thấy mẫu nhà phố 3 tầng 1 lửng hiện đại này thoát xác hoàn toàn khỏi những khối vuông thô cứng.
Nghệ thuật bo góc và những đường kẻ chỉ
Điểm nhấn đắt giá nhất chính là mảng tường trắng được bo tròn mềm mại từ tầng lửng lên tận sân thượng. Các kiến trúc sư Techhome đã khéo léo sử dụng hệ nan gỗ trang trí chạy dọc phía bên trái mặt tiền. Hệ nan này không chỉ để “làm màu”, nó giúp che bớt cái nắng gắt của miền Trung nhưng vẫn đón được gió lùa vào các khe thoáng.
Vật liệu hiện đại, bền bỉ
Với đặc thù thời tiết Thanh Hóa “sáng nắng chiều mưa, trưa gió Lào”, chúng tôi tư vấn anh Tâm sử dụng:
-
Sơn ngoại thất cao cấp: Chống thấm và chống rêu mốc tối đa.
-
Kính cường lực ban công: Tạo cảm giác nới rộng không gian và đón sáng toàn diện.
-
Đá granite ốp mặt tiền tầng 1: Màu đen vân mây sang trọng, giúp khu vực kinh doanh luôn sạch sẽ và nổi bật.

4. Giải pháp mặt bằng công năng: Tối ưu đến từng centimet
Một mẫu nhà phố 3 tầng 1 lửng hiện đại đẹp thôi chưa đủ, phải “sướng” khi ở. Hãy cùng soi kỹ bản vẽ kỹ thuật của Techhome:
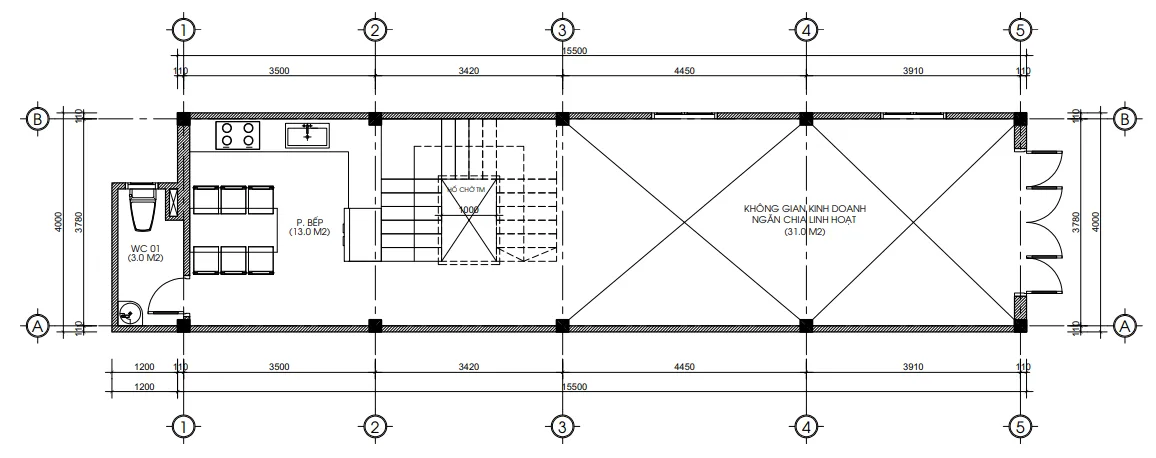
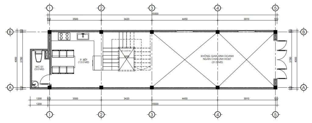
Tầng 1: Không gian kinh doanh linh hoạt (67m2)
Mặt tiền được ưu tiên hoàn toàn cho “Không gian kinh doanh ngăn chia linh hoạt” rộng 31m2. Phía sau là cầu thang, khu vực bếp nấu (13m2) và một nhà vệ sinh nhỏ (3m2).

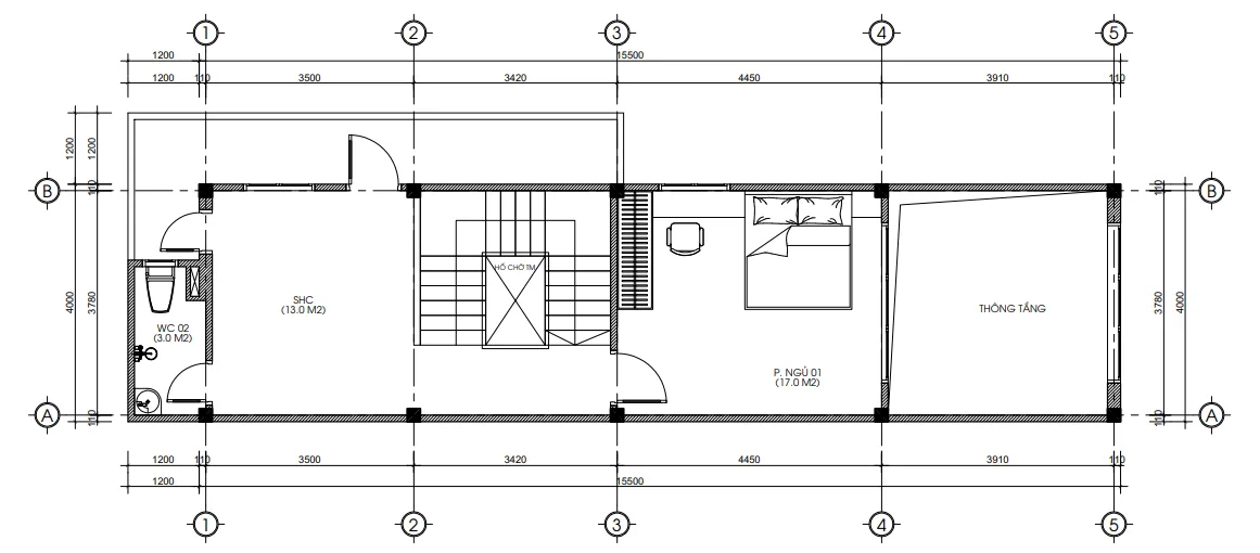
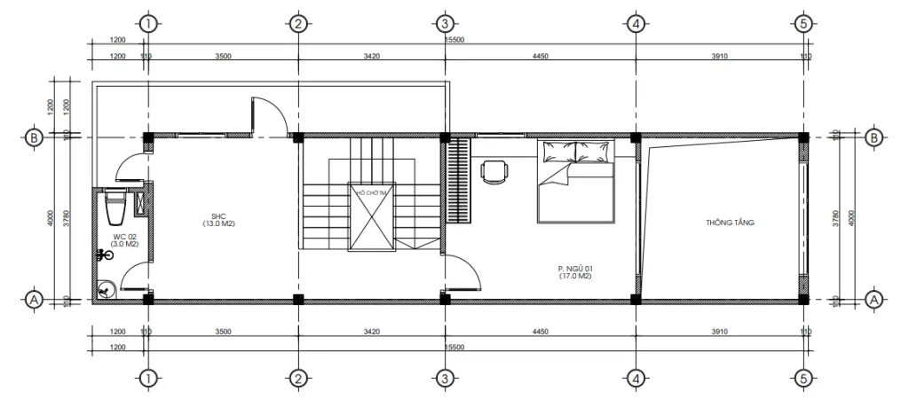
Tầng lửng: Nơi giữ lửa gia đình (54m2)
Đây là điểm đặc biệt của mẫu nhà phố 3 tầng 1 lửng hiện đại. Khoảng thông tầng giúp tầng lửng cực kỳ thoáng. Tại đây, chúng tôi bố trí:
-
Phòng sinh hoạt chung (SHC) 13m2.
-
Phòng ngủ số 1 rộng 17m2 .
-
Ô thông tầng nhìn xuống khu vực kinh doanh, tạo sự kết nối giữa các thành viên.

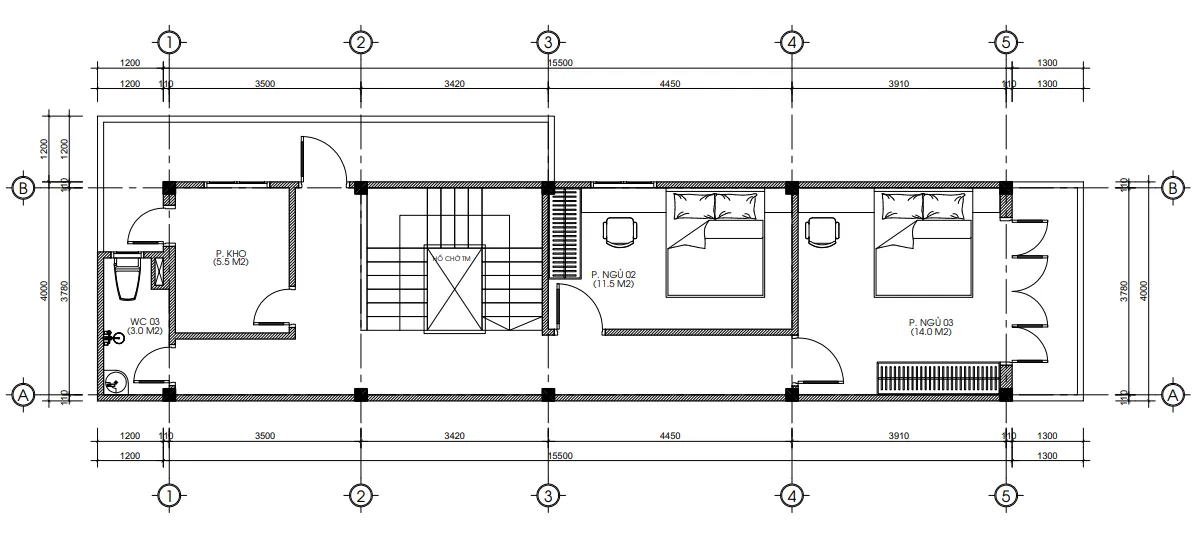
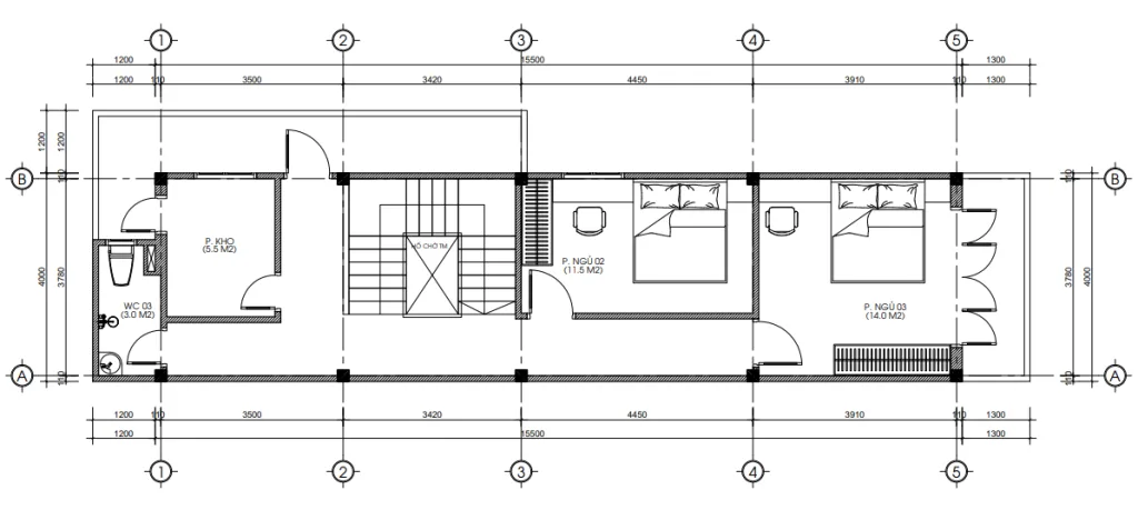
Tầng 2: Không gian nghỉ ngơi riêng tư (74m2)
Tầng này là lãnh địa của vợ chồng anh Tâm và con cái với:
-
2 phòng ngủ (11.5m2 và 14m2).
-
Đặc biệt có thêm 1 phòng kho (5.5m2) – thứ mà rất nhiều gia đình bỏ quên khi xây nhà phố nhưng lại cực kỳ cần thiết để cất giữ đồ đạc ít dùng.

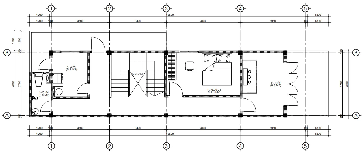
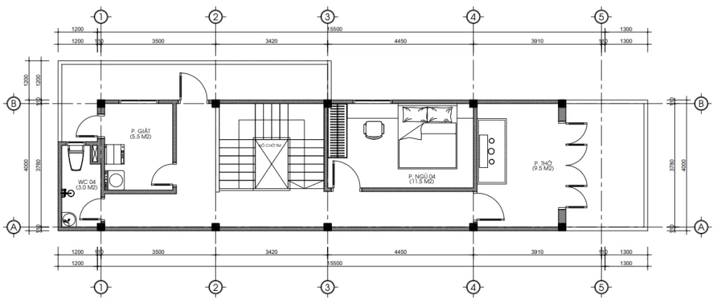
Tầng 3: Tâm linh và tiện ích (63m2)
Phòng thờ được đặt ở vị trí trang trọng nhất hướng ra mặt tiền. Phía sau là phòng ngủ số 4, khu vực giặt phơi và ban công thoáng đãng.

5. Báo giá tham khảo xây dựng tại Thanh Hóa năm 2026
Rất nhiều bác gọi điện cho Techhome hỏi: “Xây cái mẫu nhà phố 3 tầng 1 lửng hiện đại như nhà anh Tâm thì hết bao nhiêu tiền?”. Tiền nào của nấy, nhưng để các bác dễ hình dung, em xin đưa ra bảng giá tham khảo:
| Hạng mục | Đơn giá (VNĐ/m2) | Ghi chú |
| Thiết kế kiến trúc | 108.000 | Hồ sơ đầy đủ, phối cảnh 3D |
| Xây dựng phần thô & nhân công | 3.800.000 – 4.200.000 | Bao gồm vật tư xây thô |
| Xây nhà trọn gói (Chìa khóa trao tay) | 6.500.000 – 7.500.000 | Tùy vào mức độ hoàn thiện vật tư |
Ước tính cho nhà anh Tâm: Với tổng diện tích sàn khoảng 250m2, chi phí xây dựng trọn gói sẽ rơi vào khoảng 1.6 tỷ – 1.9 tỷ đồng (Chưa bao gồm nội thất rời). Đây là mức giá cực kỳ hợp lý cho một mẫu nhà phố 3 tầng 1 lửng hiện đại có kiến trúc độc đáo như thế này.
Lưu ý: Đây chỉ là mức chi phí ước tính. Để nhận được báo giá chính xác và chi tiết nhất cho công trình của bạn, vui lòng liên hệ trực tiếp với chúng tôi. Hoặc để tìm hiểu rõ hơn về tiêu chuẩn vật liệu xây dựng và các yếu tố ảnh hưởng đến chi phí, bạn có thể tham khảo thêm tại các bài viết chuyên sâu về vật liệu xây dựng cao cấp trên Wikipedia.

6. Góc nhìn chuyên gia: 3 lưu ý “vàng” khi xây nhà phố 1 lửng
Với kinh nghiệm thực chiến hàng trăm công trình, Techhome khuyên bạn:
-
Đừng ham làm tầng lửng quá thấp: Nhiều bác muốn tiết kiệm chiều cao nên làm tầng lửng cao chỉ 2.2m – 2.4m. Ở cực kỳ bí và nóng. Chiều cao lý tưởng cho tầng lửng trong mẫu nhà phố 3 tầng 1 lửng hiện đại nên từ 2.6m – 2.8m.
-
Chú ý hệ thống thoát mùi bếp: Vì tầng lửng thông với tầng 1, nếu tầng 1 làm bếp mà không có hệ thống hút mùi xịn, mùi thức ăn sẽ ám thẳng lên phòng sinh hoạt chung và các tầng trên.
-
Lựa chọn nan trang trí thông minh: Nan gỗ nhựa (WPC) là lựa chọn tốt nhất hiện nay cho mẫu nhà phố 3 tầng 1 lửng hiện đại tại Thanh Hóa vì nó chịu được nắng nóng mà không bị cong vênh, mối mọt như gỗ tự nhiên.
7. Techhome – Đơn vị thiết kế thi công uy tín tại Thanh Hóa
Tại sao anh Tâm lại tin tưởng chọn Techhome giữa hàng chục công ty kiến trúc khác?
Đó là bởi chúng tôi không chỉ vẽ ra những bản vẽ đẹp mắt, chúng tôi thực sự sống cùng công trình. Mọi chi tiết trong mẫu nhà phố 3 tầng 1 lửng hiện đại này đều được tính toán dựa trên thói quen sinh hoạt và khả năng tài chính của chủ đầu tư.
Nếu bạn đang sở hữu một mảnh đất phân lô và muốn biến nó thành một mẫu nhà phố 3 tầng 1 lửng hiện đại vừa ở vừa kinh doanh đỉnh cao, đừng ngần ngại liên hệ với đội ngũ kiến trúc sư của chúng tôi qua Hotline: 036.273.2222

8. Kết luận
Mẫu nhà phố 3 tầng 1 lửng hiện đại của anh Tâm tại Thanh Hóa không chỉ là một công trình xây dựng, đó là một tác phẩm nghệ thuật về không gian. Nó giải quyết được bài toán ánh sáng, thông gió và công năng kinh doanh một cách mượt mà nhất.
Bạn có thích phong cách bo góc mềm mại của mẫu nhà phố 3 tầng 1 lửng hiện đại này không? Hay bạn muốn một cái gì đó góc cạnh, cá tính hơn? Hãy để lại ý kiến dưới phần bình luận hoặc ghé thăm website của chúng tôi tại: https://nhadeptechhome.vn/ để xem thêm hàng trăm mẫu nhà đẹp khác nhé!
