Chào các bạn, lại là anh em kiến trúc sư Tech Home đây! Hôm nay, mình muốn dẫn các bạn về thăm mảnh đất Phố Thái – Hải Phòng để cùng ngắm nhìn một công trình mà mình cực kỳ ưng ý. Đây là căn biệt thự tân cổ điển 2 tầng được thiết kế riêng cho gia đình chú Toàn.
Nói thật với các bạn, làm nghề kiến trúc sợ nhất là gia chủ “khó tính”, nhưng chú Toàn lại là kiểu người “kỹ tính” một cách rất tinh tế. Chú yêu cầu một ngôi nhà không cần quá phô trương, nhưng phải có cái “thần” của sự sang trọng và bền bỉ với thời gian. Và thế là, phương án này ra đời.
1. Tại sao Biệt thự tân cổ điển 2 tầng lại là lựa chọn “vàng”?
Trong xu hướng xây dựng năm 2026, khi mà những khối nhà hiện đại mọc lên như nấm, thì phong cách tân cổ điển vẫn giữ vững vị thế “ngôi vương”. Mẫu biệt thự tân cổ điển 2 tầng của chú Toàn chính là minh chứng rõ nét nhất. Nó không quá nặng nề như cổ điển thuần túy nhưng lại vượt xa sự đơn điệu của phong cách hiện đại.
Cái hay của biệt thự tân cổ điển 2 tầng nằm ở sự đối xứng. Nhìn từ xa, ngôi nhà toát lên vẻ vững chãi nhờ hệ cột trụ tròn mềm mại và các đường phào chỉ tinh xảo. Màu trắng sứ chủ đạo kết hợp cùng hệ mái Nhật xanh than tạo nên một diện mạo vừa thanh lịch, vừa quyền quý.

2. Phân tích kiến trúc ngoại thất: Sự giao thoa giữa nghệ thuật và công năng
Ngay từ cái nhìn đầu tiên, bạn sẽ bị thu hút bởi hệ thống sảnh chính của mẫu biệt thự tân cổ điển 2 tầng này.
Hệ cột và cửa vòm đặc trưng
Chúng tôi sử dụng hệ cột Ionic với các rãnh soi dọc tạo cảm giác thanh thoát, cao ráo hơn cho ngôi nhà. Điểm nhấn đắt giá nhất chính là ô cửa sổ vòm ở tầng 2, được bao quanh bởi các đường gờ phào chỉ đắp nổi thủ công. Đây chính là linh hồn của một căn biệt thự tân cổ điển 2 tầng đúng nghĩa.
Ban công nhôm đúc nghệ thuật
Thay vì dùng lan can kính hay inox, Tech Home tư vấn chú Toàn sử dụng lan can nhôm đúc mạ vàng. Những họa tiết uốn lượn tinh tế không chỉ làm tăng tính thẩm mỹ mà còn tạo nên sự quý phái, đồng nhất với tinh thần của phong cách biệt thự tân cổ điển 2 tầng.
Hệ mái và công năng sân thượng
Mái Nhật với độ dốc vừa phải không chỉ giúp thoát nước mưa tốt mà còn chống nóng cực hiệu quả. Đặc biệt, ở góc nhìn từ trên cao, các bạn có thể thấy chúng tôi đã khéo léo bố trí khu vực đặt bồn nước và năng lượng mặt trời một cách gọn gàng, không làm ảnh hưởng đến vẻ đẹp tổng thể của ngôi biệt thự tân cổ điển 2 tầng.

3. Giải pháp mặt bằng công năng: Tối ưu đến từng milimet
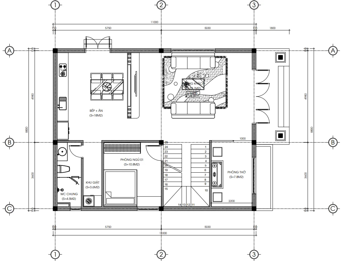
Ngôi nhà có tổng diện tích sàn là 215m2 (106m2 tầng 1 và 109m2 tầng 2). Với diện tích này, việc bố trí sao cho vừa thoáng, vừa đủ phòng là một bài toán thú vị.
Mặt bằng tầng 1: Nơi sum vầy và tâm linh
-
Phòng khách: Bước qua sảnh chính là không gian phòng khách rộng rãi, nơi chú Toàn có thể tự hào tiếp đón khách khứa.
-
Bếp + Ăn (18m2): Được ngăn cách tinh tế với phòng khách bằng một hệ lam gỗ hoặc tủ trang trí, giúp giữ sự riêng tư nhưng vẫn thông thoáng.
-
Phòng thờ (7.8m2): Đặt trang trọng tại tầng 1, phù hợp với thói quen sinh hoạt và phong tục của người Việt mình.
-
Phòng ngủ 01 (10.8m2): Dành cho người lớn tuổi hoặc làm phòng nghỉ tạm thời, rất tiện lợi.
-
Hệ thang: Cao 4.1m với 25 bậc, mỗi bậc cao đúng 164mm – con số “vàng” cho việc di chuyển không bị mỏi gối.

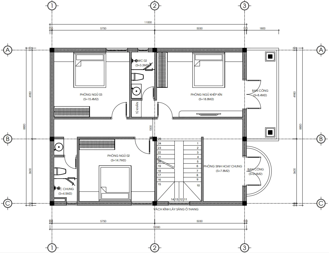
Mặt bằng tầng 2: Không gian riêng tư lý tưởng
Đây là nơi nghỉ ngơi chính của cả gia đình trong căn biệt thự tân cổ điển 2 tầng này:
-
Phòng ngủ Master (18.8m2): Có vệ sinh khép kín (3.3m2), mang lại sự riêng tư tuyệt đối.
-
Phòng ngủ 02 và 03: Diện tích lần lượt là 14.7m2 và 15.4m2, rất rộng rãi cho các con.
-
Phòng sinh hoạt chung (7.8m2): Nơi cả nhà cùng xem phim hay đọc sách mỗi tối.
-
Ban công cực rộng: Có tới 2 khu vực ban công (2.6m2 và 8.4m2) để gia chủ có thể trồng cây, thưởng trà.

4. Chia sẻ từ chuyên gia: Làm sao để xây Biệt thự tân cổ điển 2 tầng tiết kiệm mà vẫn đẹp?
Nhiều gia chủ hỏi mình: “Xây biệt thự tân cổ điển 2 tầng có đắt hơn hiện đại nhiều không?”. Thú thật là có đắt hơn một chút ở chi phí đắp phào chỉ và nhân công hoàn thiện, nhưng nếu biết cách tối ưu, bạn vẫn sẽ có một ngôi nhà cực sang với ngân sách hợp lý.
-
Sử dụng phào chỉ GFRC/PU: Thay vì đắp tay hoàn toàn bằng xi măng (vốn phụ thuộc nhiều vào tay nghề thợ), bạn có thể dùng phào đúc sẵn. Nó đều, đẹp và thi công cực nhanh.
-
Hệ thống chiếu sáng: Với biệt thự tân cổ điển 2 tầng, đừng bao giờ quên hệ thống đèn hắt tường và đèn chùm sảnh. Ánh sáng vàng ấm sẽ làm các đường phào chỉ nổi khối và lung linh hơn vào ban đêm.
-
Màu sơn: Đừng ham quá nhiều màu. Cứ trắng sứ hoặc kem làm chủ đạo, nhấn nhá thêm màu xanh của mái và màu đen của khung cửa xingfa là “bao đẹp”.

5. Báo giá tham khảo xây dựng Biệt thự tân cổ điển 2 tầng (Năm 2026)
Để các bạn dễ hình dung và chuẩn bị tài chính, Tech Home xin đưa ra bảng dự toán sơ bộ cho mẫu nhà này:
| Hạng mục | Đơn giá (VNĐ/m2) | Tổng tiền (Ước tính) |
| Thiết kế kiến trúc | 108.000 | 23.220.000 |
| Xây dựng phần thô (Vật tư + Nhân công) | 3.800.000 – 4.200.000 | 850 – 950 Triệu |
| Hoàn thiện cơ bản (Sơn, gạch, thiết bị vệ sinh) | 2.500.000 – 3.500.000 | 550 – 750 Triệu |
| Tổng cộng (Chưa gồm nội thất rời) | Khoảng 1.5 – 1.7 Tỷ |
Lưu ý: Đây chỉ là mức chi phí ước tính. Để nhận được báo giá chính xác và chi tiết nhất cho công trình của bạn, vui lòng liên hệ trực tiếp với chúng tôi. Hoặc để tìm hiểu rõ hơn về tiêu chuẩn vật liệu xây dựng và các yếu tố ảnh hưởng đến chi phí, bạn có thể tham khảo thêm tại các bài viết chuyên sâu về vật liệu xây dựng cao cấp trên Wikipedia.

6. Tại sao nên chọn Tech Home thiết kế Biệt thự tân cổ điển 2 tầng?
Chúng tôi không chỉ bán bản vẽ, chúng tôi bán giải pháp sống. Tại Tech Home, mỗi công trình biệt thự tân cổ điển 2 tầng đều được chăm chút dựa trên 3 trụ cột:
-
Chính xác: Bản vẽ kỹ thuật chi tiết đến từng mối nối, giúp thợ địa phương dễ dàng thi công.
-
Chân thật: Hình ảnh 3D thế nào, thực tế thi công sẽ đạt 95-98% như vậy.
-
Tận tâm: Hỗ trợ giám sát từ xa hoặc trực tiếp trong suốt quá trình xây dựng.
Sở hữu một căn biệt thự tân cổ điển 2 tầng không chỉ là khẳng định đẳng cấp, mà là tạo ra một di sản cho con cháu sau này. Vẻ đẹp này sẽ không bao giờ lỗi mốt, dù là 20 hay 50 năm nữa.

Hy vọng bài viết này giúp bạn có cái nhìn sâu sắc hơn về mẫu biệt thự tân cổ điển 2 tầng. Nếu bạn đang có ý định xây tổ ấm tại Hải Phòng hay bất cứ đâu, hãy liên hệ ngay với Tech Home nhé!
Thông tin liên hệ:
-
Website: https://nhadeptechhome.vn/
-
Hotline: 036.273.2222
-
Địa chỉ: B1.1 LK18 Ô 3 – KĐT Thanh Hà – Cienco 5 – Thanh Oai- Hà Nội.
