Techhome giới thiệu đến quý độc giả và quý khách hàng một công trình thực tế vô cùng ấn tượng. Đó là một mẫu nhà mái Nhật 1 tầng tuyệt đẹp, một không gian sống giao hòa giữa nét hiện đại, sang trọng và sự ấm cúng, gần gũi của gia đình truyền thống Việt Nam.
Nếu bạn đang ấp ủ dự định xây dựng tổ ấm cho riêng mình, đặc biệt là đang tìm kiếm một mẫu nhà mái Nhật 1 tầng vừa tối ưu chi phí, vừa đảm bảo công năng sử dụng hoàn hảo cho các thành viên, thì hãy pha một tách trà, ngồi xuống và cùng tôi khám phá chi tiết từng ngóc ngách của dự án này nhé!
1. Tổng Quan Về Dự Án Khơi Nguồn Cảm Hứng
Dự án lần này được Techhome tiếp nhận với một yêu cầu khá rõ ràng từ gia chủ: thiết kế một không gian sống tiện nghi, mở rộng, giao hòa với thiên nhiên và đặc biệt là phải toát lên vẻ bề thế, vững chãi dù chỉ xây một tầng. Sau nhiều lần trao đổi và lên phương án mặt bằng công năng, đội ngũ kiến trúc sư đã quyết định lựa chọn mẫu nhà mái Nhật 1 tầng làm ngôn ngữ thiết kế chủ đạo.
Dưới đây là một số thông tin cơ bản được trích xuất từ hồ sơ bản vẽ của dự án:
-
Tên công trình: Nhà ở gia đình
-
Chủ đầu tư: Anh Tuyền
-
Địa điểm xây dựng: Hải Phòng
-
Đơn vị tư vấn thiết kế: Công ty Cổ phần Kiến trúc và Xây dựng Techhome
-
Hạng mục: Kiến trúc
-
Tổng diện tích thiết kế: 165 m2
Sự ra đời của mẫu nhà mái Nhật 1 tầng này không chỉ là kết quả của bản vẽ kỹ thuật khô khan, mà là sự thấu hiểu sâu sắc thói quen sinh hoạt, sở thích và mong muốn của anh Tuyền. Tại Hải Phòng, vùng đất cửa biển với khí hậu đặc trưng, việc xây dựng một ngôi nhà có hệ mái dốc vừa phải, tản nhiệt tốt mùa hè và chống lạnh mùa đông là một bài toán mà kiến trúc sư đã giải quyết xuất sắc.

2. Sức Hút Ngoại Thất – Vẻ Đẹp Vượt Thời Gian
Từ góc độ của một người làm nghề lâu năm, tôi phải thừa nhận rằng, điểm nhấn đắt giá nhất của một mẫu nhà mái Nhật 1 tầng chính là hệ mái. Và công trình của anh Tuyền đã thể hiện điều đó một cách hoàn hảo.
Hệ Mái Xanh Đen Quyền Lực và Thanh Lịch
Ngắm nhìn các bức ảnh phối cảnh 3D từ góc nhìn chính diện đến góc nhìn trên cao, bạn có thể thấy hệ mái được lợp ngói màu xanh đen đầy quyền lực. Thiết kế mái Nhật (hay còn gọi là mái lùn) có độ dốc nhẹ hơn mái Thái, tỏa ra bốn hướng, tạo nên sự cân bằng, vững chãi và vô cùng bề thế. Hệ mái này không chỉ giúp thoát nước mưa cực tốt mà còn tạo ra một lớp đệm không khí cách nhiệt hiệu quả, giữ cho mẫu nhà mái Nhật 1 tầng luôn mát mẻ. Đặc biệt, ở góc nhìn từ trên cao xuống, chúng ta có thể thấy kiến trúc sư đã khéo léo thiết kế một khoảng sân thượng nhỏ phía sau để đặt bồn nước inox và hệ thống thái dương năng, vừa đảm bảo tính thẩm mỹ cho mặt tiền, vừa đáp ứng nhu cầu sinh hoạt thiết yếu.
Nghệ Thuật Phối Màu và Khối Kiến Trúc
Toàn bộ ngoại thất của mẫu nhà mái Nhật 1 tầng được khoác lên mình chiếc áo màu trắng sứ tinh khôi, kết hợp với các mảng tường nhấn màu be (beige) nhạt ở khu vực dưới mái và dọc theo các ô cửa sổ. Sự kết hợp này mang lại cảm giác ấm áp, thanh lịch và không bao giờ lỗi mốt.
Hệ thống cột trụ vuông vức ở sảnh chính được thiết kế tối giản, không hoa văn cầu kỳ rườm rà nhưng lại vô cùng khỏe khoắn. Phần chân tường và chân cột được ốp đá tự nhiên tối màu, không chỉ tạo điểm nhấn thị giác vững chãi cho phần đế của công trình mà còn giúp bảo vệ tường khỏi rêu mốc, bụi bẩn từ môi trường xung quanh.
Cửa Chính Gỗ Khối và Cửa Sổ Kính Hiện Đại
Một chi tiết không thể bỏ qua là hệ cửa. Cửa chính được làm bằng gỗ tự nhiên kích thước lớn với những đường vân và họa tiết chạm khắc hình bán nguyệt ghép lại tạo thành một vòng tròn hoàn hảo ở giữa, biểu tượng cho sự viên mãn và đoàn tụ. Trong khi đó, toàn bộ hệ thống cửa sổ lại sử dụng khung nhôm kính xingfa màu đen cao cấp. Kính cường lực diện tích lớn giúp mẫu nhà mái Nhật 1 tầng này đón trọn vẹn ánh sáng tự nhiên, giúp không gian nội thất luôn bừng sáng và mang đến tầm nhìn rộng mở ra khu vườn xanh mát bên ngoài.

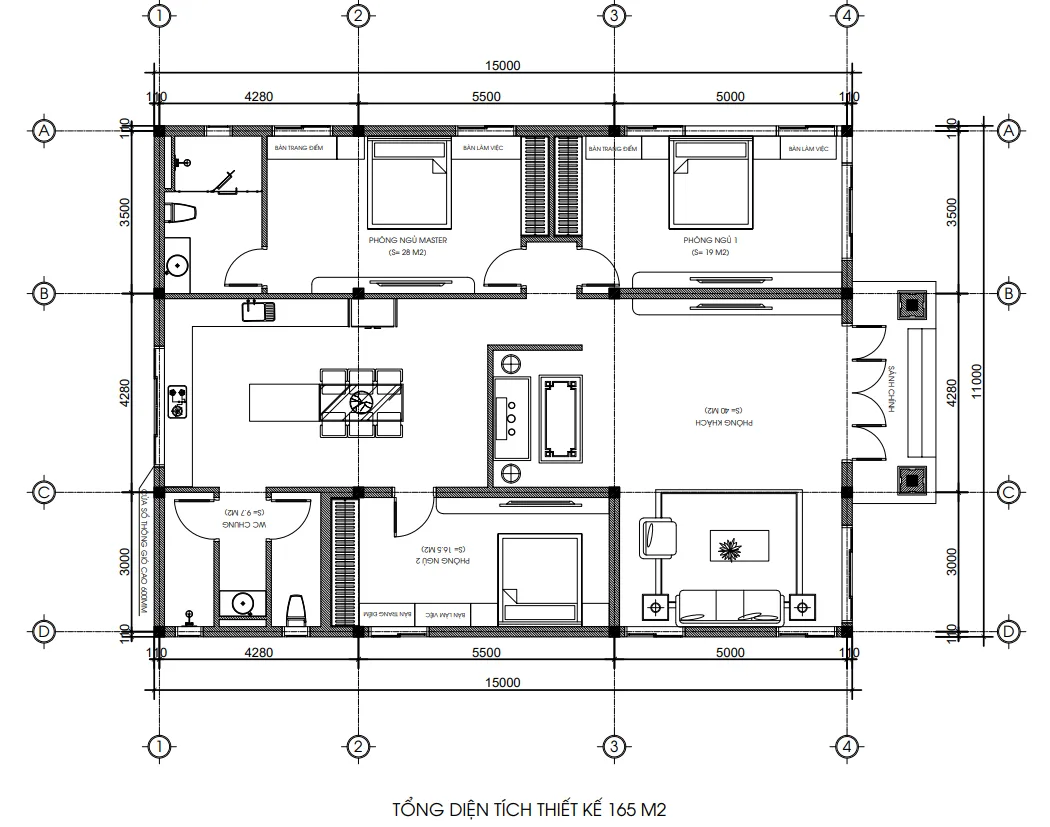
3. Khám Phá Phương Án Mặt Bằng Công Năng Tối Ưu
Cái đẹp của ngoại thất phải đi đôi với sự tiện dụng của nội thất. Nhìn vào bản vẽ phương án mặt bằng công năng , ta có thể thấy cách bố trí thông minh trên tổng diện tích thiết kế 165 m2.
Khu đất xây dựng có kích thước mặt tiền theo trục A-D là 11000 (11m) và chiều sâu theo trục 1-4 là 15000 (15m). Từng mét vuông trong mẫu nhà mái Nhật 1 tầng này đều được tính toán kỹ lưỡng:
-
Sảnh chính thẳng vào là phòng thờ và Phòng khách: Từ bên ngoài bước qua bậc tam cấp, chúng ta tiến vào khu vực Sảnh chính. Từ đây, mở ra một không gian phòng khách rộng rãi. Đây là trung tâm sinh hoạt chung, nơi kết nối mọi thành viên trong gia đình.
-
Khu vực Bếp và Phòng ăn: Nằm liên thông với phòng khách là khu vực bếp và bàn ăn cỡ lớn (được thể hiện qua hệ thống bàn ghế 6-8 chỗ ngồi trên bản vẽ). Thiết kế không gian mở này giúp ngôi nhà trở nên rộng rãi hơn thực tế và tạo sự tương tác dễ dàng giữa người nấu ăn và người ở phòng khách.
-
Khu vực nghỉ ngơi riêng tư: Không gian nghỉ ngơi được bố trí khéo léo để đảm bảo sự yên tĩnh. Công trình bao gồm:
-
Phòng ngủ Master: Có diện tích lên tới 28 m2. Đây là không gian riêng tư rộng rãi nhất, được bố trí đầy đủ tiện nghi bao gồm giường lớn, tủ quần áo, có riêng Bàn trang điểm và Bàn làm việc và WC riêng.
-
Phòng ngủ 1: Có diện tích 19 m2, vô cùng rộng rãi cho con cái . Phòng cũng được trang bị Bàn làm việc tiện dụng.
- Phòng ngủ 2: Có diện tích 16.5 m2, vô cùng rộng rãi cho con cái . Phòng cũng được trang bị Bàn làm việc và bàn trang điểm tiện dụng.
-
-
Khu vực Vệ sinh chung (WC chung): Được bố trí ở góc cuối nhà, gần các trục lưới cột để đảm bảo tính thẩm mỹ, phong thủy và sự thuận tiện trong sinh hoạt.
Sự phân bổ dọc theo các lưới trục tọa độ với các khoảng cách chính xác như 4280, 3500, 3000, 5500, 5000 cho thấy sự chuẩn xác tuyệt đối trong thiết kế kỹ thuật của Techhome. Từng luồng giao thông (hành lang di chuyển) bên trong mẫu nhà mái Nhật 1 tầng đều được thiết kế mạch lạc, không góc chết, đảm bảo sự lưu thông vượng khí cực kỳ tốt theo phong thủy.

4. Kinh Nghiệm Vàng Từ Chuyên Gia Techhome
Với tư cách là người viết website cho Techhome và thường xuyên đồng hành cùng các kiến trúc sư, kỹ sư, tôi muốn chia sẻ vài “bí kíp” thực tế nếu bạn định xây một mẫu nhà mái Nhật 1 tầng:
-
Chú trọng tỷ lệ độ dốc của mái: Mái Nhật đẹp nhất khi có độ dốc từ 25 – 30 độ. Nếu dốc quá sẽ thành mái Thái, nếu thấp quá sẽ mất đi vẻ bề thế và khả năng thoát nước bị hạn chế.
-
Lựa chọn vật liệu phù hợp: Với mẫu nhà mái Nhật 1 tầng, sự giao thoa giữa truyền thống (gỗ, ngói) và hiện đại (kính, nhôm xingfa, đá ốp) là chìa khóa. Hãy mạnh dạn sử dụng kính cường lực lớn để kết nối không gian bên trong với sân vườn.
-
Hệ thống thông gió tự nhiên: Dù là nhà 1 tầng, bạn vẫn cần lưu ý bố trí các ô thoáng, cửa sổ chéo nhau để gió có thể luân chuyển xuyên phòng, hạn chế tình trạng bí bách, ẩm mốc.
-
Thiết kế móng vững chắc: Dù tải trọng không lớn như nhà cao tầng, nhưng một mẫu nhà mái Nhật 1 tầng có diện tích dàn trải rộng (165m2) rất cần một nền móng vững chắc, xử lý chống thấm ngược kỹ càng để công trình bền bỉ hàng chục năm.

5. Báo Giá Thiết Kế Và Thi Công Trọn Gói Mới Nhất 2026
Vấn đề tài chính luôn là rào cản lớn khiến nhiều người chần chừ. Tại Kiến trúc Techhome, chúng tôi đề cao sự minh bạch. Chi phí xây dựng một mẫu nhà mái Nhật 1 tầng sẽ phụ thuộc vào nhiều yếu tố: giá vật tư tại địa phương (Hải Phòng sẽ có đơn giá khác với Hà Nội hay các tỉnh khác), chất lượng vật liệu hoàn thiện (cửa gỗ Lim sẽ khác cửa nhôm, ngói tráng men cao cấp sẽ khác ngói màu thông thường), và điều kiện thi công.
Tuy nhiên, để quý khách có cái nhìn tổng quan, techhome xin cung cấp bảng báo giá dự toán cơ bản cho một mẫu nhà mái Nhật 1 tầng (diện tích tương đương 165m2) năm 2026:
| Hạng Mục Thi Công | Đơn Giá Tham Khảo (VNĐ/m2) | Ghi Chú Chi Tiết |
| Gói Thiết Kế Kiến Trúc | 108.000 | Bao gồm 3D ngoại thất, hồ sơ kỹ thuật, điện nước, kết cấu. |
| Gói Xây Dựng Phần Thô | 3.800.000 – 4.200.000 | Bao gồm móng, khung cột, tường bao, mái ngói, nhân công hoàn thiện thô. |
| Gói Thi Công Trọn Gói (Chìa Khóa Trao Tay) | 6.500.000 – 8.000.000 | Bao gồm phần thô + hoàn thiện nội – ngoại thất (gạch ốp lát, thiết bị vệ sinh, sơn, trần thạch cao, cửa kính…). Chưa bao gồm đồ nội thất rời (giường, tủ). |
Để sở hữu một mẫu nhà mái Nhật 1 tầng rộng rãi, khang trang với 165m2 thiết kế như của gia đình anh Tuyền, mức đầu tư trọn gói sẽ rơi vào khoảng 1.1 đến 1.3 tỷ đồng. Đây là một con số hoàn toàn xứng đáng cho một không gian sống đẳng cấp, bền vững và trường tồn cùng thời gian.
Lưu ý: Đây chỉ là mức chi phí ước tính. Để nhận được báo giá chính xác và chi tiết nhất cho công trình của bạn, vui lòng liên hệ trực tiếp với chúng tôi. Hoặc để tìm hiểu rõ hơn về tiêu chuẩn vật liệu xây dựng và các yếu tố ảnh hưởng đến chi phí, bạn có thể tham khảo thêm tại các bài viết chuyên sâu về vật liệu xây dựng cao cấp trên Wikipedia.

6. Tại Sao Nên Chọn Techhome Kiến Tạo Tổ Ấm Của Bạn?
Hành trình xây nhà là hành trình của đời người. Nó đòi hỏi rất nhiều tiền bạc, thời gian và công sức. Việc chọn sai đơn vị nhà thầu có thể khiến bạn mệt mỏi và nhận về những kết quả không như ý. Khi lựa chọn Kiến trúc Techhome làm đơn vị đồng hành thiết kế và thi công mẫu nhà mái Nhật 1 tầng cho gia đình, bạn đang lựa chọn sự an tâm tuyệt đối.
Chúng tôi cam kết:
-
Bản vẽ chính xác, minh bạch: Từng thông số kỹ thuật, từ tổng diện tích 165 m2 cho đến từng chi tiết nội dung điều chỉnh đều được kiểm soát gắt gao.
-
Thiết kế sáng tạo, không sao chép: Mỗi mẫu nhà mái Nhật 1 tầng là một câu chuyện riêng, mang đậm dấu ấn cá nhân của gia chủ.
-
Hỗ trợ kỹ thuật 24/7: Chúng tôi luôn sát cánh cùng bạn từ khi đặt những viên gạch đầu tiên cho đến khi hoàn thiện. Hotline hỗ trợ tư vấn kỹ thuật xây dựng: 036.273.2222 luôn sẵn sàng tiếp nhận yêu cầu.

Nhà không chỉ là nơi để che nắng che mưa, mà là nơi lưu giữ những khoảnh khắc hạnh phúc nhất của gia đình. Công trình nhà anh Tuyền tại Hải Phòng là một minh chứng rõ nét cho năng lực và cái tâm làm nghề của đội ngũ Techhome.
Nếu bạn đã trót yêu vẻ đẹp bề thế, thanh lịch và không gian sống tiện nghi của mẫu nhà mái Nhật 1 tầng, đừng để ước mơ đó chỉ nằm trên giấy. Hãy để Techhome giúp bạn biến nó thành hiện thực.
CÔNG TY CỔ PHẦN KIẾN TRÚC VÀ XÂY DỰNG TECHHOME
🏠 Website: https://nhadeptechhome.vn/
☎️ Hotline: 036.273.2222
📍 Địa chỉ: B1.1 LK18 Ô 3 – KĐT Thanh Hà – Cienco 5 – Thanh Oai- Hà Nội.
