Việc sở hữu một mảnh đất rộng ở quê và mong muốn xây dựng một không gian sống vừa hiện đại, vừa gần gũi với thiên nhiên là niềm mơ ước của nhiều người. Anh Sơn tại Hà Tĩnh cũng không ngoại lệ. Sau nhiều lần tìm kiếm ý tưởng, anh đã quyết định lựa chọn mẫu nhà mái Nhật 1 tầng 3 phòng ngủ do đội ngũ Kiến trúc Techhome tư vấn và thiết kế. Đây không chỉ là một công trình nhà ở thông thường, mà là sự kết tinh giữa gu thẩm mỹ tinh tế và giải pháp công năng thông minh cho gia đình nhiều thế hệ.
1. Tại sao mẫu nhà mái Nhật 1 tầng 3 phòng ngủ lại “gây sốt” tại Hà Tĩnh?
Hà Tĩnh là vùng đất chịu nhiều ảnh hưởng của thời tiết khắc nghiệt, từ cái nắng cháy da của gió Lào đến những cơn mưa dầm dề. Chính vì vậy, việc lựa chọn mẫu nhà mái Nhật 1 tầng 3 phòng ngủ là một bước tính toán cực kỳ hợp lý. Hệ mái Nhật với độ dốc vừa phải giúp thoát nước nhanh, chống thấm tốt, đồng thời tạo ra lớp đệm không khí cách nhiệt hoàn hảo cho không gian bên dưới.
Khác với mái Thái có độ dốc lớn, mái Nhật mang vẻ đẹp nhẹ nhàng, thanh thoát nhưng vẫn toát lên vẻ sang trọng. Khi kết hợp với diện tích 160m2 của gia đình anh Sơn, ngôi nhà hiện lên như một biệt thự vườn mini giữa lòng phố huyện.

2. Phân tích kiến trúc ngoại thất: Sự giao thoa giữa hiện đại và truyền thống
Nhìn vào phối cảnh 3D, bạn sẽ thấy sự chỉn chu trong từng đường nét. Mẫu nhà mái Nhật 1 tầng 3 phòng ngủ này sử dụng tông màu chủ đạo là trắng sứ kết hợp với các mảng tường trang trí tông nâu gỗ và xám đen ở phần chân đế.
Hệ cột trụ vững chãi
Điểm nhấn đầu tiên chính là hệ cột vuông to bản tại sảnh chính. Phần thân cột được ốp đá trang trí màu nâu vân đá, tạo cảm giác kiên cố và bề thế cho mặt tiền. Việc sử dụng đá ốp không chỉ tăng tính thẩm mỹ mà còn giúp bảo vệ công trình trước tác động của môi trường, tránh tình trạng rêu mốc thường thấy ở các mảng tường sơn.
Hệ thống cửa và ánh sáng
Techhome đã tư vấn cho anh Sơn sử dụng hệ cửa chính bằng gỗ tự nhiên cao cấp với họa tiết chạm khắc đơn giản nhưng tinh xảo, tạo sự ấm cúng và bề thế ngay từ lối vào. Ngược lại, các hệ cửa sổ lại sử dụng nhôm kính xingfa cao cấp để tối ưu ánh sáng tự nhiên, giúp không gian 160m2 luôn thông thoáng và tràn ngập sinh khí.

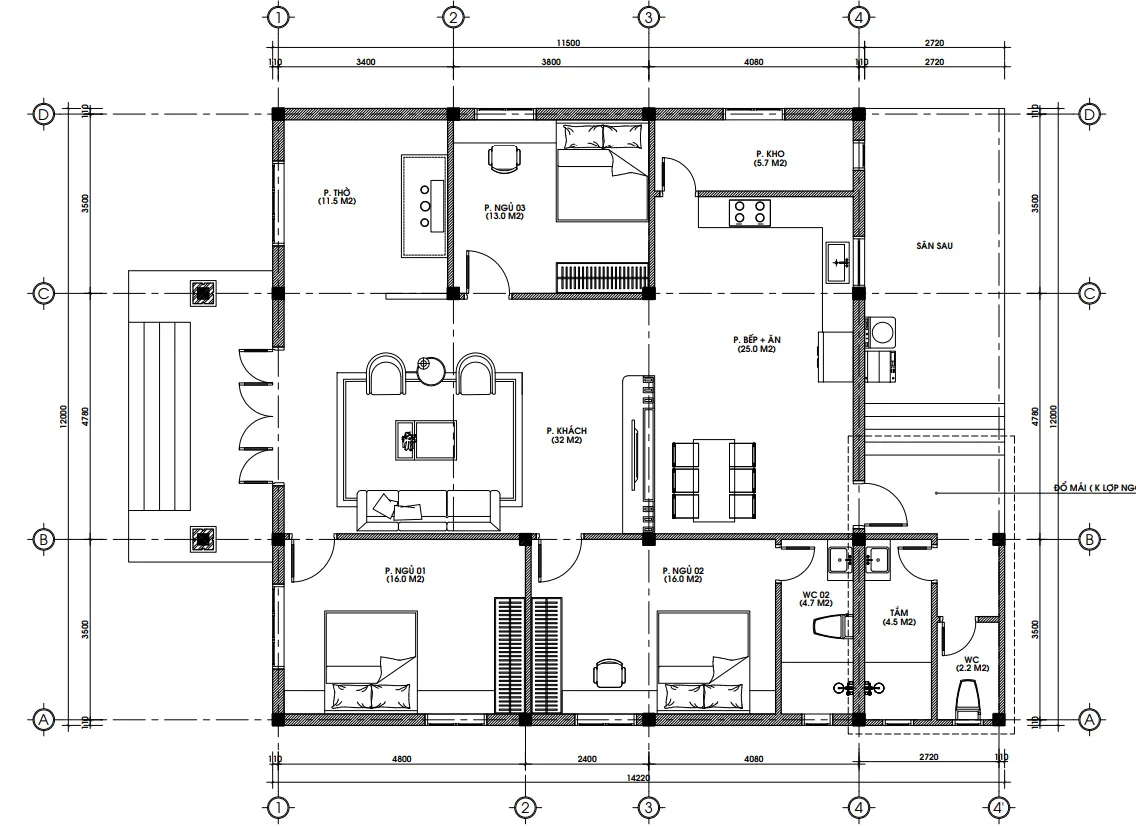
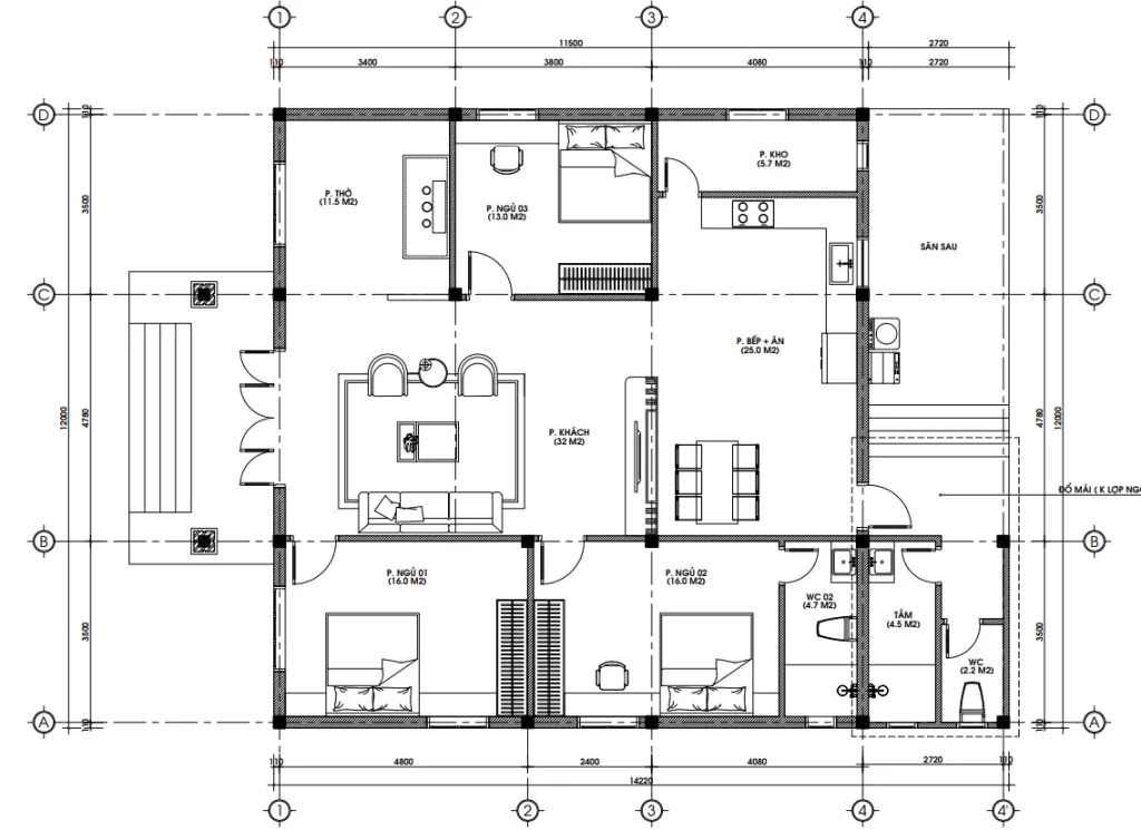
3. Bản vẽ công năng: Tối ưu đến từng centimet vuông
Một mẫu nhà mái Nhật 1 tầng 3 phòng ngủ đẹp thôi chưa đủ, nó phải thực sự “dễ ở”. Với diện tích 160m2, các kiến trúc sư Techhome đã bố trí mặt bằng công năng cực kỳ khoa học:
-
Phòng khách (32m2): Nằm ngay sau sảnh chính, đây là trung tâm của ngôi nhà, nơi đón tiếp khách và cũng là không gian sinh hoạt chung lớn nhất.
-
Phòng thờ (11.5m2): Được đặt ở vị trí trang trọng, tách biệt vừa đủ để đảm bảo sự yên tĩnh và tôn nghiêm.
-
3 Phòng ngủ: * Phòng ngủ 01 và 02 đều có diện tích 16m2. Trong đó phòng ngủ 02 tích hợp vệ sinh khép kín.
-
Phòng ngủ 03 diện tích 13m2.
-
Việc bố trí các phòng ngủ xung quanh không gian chung giúp các thành viên dễ dàng kết nối nhưng vẫn giữ được sự riêng tư cần thiết.
-
-
Khu vực Bếp + Ăn (25m2): Thiết kế mở, thông với sảnh phụ giúp việc đi chợ hay nấu nướng không bị ám mùi vào phòng khách.
-
Tiện ích khác: Nhà có phòng kho nhỏ (5.7m2) để chứa đồ đạc ít dùng và hệ thống vệ sinh được phân khu thông minh (WC riêng, khu tắm riêng) cực kỳ tiện lợi cho sinh hoạt hằng ngày.

4. Giải mã sức hút của không gian cao 4.1m
Trong hồ sơ kỹ thuật, bạn sẽ thấy thông số chiều cao tầng là 4.1m. Đây là một con số “vàng” cho mẫu nhà mái Nhật 1 tầng 3 phòng ngủ. Tại sao vậy?
Với chiều cao này, ngôi nhà sẽ cực kỳ thoáng đãng. Nó cho phép gia chủ thoải mái trang trí trần thạch cao giật cấp hay lắp đặt những bộ đèn chùm sang trọng mà không lo cảm giác bí bách. Đặc biệt tại Hà Tĩnh, trần cao giúp luân chuyển không khí tốt hơn, giảm bớt cái nóng trong những ngày hè cao điểm.
5. Báo giá thi công mẫu nhà mái Nhật 1 tầng 3 phòng ngủ (Tham khảo 2026)
Để bạn có cái nhìn thực tế về chi phí, Techhome xin đưa ra bảng dự toán tham khảo cho mẫu nhà mái Nhật 1 tầng 3 phòng ngủ diện tích 160m2:
| Hạng mục | Đơn giá tham khảo (VNĐ/m2) | Thành tiền ước tính (Cho 160m2) |
| Thi công phần thô | 3.500.000 – 4.000.000 | 560.000.000 – 640.000.000 |
| Thi công hoàn thiện (Gói cơ bản) | 6.000.000 – 6.500.000 | 960.000.000 – 1.040.000.000 |
| Thi công hoàn thiện (Gói cao cấp) | 7.000.000 – 7.500.000 | 1.120.000.000 – 1.200.000.000 |
Lưu ý: Đây chỉ là mức chi phí ước tính. Để nhận được báo giá chính xác và chi tiết nhất cho công trình của bạn, vui lòng liên hệ trực tiếp với chúng tôi. Hoặc để tìm hiểu rõ hơn về tiêu chuẩn vật liệu xây dựng và các yếu tố ảnh hưởng đến chi phí, bạn có thể tham khảo thêm tại các bài viết chuyên sâu về vật liệu xây dựng cao cấp trên Wikipedia.

6. Góc chuyên gia: Lời khuyên khi xây dựng mẫu nhà mái Nhật 1 tầng 3 phòng ngủ
Là một đơn vị có nhiều năm kinh nghiệm tại khu vực miền Trung, Techhome muốn chia sẻ thêm vài “bí kíp” để ngôi nhà của bạn hoàn hảo hơn:
-
Xử lý nền móng: Với mẫu nhà mái Nhật 1 tầng 3 phòng ngủ, dù tải trọng không quá lớn như nhà cao tầng nhưng bạn không nên chủ quan. Cần khảo sát kỹ địa chất để chọn móng băng hay móng cọc cho phù hợp.
-
Lựa chọn ngói: Nên dùng ngói màu cao cấp có độ bền màu trên 20 năm. Màu xanh đen hoặc xanh than là lựa chọn tối ưu cho kiến trúc Nhật vì nó mang lại vẻ sang trọng, trầm mặc.
-
Hệ thống sân vườn: Đừng quên để dành một phần ngân sách cho sân vườn. Một mẫu nhà mái Nhật 1 tầng 3 phòng ngủ sẽ thực sự bừng sáng nếu có thảm cỏ xanh, vài khóm hoa và hàng rào trắng bao quanh như bản vẽ của anh Sơn.
-
Phong thủy: Hãy chú ý đến hướng bếp và hướng bàn thờ. Như trong bản vẽ này, Techhome đã tính toán để các cung chức năng không phạm nhau, giúp gia chủ an tâm về mặt tâm linh.

7. Techhome – Đơn vị thiết kế và thi công trọn gói uy tín
Chúng tôi hiểu rằng, mỗi viên gạch đặt xuống là một kỳ vọng của khách hàng. Khi bạn chọn mẫu nhà mái Nhật 1 tầng 3 phòng ngủ tại Techhome, bạn sẽ nhận được:
-
Hồ sơ thiết kế kỹ thuật thi công chi tiết, chuẩn xác.
-
Sự tư vấn tận tâm từ đội ngũ kiến trúc sư, kỹ sư giàu kinh nghiệm
-
Hỗ trợ kỹ thuật 24/7 qua hotline: 0364042222 – 0387603333.
Việc lựa chọn mẫu nhà mái Nhật 1 tầng 3 phòng ngủ không chỉ là chạy theo xu hướng, mà là chọn một phong cách sống bền vững, tiện nghi và đậm chất riêng.
8. Những hình ảnh thực tế và đánh giá từ gia chủ
Anh Sơn chia sẻ: “Lúc đầu mình cũng đắn đo giữa nhà mái thái và nhà mái nhật. Nhưng khi thấy bản vẽ mẫu nhà mái Nhật 1 tầng 3 phòng ngủ 160m2 của Techhome, mình ưng ngay vì nó nhìn rất hiện đại mà lại gần gũi. Sau khi hoàn thiện, hàng xóm ai cũng khen nhà nhìn sang và thoáng quá.”
Những đánh giá chân thực này chính là động lực để Techhome tiếp tục sáng tạo và mang đến nhiều mẫu nhà mái Nhật 1 tầng 3 phòng ngủ đẹp hơn nữa cho khách hàng trên khắp cả nước.

Kết luận
Hy vọng qua bài viết này, bạn đã có thêm cái nhìn chi tiết về mẫu nhà mái Nhật 1 tầng 3 phòng ngủ của gia đình anh Sơn tại Hà Tĩnh. Nếu bạn đang sở hữu một mảnh đất và muốn biến nó thành không gian sống lý tưởng, đừng ngần ngại liên hệ với Techhome.
Chúng tôi không chỉ bán bản vẽ, chúng tôi cùng bạn xây dựng tương lai. Một mẫu nhà mái Nhật 1 tầng 3 phòng ngủ hoàn hảo đang chờ đợi ý tưởng từ chính bạn!
Câu hỏi thường gặp về mẫu nhà mái Nhật 1 tầng 3 phòng ngủ:
-
Diện tích tối thiểu để xây là bao nhiêu? Thường từ 120m2 trở lên để đảm bảo các phòng chức năng không quá chật chội.
-
Thời gian thi công là bao lâu? Trung bình từ 3.5 đến 5 tháng tùy vào điều kiện thời tiết.
-
Chi phí thiết kế tại Techhome thế nào? Hãy liên hệ hotline để nhận báo giá ưu đãi nhất cho mẫu nhà mái Nhật 1 tầng 3 phòng ngủ ngay hôm nay!
Thông tin liên hệ:
-
Website: https://nhadeptechhome.vn/
-
Hotline: 036.273.2222
-
Địa chỉ: B1.1 LK18 Ô 3 – KĐT Thanh Hà – Cienco 5 – Thanh Oai- Hà Nội.
