Xây nhà phố ở Hà Nội chưa bao giờ là bài toán dễ dàng. Làm sao để trên diện tích hơn 60 m2, chúng ta vừa có đủ 4 phòng ngủ cho cả đại gia đình, vừa có khoảng thở, vừa phải “ngầu” để hàng xóm đi qua phải ngoái nhìn?
Hôm nay, Techhome sẽ giới thiệu đến bạn một “siêu phẩm” thực tế: Mẫu nhà phố 2 tầng 1 tum hiện đại của gia đình anh Tài. Đây không chỉ là một bản vẽ, mà là một lời giải thông minh cho bài toán diện tích và công năng.
1. Tổng quan dự án: Khi sự tối giản lên ngôi
Công trình nhà anh Tài được thiết kế trên lô đất có mặt tiền rộng 5.4m và chiều sâu 12.5m. Với kích thước này, đội ngũ KTS Techhome đã lựa chọn phong cách tối giản hiện đại. Không rườm rà hoa văn, điểm nhấn của mẫu nhà phố 2 tầng 1 tum hiện đại này nằm ở những khối hình học vuông vức, sự kết hợp giữa kính cường lực, đá tự nhiên và những mảng xanh điểm xuyết.
-
Chủ đầu tư: Anh Tài.
-
Địa điểm: Hà Nội.
-
Đơn vị thiết kế: Công ty Cổ phần Kiến trúc và Xây dựng Techhome.
-
Tổng diện tích sàn xây dựng: Khoảng 171 m2 (chưa tính mái).

2. Phân tích công năng: Tối ưu đến từng centimet
Nhiều người sợ rằng nhà diện tích nhỏ mà nhồi nhét nhiều phòng sẽ gây bí bách. Nhưng nhìn vào cách Techhome bố trí mẫu nhà phố 2 tầng 1 tum hiện đại này, bạn sẽ thấy sự khác biệt.
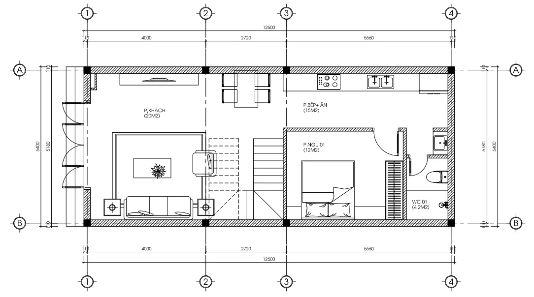
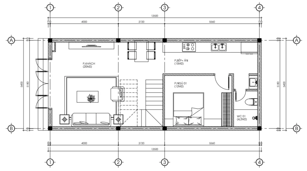
Tầng 1: Không gian sinh hoạt chung ấm cúng
Mặt bằng tầng 1 (67.5 m2) được chia làm 3 khu vực chính:
-
Phòng khách (20 m2): Nằm ngay cửa chính, rộng rãi đủ để anh Tài tiếp khách hoặc cả nhà quây quần xem bóng đá.
-
Bếp & Phòng ăn (15 m2): Thiết kế liên thông với phòng khách để tạo cảm giác không gian dài và thoáng hơn.
-
Phòng ngủ 01 (12 m2): Đây là điểm cộng lớn. Việc có một phòng ngủ ở tầng 1 cực kỳ phù hợp cho gia đình có người già hoặc khách đến chơi nhà nghỉ lại.

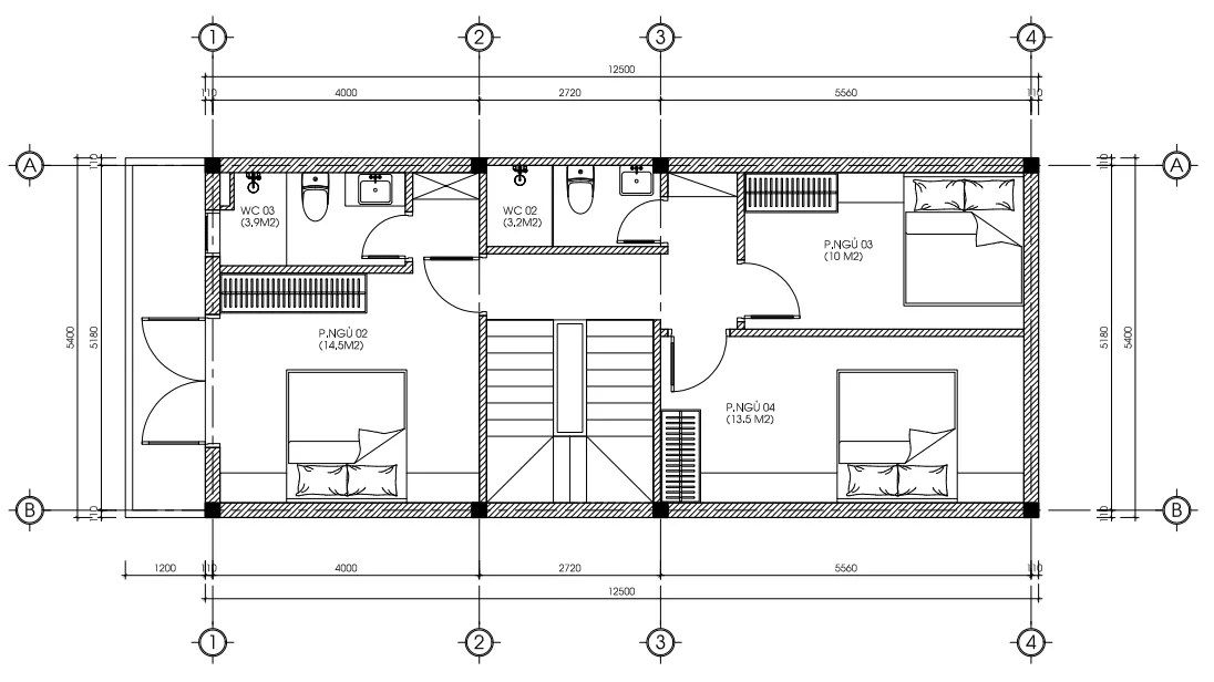
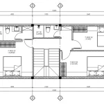
Tầng 2: “Lãnh địa” riêng tư với 3 phòng ngủ
Tầng 2 (73.5 m2) là nơi nghỉ ngơi hoàn toàn của gia đình:
-
Phòng ngủ Master (14.5 m2): Có ban công rộng, view nhìn ra phố, tích hợp WC riêng tiện lợi.
-
2 Phòng ngủ nhỏ (10 m2 và 13.5 m2): Dành cho con cái, đảm bảo sự yên tĩnh để học tập và phát triển.

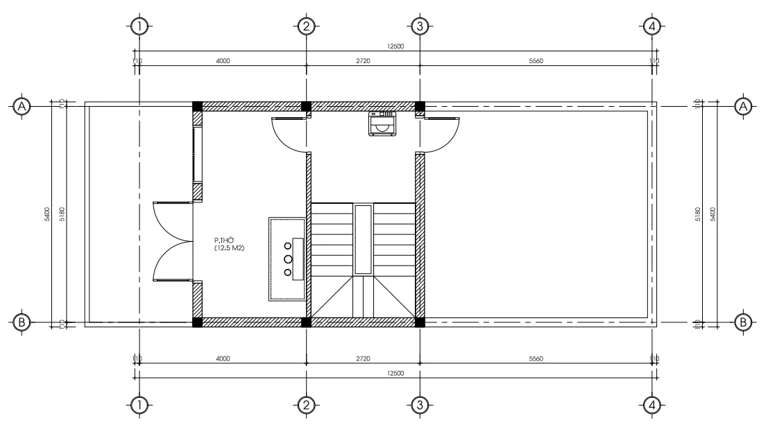
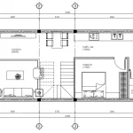
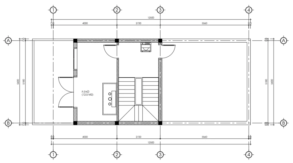
Tầng tum: Nơi kết nối tâm linh và thư giãn
Tầng tum (30 m2) bao gồm phòng thờ trang trọng (12.5 m2) hướng ra phía trước. Phần diện tích còn lại là sân thượng phía sau – nơi bạn có thể trồng một vườn rau nhỏ, đặt bộ bàn ghế chill vào cuối tuần hoặc đơn giản là khu vực giặt phơi kín đáo.

3. Tại sao mẫu nhà phố 2 tầng 1 tum hiện đại lại “hot” đến vậy?
Không phải ngẫu nhiên mà từ khóa mẫu nhà phố 2 tầng 1 tum hiện đại lại đứng top tìm kiếm trên Pinterest và Facebook.
-
Tiết kiệm chi phí: So với xây 3 tầng full, việc xây thêm tum giúp bạn có thêm phòng thờ và sân thượng mà chi phí chỉ bằng 1/2 so với lên hẳn một tầng thật.
-
Chống nóng hiệu quả: Tầng tum đóng vai trò như một lớp đệm cách nhiệt cho các phòng ngủ ở tầng 2.
-
Thẩm mỹ trẻ trung: Kiến trúc giật cấp giúp mặt tiền căn nhà trông cao ráo, thanh thoát hơn hẳn.

4. Chi tiết kiến trúc và vật liệu sử dụng
Nhìn vào phối cảnh 3D, bạn sẽ thấy Techhome sử dụng gam màu trắng sứ chủ đạo, kết hợp với đá ốp vân mây xám ở tầng 1 để tạo cảm giác vững chãi. Hệ thống đèn LED âm trần và đèn tường được bố trí cực kỳ tinh tế, giúp mẫu nhà phố 2 tầng 1 tum hiện đại này nổi bật lung linh khi đêm về.
Hệ cửa nhôm Xingfa kính cường lực là sự lựa chọn không thể thiếu để đón ánh sáng. Ban công kính giúp mở rộng tầm nhìn, khiến ngôi nhà trông rộng hơn so với thực tế 5.4m chiều ngang.

5. Báo giá tham khảo thiết kế và thi công (Năm 2026)
Techhome hiểu rằng, khi tìm kiếm một mẫu nhà phố 2 tầng 1 tum hiện đại, điều bạn quan tâm nhất chính là ngân sách. Dưới đây là bảng giá ước tính để bạn dễ dàng hình dung:
| Hạng mục | Đơn giá tham khảo | Ghi chú |
| Thiết kế kiến trúc & Kết cấu | 108.000 VNĐ/m2 | Bao gồm hồ sơ thi công, phối cảnh 3D, điện nước |
| Thi công phần thô | 3.500.000 – 4.200.000 VNĐ/m2 | Bao gồm nhân công và vật tư thô (gạch, cát, đá, thép…) |
| Thi công trọn gói (Chìa khóa trao tay) | 6.500.000 – 7.500.000 VNĐ/m2 | Tùy vào mức độ đầu tư vật liệu hoàn thiện |
Lưu ý: Đây chỉ là mức chi phí ước tính. Để nhận được báo giá chính xác và chi tiết nhất cho công trình của bạn, vui lòng liên hệ trực tiếp với chúng tôi. Hoặc để tìm hiểu rõ hơn về tiêu chuẩn vật liệu xây dựng và các yếu tố ảnh hưởng đến chi phí, bạn có thể tham khảo thêm tại các bài viết chuyên sâu về vật liệu xây dựng cao cấp trên Wikipedia.

6. Lời khuyên từ chuyên gia Techhome khi xây nhà phố
Với kinh nghiệm hàng trăm công trình, mình xin chia sẻ vài “mẹo” để mẫu nhà phố 2 tầng 1 tum hiện đại của bạn hoàn hảo hơn:
-
Đừng quên giếng trời: Với chiều sâu 12.5m, bạn nên bố trí một khoảng giếng trời nhỏ ở khu vực cầu thang để đối lưu không khí.
-
Phong thủy phòng thờ: Trong mẫu nhà phố 2 tầng 1 tum hiện đại, phòng thờ ở tầng cao nhất là lý tưởng, nhưng tránh đặt ngay trên phía dưới là nhà vệ sinh của tầng 2.
-
Hệ thống thoát nước sân thượng: Hà Nội thường có những cơn mưa lớn, hãy đảm bảo máng thoát nước sân tum đủ lớn để tránh thấm dột.

7. Kết luận
Mẫu nhà phố 2 tầng 1 tum hiện đại của anh Tài chính là minh chứng cho việc: “Không có ngôi nhà nhỏ, chỉ có ngôi nhà chưa được tối ưu thiết kế”. Nếu bạn đang sở hữu một lô đất tương tự và muốn kiến tạo không gian sống mơ ước, đừng ngần ngại liên hệ với Techhome.
Chúng mình không chỉ bán bản vẽ, chúng mình cùng bạn xây dựng hạnh phúc!

CÔNG TY CỔ PHẦN KIẾN TRÚC VÀ XÂY DỰNG TECHHOME
-
Website: https://nhadeptechhome.vn/
-
Hotline: 036.273.2222
-
Địa chỉ: B1.1 LK18 Ô 3 – KĐT Thanh Hà – Cienco 5 – Thanh Oai- Hà Nội.
Mẫu nhà phố 2 tầng 1 tum hiện đại – Lựa chọn hàng đầu cho phố thị Việt!
