Chào các bạn, lại là đội ngũ Techhome đây! Nếu bạn đang sở hữu một mảnh đất phố không quá rộng, tầm 5-6m mặt tiền và đang đau đầu tìm kiếm một phương án xây dựng vừa túi tiền mà vẫn phải “sang – xịn – mịn”, thì bài viết này chính là dành cho bạn.
Hôm nay, Techhome muốn dẫn các bạn về thăm mảnh đất Nghệ An nắng gió để chiêm ngưỡng một mẫu nhà phố 2 tầng hiện đại mà chúng tôi vừa bàn giao hồ sơ thiết kế cho gia đình Anh Hiếu. Đây không chỉ là một bản vẽ, mà là lời giải cho bài toán: “Làm sao để sống thoải mái trong diện tích 60m2 mỗi sàn?”.
1. Câu chuyện về ngôi nhà của Anh Hiếu tại Nghệ An
Nói thật với các bạn, khi anh Hiếu tìm đến Techhome, anh có chia sẻ rất chân thật: “Anh không cần nhà quá cầu kỳ, chỉ cần nó thoáng, đủ công năng cho vợ chồng và hai con, và quan trọng là chi phí phải nằm trong tầm kiểm soát”. Sau khi khảo sát thực tế và lắng nghe tâm tư của anh, đội ngũ kiến trúc sư đã kiến tạo nên một không gian sống mà theo anh Hiếu đánh giá là “vượt mong đợi”.
Với diện tích sàn khoảng 60.5 m2, ngôi nhà của anh Hiếu là minh chứng rõ nhất cho việc: Nhà không cần quá lớn, chỉ cần thiết kế thông minh.

2. Phân tích ngoại thất: Sự lên ngôi của phong cách tối giản
Nhìn vào phối cảnh 3D, các bạn sẽ thấy ngay sự thanh thoát. Mẫu nhà phố 2 tầng hiện đại này sử dụng tông màu trắng chủ đạo, điểm xuyết thêm các mảng nhựa giả gỗ ốp trần ban công để tạo điểm nhấn ấm cúng.
Hình khối kiến trúc mạnh mẽ
Điểm đặc biệt của ngôi nhà này chính là sự kết hợp giữa các khối hình học vuông vắn. Không có những phào chỉ rườm rà, thay vào đó là những đường nét dứt khoát. Hệ thống cửa nhôm kính Xingfa đen tuyền nổi bật trên nền sơn trắng, giúp ngôi nhà trông cực kỳ cá tính.
Ánh sáng và không gian xanh
Bạn có để ý phần ban công tầng 2 không? Một hệ lan can kính cường lực không chỉ giúp “ăn gian” diện tích mà còn giúp ánh sáng tràn ngập vào phòng thờ và phòng ngủ bên trong. Một góc nhỏ được dành riêng để trồng cây xanh, giúp giảm bớt cái nóng gay gắt của miền Trung.

3. Chi tiết công năng: “Nhỏ nhưng có võ”
Đây là phần mà mình tin là các bạn quan tâm nhất. Hãy cùng bóc tách bản vẽ kỹ thuật thi công mà Techhome đã thực hiện.
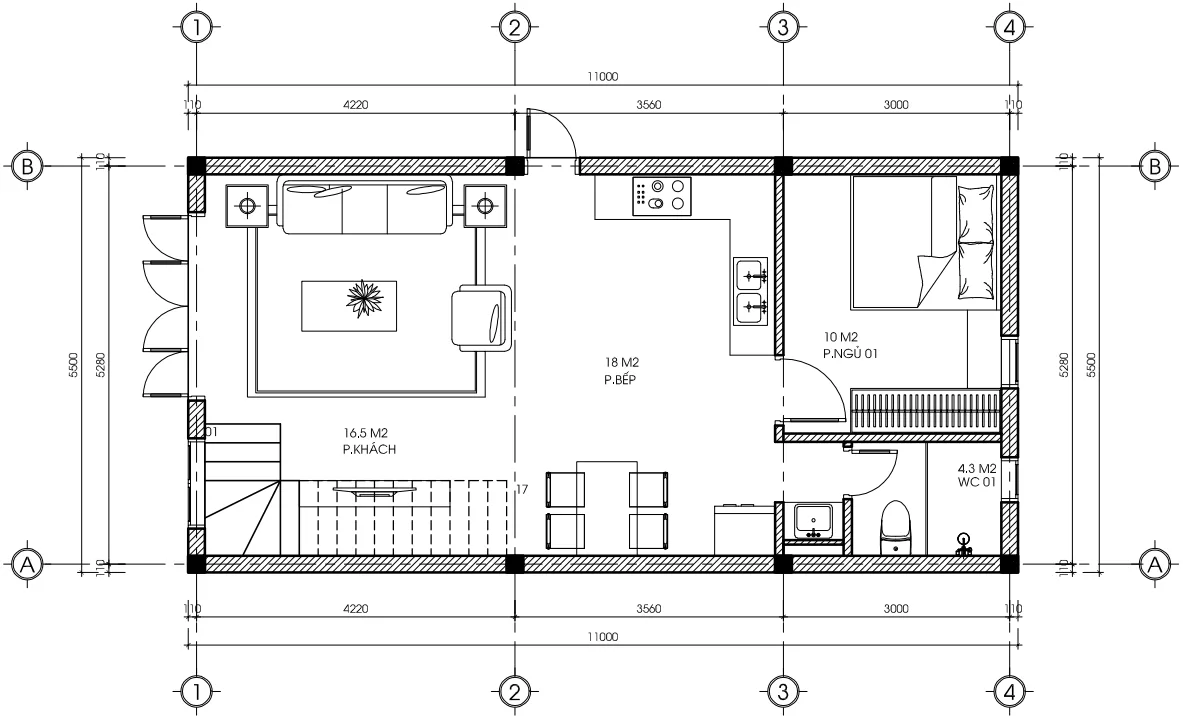
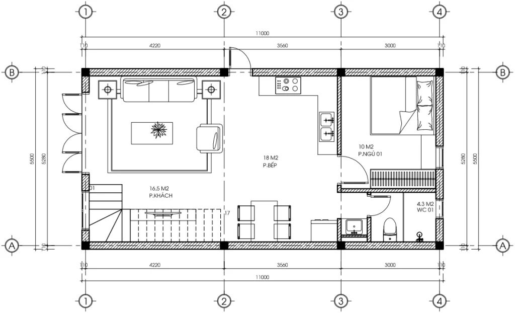
Mặt bằng tầng 1: Không gian sinh hoạt chung ấm cúng
Với diện tích 60.5 m2 và chiều cao tầng 3100 mm, tầng 1 được bố trí cực kỳ khoa học:
-
Phòng khách (16.5 m2): Ngay từ cửa chính đi vào là không gian tiếp khách rộng rãi. Hệ cửa 4 cánh giúp mở rộng tối đa tầm nhìn.
-
Phòng bếp & ăn (18 m2): Đây là “trái tim” của ngôi nhà. Việc thiết kế bếp liên thông với phòng khách giúp không gian trở nên cực kỳ thông thoáng.
-
Phòng ngủ 01 (10 m2): Dành cho ông bà hoặc gia chủ, đảm bảo sự riêng tư và hạn chế việc leo cầu thang.
-
WC 01 (4.3 m2): Được đặt gọn gàng cuối nhà, vừa tiện dụng vừa chuẩn phong thủy.

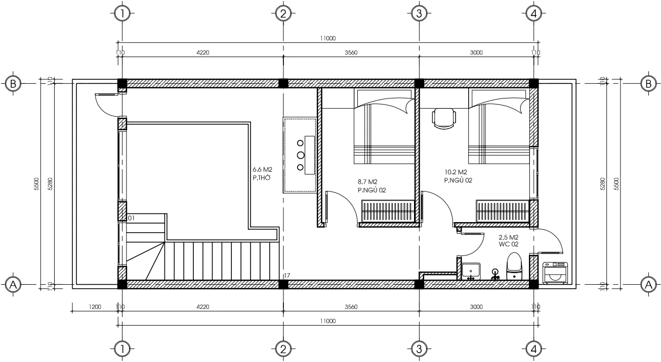
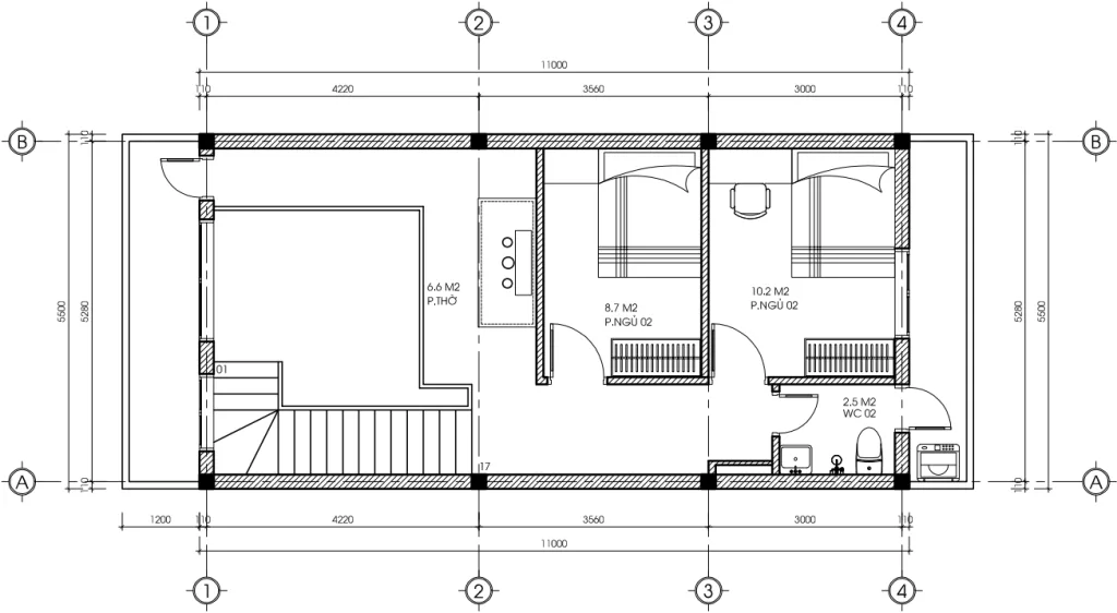
Mặt bằng tầng 2: Sự riêng tư lên ngôi
Tầng 2 có chiều cao 2900 mm, là nơi nghỉ ngơi chính của gia đình:
-
Phòng thờ (6.6 m2): Được đặt ở vị trí trang trọng nhất, hướng ra ban công để đón vượng khí.
-
Phòng ngủ 02 & 03 (8.7 m2 và 10.2 m2): Hai phòng ngủ dành cho các con được bố trí hợp lý, đảm bảo ánh sáng tự nhiên từ cửa sổ bên hông.
-
WC 02 (2.5 m2): Tối ưu diện tích để dành không gian cho các phòng chức năng khác.
Một điểm cộng rất lớn trong thiết kế của mẫu nhà phố 2 tầng hiện đại này là việc bố trí cầu thang 17 bậc. Theo quan niệm phong thủy, số 17 rơi vào cung “Sinh”, mang lại may mắn và sức khỏe cho gia chủ.

4. Tại sao mẫu nhà phố 2 tầng hiện đại lại là xu hướng năm 2026?
Không phải ngẫu nhiên mà mọi người lại “phát cuồng” vì phong cách này. Có 3 lý do chính:
-
Tiết kiệm chi phí: So với nhà mái Thái hay mái Nhật, mái bằng và phong cách hiện đại giúp chủ nhà giảm bớt gánh nặng về chi phí vật liệu và nhân công trang trí.
-
Thời gian thi công nhanh: Với thiết kế tối giản, việc thi công phần thô và hoàn thiện sẽ được rút ngắn đáng kể.
-
Dễ dàng bảo trì: Các vật liệu như kính, nhôm, nhựa giả gỗ có độ bền cao và rất dễ vệ sinh.
Trong mẫu nhà phố 2 tầng hiện đại này, Techhome còn tư vấn anh Hiếu lắp đặt hệ thống năng lượng mặt trời và bồn nước inox trên mái, giúp tiết kiệm điện năng và chủ động nguồn nước sinh hoạt.

5. Báo giá tham khảo thiết kế và thi công
Mình biết, khi xem đến đây, câu hỏi lớn nhất của bạn là: “Nhà này hết bao nhiêu tiền?”. Techhome luôn minh bạch về tài chính để các bạn dễ dàng chuẩn bị.
| Hạng mục | Đơn giá (Tham khảo) | Tổng cộng (Tạm tính) |
| Thiết kế kiến trúc & Kết cấu | 108.000 đ/m2 | ~ 13 triệu VNĐ |
| Xây dựng phần thô | 3.500.000 – 4.000.000 đ/m2 | ~ 430 – 500 triệu VNĐ |
| Hoàn thiện (Chìa khóa trao tay) | 6.500.000 – 7.500.000 đ/m2 | ~ 790 – 900 triệu VNĐ |
Lưu ý: Đây chỉ là mức chi phí ước tính. Để nhận được báo giá chính xác và chi tiết nhất cho công trình của bạn, vui lòng liên hệ trực tiếp với chúng tôi. Hoặc để tìm hiểu rõ hơn về tiêu chuẩn vật liệu xây dựng và các yếu tố ảnh hưởng đến chi phí, bạn có thể tham khảo thêm tại các bài viết chuyên sâu về vật liệu xây dựng cao cấp trên Wikipedia.

6. Góc chuyên gia: Lời khuyên “xương máu” khi xây mẫu nhà phố 2 tầng hiện đại
Dưới góc độ là người làm nghề lâu năm, mình muốn nhắn nhủ các bạn vài điều:
Đừng tiết kiệm tiền thiết kế
Nhiều người nghĩ “mượn” bản vẽ trên mạng là xong. Nhưng bạn ơi, mỗi mảnh đất có một hướng nắng, hướng gió và nền địa chất khác nhau. Một hồ sơ thiết kế kỹ thuật thi công bài bản như của anh Hiếu sẽ giúp bạn tránh được những lỗi sơ đẳng như: thấm dột, nứt tường, hay ổ điện đặt sai chỗ.
Ưu tiên sự thông thoáng
Trong mẫu nhà phố 2 tầng hiện đại, giếng trời hay cửa sổ lớn không chỉ để cho đẹp. Nó giúp lưu thông khí, giảm nấm mốc và đặc biệt là cải thiện tâm trạng của người ở. Đừng vì tiếc một chút diện tích mà xây nhà kín cổng cao tường nhé.
Chọn đơn vị tư vấn có tâm
Kiến trúc Techhome không chỉ vẽ ra những ngôi nhà đẹp trên giấy. Chúng tôi đồng hành cùng gia chủ từ lúc động thổ đến khi vào nhà mới. Sự hài lòng của anh Hiếu tại Nghệ An chính là động lực để chúng tôi tiếp tục sáng tạo.

7. Kết luận
Ngôi nhà không chỉ là nơi để che nắng che mưa, nó là nơi lưu giữ những khoảnh khắc hạnh phúc nhất của gia đình. Với mẫu nhà phố 2 tầng hiện đại diện tích 60m2 này, Techhome hy vọng đã gợi mở cho bạn thêm những ý tưởng thú vị cho tổ ấm tương lai.
Nếu bạn đang ở Nghệ An, Hà Nội hay bất cứ đâu trên dải đất hình chữ S, chỉ cần bạn có ý tưởng, Techhome sẽ giúp bạn hiện thực hóa nó.
Mẫu nhà phố 2 tầng hiện đại – Lựa chọn thông minh cho cuộc sống tiện nghi!
THÔNG TIN LIÊN HỆ:
-
Công ty Cổ phần Kiến trúc và Xây dựng Techhome
-
Website: nhadeptechhome.vn
-
Hotline: 036.273.2222
-
Địa chỉ: B1.1 LK18 Ô 3 – KĐT Thanh Hà – Cienco 5 – Thanh Oai- Hà Nội.
