Mẫu Nhà Mái Nhật 4 Phòng Ngủ Tại Bắc Ninh: Không Gian Sống Lý Tưởng Cho Gia Đình Hiện Đại

Bạn đang tìm kiếm một mẫu nhà mái Nhật 4 phòng ngủ vừa mang nét sang trọng hiện đại, vừa giữ được sự ấm cúng, gần gũi với thiên nhiên? Dự án nhà ở gia đình của Cô Nam và Anh Tiến tại Phượng Sơn, Bắc Ninh chính là một ví dụ điển hình mà Tech Home muốn chia sẻ đến bạn hôm nay. Với diện tích thiết kế 131m2, đây không chỉ là một công trình kiến trúc, mà là thành quả của sự thấu hiểu giữa kiến trúc sư và gia chủ.

1. Tổng quan dự án mẫu nhà mái Nhật 4 phòng ngủ tại Phượng Sơn

Trước khi đi sâu vào chi tiết kiến trúc, hãy cùng điểm qua các thông số cơ bản của công trình này để bạn có cái nhìn tổng thể:

  • Chủ đầu tư: Cô Nam – Anh Tiến.

  • Địa điểm: Phượng Sơn, Bắc Ninh.

  • Đơn vị tư vấn thiết kế: Công ty Cổ phần Kiến trúc và Xây dựng Tech Home.

  • Diện tích thiết kế: 131 m2.

  • Diện tích sử dụng: 122 m2.

  • Loại hình: Nhà cấp 4 mái Nhật hiện đại.

  • Công năng chính: Phòng khách, phòng thờ, 4 phòng ngủ , 1 nhà vệ sinh.

Khi nhận yêu cầu về mẫu nhà mái Nhật 4 phòng ngủ này, đội ngũ Tech Home đã về trực tiếp Bắc Ninh để khảo sát địa hình. Chúng tôi nhận thấy gia chủ mong muốn một không gian thoáng đãng, tận dụng tối đa ánh sáng tự nhiên nhưng vẫn phải đảm bảo tính riêng tư cho từng thành viên.

Phối cảnh mặt tiền mẫu nhà mái Nhật 4 phòng ngủ hiện đại tại Phượng Sơn, Bắc Ninh.
Phối cảnh mặt tiền mẫu nhà mái Nhật 4 phòng ngủ hiện đại tại Phượng Sơn, Bắc Ninh.

2. Phân tích kiến trúc ngoại thất: Sự kết hợp hoàn hảo giữa hiện đại và truyền thống

Nhìn vào phối cảnh 3D, bạn sẽ thấy mẫu nhà mái Nhật 4 phòng ngủ này nổi bật với hệ mái màu xanh than lịch lãm. Khác với mái Thái có độ dốc lớn, mái Nhật có độ dốc vừa phải, tỏa ra các hướng, tạo nên vẻ thanh thoát và cân đối cho tổng thể ngôi nhà.

Hệ thống màu sắc và vật liệu

Chúng tôi sử dụng tone màu trắng chủ đạo cho các mảng tường, kết hợp với các đường kẻ chỉ âm tường tinh tế. Điểm nhấn nằm ở phần chân tường được ốp đá xám, không chỉ giúp công trình trông vững chãi hơn mà còn bảo vệ tường khỏi rêu mốc, bụi bẩn – một vấn đề thường gặp tại khí hậu miền Bắc.

Điểm nhấn mặt tiền

Cửa chính được làm bằng gỗ tự nhiên với các chi tiết chạm khắc đơn giản nhưng sang trọng. Hệ cửa sổ sử dụng khung nhôm kính xingfa cao cấp, giúp tối ưu diện tích đón sáng, giúp mẫu nhà mái Nhật 4 phòng ngủ luôn tràn ngập ánh sáng tự nhiên vào ban ngày.

Góc nghiêng mẫu nhà mái Nhật 4 phòng ngủ

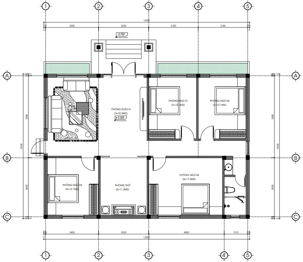
3. Bản vẽ công năng: Tối ưu đến từng centimet

Một mẫu nhà mái Nhật 4 phòng ngủ đẹp không chỉ ở cái mã bên ngoài mà quan trọng nhất là sự tiện nghi bên trong. Với diện tích sử dụng 122 m2, các phòng chức năng được sắp xếp cực kỳ khoa học:

  • Phòng khách (32.3 m2): Nằm ngay trung tâm sau sảnh chính. Đây là không gian rộng rãi nhất, nơi gia đình quây quần và tiếp đón khách khứa. Với diện tích hơn 30 m2, gia chủ có thể thoải mái bài trí những bộ sofa lớn hay kệ tivi hiện đại.

  • Phòng thờ (11.3 m2): Được đặt ở vị trí trang nghiêm, tách biệt vừa đủ để đảm bảo sự yên tĩnh nhưng vẫn kết nối với không gian chung.

  • Phòng ngủ Master (17.5 m2): Dành cho chủ nhân ngôi nhà với diện tích rộng rãi.

  • 3 Phòng ngủ phụ (12.1 m2): Phù hợp cho con cái , đảm bảo mỗi thành viên đều có không gian riêng tư thoải mái.

Thiết kế này của mẫu nhà mái Nhật 4 phòng ngủ giúp hành lang giao thông trong nhà luôn thông suốt, không có góc chết, tạo cảm giác diện tích thực tế rộng hơn so với con số trên bản vẽ.

Bản vẽ mặt bằng tầng 1 mẫu nhà mái Nhật 4 phòng ngủ diện tích thiết kế 131m2.
Bản vẽ mặt bằng tầng 1 mẫu nhà mái Nhật 4 phòng ngủ diện tích thiết kế 131m2.

4. Tại sao mẫu nhà mái Nhật 4 phòng ngủ lại “lên ngôi” tại Bắc Ninh?

Bắc Ninh là khu vực có tốc độ đô thị hóa nhanh, nhưng nhiều gia đình vẫn ưu tiên kiểu nhà vườn một tầng. Mẫu nhà mái Nhật 4 phòng ngủ đáp ứng được cả ba tiêu chí: Thẩm mỹ, Công năng và Chi phí.

  1. Phù hợp khí hậu: Hệ mái Nhật giúp thoát nước mưa nhanh, chống nóng tốt vào mùa hè và giữ ấm vào mùa đông.

  2. Tính kết nối: Việc sinh hoạt trên một mặt sàn giúp tăng tính gắn kết giữa các thành viên. Bố mẹ dễ dàng quan sát con cái, con cái thuận tiện chăm sóc ông bà.

  3. Hợp phong thủy: Với thiết kế vuông vức, mẫu nhà mái Nhật 4 phòng ngủ rất dễ để bố trí các hướng phòng theo mệnh của gia chủ, mang lại tài lộc và bình an.

Góc nghiêng mẫu nhà mái Nhật 4 phòng ngủ

5. Báo giá thi công mẫu nhà mái Nhật 4 phòng ngủ (Tham khảo 2026)

Để bạn dễ dàng hình dung và chuẩn bị tài chính, Tech Home xin đưa ra bảng dự toán tham khảo cho mẫu nhà mái Nhật 4 phòng ngủ tương tự dự án tại Bắc Ninh:

Hạng mục Đơn giá (VNĐ/m2) Thành tiền (Ước tính)
Thiết kế kiến trúc  108.000  14.148.000 
Thi công phần thô 3.500.000 – 4.000.000 ~ 460.000.000 – 520.000.000
Thi công hoàn thiện (Gói cơ bản) 6.000.000 – 6.500.000 ~ 790.000.000 – 850.000.000
Thi công trọn gói (Chìa khóa trao tay) 6.500.000 – 7.500.000 ~ 850.000.000 – 1.000.000.000

Lưu ý: Đây chỉ là mức chi phí ước tính. Để nhận được báo giá chính xác và chi tiết nhất cho công trình của bạn, vui lòng liên hệ trực tiếp với chúng tôi. Hoặc để tìm hiểu rõ hơn về tiêu chuẩn vật liệu xây dựng và các yếu tố ảnh hưởng đến chi phí, bạn có thể tham khảo thêm tại các bài viết chuyên sâu về vật liệu xây dựng cao cấp trên Wikipedia.

Tổng thể mẫu nhà mái Nhật 4 phòng ngủ nhìn từ trên cao với hệ mái xanh than sang trọng.
Tổng thể mẫu nhà mái Nhật 4 phòng ngủ nhìn từ trên cao với hệ mái xanh than sang trọng.

6. Quy trình làm việc chuyên nghiệp tại Tech Home

Khi lựa chọn thiết kế mẫu nhà mái Nhật 4 phòng ngủ tại Tech Home, quý khách sẽ trải qua quy trình 5 bước khép kín:

  1. Tiếp nhận & Tư vấn: Lắng nghe nhu cầu, sở thích và ngân sách của bạn.

  2. Khảo sát thực địa: Đo đạc diện tích, kiểm tra hướng đất tại Bắc Ninh hoặc các tỉnh lân cận.

  3. Lên ý tưởng & Mặt bằng: Kiến trúc sư trình bày phương án mặt bằng công năng cho mẫu nhà mái Nhật 4 phòng ngủ.

  4. Dựng phối cảnh 3D: Bạn sẽ được nhìn thấy ngôi nhà tương lai của mình một cách chân thực nhất.

  5. Bàn giao hồ sơ kỹ thuật: Bao gồm bản vẽ kiến trúc, kết cấu, điện nước chi tiết để tiến hành thi công.

Chúng tôi cam kết không phát sinh chi phí ngoài hợp đồng và luôn đồng hành cùng gia chủ cho đến khi công trình hoàn thiện.

Tổng thể mẫu nhà mái Nhật 4 phòng ngủ

7. Đánh giá từ chuyên gia: Những lưu ý khi xây dựng mẫu nhà mái Nhật 4 phòng ngủ

Dưới góc độ một đơn vị có nhiều năm kinh nghiệm, Tech Home khuyên bạn khi làm mẫu nhà mái Nhật 4 phòng ngủ cần chú ý:

  • Khoảng sân vườn: Nếu đất rộng, hãy để lại một khoảng làm sân và trồng cây xanh. Điều này giúp ngôi nhà “thở” tốt hơn và tạo cảnh quan đẹp.

  • Hệ thống thoát nước: Mái Nhật có nhiều đường giao nhau, cần xử lý chống thấm và thoát nước kỹ lưỡng ở các vị trí máng xối.

  • Lựa chọn nhà thầu: Đừng quá ham rẻ. Một mẫu nhà mái Nhật 4 phòng ngủ bền đẹp cần một đội ngũ thợ lành nghề và sự giám sát chặt chẽ từ kiến trúc sư.

Mẫu nhà mái Nhật 4 phòng ngủ của Cô Nam và Anh Tiến không chỉ là một công trình đẹp mà còn là minh chứng cho sự tận tâm của Tech Home. Chúng tôi hiểu rằng, mỗi ngôi nhà là một câu chuyện riêng, một tổ ấm thiêng liêng.

Nếu bạn đang ấp ủ dự định xây dựng một mẫu nhà mái Nhật 4 phòng ngủ tại Bắc Ninh hay bất cứ đâu, đừng ngần ngại ghé thăm website https://nhadeptechhome.vn/ hoặc gọi ngay cho chúng tôi. Đội ngũ kiến trúc sư Tech Home luôn sẵn sàng biến ý tưởng của bạn thành hiện thực với sự chân thành và tử tế nhất.

Tech Home – Kiến tạo không gian, dựng xây hạnh phúc!

☎️ Hotline: 036.273.2222

📍 Địa chỉ: B1.1 LK18 Ô 3 – KĐT Thanh Hà – Cienco 5 – Thanh Oai- Hà Nội.

Để lại một bình luận

Email của bạn sẽ không được hiển thị công khai. Các trường bắt buộc được đánh dấu *

    Vui lòng nhấn nút YÊU CẦU TƯ VẤN và đợi 1 - 2 giây đến khi thấy thông báo thành công

    YÊU CẦU TƯ VẤN