Mẫu nhà phố 2 tầng hiện đại 85m2 tại Bắc Ninh: Đẳng cấp đến từ sự tối giản

Chào các bác, lại là Techhome đây! Hôm nay, mình muốn dẫn các bác về thăm một công trình mà anh em kiến trúc sư chúng mình cực kỳ tâm đắc. Đây là dự án thiết kế cho gia đình Anh Hiệp tại Bắc Ninh. Phải nói thật, giữa “rừng” nhà cao tầng san sát, một mẫu nhà phố 2 tầng hiện đại có gu riêng như thế này luôn khiến người ta phải ngoái nhìn.

Nhiều người hay hỏi mình: “Nhà 2 tầng liệu có lỗi thời không?”. Câu trả lời là: “Không, nếu bạn biết cách làm cho nó trở nên tinh tế”. Và công trình của anh Hiệp chính là minh chứng rõ nhất cho việc tối ưu diện tích 85m2 để tạo ra một không gian sống “vừa đủ” nhưng “cực sang”.

Phối cảnh mặt tiền mẫu nhà phố 2 tầng hiện đại 85m2 sang trọng tại Bắc Ninh của Anh Hiệp.
Phối cảnh mặt tiền mẫu nhà phố 2 tầng hiện đại 85m2 sang trọng tại Bắc Ninh của Anh Hiệp.

1. Ngoại thất: Sự kết hợp hoàn hảo của vật liệu hiện đại

Nhìn vào phối cảnh 3D, các bác sẽ thấy ngay cái “chất” của mẫu nhà phố 2 tầng hiện đại này. Chúng mình không dùng quá nhiều phào chỉ rườm rà. Thay vào đó là các hình khối vuông vức, khỏe khoắn.

  • Tông màu chủ đạo: Sự kết hợp giữa trắng sứ, xám đá và nâu gỗ tạo cảm giác rất bền màu với thời gian.

  • Điểm nhấn vật liệu: Phần mặt tiền tầng 1 được ốp đá vân mây xám tạo sự vững chãi. Tầng 2 chúng mình sử dụng các hệ nan gỗ trang trí chạy dọc, vừa giúp chắn nắng, vừa tạo độ “mềm” cho kiến trúc.

  • Hệ thống cửa: Toàn bộ cửa chính và cửa sổ đều dùng nhôm kính Xingfa cao cấp. Việc sử dụng kính cường lực khổ lớn không chỉ giúp nhà lấy sáng tự nhiên cực tốt mà còn làm cho tổng thể mẫu nhà phố 2 tầng hiện đại trở nên thanh thoát hơn rất nhiều.

Các bác để ý phần ban công tầng 2, chúng mình sử dụng lan can kính thay vì sắt hay bê tông. Tại sao ư? Vì kính giúp xóa nhòa ranh giới giữa trong và ngoài, tối ưu tầm nhìn tối đa cho gia chủ.

Để tìm hiểu rõ hơn về tiêu chuẩn vật liệu xây dựng và các yếu tố ảnh hưởng đến chi phí, bạn có thể tham khảo thêm tại các bài viết chuyên sâu về vật liệu xây dựng cao cấp trên Wikipedia.

Góc nghiêng mẫu nhà phố 2 tầng hiện đại


2. Mặt bằng công năng: Bài toán diện tích 85m2

Một ngôi nhà đẹp trước hết phải là một ngôi nhà tiện dụng. Với diện tích sàn 85m2 mỗi tầng, Techhome đã nghiên cứu rất kỹ thói quen sinh hoạt của gia đình anh Hiệp để phân bổ không gian.

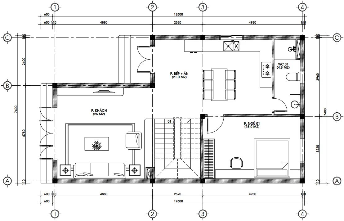
Tầng 1: Không gian kết nối gia đình

Bước qua sảnh chính là phòng khách rộng 26m2. Đây là “bộ mặt” của ngôi nhà nên được ưu tiên diện tích lớn nhất. Ngay phía sau là khu vực bếp và phòng ăn rộng 21m2.

Cái hay của mẫu nhà phố 2 tầng hiện đại này là sự kết nối không gian. Giữa phòng khách và bếp không dùng tường ngăn đặc mà tạo khoảng hở để luồng khí lưu thông tốt hơn. Đặc biệt, tầng 1 còn có 01 phòng ngủ rộng 15m2, cực kỳ phù hợp cho người lớn tuổi hoặc làm phòng cho khách nghỉ lại qua đêm mà không cần leo cầu thang.

  • Thông số kỹ thuật: Chiều cao tầng 1 là 3.7m, tạo độ thoáng đãng cần thiết. Cầu thang lên tầng gồm 21 bậc, mỗi bậc cao 176mm – đúng chuẩn nhân trắc học cho bước chân người Việt.

Bản vẽ mặt bằng công năng tầng 1 mẫu nhà phố 2 tầng hiện đại diện tích 85m2.
Bản vẽ mặt bằng công năng tầng 1 mẫu nhà phố 2 tầng hiện đại diện tích 85m2.

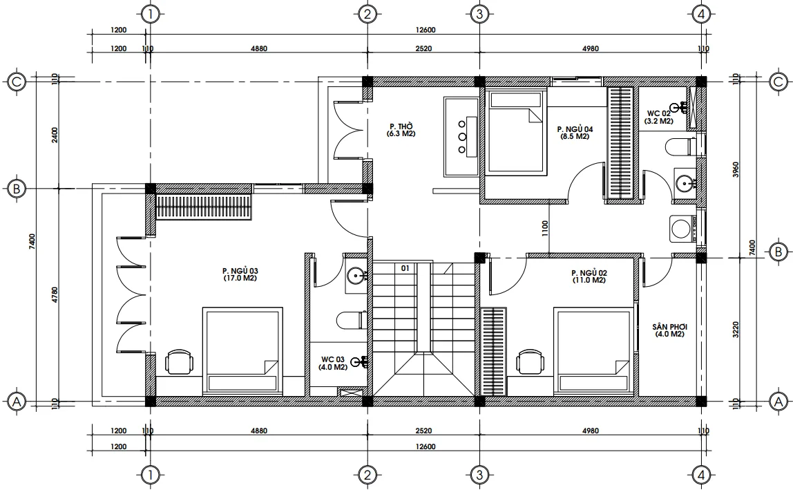
Tầng 2: Nơi nghỉ ngơi riêng tư

Nếu tầng 1 là nơi tiếp khách, thì tầng 2 của mẫu nhà phố 2 tầng hiện đại này chính là không gian riêng tư tuyệt đối cho các thành viên.

  • Phòng ngủ Master (Phòng 03): Rộng 17m2, có ban công rộng rãi hướng ra mặt tiền. Sáng ra mở cửa, hít hà không khí trong lành thì đúng là “chill” hết nấc.

  • Phòng ngủ con cái: Có 2 phòng ngủ nhỏ hơn (8.5m2 và 11m2) nhưng vẫn đảm bảo đầy đủ ánh sáng tự nhiên qua các ô cửa sổ nhỏ.

  • Phòng thờ: Một không gian trang trọng rộng 6.3m2 được đặt ở vị trí yên tĩnh, phong thủy tốt nhất ngôi nhà.

  • Khu giặt phơi: Được bố trí khéo léo phía sau rộng 4m2, đảm bảo tính thẩm mỹ cho mặt tiền nhà.

Bản vẽ mặt bằng công năng tầng 2 mẫu nhà phố 2 tầng hiện đại diện tích 85m2.
Bản vẽ mặt bằng công năng tầng 2 mẫu nhà phố 2 tầng hiện đại diện tích 85m2.

3. Tại sao mẫu nhà phố 2 tầng hiện đại này lại “hot” đến vậy?

Nói thật với các bác, xu hướng năm 2026 không còn là xây nhà “càng to càng tốt”. Người ta bắt đầu chú trọng vào chất lượng sống, vào sự tinh giản. Mẫu nhà phố 2 tầng hiện đại của anh Hiệp đáp ứng được 3 yếu tố cốt lõi:

  1. Chi phí tối ưu: Với 2 sàn, tổng diện tích xây dựng khoảng 170-180m2, chi phí đầu tư sẽ “dễ thở” hơn rất nhiều so với nhà 3-4 tầng mà vẫn đủ công năng cho gia đình 2-3 thế hệ.

  2. Dễ dàng bảo trì: Các vật liệu như kính, đá ốp, nhôm hệ rất dễ vệ sinh. Sau 5-10 năm, ngôi nhà trông vẫn như mới nếu các bác chịu khó lau dọn định kỳ.

  3. Không lỗi mốt: Phong cách hiện đại (Modernism) tập trung vào hình khối và công năng. Đây là kiểu kiến trúc bền vững nhất, không sợ bị lạc hậu theo trào lưu.

Để có được một mẫu nhà phố 2 tầng hiện đại ưng ý, đội ngũ kiến trúc sư Techhome đã phải chỉnh sửa phương án nhiều lần, từ việc tính toán hướng nắng đến cách bố trí từng ô cửa sổ nhỏ nhất.

Góc nghiêng mẫu nhà phố 2 tầng hiện đại


4. Báo giá tham khảo xây dựng nhà phố năm 2026

Mình biết đây là phần các bác quan tâm nhất. Để anh em có cái nhìn tổng quan khi chuẩn bị tài chính cho mẫu nhà phố 2 tầng hiện đại tương tự, Techhome xin đưa ra bảng giá tham khảo (áp dụng tại khu vực miền Bắc):

Hạng mục Đơn giá (VNĐ/m2) Ghi chú
Thiết kế kiến trúc  108.000 – 130.000 Tùy vào yêu cầu chi tiết
Xây dựng phần thô 3.800.000 – 4.200.000 Bao gồm vật tư thô & nhân công
Hoàn thiện trọn gói (Chìa khóa trao tay) 6.500.000 – 8.000.000 Tùy thuộc vào mức độ vật liệu hoàn thiện

Ví dụ tính toán cho nhà anh Hiệp:

  • Diện tích sàn: 85m2 x 2 tầng = 170m2.

  • Phần mái & móng (tạm tính 50% diện tích 1 sàn): ~42m2.

  • Tổng diện tích xây dựng tính giá: ~212m2.

  • Tổng mức đầu tư phần thô: Khoảng 800 – 900 triệu đồng.

  • Tổng mức hoàn thiện trọn gói: Khoảng 1.4 – 1.7 tỷ đồng (tùy nội thất).

Lưu ý: Đây là báo giá sơ bộ. Để có con số chính xác cho mẫu nhà phố 2 tầng hiện đại của riêng bạn, hãy liên hệ trực tiếp với Techhome nhé!

Tổng thể phối cảnh từ trên cao mẫu nhà phố 2 tầng hiện đại hệ mái bằng hiện đại.
Tổng thể phối cảnh từ trên cao mẫu nhà phố 2 tầng hiện đại hệ mái bằng hiện đại.

5. Những lưu ý khi xây dựng mẫu nhà phố 2 tầng hiện đại

Dưới góc độ là một chuyên gia, mình muốn chia sẻ thêm vài điều thực tế để các bác không phải hối hận sau khi xây xong:

  • Chống thấm là ưu tiên số 1: Với hệ mái bằng của mẫu nhà phố 2 tầng hiện đại, việc xử lý chống thấm sàn mái và ban công cực kỳ quan trọng. Đừng tiếc tiền cho vật liệu chống thấm loại tốt.

  • Giải pháp thông tầng: Nếu đất không quá dài, hãy cân nhắc làm một ô giếng trời nhỏ ở khu vực cầu thang. Nó giúp ngôi nhà “thở” được, không bị bí bách.

  • Chọn đơn vị uy tín: Nhìn bản vẽ thì dễ, nhưng để thi công ra được đúng cái “thần” của mẫu nhà phố 2 tầng hiện đại (nhất là các chi tiết nan gỗ và đá ốp) thì cần đội thợ rất chắc tay.

Techhome tự hào là đơn vị đồng hành cùng hàng trăm gia chủ. Chúng mình không chỉ bán bản vẽ, chúng mình mang đến giải pháp sống. Một mẫu nhà phố 2 tầng hiện đại hoàn hảo là sự kết hợp giữa ý tưởng của kiến trúc sư và tâm huyết của người chủ.

Tổng thể mặt sau mẫu nhà phố 2 tầng hiện đại


6. Kết luận

Dự án của Anh Hiệp tại Bắc Ninh là một ví dụ điển hình cho xu hướng nhà ở hiện nay: Đẹp – Gọn – Sang. Nếu bạn đang sở hữu một lô đất phố và muốn tìm kiếm một mẫu nhà phố 2 tầng hiện đại vừa đảm bảo tính thẩm mỹ, vừa tối ưu chi phí, thì đây chắc chắn là một gợi ý không thể bỏ qua.

Đừng để việc xây nhà trở thành nỗi lo toan. Hãy để Techhome giúp bạn biến ý tưởng thành hiện thực. Một mẫu nhà phố 2 tầng hiện đại đúng nghĩa sẽ là nơi bạn muốn trở về nhất sau mỗi ngày làm việc mệt mỏi.

Cảm ơn các bác đã theo dõi bài viết. Nếu thấy mẫu nhà phố 2 tầng hiện đại này đẹp, đừng ngần ngại chia sẻ hoặc để lại bình luận phía dưới nhé!


THÔNG TIN LIÊN HỆ:

  • Công ty Cổ phần Kiến trúc và Xây dựng Techhome

  • Hotline: 036.273.2222

  • Website: nhadeptechhome.vn

  • Địa chỉ: B1.1 LK18 Ô 3 – KĐT Thanh Hà – Cienco 5 – Thanh Oai- Hà Nội.

Để lại một bình luận

Email của bạn sẽ không được hiển thị công khai. Các trường bắt buộc được đánh dấu *

    Vui lòng nhấn nút YÊU CẦU TƯ VẤN và đợi 1 - 2 giây đến khi thấy thông báo thành công

    YÊU CẦU TƯ VẤN