Biệt Thự Tân Cổ Điển 2 Tầng Tại Hà Nội: Đẳng Cấp Mansard Sang Trọng Cho Gia Đình Anh Mùi

Bạn đã bao giờ mơ về một ngôi nhà mà chỉ cần đứng từ xa thôi, người ta đã cảm nhận được cái “gu” tinh tế và sự bề thế của gia chủ chưa? Đó chính là cảm giác mà mẫu biệt thự tân cổ điển 2 tầng của anh Mùi tại Đại Thanh, Hà Nội mang lại. Không quá phô trương, nhưng từng đường nét phào chỉ, hệ mái Mansard quyền quý đã tự khẳng định giá trị của mình.

Hôm nay, hãy cùng Techhome đột nhập vào không gian sống đẳng cấp này để xem tại sao xu hướng thiết kế biệt thự tân cổ điển 2 tầng lại khiến nhiều chủ đầu tư “say đắm” đến vậy nhé!


1. Tổng quan dự án: Khi hơi thở Pháp hòa quyện giữa lòng Hà Nội

Anh Mùi tìm đến Techhome với một mong muốn rõ ràng: Một ngôi nhà không chỉ để ở, mà phải là niềm tự hào của gia đình. Trên diện tích xây dựng tổng cộng lên tới 231m², các kiến trúc sư của chúng tôi đã kiến tạo nên một không gian sống đậm chất hoàng gia châu Âu.

  • Chủ đầu tư: Anh Mùi.

  • Địa điểm: Xã Đại Thanh, TP. Hà Nội.

  • Đơn vị thiết kế: Công ty Cổ phần Kiến trúc và Xây dựng Techhome.

  • Phong cách: Tân cổ điển Pháp kết hợp mái Mansard.

  • Diện tích tầng 1: 112m².

  • Diện tích tầng 2: 119m².

Cái hay của biệt thự tân cổ điển 2 tầng này nằm ở sự cân bằng. Nó không quá rườm rà như phong cách cổ điển thuần túy, nhưng vẫn giữ được những tỉ lệ vàng trong kiến trúc, tạo nên sự thanh thoát và sang trọng trường tồn với thời gian.

Phối cảnh mặt tiền chính diện mẫu biệt thự tân cổ điển 2 tầng mái Mansard sang trọng tại Hà Nội.
Phối cảnh mặt tiền chính diện mẫu biệt thự tân cổ điển 2 tầng mái Mansard sang trọng tại Hà Nội.

2. Phân tích kiến trúc ngoại thất: “Yêu từ cái nhìn đầu tiên”

Nhìn từ chính diện, căn biệt thự tân cổ điển 2 tầng nổi bật với gam màu trắng sứ chủ đạo. Đây là tông màu “quốc dân” trong kiến trúc tân cổ điển vì nó giúp tôn lên tối đa các chi tiết hoa văn chạm trổ.

Hệ mái Mansard – Biểu tượng của sự quyền quý

Điểm nhấn đắt giá nhất chắc chắn là hệ mái Mansard màu xanh than bo viền trắng. Đây không chỉ là mái nhà, mà nó còn đóng vai trò như một tầng lửng, giúp cách nhiệt cực tốt cho ngôi nhà. Những ô cửa sổ mái vòm nhỏ xinh nhô ra phía trước không chỉ đón sáng mà còn tạo vẻ duyên dáng như những lâu đài nhỏ trong truyện cổ tích.

Hệ cột trụ và hoa văn phù điêu

Mặt tiền của mẫu biệt thự tân cổ điển 2 tầng này sử dụng hệ cột Ionic kép với những rãnh soi dọc tinh tế, tạo cảm giác thanh mảnh nhưng cực kỳ vững chãi. Phía trên đại sảnh là bức phù điêu lớn được đắp nổi thủ công, thể hiện sự tỉ mỉ và đôi bàn tay khéo léo của những người thợ lành nghề Techhome.

Sảnh chính và cầu thang đón khách

Cầu thang dẫn vào sảnh chính được thiết kế loe rộng sang hai bên, sử dụng đá marble màu vàng hoàng gia, tạo cảm giác hiếu khách và sang trọng. Với chiều cao tầng 1 lên tới 4.1m và 25 bậc thang, ngôi nhà trông cao ráo và bề thế hơn hẳn các công trình xung quanh.

Góc nghiêng biệt thự tân cổ điển 2 tầng

3. Giải pháp công năng: Tối ưu đến từng milimet

Một ngôi nhà đẹp mà không tiện thì chỉ là “bức tranh treo tường”. Với mẫu biệt thự tân cổ điển 2 tầng này, chúng tôi đã tính toán kỹ lưỡng dựa trên thói quen sinh hoạt của gia đình anh Mùi.

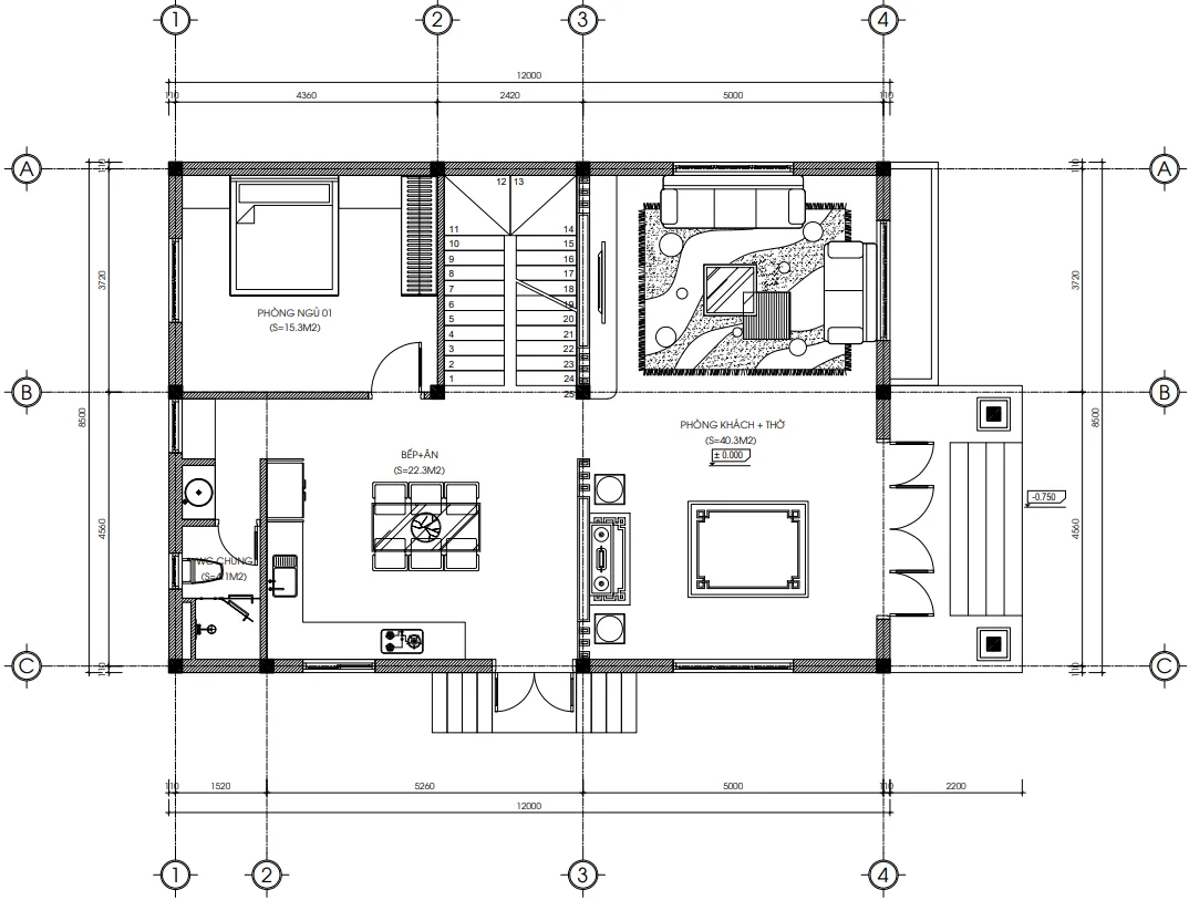
Tầng 1: Không gian kết nối và tiếp khách (112m²)

Bước qua cánh cửa gỗ gõ đỏ sang trọng, bạn sẽ choáng ngợp bởi sự thông thoáng:

  • Phòng khách kết hợp phòng thờ (40.3m²): Đây là diện tích cực kỳ lý tưởng để gia chủ vừa đón khách, vừa giữ được sự trang nghiêm cho nơi thờ tự.

  • Phòng bếp + ăn (22.3m²): Thiết kế mở giúp luồng không khí luôn luân chuyển, không bị ám mùi thức ăn.

  • Phòng ngủ 01 (15.3m²): Dành cho người lớn tuổi hoặc khách ghé thăm, hạn chế việc phải leo cầu thang.

  • WC chung: Được bố trí kín đáo, đảm bảo tính thẩm mỹ.

Bản vẽ bố trí công năng tầng 1 mẫu biệt thự tân cổ điển 2 tầng diện tích thiết kế 112m2.
Bản vẽ bố trí công năng tầng 1 mẫu biệt thự tân cổ điển 2 tầng diện tích thiết kế 112m2.

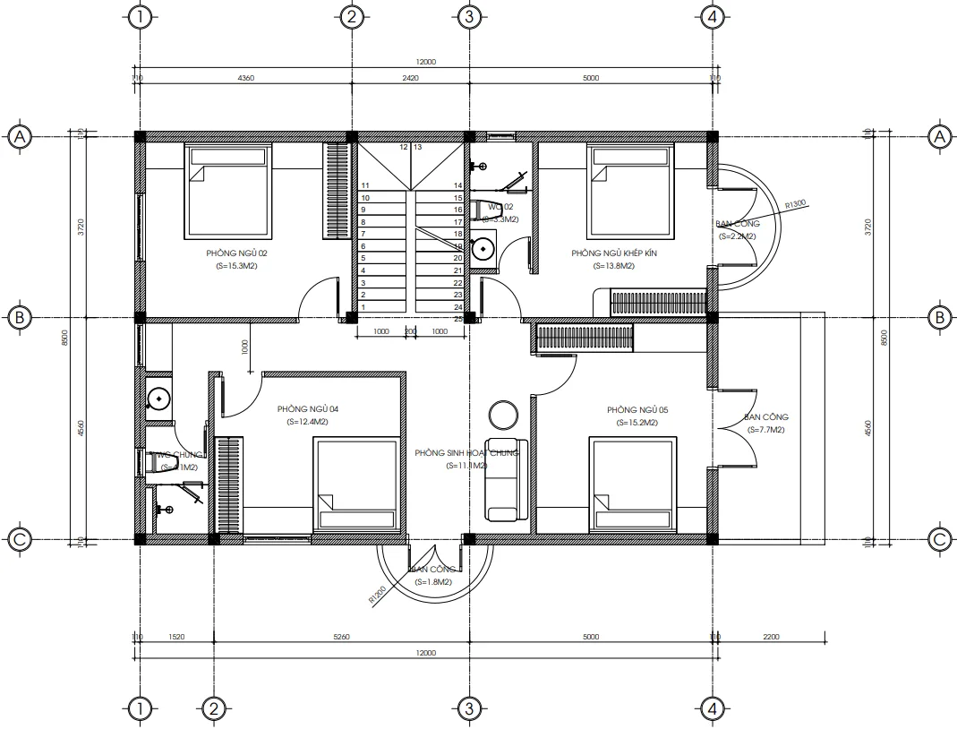
Tầng 2: Thiên đường nghỉ dưỡng riêng tư (119m²)

Nếu tầng 1 là nơi tiếp khách thì tầng 2 của căn biệt thự tân cổ điển 2 tầng chính là không gian riêng tư của các thành viên:

  • 4 Phòng ngủ: Diện tích từ 12.4m² đến 15.3m², đảm bảo mỗi con của anh Mùi đều có không gian riêng để học tập và thư giãn.

  • Phòng sinh hoạt chung (11.1m²): Nơi cả nhà ngồi lại xem phim, tâm sự trước khi đi ngủ, giúp gắn kết tình cảm gia đình.

  • Hệ thống ban công : Tầng 2 sở hữu tới 3 ban công lớn, giúp các phòng ngủ luôn tràn ngập ánh sáng tự nhiên và gió trời.

Dù có tới 5 phòng ngủ nhưng nhờ cách bố trí thông minh, căn biệt thự tân cổ điển 2 tầng vẫn không hề có cảm giác chật chội.

Bản vẽ chi tiết công năng tầng 2 mẫu biệt thự tân cổ điển 2 tầng diện tích 119m2.
Bản vẽ chi tiết công năng tầng 2 mẫu biệt thự tân cổ điển 2 tầng diện tích 119m2.

4. Tại sao anh Mùi chọn Techhome thi công biệt thự tân cổ điển 2 tầng?

Giữa hàng trăm đơn vị kiến trúc, tại sao Techhome luôn được tin tưởng? Đó là bởi chúng tôi không bán bản vẽ, chúng tôi bán giải pháp sống.

  1. Minh bạch: Mọi thông số kỹ thuật, chiều cao bậc thang (164mm), diện tích từng phòng đều được công khai rõ ràng trên bản vẽ.

  2. Hỗ trợ kỹ thuật 24/7: Số hotline 0364042222 luôn sẵn sàng giải đáp thắc mắc của gia chủ bất kể ngày đêm.

  3. Tâm huyết: Chúng tôi coi nhà của khách như nhà của mình. Mỗi viên gạch, mỗi đường chỉ phào đều được giám sát khắt khe.

Mẫu biệt thự tân cổ điển 2 tầng này chính là minh chứng cho sự kết hợp hoàn hảo giữa ý tưởng của chủ nhà và chuyên môn của kiến trúc sư.

Góc nghiêng biệt thự tân cổ điển 2 tầng

5. Báo giá tham khảo thiết kế và thi công biệt thự tân cổ điển 2 tầng

Để quý khách hàng có cái nhìn tổng quan về ngân sách, Techhome xin đưa ra bảng giá tham khảo (Lưu ý: Giá có thể thay đổi tùy vào thời điểm và vật liệu lựa chọn).

Hạng mục Đơn giá tham khảo Ghi chú
Thiết kế kiến trúc 108.000 – 130.000 VNĐ/m² Bao gồm bản vẽ 3D, điện nước, kết cấu.
Thi công phần thô 4.000.000 – 5.000.000 VNĐ/m² Nhân công và vật tư thô.
Thi công hoàn thiện (Gói khá) 7.500.000 – 8.500.000 VNĐ/m² Bao gồm sơn, gạch, thiết bị vệ sinh cơ bản.
Gói chìa khóa trao tay Từ 9.000.000 VNĐ/m² Tùy chọn nội thất cao cấp.

Với diện tích 231m² như nhà anh Mùi, tổng mức đầu tư hoàn thiện cho căn biệt thự tân cổ điển 2 tầng thường dao động từ 1.8 tỷ đến 2.1 tỷ VNĐ.

Lưu ý: Đây chỉ là mức chi phí ước tính. Để nhận được báo giá chính xác và chi tiết nhất cho công trình của bạn, vui lòng liên hệ trực tiếp với chúng tôi. Hoặc để tìm hiểu rõ hơn về tiêu chuẩn vật liệu xây dựng và các yếu tố ảnh hưởng đến chi phí, bạn có thể tham khảo thêm tại các bài viết chuyên sâu về vật liệu xây dựng cao cấp trên Wikipedia.

Tổng thể từ trên cao mẫu biệt thự tân cổ điển 2 tầng diện tích 231m2 của gia đình anh Mùi.
Tổng thể từ trên cao mẫu biệt thự tân cổ điển 2 tầng diện tích 231m2 của gia đình anh Mùi.

6. Góc chuyên gia: Lời khuyên khi xây biệt thự tân cổ điển 2 tầng

Là người trực tiếp tham gia vào nhiều dự án, mình có vài lời khuyên chân thành cho các bạn đang có ý định xây biệt thự tân cổ điển 2 tầng:

  • Đừng tiết kiệm tiền thiết kế: Một bản vẽ tốt giúp bạn tránh được những lỗi phong thủy và lãng phí vật liệu khi thi công.

  • Chú trọng vào ánh sáng: Phong cách tân cổ điển sẽ rất tối nếu thiếu ánh sáng tự nhiên. Hãy sử dụng hệ cửa kính lớn như cách anh Mùi đã làm cho căn biệt thự tân cổ điển 2 tầng của mình.

  • Chọn đội thợ đắp phù điêu có tay nghề: Những chi tiết hoa văn là linh hồn của ngôi nhà. Thợ không chuyên sẽ làm phù điêu trông rất “cứng” và mất đi vẻ sang trọng.

  • Phong thủy là yếu tố then chốt: Việc đặt phòng thờ chung với phòng khách ở tầng 1 trong mẫu biệt thự tân cổ điển 2 tầng này đã được chúng tôi tính toán hướng nắng, hướng gió để đảm bảo tụ khí tốt nhất cho gia chủ.


Kết luận

Mẫu biệt thự tân cổ điển 2 tầng của gia đình anh Mùi không chỉ là một công trình kiến trúc, mà là thành quả của sự lao động và ước mơ. Hy vọng qua bài viết này, bạn đã có thêm ý tưởng cho ngôi nhà tương lai của mình.

Nếu bạn cũng đang sở hữu một mảnh đất tại Hà Nội hay bất cứ đâu và muốn sở hữu một căn biệt thự tân cổ điển 2 tầng đúng chuẩn, đừng ngần ngại liên hệ với Techhome. Chúng tôi luôn ở đây để biến ngôi nhà mơ ước của bạn thành hiện thực!


CÔNG TY CỔ PHẦN KIẾN TRÚC VÀ XÂY DỰNG TECHHOME

  • Địa chỉ: B1.1 LK18 Ô 3 – KĐT Thanh Hà – Cienco 5 – Thanh Oai- Hà Nội.

  • Hotline: 036.273.2222

  • Website: nhadeptechhome.vn

Để lại một bình luận

Email của bạn sẽ không được hiển thị công khai. Các trường bắt buộc được đánh dấu *

    Vui lòng nhấn nút YÊU CẦU TƯ VẤN và đợi 1 - 2 giây đến khi thấy thông báo thành công

    YÊU CẦU TƯ VẤN