Bạn đang sở hữu một mảnh đất phố với diện tích vừa phải và đang loay hoay tìm kiếm một mẫu nhà phố 2 tầng hiện đại để xây dựng tổ ấm? Bạn muốn một không gian sống không chỉ đầy đủ công năng mà còn phải toát lên cái “gu” thẩm mỹ riêng, không bị lỗi thời sau 10-20 năm?
Hôm nay, Kiến trúc Techhome xin giới thiệu đến bạn một “siêu phẩm” thực tế: mẫu nhà phố 2 tầng hiện đại mã số 097 được chúng tôi thiết kế cho gia đình anh Tuấn tại Sơn La. Với diện tích sàn 75m2 (6×12.5m), đây chính là lời giải hoàn hảo cho bài toán diện tích và chi phí trong năm 2026 này.

1. Tại sao mẫu nhà phố 2 tầng hiện đại lại trở thành “quốc dân”?
Không phải ngẫu nhiên mà khi nhắc đến xây dựng nhà ở đô thị, đa số chủ đầu tư đều ưu tiên lựa chọn mẫu nhà phố 2 tầng hiện đại. Có ba lý do chính khiến phong cách này “làm mưa làm gió” trên các diễn đàn kiến trúc:
-
Tiết kiệm chi phí: So với nhà mái Thái hay tân cổ điển, mẫu nhà phố 2 tầng hiện đại tối giản các chi tiết phào chỉ phức tạp, tập trung vào hình khối và vật liệu, giúp giảm đáng kể chi phí nhân công.
-
Tối ưu không gian: Với cách bố trí thông minh, ngôi nhà tận dụng tối đa từng mét vuông diện tích, phù hợp cho gia đình từ 4-6 thành viên.
-
Vẻ đẹp bền vững: Sự đơn giản, khỏe khoắn của các đường nét kiến trúc giúp ngôi nhà luôn trông mới mẻ và thời thượng.

2. Phân tích kiến trúc ngoại thất: Sự kết hợp hoàn hảo của vật liệu và màu sắc
Nhìn vào phối cảnh của mẫu nhà phố 2 tầng hiện đại này , điểm ấn tượng đầu tiên chính là sự phối hợp nhịp nhàng giữa tông màu xám trung tính, sắc trắng tinh khôi và màu nâu ấm của gỗ.
Mặt tiền đậm chất nghệ thuật
Mặt tiền của ngôi nhà không sử dụng quá nhiều chi tiết rườm rà. Thay vào đó, chúng tôi sử dụng các mảng tường ốp đá xám vân đá tự nhiên để tạo chiều sâu. Hệ thống cửa nhôm kính Xingfa màu đen cao cấp không chỉ giúp lấy sáng tối đa mà còn là điểm nhấn hiện đại cho tổng thể mẫu nhà phố 2 tầng hiện đại.
Hệ mái và công năng sân thượng
Khác với kiểu mái bằng truyền thống, mẫu nhà phố 2 tầng hiện đại của anh Tuấn sử dụng hệ mái dốc nhẹ lợp tôn chống nóng. Trên mái, Techhome đã khéo léo bố trí khu vực đặt bồn nước và hệ thống thái dương năng, giúp gia đình tiết kiệm điện năng và luôn có nước nóng sử dụng.
Góc nhìn chuyên gia: “Việc sử dụng trần gỗ (hoặc nhựa giả gỗ) dưới các ô văng mái không chỉ có tác dụng thẩm mỹ mà còn giúp cách nhiệt rất tốt cho các phòng phía dưới.”

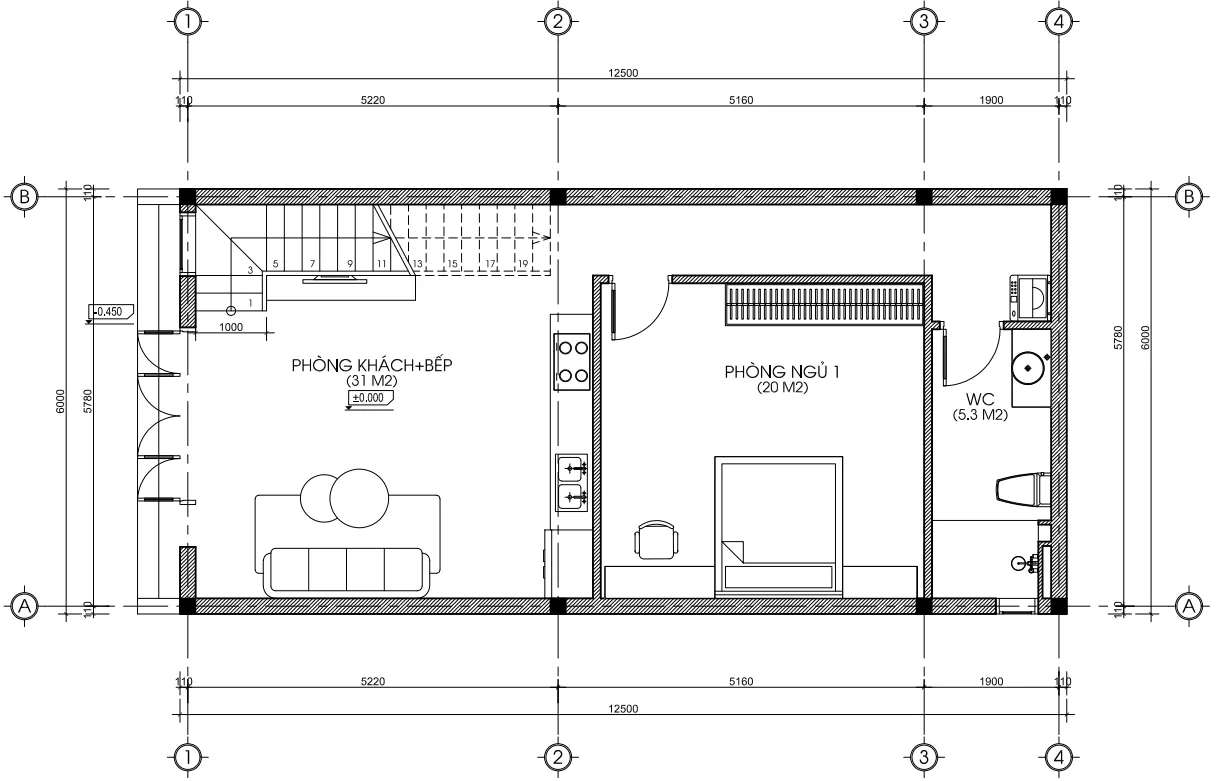
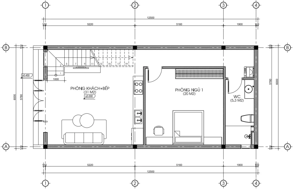
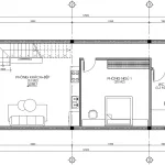
3. Bố trí công năng thông minh: 75m2 không một góc chết
Để một mẫu nhà phố 2 tầng hiện đại thực sự đáng sống, phần mặt bằng công năng phải được ưu tiên hàng đầu. Hãy cùng khám phá cách Techhome phân bổ không gian trong bản vẽ của anh Tuấn.
Tầng 1: Không gian sinh hoạt chung ấm cúng
-
Phòng khách + Bếp (31m2): Thiết kế mở giúp không gian trở nên cực kỳ thông thoáng. Từ cửa chính đi vào là khu vực tiếp khách sang trọng, nối liền là bếp nấu tiện nghi.
-
Phòng ngủ 1 (20m2): Đây là diện tích lý tưởng cho một phòng ngủ Master ở tầng trệt, phù hợp cho người lớn tuổi trong gia đình để tránh phải leo cầu thang.
-
WC (5.3m2): Được đặt kín đáo cuối nhà, đảm bảo tính thẩm mỹ và phong thủy.

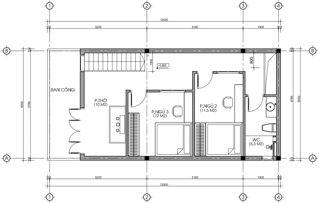
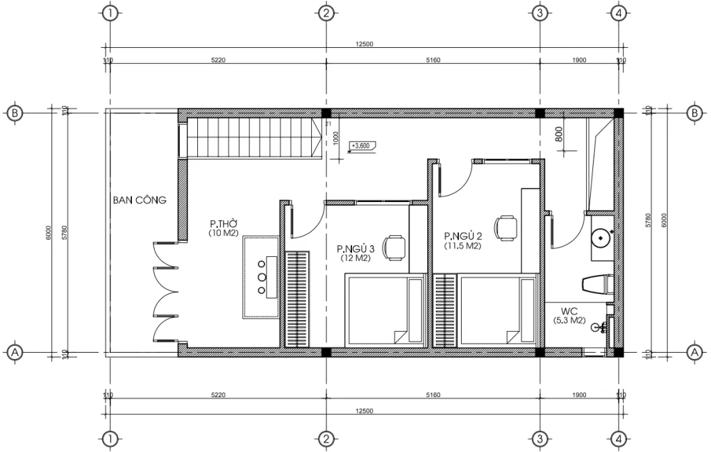
Tầng 2: Sự riêng tư và tĩnh lặng
Bước lên tầng 2 của mẫu nhà phố 2 tầng hiện đại này, bạn sẽ thấy sự phân chia không gian cực kỳ khoa học:
-
Phòng thờ (10m2): Hướng ra ban công phía trước, đảm bảo sự tôn nghiêm và thông thoáng.
-
Phòng ngủ 2 (11.5m2) & Phòng ngủ 3 (12m2): Hai phòng ngủ dành cho các con với diện tích vừa vặn.
-
Ban công rộng rãi: Là nơi gia chủ có thể trồng cây xanh, thưởng trà và ngắm nhìn phố phường.

4. Yếu tố phong thủy trong thiết kế nhà phố
Trong hồ sơ thiết kế, Techhome luôn đính kèm mặt bằng Bát Trạch để đảm bảo ngôi nhà hợp mệnh gia chủ. Với mẫu nhà phố 2 tầng hiện đại tại Sơn La, các vị trí cửa chính, bếp và giường ngủ đều được tính toán kỹ lưỡng để đón cát khí, xua đuổi vận rủi. Việc xây dựng một ngôi nhà đẹp là chưa đủ, nó còn phải là một “tổ ấm bình an” cho gia chủ.
5. Bảng báo giá xây dựng mẫu nhà phố 2 tầng hiện đại (Dự kiến 2026)
Để bạn dễ dàng hình dung và chuẩn bị tài chính, Techhome xin đưa ra bảng dự toán cơ bản cho mẫu nhà phố 2 tầng hiện đại diện tích 75m2/sàn:
| Hạng mục | Đơn giá (VNĐ/m2) | Tổng chi phí (Dự kiến) |
| Thiết kế kiến trúc | 108.000 | 16.200.000 |
| Xây dựng phần thô | 3.800.000 – 4.200.000 | 570 – 630 Triệu |
| Hoàn thiện trọn gói (Chìa khóa trao tay) | 6.500.000 – 7.500.000 | 975 Triệu – 1.2 Tỷ |
Lưu ý: Đây chỉ là mức chi phí ước tính. Để nhận được báo giá chính xác và chi tiết nhất cho công trình của bạn, vui lòng liên hệ trực tiếp với chúng tôi. Hoặc để tìm hiểu rõ hơn về tiêu chuẩn vật liệu xây dựng và các yếu tố ảnh hưởng đến chi phí, bạn có thể tham khảo thêm tại các bài viết chuyên sâu về vật liệu xây dựng cao cấp trên Wikipedia.

6. Những lưu ý “vàng” khi thi công mẫu nhà phố 2 tầng hiện đại
Là một chuyên gia trong ngành, tôi muốn chia sẻ với bạn vài kinh nghiệm xương máu khi triển khai mẫu nhà phố 2 tầng hiện đại để tránh phát sinh chi phí không đáng có:
-
Lựa chọn vật liệu hoàn thiện: Với phong cách hiện đại, hãy ưu tiên các loại sơn hiệu ứng bê tông hoặc đá ốp mặt tiền có độ bền màu cao. Đừng tiếc tiền cho hệ cửa nhôm kính vì đây là bộ mặt của cả ngôi nhà.
-
Giải pháp ánh sáng: Hãy sử dụng hệ thống đèn LED âm trần phối hợp với đèn hắt khe tường. Ánh sáng vàng ấm sẽ giúp mẫu nhà phố 2 tầng hiện đại trở nên sang trọng hơn gấp bội vào ban đêm.
-
Chống thấm mái: Dù là mái tôn hay mái bằng, khâu chống thấm và thoát nước là quan trọng nhất. Hãy yêu cầu đơn vị thi công xử lý kỹ các mối nối và máng xối.

7. Techhome – Đơn vị thiết kế thi công mẫu nhà phố 2 tầng hiện đại uy tín
Tại sao hàng trăm khách hàng như anh Tuấn tại Sơn La lại tin tưởng lựa chọn chúng tôi? Bởi vì tại Techhome, mỗi mẫu nhà phố 2 tầng hiện đại không chỉ là một bản vẽ vô hồn, mà là tâm huyết của đội ngũ kiến trúc sư.
Chúng tôi cam kết:
-
Bản vẽ chi tiết, dễ hiểu, thợ vườn cũng xây được.
-
Hỗ trợ tư vấn kỹ thuật 24/7 suốt quá trình thi công qua Hotline: 0364.042.222 – 0387.603.333.
-
Tối ưu hóa chi phí vật liệu dựa trên ngân sách thực tế của bạn.
Việc chọn đúng mẫu nhà phố 2 tầng hiện đại là bước đi đầu tiên để có một cuộc sống hạnh phúc. Hy vọng mẫu nhà mã số 097 này đã tiếp thêm cảm hứng cho dự định tương lai của bạn.

8. Tổng kết về mẫu nhà phố 2 tầng hiện đại mã 097
Ngôi nhà của anh Tuấn là minh chứng rõ nét cho việc: Không cần quá cầu kỳ, sự tinh tế đến từ những đường nét đơn giản nhất. Nếu bạn đang tìm kiếm sự tĩnh lặng, hiện đại và tiện nghi, thì đây chính là mẫu nhà phố 2 tầng hiện đại mà bạn không nên bỏ lỡ.
Đừng ngần ngại liên hệ với Techhome để được sở hữu bộ hồ sơ thiết kế chuẩn chỉnh này hoặc yêu cầu tư vấn một phiên bản cá nhân hóa dành riêng cho mảnh đất của bạn. Chúng tôi luôn sẵn sàng lắng nghe và đồng hành cùng bạn!
CÔNG TY CỔ PHẦN KIẾN TRÚC VÀ XÂY DỰNG TECHHOME
🏠 Website: https://nhadeptechhome.vn/
☎️ Hotline: 036.273.2222
📍 Địa chỉ: B1.1 LK18 Ô 3 – KĐT Thanh Hà – Cienco 5 – Thanh Oai- Hà Nội.
