Bạn đang sở hữu một mảnh đất phố nhưng diện tích không quá dư dả? Bạn muốn xây nhà 2 tầng nhưng ngân sách lại đang ở mức “vừa phải”? Đừng lo, vì hôm nay Techhome sẽ dẫn bạn đi thăm một công trình thực tế tại Móng Cái – Quảng Ninh. Đây là mẫu nhà gác lửng hiện đại được chúng mình thiết kế riêng cho gia đình chị Thương, một phương án tối ưu đến từng cm2 mà vẫn giữ được nét sang trọng, phóng khoáng.
1. Tại sao mẫu nhà gác lửng hiện đại lại trở thành “cơn sốt” năm 2026?
Thú thực với anh em, trong suốt nhiều năm làm nghề kiến trúc, mình thấy rằng không phải ai cũng cần một tòa lâu đài đồ sộ. Cái khách hàng cần nhất chính là “sự đủ đầy trong không gian nhỏ”. Mẫu nhà gác lửng hiện đại ra đời chính là để giải quyết bài toán đó. Nó không chỉ giúp tiết kiệm chi phí xây dựng so với nhà 2 tầng hoàn thiện mà còn tạo ra một độ thông thoáng tuyệt vời nhờ khoảng thông tầng đặc trưng.
Tại công trình của chị Thương, với diện tích sàn 80m2 và chiều dài lên tới 16m, việc lựa chọn mẫu nhà gác lửng hiện đại là một quyết định cực kỳ sáng suốt. Nó giúp ngôi nhà không bị “ngộp” bởi các bức tường ngăn cách, đồng thời tạo ra những góc nhìn đa chiều từ trên xuống dưới, làm tăng sợi dây kết nối giữa các thành viên trong gia đình.

2. Phân tích kiến trúc ngoại thất: Đường cong mềm mại giữa lòng phố Móng Cái
Nhìn vào phối cảnh 3D, các bạn có thể thấy ngay điểm nhấn của mẫu nhà gác lửng hiện đại này chính là sự kết hợp giữa các khối hình học vuông vức và những đường bo cong mềm mại ở mặt tiền.
-
Tông màu chủ đạo: Techhome lựa chọn tông trắng sứ kết hợp cùng xám trung tính và điểm xuyết màu gỗ tự nhiên. Đây là bảng màu “bất tử” trong kiến trúc hiện đại, giúp ngôi nhà luôn trông như mới dù sau nhiều năm sử dụng.
-
Hệ thống cửa: Chúng mình sử dụng hệ cửa nhôm kính Xingfa bản lớn. Điều này cực kỳ quan trọng đối với một mẫu nhà gác lửng hiện đại, bởi ánh sáng tự nhiên chính là “linh hồn” giúp không gian bên trong trở nên rộng rãi hơn thực tế.
-
Điểm nhấn vật liệu: Phần vách đứng được ốp gỗ nhựa ngoài trời chạy dọc từ tầng 1 lên đến mái, tạo cảm giác ngôi nhà cao ráo và thanh thoát hơn hẳn.

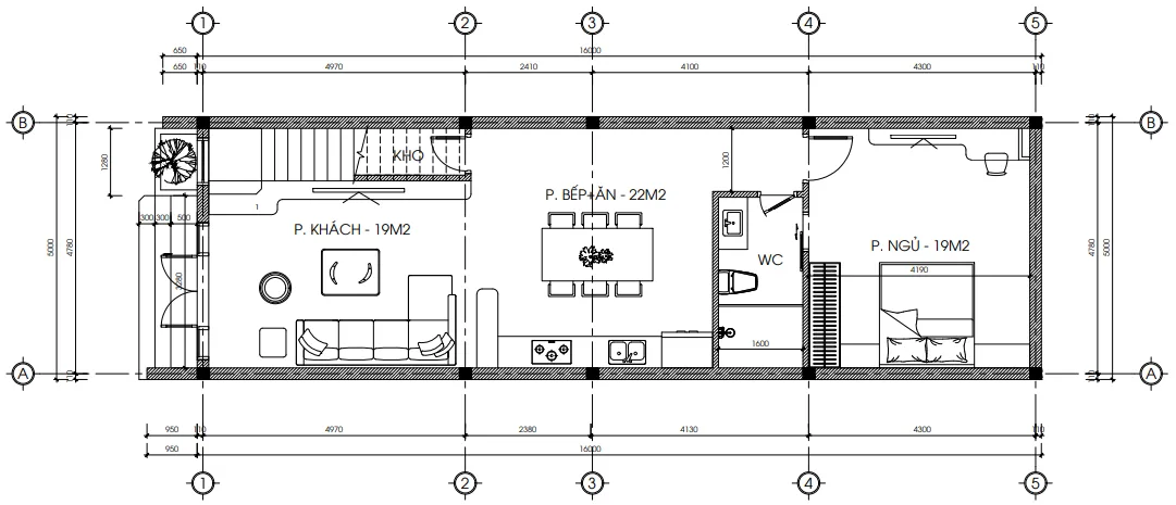
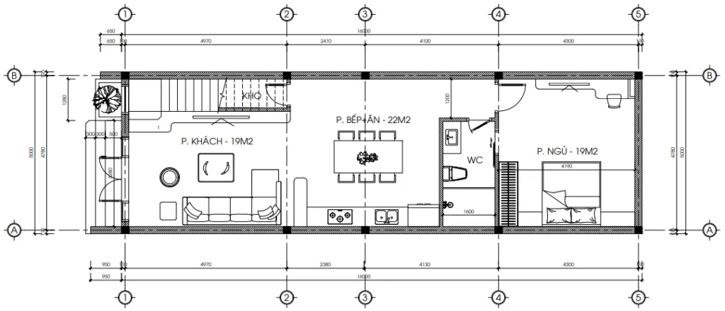
3. Giải pháp mặt bằng tầng 1: Ưu tiên không gian sinh hoạt chung
Bước qua bậc tam cấp sang trọng là không gian tầng 1 với tổng diện tích 80m2. Các kiến trúc sư của Techhome đã khéo léo sắp xếp các khu vực chức năng một cách khoa học nhất:
-
Phòng khách (19m2): Nằm ngay vị trí mặt tiền với hệ cửa kính lớn. Đây là nơi tiếp khách và cũng là bộ mặt của gia đình. Với diện tích này, bạn hoàn toàn có thể đặt một bộ sofa chữ L lớn mà vẫn thoải mái lối đi.
-
Phòng bếp & ăn (22m2): Đây là khu vực “giữ lửa” cho ngôi nhà. Việc thiết kế bếp liền kề phòng khách trong mẫu nhà gác lửng hiện đại giúp tạo ra một không gian mở liên hoàn, cực kỳ thuận tiện cho những bữa tiệc gia đình.
-
Phòng ngủ dưới tầng 1 (19m2): Đây là một điểm cộng lớn dành cho các gia đình có người lớn tuổi hoặc phụ huynh không tiện leo cầu thang. Một phòng ngủ rộng rãi, thoáng đãng là ưu tiên hàng đầu của chúng mình.
-
Nhà vệ sinh (WC) được bố trí giữa phòng bếp và phòng ngủ, thuận tiện cho sinh hoạt. Một kho nhỏ tận dụng gầm cầu thang, giúp ngôi nhà luôn gọn gàng.

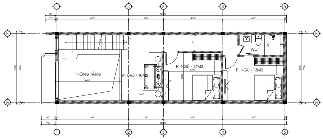
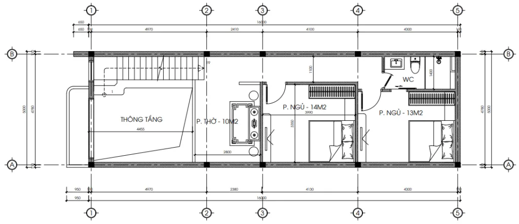
4. Tầng lửng: “Vũ trụ” riêng tư và tinh tế
Nếu tầng 1 là nơi náo nhiệt thì tầng lửng của mẫu nhà gác lửng hiện đại này lại là chốn bình yên, tĩnh lặng. Với chiều cao tầng 3300mm, không gian này không hề gây cảm giác thấp hay bí bách.
-
Phòng thờ (10m2): Được đặt trang trọng ở vị trí phía trước, hướng ra khoảng thông tầng. Đây là vị trí “tọa cát hướng cát”, đảm bảo yếu tố phong thủy và sự tôn nghiêm.
-
Hệ thống 02 phòng ngủ: Gồm một phòng 14m2 và một phòng 13m2. Việc bố trí 2 phòng ngủ trên tầng lửng giúp gia đình có thêm không gian cho con cái hoặc khách đến chơi nhà.
-
Khoảng thông tầng: Đây chính là “chiếc máy điều hòa tự nhiên” cho toàn bộ ngôi nhà. Nó giúp luân chuyển không khí từ tầng 1 lên trên và ngược lại, giúp mẫu nhà gác lửng hiện đại luôn mát mẻ.

5. Báo giá thi công mẫu nhà gác lửng hiện đại (Tham khảo 2026)
Để các bác dễ hình dung và chuẩn bị tài chính, Techhome xin đưa ra bảng dự toán sơ bộ. Lưu ý, giá thực tế có thể thay đổi tùy vào thời điểm và loại vật liệu các bác chọn nhé!
| Hạng mục | Đơn giá (VNĐ/m2) | Thành tiền (Dự kiến) |
| Gói thi công thô | 3.800.000 – 4.200.000 | Khoảng 600 – 670 triệu |
| Gói hoàn thiện cơ bản | 6.000.000 – 6.800.000 | Khoảng 960 triệu – 1,1 tỷ |
| Gói chìa khóa trao tay | 7.000.000 – 8.000.000 | 1,1 tỷ – 1,3 tỷ |
Lưu ý từ chuyên gia: Khi xây dựng mẫu nhà gác lửng hiện đại, các bác đừng nên tiết kiệm quá mức vào phần sơn chống thấm và hệ thống cửa kính. Bởi lẽ, nhà gác lửng thường có diện tích mặt kính lớn, nếu dùng loại rẻ tiền sẽ rất nhanh bị xuống cấp và nóng.
Báo giá trên chỉ là mức chi phí ước tính. Để nhận được báo giá chính xác và chi tiết nhất cho công trình của bạn, vui lòng liên hệ trực tiếp với chúng tôi. Hoặc để tìm hiểu rõ hơn về tiêu chuẩn vật liệu xây dựng và các yếu tố ảnh hưởng đến chi phí, bạn có thể tham khảo thêm tại các bài viết chuyên sâu về vật liệu xây dựng cao cấp trên Wikipedia.

6. Góc nhìn chuyên gia: 3 bí quyết để có mẫu nhà gác lửng hiện đại hoàn hảo
Dưới góc độ là người làm nghề lâu năm, mình có vài lời khuyên chân thành cho anh em đang có ý định theo đuổi mẫu nhà gác lửng hiện đại:
Thứ nhất: Đừng bao giờ bỏ qua hệ thống thông gió mái
Các bác thấy trong ảnh phối cảnh từ trên cao không? Techhome đã bố trí hệ mái tôn lạnh chống nóng cùng bồn nước và năng lượng mặt trời. Tuy nhiên, bí mật nằm ở lớp trần thạch cao bên dưới. Đối với mẫu nhà gác lửng hiện đại, phần gác lửng nằm sát mái nên rất dễ bị nóng. Hãy đầu tư thêm lớp bông thủy tinh cách nhiệt, các bác sẽ thấy sự khác biệt rõ rệt vào mùa hè.
Thứ hai: Tận dụng ánh sáng thông qua ô cửa vòm
Hãy nhìn ô cửa vòm ở mặt tiền. Nó không chỉ để cho đẹp đâu! Thiết kế vòm giúp phân tán ánh sáng đều hơn vào bên trong. Một mẫu nhà gác lửng hiện đại mà thiếu đi ánh sáng tự nhiên thì sẽ trở nên rất tù túng.
Thứ ba: Chọn màu nội thất đồng bộ với ngoại thất
Nhiều bác phạm sai lầm là bên ngoài hiện đại, bên trong lại làm theo kiểu “tân cổ điển” rườm rà. Với mẫu nhà gác lửng hiện đại, hãy ưu tiên nội thất tối giản hoặc phong cách Bắc Âu. Sử dụng những món đồ đa năng sẽ giúp không gian gác lửng của các bác rộng thêm ít nhất 20%.

7. Techhome – Đơn vị thiết kế và thi công mẫu nhà gác lửng hiện đại hàng đầu
Công ty Cổ phần Kiến trúc và Xây dựng Techhome với đội ngũ kiến trúc sư trẻ trung, chúng tôi luôn tâm niệm mỗi ngôi nhà là một tác phẩm nghệ thuật.
Hồ sơ thiết kế kỹ thuật thi công của Techhome luôn cực kỳ chi tiết, giúp các bác dễ dàng giám sát thợ hoặc thậm chí tự tin thi công mà không lo sai lệch. Nếu các bác thích mẫu nhà gác lửng hiện đại của chị Thương tại Móng Cái, đừng ngần ngại nhấc máy lên gọi cho chúng tôi.

Thông tin liên hệ tư vấn:
-
Hotline: 036.273.2222
-
Website: https://nhadeptechhome.vn/
-
Địa chỉ: B1.1 LK18 Ô 3 – KĐT Thanh Hà – Cienco 5 – Thanh Oai- Hà Nội.
Hy vọng bài viết này đã cung cấp cho các bác cái nhìn đầy đủ nhất về mẫu nhà gác lửng hiện đại. Xây nhà là việc cả đời, hãy để Techhome đồng hành cùng các bác biến giấc mơ thành hiện thực nhé!
