Chào các bác, các anh chị em đang có ý định xây tổ ấm! Lại là TechHome đây. Hôm nay, tôi muốn ngồi lại, rót chén trà và chia sẻ với mọi người một câu chuyện làm nghề, một “đứa con tinh thần” mà đội ngũ TechHome vừa hoàn thiện hồ sơ. Đó là công trình thiết kế nhà phố 2 tầng 1 tum dành riêng cho gia đình anh Cự tại Kiến Thụy, Hải Phòng.
Tại sao tôi lại muốn kể sâu về công trình này? Bởi vì đây là ví dụ điển hình cho xu hướng xây dựng năm nay: Không cần quá phô trương, cầu kỳ nhưng phải “chất” trong từng mét vuông sử dụng. Nếu bạn đang tìm kiếm ý tưởng cho một căn thiết kế nhà phố 2 tầng 1 tum, thì đây chính là bài viết dành cho bạn.
1. Tổng Quan Về Công Trình “Hoa Hậu” Tại Kiến Thụy
Trước khi đi sâu vào mổ xẻ chi tiết, mời các bác ngó qua cái “Lý lịch trích ngang” của công trình này để dễ hình dung:
| Hạng mục | Thông tin chi tiết |
| Chủ đầu tư |
Anh Cự |
| Địa điểm xây dựng |
Huyện Kiến Thụy, TP. Hải Phòng |
| Đơn vị thiết kế |
Công ty Cổ phần Kiến trúc và Xây dựng TechHome |
| Loại hình |
Nhà ở gia đình (Nhà phố hiện đại) |
| Quy mô |
2 tầng, 1 tum |
| Diện tích xây dựng |
Mặt tiền ~5m, Chiều sâu ~15.5m |
Bài toán anh Cự đặt ra cho TechHome khá rõ ràng: “Anh cần một ngôi nhà để ở, nhưng nhìn phải sang, thoáng, và quan trọng là công năng phải hợp lý cho cả gia đình sinh hoạt”. Và lời giải chính là bản thiết kế nhà phố 2 tầng 1 tum mà các bạn đang thấy.

2. Phối Cảnh Mặt Tiền: Đơn Giản Nhưng Không Hề Đơn Điệu
Nói thật với các bác, làm nghề lâu năm tôi nhận ra một điều: Cái đẹp bền vững nhất chính là sự đơn giản. Nhìn vào phối cảnh mặt tiền của nhà anh Cự, các bác sẽ thấy ngay ngôn ngữ kiến trúc hiện đại được TechHome áp dụng triệt để.
Chúng tôi không sử dụng những phào chỉ rườm rà của phong cách tân cổ điển. Thay vào đó, thiết kế nhà phố 2 tầng 1 tum này tập trung vào các khối hình vuông vức, khỏe khoắn. Tông màu chủ đạo là trắng sứ, kết hợp với màu gỗ của hệ lam trang trí và gạch ốp, tạo nên một tổng thể vừa sáng sủa vừa ấm cúng.
Hệ thống cửa kính lớn (cửa nhôm hệ kính cường lực) được bố trí xuyên suốt từ tầng 1 lên tầng 2. Điều này không chỉ giúp mặt tiền trông “tây” hơn mà còn giải quyết bài toán muôn thuở của nhà ống: Thiếu sáng. Với thiết kế nhà phố 2 tầng 1 tum này, ánh sáng tự nhiên sẽ tràn ngập khắp căn nhà, giúp tiết kiệm điện năng và tốt cho sức khỏe gia chủ.
Đặc biệt, phần ban công tầng 2 và tầng tum được thiết kế đua ra hợp lý, kết hợp với bồn cây xanh. Đây là những “lá phổi nhỏ”, giúp lọc bụi và giảm nhiệt cho ngôi nhà, nhất là trong những ngày hè oi ả của miền Bắc.

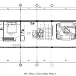
3. “Mổ Xẻ” Công Năng: Bài Toán Chia Hình Hợp Lý
Đẹp bên ngoài là một chuyện, nhưng sống có sướng hay không lại nằm ở cách bố trí bên trong. Mời các bác cùng tôi đi tham quan từng tầng một trong bản thiết kế nhà phố 2 tầng 1 tum này nhé.
Tầng 1: Không Gian Kết Nối (Diện tích sàn xây dựng rộng rãi)
Bước vào từ cửa chính là không gian phòng khách liên thông. Đây là xu hướng thiết kế nhà phố 2 tầng 1 tum được ưa chuộng nhất hiện nay.
-
Phòng khách & Bếp ăn: Hai không gian này được kết nối mở, tạo cảm giác nhà sâu và rộng hơn rất nhiều. Khu vực bếp ăn rộng khoảng 20m2, đủ sức chứa cho những bữa cơm đại gia đình.
-
Phòng ngủ 01: Diện tích 10.4m2. TechHome đã tư vấn anh Cự bố trí một phòng ngủ ngay tầng 1. Đây là sự tính toán cho tương lai hoặc dành cho người lớn tuổi, hạn chế việc leo cầu thang. Rất thực tế!
-
Vệ sinh chung (WC01): Được bố trí kín đáo dưới gầm cầu thang hoặc góc khuất, diện tích 4.4m2, vừa tiết kiệm diện tích vừa đảm bảo thẩm mỹ.
Một điểm cộng lớn trong bản vẽ này là “Lối xuống bếp phụ”. Chi tiết này cho thấy sự am hiểu thói quen sinh hoạt của người Việt: Khi nhà có giỗ chạp, đông khách, một lối đi phụ sẽ giúp việc sơ chế, nấu nướng thuận tiện hơn mà không ảnh hưởng đến phòng khách sang trọng.

Tầng 2: Không Gian Riêng Tư
Lên đến tầng 2 của mẫu thiết kế nhà phố 2 tầng 1 tum này là nơi nghỉ ngơi chính của cả nhà.
-
Phòng ngủ Master (Khép kín): Diện tích lên tới 21.5m2, có vệ sinh riêng (WC03 – 4m2). Đây là không gian hưởng thụ của vợ chồng gia chủ, rộng rãi, có cửa sổ lớn đón gió.
-
Phòng ngủ 03 & 04: Diện tích lần lượt là 12.4m2 và 11.3m2. Kích thước này là vừa xinh cho các con, đủ kê giường, tủ quần áo và bàn học.
-
Vệ sinh chung (WC02): Diện tích 3.5m2, phục vụ cho 2 phòng ngủ nhỏ.
-
Ban công: Diện tích 3.5m2, nơi lý tưởng để đặt một chiếc bàn trà nhỏ, chill mỗi buổi tối.
Các bác thấy đấy, với một thiết kế nhà phố 2 tầng 1 tum, việc bố trí 3 phòng ngủ trên tầng 2 là một bài toán khó, nhưng TechHome đã giải quyết gọn gàng, đảm bảo phòng nào cũng vuông vắn và thoáng khí.

Tầng Tum: Khoảng Trời Bình Yên & Tiện Ích
Nhiều người hay bỏ qua tầng tum, nhưng trong thiết kế nhà phố 2 tầng 1 tum, đây lại là khu vực cực kỳ quan trọng.
-
Phòng thờ: Diện tích 11.8m2. Vị trí cao nhất, trang nghiêm nhất của ngôi nhà được dành cho không gian thờ cúng. Theo phong thủy, đây là vị trí “tọa cát hướng cát”, mang lại bình an cho gia chủ.
-
Kho: Một kho nhỏ 4m2 để cất đồ ít dùng. Nhà phố mà không có kho thì lộn xộn lắm các bác ạ.
-
Sân phơi: Rộng thênh thang 37m2. Chỗ này tha hồ phơi phóng, trồng rau sạch hoặc làm sân tập thể dục buổi sáng.

4. Bóc Tách Kỹ Thuật: Những Điều Ít Ai Nói Cho Bạn Biết
Là dân trong nghề, tôi khuyên các bác khi xem hồ sơ thiết kế nhà phố 2 tầng 1 tum đừng chỉ nhìn ảnh 3D. Hãy soi kỹ bản vẽ kỹ thuật. Tại công trình nhà anh Cự, TechHome đã làm rất kỹ phần này:
-
Hệ thống cửa: Chúng tôi sử dụng chi tiết cửa đi 4 cánh mở quay cho mặt tiền và cửa sổ nhôm hệ kính an toàn 6.38mm hoặc 8.38mm. Tại sao lại là kích thước này? Vì nó đảm bảo độ an toàn, cách âm, cách nhiệt tốt cho khí hậu miền biển Hải Phòng.
-
Cầu thang: Mặt bậc được ốp đá Granite tự nhiên màu đen, cổ bậc cao 176mm (tầng 1) và 171.4mm (tầng 2). Đây là chiều cao “vàng”, bước chân vừa vặn, không bị mỏi gối. Tay vịn gỗ tạo cảm giác ấm áp và chắc chắn.
-
Trần thạch cao: Hệ thống trần được thiết kế giật cấp, kết hợp đèn downlight âm trần và đèn hắt. Điều này không chỉ làm đẹp mà còn giúp phân chia không gian bằng ánh sáng rất nghệ thuật.
-
Vệ sinh: Sàn vệ sinh được thiết kế đánh dốc 1-2% về phía phễu thu sàn, chống thấm 2 lớp Sika vén thành 250mm. Chi tiết nhỏ này thôi nhưng nếu làm ẩu, sau này nhà các bác sẽ bị thấm dột, mốc meo rất khổ sở.

5. Báo Giá Tham Khảo & Lời Khuyên Của Chuyên Gia
Rất nhiều bác hỏi tôi: “Xây cái nhà như thế này hết bao nhiêu tiền?”. Thực sự để ra con số chính xác cho một thiết kế nhà phố 2 tầng 1 tum cần phải có bảng dự toán chi tiết dựa trên giá vật liệu tại thời điểm thi công. Tuy nhiên, với kinh nghiệm của TechHome, tôi xin đưa ra một khoảng giá tham khảo (năm 2025-2026) để các bác dự trù:
Bảng Dự Trù Kinh Phí Xây Dựng (Tham khảo):
| Hạng mục | Đơn giá ước tính | Ghi chú |
| Chi phí thiết kế | 108.000đ/m2 | Đã bao gồm hồ sơ kiến trúc, kết cấu, điện nước, 3D. |
| Xây dựng phần thô | ~3.800.000đ – 4.500.000đ/m2 | Nhân công + Vật liệu thô (Sắt, thép, xi măng, cát, đá…). |
| Hoàn thiện trọn gói | ~6.500.000đ – 7.500.000đ/m2 | Tùy thuộc vào chủng loại vật liệu (Gạch ốp lát, thiết bị vệ sinh, cửa…). |
Lưu ý: Đây chỉ là mức chi phí ước tính. Để nhận được báo giá chính xác và chi tiết nhất cho công trình của bạn, vui lòng liên hệ trực tiếp với chúng tôi. Hoặc để tìm hiểu rõ hơn về tiêu chuẩn vật liệu xây dựng và các yếu tố ảnh hưởng đến chi phí, bạn có thể tham khảo thêm tại các bài viết chuyên sâu về vật liệu xây dựng cao cấp trên Wikipedia.
Lời khuyên từ chuyên gia TechHome:
Khi xây thiết kế nhà phố 2 tầng 1 tum, các bác đừng ham rẻ mà chọn vật liệu kém chất lượng cho phần thô (móng, cột, dầm, sàn). Phần hoàn thiện (gạch, sơn, đèn) có thể nâng cấp sau, nhưng khung xương ngôi nhà thì phải chắc chắn ngay từ đầu. Đặc biệt với khu vực Kiến Thụy – Hải Phòng gần biển, việc chống thấm và chọn sơn ngoại thất chịu mặn là cực kỳ quan trọng.

6. Tại Sao Nên Chọn TechHome?
Giữa “ma trận” các đơn vị thiết kế, tại sao anh Cự lại chọn TechHome để gửi gắm bản thiết kế nhà phố 2 tầng 1 tum của mình?
-
Minh bạch: Chúng tôi làm việc rõ ràng trên hợp đồng. Mọi chi tiết từ bản vẽ đến vật liệu đều được quy định cụ thể.
-
Tâm huyết: Đội ngũ KTS, KS không chỉ vẽ bằng tay mà còn vẽ bằng cái tâm. Chúng tôi luôn đặt mình vào vị trí của gia chủ để tối ưu từng góc chết trong nhà.
-
Hỗ trợ trọn đời: TechHome không chỉ giao bản vẽ là xong. Chúng tôi có hotline hỗ trợ tư vấn kỹ thuật xây dựng 24/7 (0364042222 – 0387603333) để giải đáp mọi thắc mắc của thợ thuyền trong quá trình thi công.
7. Góc Chia Sẻ Đời Thường
Nói thật lòng, làm nhà là việc lớn của đời người. Có những đêm anh em TechHome chong đèn làm việc đến 2-3h sáng chỉ để chỉnh lại một cái trục định vị, hay tính toán lại số bậc cầu thang sao cho rơi vào cung “Sinh” cho gia chủ.
Công trình thiết kế nhà phố 2 tầng 1 tum của anh Cự hoàn thành hồ sơ không chỉ là niềm vui của gia đình anh mà còn là niềm tự hào của chúng tôi. Nhìn bản vẽ biến thành ngôi nhà thực tế, thấy gia đình khách hàng sống hạnh phúc trong đó, bao nhiêu mệt mỏi của anh em kiến trúc sư cũng tan biến hết.

Kết Luận
Mẫu thiết kế nhà phố 2 tầng 1 tum tại Kiến Thụy, Hải Phòng của gia đình anh Cự là minh chứng cho việc một ngôi nhà đẹp không cần phải quá cầu kỳ, mà cần sự tinh tế và công năng hợp lý.
Nếu các bác đang ấp ủ dự định xây nhà và cảm thấy ưng ý với phong cách thiết kế nhà phố 2 tầng 1 tum này, hoặc muốn có một thiết kế độc bản cho riêng mình, đừng ngần ngại liên hệ với TechHome. Chúng tôi luôn sẵn sàng lắng nghe và hiện thực hóa giấc mơ của bạn.
Đừng quên ghé thăm website nhadeptechhome.vn để xem thêm hàng trăm mẫu nhà đẹp khác nhé!
