Bạn đang sở hữu một mảnh đất vườn rộng rãi ở vùng ngoại ô hay những miền quê thanh bình như Hòa Bình? Bạn đang loay hoay tìm kiếm một không gian sống vừa sang trọng, vừa tối ưu công năng cho gia đình 2-3 thế hệ? Vậy thì đừng bỏ qua mẫu nhà cấp 4 mái nhật 3 phòng ngủ mà TechHome giới thiệu ngay dưới đây. Đây không chỉ là một căn nhà, mà là thành quả của sự thấu hiểu giữa kiến trúc sư và mong muốn về một “nơi trở về” đúng nghĩa của anh Dũng.
Tại website https://nhadeptechhome.vn/, chúng tôi luôn tin rằng mỗi ngôi nhà đều có một linh hồn riêng. Hãy cùng khám phá xem căn nhà tại Hòa Bình này có gì mà khiến nhiều chủ đầu tư “say đắm” đến thế nhé!
1. Tổng quan dự án: Khi hơi thở hiện đại chạm vào đất mường Hòa Bình
Hòa Bình với địa hình đồi núi và khí hậu mát mẻ là môi trường lý tưởng để triển khai các dòng nhà vườn. Anh Dũng – một người con của vùng đất này – đã tìm đến TechHome với một đề bài khá thực tế: “Anh muốn một ngôi nhà trông thật bề thế nhưng phải ấm cúng, không gian mở nhưng vẫn riêng tư cho các thành viên”.
Sau nhiều lần trao đổi, phương án mẫu nhà cấp 4 mái nhật 3 phòng ngủ với diện tích 132m2 đã ra đời. Đây là diện tích “vàng” cho các gia đình hiện nay, đủ rộng để khoe vẻ đẹp kiến trúc nhưng cũng đủ gọn để các thành viên luôn cảm thấy gần gũi nhau.
Thông số kỹ thuật chi tiết:
-
Chủ đầu tư: Anh Dũng.
-
Địa điểm xây dựng: Hòa Bình.
-
Diện tích sàn: 132 m2.
-
Chiều cao tầng: 4100 mm (Tạo sự thông thoáng tối đa cho ngôi nhà).
-
Phong cách kiến trúc: Nhà vườn mái Nhật hiện đại.
-
Đơn vị thiết kế & thi công: Công ty Cổ phần Kiến trúc và Xây dựng TechHome.

2. Phân tích kiến trúc ngoại thất: Vẻ đẹp thanh lịch từ sự giản đơn
Nhìn vào phối cảnh 3D của mẫu nhà cấp 4 mái nhật 3 phòng ngủ này, điểm thu hút đầu tiên chính là hệ mái Nhật màu xanh thẫm cực kỳ trang nhã. Khác với mái Thái có độ dốc lớn, mái Nhật có độ dốc vừa phải, mở ra các hướng, tạo nên vẻ đẹp cân xứng và bình dị.
Sự kết hợp màu sắc tinh tế
TechHome sử dụng tông màu trắng sứ làm chủ đạo cho toàn bộ tường ngoại thất. Sắc trắng không bao giờ lỗi mốt, giúp ngôi nhà luôn trông như mới và nổi bật giữa màu xanh của cây cỏ. Để tạo điểm nhấn, các kiến trúc sư đã khéo léo phối thêm các mảng tường màu xanh ghi ở các cột và viền cửa, kết hợp cùng đá ốp chân tường màu xám tối. Cách phối màu này không chỉ giúp mẫu nhà cấp 4 mái nhật 3 phòng ngủ thêm phần mạnh mẽ mà còn giúp bảo vệ công trình khỏi tác động của thời tiết, tránh rêu mốc ở phần chân công trình.
Hệ thống cửa và ánh sáng
Toàn bộ cửa chính và cửa sổ được sử dụng hệ nhôm kính xingfa cao cấp. Việc sử dụng kính cường lực diện tích lớn giúp ngôi nhà tận dụng tối đa ánh sáng tự nhiên, giúp không gian bên trong luôn sáng sủa và tiết kiệm điện năng. Đặc biệt, cửa chính được thiết kế dạng 2 cánh lớn với hoa văn đồng sang trọng, tạo điểm nhấn “quyền lực” ngay từ cái nhìn đầu tiên.

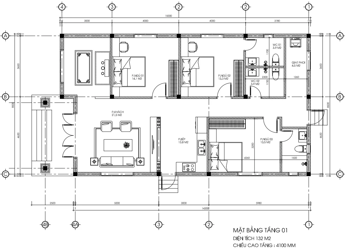
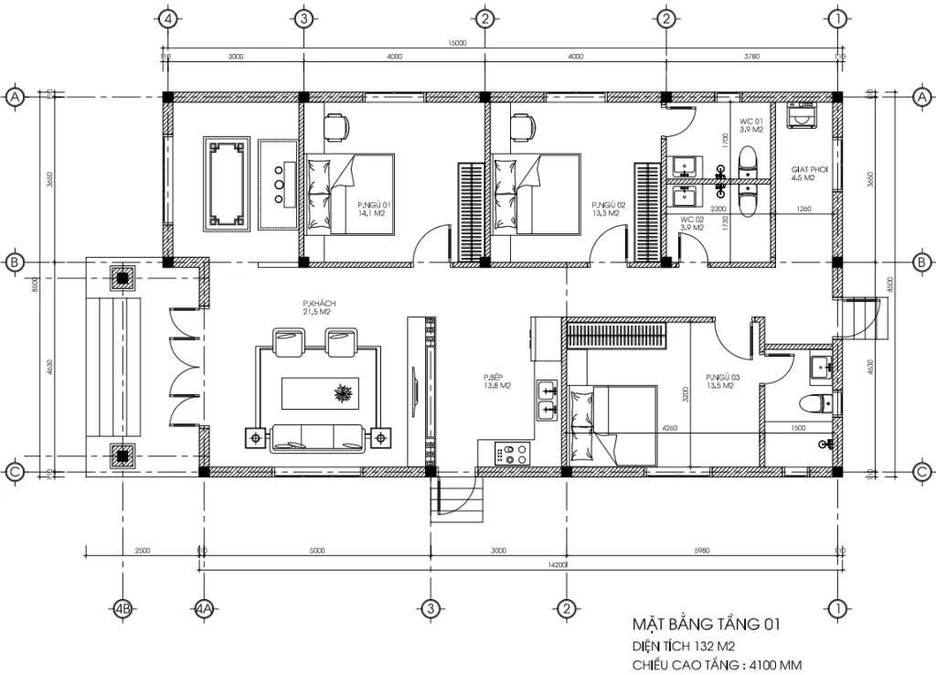
3. Bản vẽ mặt bằng công năng: Tối ưu đến từng centimet
Một ngôi nhà đẹp trước hết phải là một ngôi nhà tiện nghi. Với diện tích 132m2, TechHome đã bố trí mẫu nhà cấp 4 mái nhật 3 phòng ngủ một cách khoa học để đảm bảo sự luân chuyển không khí và giao thông thuận tiện nhất.
-
Phòng khách (21.5 m2): Nằm ngay sau sảnh chính, đây là “trái tim” của ngôi nhà. Không gian rộng rãi đủ để anh Dũng đặt một bộ sofa lớn và kệ tivi hoành tráng, sẵn sàng tiếp đón những đoàn khách quý.
-
Phòng bếp & ăn (13.8 m2): Được thiết kế liên thông với phòng khách nhưng vẫn có sự phân tách tinh tế qua cách bố trí nội thất. Khu vực bếp có cửa phụ thông ra sân bên hông, cực kỳ tiện lợi khi đi chợ về hoặc nấu nướng các món nặng mùi mà không ảnh hưởng đến phòng khách.
-
3 Phòng ngủ riêng biệt:
-
Phòng ngủ 01 (14.1 m2): với cửa sổ lớn nhìn ra sân vườn.
-
Phòng ngủ 02 (13.3 m2) và Phòng ngủ 03 (13.5 m2): 2 phòng này đều có WC khép kín, được bố trí yên tĩnh, đảm bảo tính riêng tư tuyệt đối.
-
-
WC chung (3.9 m2) : được bố trí ở vị trí gần cuối nhà, thuận tiện cho việc sử dụng chung mà vẫn đảm bảo sạch sẽ, kín đáo.
-
Khu giặt phơi (4.5 m2): Một góc nhỏ nhưng vô cùng cần thiết được đặt phía cuối nhà, giúp giữ thẩm mỹ chung cho ngoại thất.
Chiều cao tầng lên tới 4100 mm là một điểm cộng rất lớn của mẫu nhà cấp 4 mái nhật 3 phòng ngủ này. Trần nhà cao giúp không gian như rộng ra gấp đôi, đồng thời giúp giải nhiệt cực tốt trong những ngày hè oi ả của miền Bắc.

4. Tại sao mẫu nhà cấp 4 mái nhật 3 phòng ngủ lại trở thành xu hướng năm 2026?
Không phải ngẫu nhiên mà đi đâu chúng ta cũng bắt gặp những ngôi nhà mái Nhật. Dưới góc độ chuyên gia, TechHome nhận thấy mẫu nhà cấp 4 mái nhật 3 phòng ngủ sở hữu những ưu điểm vượt trội:
-
Phù hợp với khí hậu Việt Nam: Mái Nhật có khả năng thoát nước mưa nhanh và chống nóng tốt. Cấu tạo mái chồng lớp tạo ra khoảng đệm không khí giúp ngôi nhà luôn mát mẻ.
-
Tiết kiệm chi phí so với nhà tầng: Thay vì đổ tiền vào cầu thang hay các hệ cột chịu lực phức tạp của nhà cao tầng, bạn có thể dồn ngân sách đó để đầu tư vào vật liệu hoàn thiện cao cấp và nội thất xịn cho căn nhà cấp 4 của mình.
-
An toàn cho người già và trẻ nhỏ: Toàn bộ không gian sinh hoạt nằm trên một mặt sàn, loại bỏ hoàn toàn nỗi lo vấp ngã cầu thang, giúp việc di chuyển và dọn dẹp trở nên cực kỳ nhẹ nhàng.
-
Phong thủy tốt: Sự cân đối của hệ mái và mặt bằng vuông vắn trong mẫu nhà cấp 4 mái nhật 3 phòng ngủ được xem là mang lại sự ổn định, bình an và tụ lộc cho gia chủ.

5. Báo giá chi tiết thiết kế và thi công (Tham khảo 2026)
TechHome hiểu rằng, sau vẻ đẹp kiến trúc, chi phí chính là điều bạn quan tâm nhất. Chúng tôi luôn minh bạch trong báo giá để chủ đầu tư dễ dàng chuẩn bị tài chính. Với mẫu nhà cấp 4 mái nhật 3 phòng ngủ diện tích 132m2, mức đầu tư dự kiến như sau:
| Hạng mục | Đơn giá dự kiến (VNĐ/m2) | Tổng chi phí (Cho 132m2) |
| Gói Thiết kế kiến trúc & Kỹ thuật | 108.000 | ~ 15 Triệu |
| Thi công phần thô & Nhân công hoàn thiện | 3.500.000 – 4.000.000 | ~ 460 – 530 Triệu |
| Thi công trọn gói (Chìa khóa trao tay) | 6.000.000 – 7.500.000 | ~ 800 – 1 Tỷ |
Lưu ý: Đây chỉ là mức chi phí ước tính. Để nhận được báo giá chính xác và chi tiết nhất cho công trình của bạn, vui lòng liên hệ trực tiếp với chúng tôi. Hoặc để tìm hiểu rõ hơn về tiêu chuẩn vật liệu xây dựng và các yếu tố ảnh hưởng đến chi phí, bạn có thể tham khảo thêm tại các bài viết chuyên sâu về vật liệu xây dựng cao cấp trên Wikipedia.

6. Góc chuyên gia: Lời khuyên để có một mẫu nhà cấp 4 mái nhật 3 phòng ngủ “để đời”
Với kinh nghiệm hàng trăm công trình, TechHome xin chia sẻ vài bí kíp nhỏ để căn nhà của bạn không chỉ đẹp trên ảnh mà còn sướng khi ở:
-
Đừng tiết kiệm diện tích sân vườn: mẫu nhà cấp 4 mái nhật 3 phòng ngủ chỉ thực sự toả sáng khi được bao quanh bởi khoảng xanh. Dù đất hẹp, hãy cố gắng chừa ra 1-2m làm hành lang cây xanh xung quanh nhà.
-
Chú trọng hệ thống thoát nước mái: Mái Nhật có nhiều đường giao nhau (đường máng xối). Nếu thợ thi công không tay nghề cao, rất dễ gây thấm dột. Hãy chọn đơn vị uy tín như TechHome để đảm bảo kỹ thuật thi công lớp ngói và chống thấm chuẩn chỉ.
-
Lựa chọn chiều cao nhà phù hợp: Như căn nhà của anh Dũng, chúng tôi chọn cao 4.1m. Nếu làm thấp quá, nhà sẽ bị bí, nếu cao quá sẽ gây mất cân đối. 3.9m – 4.1m là con số “tỉ lệ vàng”.
-
Ánh sáng nhân tạo: Đừng chỉ dùng một bóng đèn giữa phòng. Hãy kết hợp đèn led âm trần, đèn rọi tranh và đèn hắt khe trần để tạo nên không gian ấm cúng vào buổi tối.

7. TechHome – Đơn vị hiện thực hóa ước mơ tổ ấm
Tại TechHome, chúng tôi không bán những bản vẽ vô hồn, chúng tôi bán giải pháp sống. Mỗi mẫu nhà cấp 4 mái nhật 3 phòng ngủ ra đời là cả một quá trình nghiên cứu kỹ lưỡng về hướng nắng, hướng gió và thói quen sinh hoạt của từng gia đình.
Đến với chúng tôi, bạn sẽ nhận được:
-
Hồ sơ thiết kế kỹ thuật thi công đầy đủ, chi tiết từ kiến trúc, kết cấu đến điện nước.
-
Sự hỗ trợ tư vấn kỹ thuật tận tình trong suốt quá trình xây dựng qua hotline: 036.273.2222
-
Đội ngũ kiến trúc sư, kỹ sư tâm huyết là những người đã trực tiếp tạo nên siêu phẩm cho anh Dũng.
Kết luận:
Ngôi nhà của anh Dũng tại Hòa Bình là một minh chứng cho thấy: Không cần phải là biệt thự xa hoa nhiều tầng, một mẫu nhà cấp 4 mái nhật 3 phòng ngủ được đầu tư đúng tầm vẫn đủ sức khẳng định đẳng cấp và gu thẩm mỹ của gia chủ.
Hy vọng bài viết này đã tiếp thêm động lực cho bạn trên hành trình xây dựng tổ ấm. Nếu bạn đang cần tìm một đơn vị tư vấn “có tâm và có tầm”, đừng ngần ngại truy cập ngay https://nhadeptechhome.vn/ hoặc nhấc máy gọi cho chúng tôi.
CÔNG TY CỔ PHẦN KIẾN TRÚC VÀ XÂY DỰNG TECHHOME
🏠 Website: https://nhadeptechhome.vn/
☎️ Hotline: 036.273.2222
📍 Địa chỉ: B1.1 LK18 Ô 3 – KĐT Thanh Hà – Cienco 5 – Thanh Oai- Hà Nội.
