Mẫu Thiết Kế Nhà 2 Tầng 1 Tum Hiện Đại Tại Ninh Bình: Sự Kết Hợp Hoàn Hảo Giữa Thẩm Mỹ Và Công Năng

Trong xu hướng kiến trúc đương đại, việc tối ưu hóa không gian sống trên một diện tích đất giới hạn đang là bài toán được nhiều gia chủ quan tâm. Giữa vô vàn các phong cách, mẫu thiết kế nhà 2 tầng 1 tum nổi lên như một giải pháp vàng, vừa đảm bảo tính thẩm mỹ sang trọng, vừa giải quyết triệt để bài toán công năng cho gia đình đa thế hệ.

Hôm nay, TechHome xin giới thiệu chi tiết mẫu công trình nhà ở cho gia đình của anh Tài tại Ninh Bình. Đây là một điển hình xuất sắc cho xu hướng kiến trúc hiện đại, nơi từng đường nét thiết kế đều mang đậm dấu ấn cá nhân và sự tiện nghi tuyệt đối.

1. Tổng quan dự án thiết kế nhà 2 tầng 1 tum tại Ninh Bình

Trước khi đi sâu vào chi tiết, hãy cùng điểm qua các thông số kỹ thuật ấn tượng của dự án này. Việc nắm rõ thông số giúp gia chủ hình dung rõ hơn về quy mô của một thiết kế nhà 2 tầng 1 tum tiêu chuẩn.

  • Chủ đầu tư: Anh Tài.

  • Địa điểm xây dựng: Ninh Bình.

  • Đơn vị thiết kế: Công ty Cổ phần Kiến trúc và Xây dựng TechHome.

  • Loại hình công trình: Nhà ở gia đình.

  • Phong cách: Hiện đại , mái bằng.

  • Kích thước xây dựng: Mặt tiền 7.2m x Chiều sâu 14m.

  • Công năng chính:

    • Tầng 1: Phòng khách, Bếp ăn, 02 Phòng ngủ, WC chung.

    • Tầng 2: 03 Phòng ngủ, Phòng sinh hoạt chung, WC, Khu giặt.

    • Tầng Tum: Sân chơi, Sân phơi.

Với diện tích xây dựng khoảng 100m2 sàn mỗi tầng, bản thiết kế nhà 2 tầng 1 tum này cung cấp không gian sống rộng rãi cho gia đình từ 5-7 thành viên, đảm bảo sự riêng tư cần thiết nhưng vẫn giữ được sự kết nối ấm cúng.

thiết kế nhà 2 tầng 1 tum

2. Phối cảnh ngoại thất: Vẻ đẹp hiện đại, phóng khoáng

Ấn tượng đầu tiên khi nhìn vào bản thiết kế nhà 2 tầng 1 tum của gia đình anh Tài chính là sự khỏe khoắn, mạch lạc trong hình khối kiến trúc.

Kiến trúc hình khối và màu sắc

Dựa trên hình ảnh phối cảnh 3D, ngôi nhà được thiết kế theo phong cách hiện đại với các khối hộp vuông vức xếp chồng lên nhau một cách nghệ thuật. Tông màu chủ đạo là trắng sứ tinh khôi kết hợp với màu xám ghi của gạch ốp tường và các mảng tường trang trí. Sự tương phản nhẹ nhàng này giúp công trình trở nên thanh thoát và không bị lỗi mốt theo thời gian.

Điểm nhấn đắt giá của mặt tiền chính là hệ thống ban công đua rộng và các lam trang trí giả gỗ tại trần ban công và khu vực tầng tum. Chi tiết này không chỉ giảm bớt sự cứng nhắc của bê tông cốt thép mà còn mang lại cảm giác ấm áp, gần gũi với thiên nhiên.

Hệ thống cửa và ánh sáng

Để tối ưu hóa ánh sáng tự nhiên cho một thiết kế nhà 2 tầng 1 tum, các kiến trúc sư TechHome đã sử dụng tối đa hệ thống cửa nhôm kính Xingfa cao cấp.

  • Hệ cửa chính 4 cánh mở quay rộng rãi, bề thế.

  • Các cửa sổ lớn sử dụng kính dày 8.38mm hoặc 6.38mm đảm bảo an toàn và cách âm.

Việc sử dụng vách kính lớn thay cho tường gạch đặc ở mặt tiền giúp ngôi nhà “ăn gian” được chiều rộng, tạo cảm giác không gian mở đa chiều, kết nối trực tiếp với cảnh quan sân vườn bên ngoài.

thiết kế nhà 2 tầng 1 tum

3. Phân tích mặt bằng công năng: Bài toán diện tích được giải quyết triệt để

Giá trị cốt lõi của một bản thiết kế nhà 2 tầng 1 tum không chỉ nằm ở vẻ ngoài hào nhoáng mà còn ở sự bố trí thông minh bên trong. Hãy cùng phân tích chi tiết cách các kiến trúc sư TechHome sắp xếp không gian cho gia đình anh Tài.

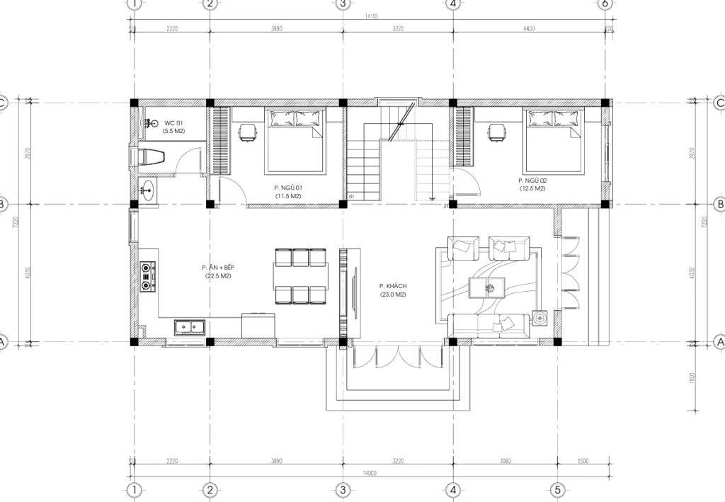
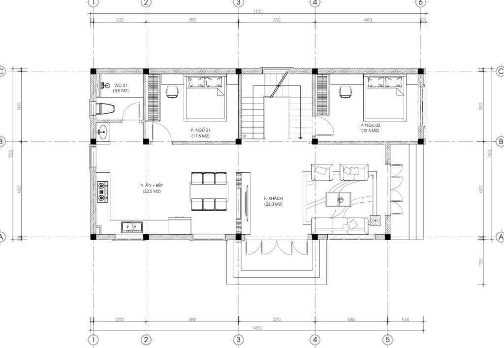
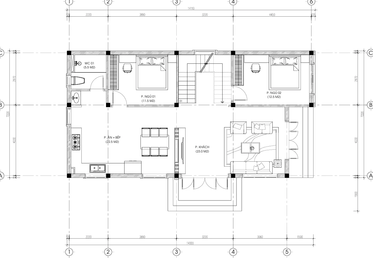
Tầng 1: Không gian kết nối và nghỉ ngơi

Mặt bằng tầng 1 được quy hoạch rất khoa học với diện tích xây dựng 14m chiều sâu.

  • Phòng khách (23m2): Được bố trí ngay sảnh chính, là bộ mặt của ngôi nhà với không gian rộng rãi, vuông vắn, thuận tiện cho việc kê sofa lớn và kệ tivi hiện đại.

  • Phòng bếp + Ăn (22.5m2): Nằm liên thông với phòng khách nhưng vẫn có sự phân tách nhẹ nhàng bởi vách ngăn hoặc cầu thang, giúp mùi thức ăn không ảnh hưởng đến khu vực tiếp khách. Diện tích này đủ cho một bàn ăn lớn.

  • Khối phòng ngủ: Điểm đặc biệt của thiết kế nhà 2 tầng 1 tum này là tầng 1 được bố trí tới 02 phòng ngủ (Phòng ngủ 01: 11.5m2 và Phòng ngủ 02: 12.5m2). Đây là giải pháp tuyệt vời cho gia đình có người lớn tuổi không tiện leo cầu thang.

  • Vệ sinh chung (WC01 – 5.5m2): Đặt ở vị trí kín đáo cuối nhà, đảm bảo tế nhị và vệ sinh.

mặt bằng thiết kế nhà 2 tầng 1 tum

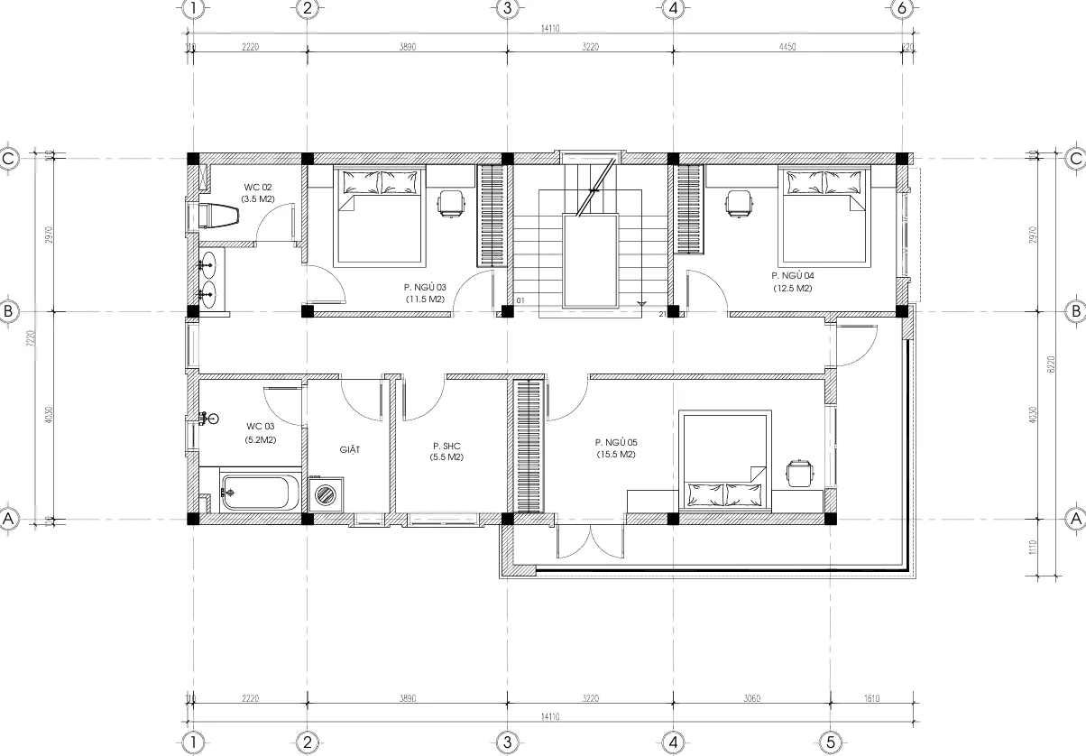
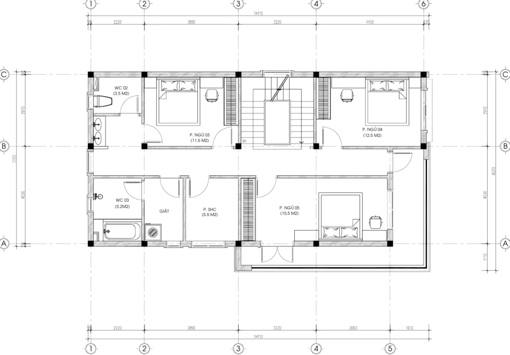
Tầng 2: Không gian riêng tư cho từng thành viên

Di chuyển lên tầng 2 thông qua cầu thang bộ rộng 1m, mặt bậc ốp đá Granite đen sang trọng, chúng ta đến với không gian nghỉ ngơi chính.

  • Hệ thống 03 phòng ngủ: Tầng 2 bao gồm Phòng ngủ 03 (11.5m2), Phòng ngủ 04 (12.5m2) và Phòng ngủ 05 (15.5m2). Việc bố trí 3 phòng ngủ trên một sàn đòi hỏi sự tính toán kỹ lưỡng trong thiết kế nhà 2 tầng 1 tum để không phòng nào bị bí bách. Các phòng đều có cửa sổ hướng ra thoáng.

  • Phòng sinh hoạt chung (5.5m2): Một không gian nhỏ nhưng ấm cúng nằm ở sảnh thang, nơi các thành viên có thể ngồi đọc sách hoặc trò chuyện trước khi về phòng riêng.

  • Khu vực vệ sinh: Tầng này được trang bị 02 nhà vệ sinh (WC02 và WC03) cùng khu vực giặt riêng biệt, đáp ứng nhu cầu sinh hoạt cao điểm của buổi sáng.

mặt bằng thiết kế nhà 2 tầng 1 tum

Tầng Tum: Điểm nhấn đắt giá của công trình

Tầng tum chính là yếu tố định danh cho mẫu thiết kế nhà 2 tầng 1 tum. Thay vì xây dựng hết diện tích sàn tầng 3 tốn kém, việc làm tum mang lại hiệu quả kinh tế và thẩm mỹ cao.

  • Sân chơi và sân phơi: Phần lớn diện tích tầng tum được dành cho sân thượng rộng lớn. Tại đây, gia chủ bố trí hệ thống lam che nắng nghệ thuật, có thể đặt bàn trà, trồng cây cảnh, biến nơi đây thành “Sky Bar” tại gia [Hình ảnh phối cảnh].

  • Chống nóng và kỹ thuật: Tầng tum đóng vai trò như một lớp đệm cách nhiệt, giúp các phòng ngủ ở tầng 2 mát mẻ hơn vào mùa hè. Bản vẽ mặt cắt cho thấy sàn mái được xử lý chống thấm và đổ đất trồng cây rất kỹ lưỡng.

4. Tại sao nên chọn thiết kế nhà 2 tầng 1 tum thay vì 3 tầng?

Nhiều khách hàng tại Ninh Bình thường phân vân giữa việc xây nhà 3 tầng trọn vẹn hay chọn thiết kế nhà 2 tầng 1 tum. Dưới đây là những lý do khiến phương án của anh Tài trở nên ưu việt:

  1. Tiết kiệm chi phí xây dựng: Việc giảm bớt diện tích xây dựng tường bao và nội thất tầng 3 giúp gia chủ tiết kiệm từ 15-20% tổng chi phí so với nhà 3 tầng, nhưng vẫn đảm bảo đủ công năng (5 phòng ngủ).

  2. Tỷ lệ hình khối hài hòa: Với mặt tiền 7.2m, chiều cao của thiết kế nhà 2 tầng 1 tum tạo nên tỷ lệ vàng, giúp ngôi nhà trông vững chãi, cân đối, không bị “lênh khênh” như các nhà ống cao tầng diện tích nhỏ.

  3. Không gian xanh: Tầng tum tạo ra khoảng lùi không gian, là nơi lý tưởng để bố trí vườn thượng uyển, giúp ngôi nhà “thở” và đón gió tốt hơn.

thiết kế nhà 2 tầng 1 tum

5. Chi tiết kỹ thuật và vật liệu hoàn thiện

Một bản thiết kế nhà 2 tầng 1 tum đẹp không thể thiếu sự chỉn chu trong vật liệu. Hồ sơ kỹ thuật thi công của TechHome quy định rất rõ ràng:

  • Sàn: Lát gạch Granite vân đá kích thước 800x800mm cho phòng khách và các khu vực chung, tạo cảm giác rộng rãi và sang trọng. Phòng ngủ sử dụng gạch chống trơn hoặc sàn gỗ tùy chọn.

  • Cầu thang: Tay vịn gỗ kết hợp lan can sắt nghệ thuật hoặc kính, mặt bậc đá Granite tự nhiên màu đen, cổ bậc đá trắng tạo sự tương phản sạch sẽ.

  • Trần: Sử dụng trần thạch cao chìm, sơn trắng kết hợp đèn lon âm trần để tăng chiều cao thông thủy. Một số khu vực điểm nhấn sử dụng trần nhựa giả gỗ.

  • Cửa sổ và vách kính: Sử dụng nhôm hệ kết hợp kính an toàn dày 6.38mm đến 8.38mm. Đặc biệt các cửa sổ đều có khung sắt bảo vệ sơn tĩnh điện bên trong, đảm bảo an ninh tuyệt đối.

Để tìm hiểu rõ hơn về tiêu chuẩn vật liệu xây dựng và các yếu tố ảnh hưởng đến chi phí, bạn có thể tham khảo thêm tại các bài viết chuyên sâu về vật liệu xây dựng cao cấp trên Wikipedia.

thiết kế nhà 2 tầng 1 tum

6. Lưu ý phong thủy trong thiết kế nhà 2 tầng 1 tum

Trong văn hóa người Việt, phong thủy là yếu tố không thể bỏ qua. Với mẫu thiết kế nhà 2 tầng 1 tum này, TechHome đã khéo léo xử lý các yếu tố phong thủy cơ bản:

  • Cầu thang: Được bố trí nép dọc theo nhà, số bậc cầu thang từ tầng 1 lên tầng 2 là 21 bậc (cung Sinh trong Sinh – Lão – Bệnh – Tử).

  • Hướng bếp và ban thờ: Được tính toán dựa trên tuổi của gia chủ (anh Tài) để đón tài lộc.

  • Thông gió: Hệ thống cửa sổ được bố trí đối lưu, giúp luống khí tươi luôn luân chuyển từ cửa chính lên đến giếng trời tầng tum.

7. TechHome – Đơn vị kiến tạo những công trình mơ ước

Mẫu thiết kế nhà 2 tầng 1 tum của gia đình anh Tài tại Ninh Bình là minh chứng rõ nét cho năng lực của đội ngũ TechHome. Chúng tôi không chỉ vẽ nên những ngôi nhà đẹp trên giấy, mà còn cung cấp giải pháp thi công khả thi, bền vững và tối ưu chi phí.

Hồ sơ thiết kế kỹ thuật thi công của chúng tôi bao gồm đầy đủ hàng trăm bản vẽ từ kiến trúc, kết cấu, điện nước đến chi tiết cửa, lát sàn… đảm bảo thợ thi công có thể thực hiện chính xác 100% ý đồ thiết kế.

Quy trình làm việc tại TechHome:

  1. Khảo sát hiện trạng: Đo đạc kích thước đất thực tế .

  2. Lên phương án mặt bằng: Tối ưu hóa công năng sử dụng.

  3. Dựng phối cảnh 3D: Giúp khách hàng nhìn thấy ngôi nhà tương lai.

  4. Triển khai hồ sơ kỹ thuật: Chi tiết hóa từng viên gạch, cây thép.

Kết luận

Mẫu thiết kế nhà 2 tầng 1 tum đang và sẽ tiếp tục là xu hướng dẫn đầu trong phân khúc nhà ở gia đình tại Việt Nam những năm tới. Nó là sự dung hòa giữa khát vọng về một không gian sống đẳng cấp và thực tế ngân sách của nhiều gia đình trẻ.

Nếu bạn yêu thích mẫu nhà của anh Tài tại Ninh Bình hoặc đang ấp ủ một ý tưởng thiết kế nhà 2 tầng 1 tum cho riêng mình, đừng ngần ngại liên hệ với TechHome. Chúng tôi sẵn sàng lắng nghe và hiện thực hóa giấc mơ an cư của bạn.

CÔNG TY CỔ PHẦN KIẾN TRÚC VÀ XÂY DỰNG TECHHOME

  • Địa chỉ: B1.1 LK17 – Ô số 4, KĐT Thanh Hà, Thanh Oai, Hà Nội.

  • Hotline hỗ trợ tư vấn kỹ thuật: 0364.042.222 – 0387.603.333.

  • Xem thêm các dự án nổi bật khác của Techhome tại https://nhadeptechhome.vn/

Hãy để TechHome đồng hành cùng bạn kiến tạo nên những tổ ấm vững bền!

Để lại một bình luận

Email của bạn sẽ không được hiển thị công khai. Các trường bắt buộc được đánh dấu *

    Vui lòng nhấn nút YÊU CẦU TƯ VẤN và đợi 1 - 2 giây đến khi thấy thông báo thành công

    YÊU CẦU TƯ VẤN