Trong bối cảnh quỹ đất đô thị ngày càng hạn hẹp, các mẫu nhà phố, nhà ống luôn là bài toán khó về việc cân đối giữa công năng và thẩm mỹ. Tại Hải Phòng, nhu cầu xây dựng tổ ấm vừa hiện đại, vừa đảm bảo sinh hoạt cho gia đình đông thành viên đang tăng cao. Dự án thiết kế nhà 2 tầng của chủ đầu tư Ông Đồng Huy Lan và Bà Trương Thị Trạch do TechHome thực hiện chính là một ví dụ điển hình cho giải pháp kiến trúc thông minh, tối ưu hóa diện tích mà vẫn giữ được nét đẹp thời thượng.
Bài viết này sẽ đi sâu phân tích chi tiết hồ sơ thiết kế, từ mặt bằng công năng, giải pháp mặt tiền đến các chi tiết kỹ thuật, giúp bạn có cái nhìn toàn diện về một quy trình thiết kế nhà 2 tầng chuyên nghiệp.
1. Tổng quan dự án thiết kế nhà 2 tầng tại Hải Phòng
Trước khi đi vào chi tiết bản vẽ, hãy cùng điểm qua các thông số vàng của công trình này. Đây là những dữ liệu quan trọng giúp các gia chủ khác có thể tham chiếu khi lên kế hoạch cho ngôi nhà của mình.
-
Chủ đầu tư: Ông Đồng Huy Lan – Bà Trương Thị Trạch.
-
Địa điểm xây dựng: Hải Phòng.
-
Đơn vị thực hiện: Công ty Cổ phần Kiến trúc và Xây dựng TechHome.
-
Loại hình: Nhà ở gia đình (Nhà phố/Nhà ống).
-
Quy mô: 2 tầng.
-
Kích thước xây dựng: Mặt tiền 5.5m x Chiều sâu 18.6m.
-
Phong cách: Kiến trúc hiện đại, sử dụng sơn hiệu ứng và hình khối mạnh mẽ.
Việc thiết kế nhà 2 tầng với kích thước mặt tiền 5.5m là một lợi thế lớn so với các căn nhà ống 3m hay 4m thông thường. Kích thước này cho phép kiến trúc sư TechHome thỏa sức sáng tạo trong việc bố trí nội thất và chia không gian giao thông trong nhà.

2. Phân tích mặt tiền: Vẻ đẹp từ sự tối giản và vật liệu mới
Dựa trên bản vẽ, ngoại thất của ngôi nhà gây ấn tượng mạnh bởi ngôn ngữ thiết kế hiện đại, phi đối xứng nhưng lại vô cùng hài hòa.
2.1. Sự phối hợp màu sắc và vật liệu
Trong các mẫu thiết kế nhà 2 tầng hiện nay, việc lạm dụng phào chỉ rườm rà đã trở nên lỗi thời. Thay vào đó, TechHome đã áp dụng tư duy thẩm mỹ mới cho gia đình ông Lan:
-
Sơn giả đá và Sơn hiệu ứng giả bê tông: Bản vẽ chỉ định rõ việc sử dụng các mảng tường sơn hiệu ứng. Đây là xu hướng “hot” nhất hiện nay, mang lại vẻ đẹp thô mộc, cá tính nhưng cực kỳ sang trọng và bền bỉ trước khí hậu khắc nghiệt của miền Bắc.
-
Hệ thống cửa nhôm kính: Toàn bộ mặt tiền sử dụng cửa nhôm hệ kết hợp kính an toàn (dày 8.38mm và 6.38mm). Điều này không chỉ giúp lấy sáng tự nhiên tối đa mà còn mở rộng tầm nhìn, giúp mặt tiền ngôi nhà trông thoáng đãng hơn.
2.2. Hình khối kiến trúc
Khối kiến trúc mặt tiền được xử lý giật cấp thông minh. Ban công tầng 2 đua ra vừa phải, kết hợp với mái che tạo nên tỉ lệ cân đối. Việc thiết kế nhà 2 tầng chú trọng vào hình khối giúp ngôi nhà trông vững chãi, khỏe khoắn, thoát khỏi cảm giác “hình hộp” nhàm chán thường thấy ở các đô thị.

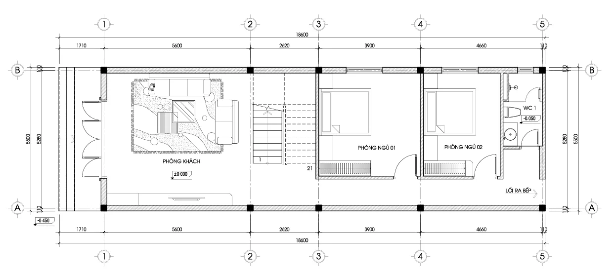
3. Bản vẽ mặt bằng công năng: Bài toán diện tích được giải quyết triệt để
Điểm đắt giá nhất trong hồ sơ thiết kế nhà 2 tầng này chính là cách bố trí công năng. Với chiều dài lên tới 18.6m, kiến trúc sư TechHome đã khéo léo chia không gian để đảm bảo không có diện tích thừa.
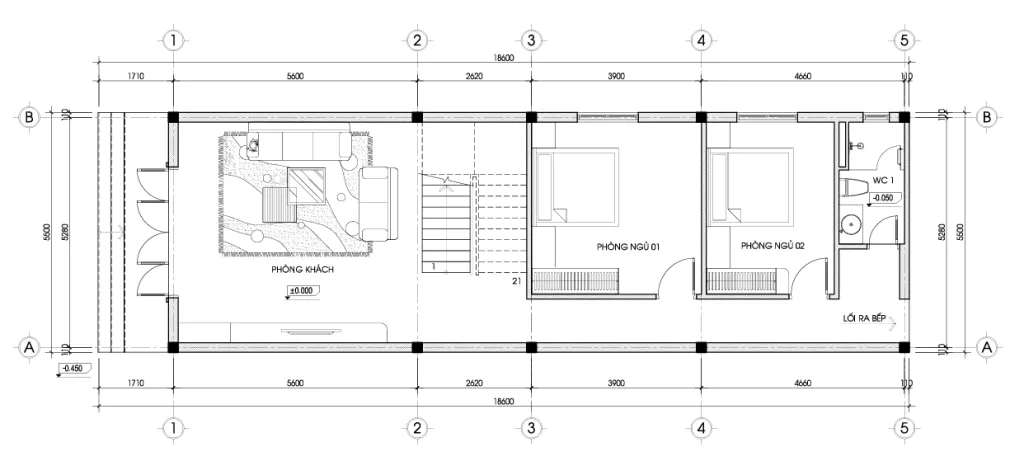
3.1. Tầng 1: Không gian kết nối và nghỉ ngơi
Thông thường, tầng 1 nhà phố chỉ bố trí phòng khách và bếp. Tuy nhiên, ở bản thiết kế nhà 2 tầng này, gia chủ có nhu cầu đặc biệt về phòng ngủ ngay tại tầng trệt.
-
Phòng khách: Nằm ngay sảnh chính, tiếp cận trực tiếp từ cửa vào. Đây là bộ mặt của ngôi nhà, nơi thể hiện gu thẩm mỹ của gia chủ.
-
Hai phòng ngủ (01 & 02): Việc bố trí tới 02 phòng ngủ ở tầng 1 là một giải pháp táo bạo và rất thực tế, đặc biệt phù hợp cho gia đình có người lớn tuổi không tiện leo cầu thang.
-
Hành lang giao thông: Trục hành lang chạy dọc nhà kết nối từ phòng khách xuống các phòng ngủ và lối ra bếp phía sau, đảm bảo sự thông gió xuyên suốt.
-
Khu vực bếp: Bản vẽ ghi chú “Lối ra bếp”, cho thấy bếp có thể được tách biệt ở công trình phụ phía sau hoặc phần cuối đất, giúp ngăn mùi thức ăn ảnh hưởng lên nhà chính – một nét văn hóa sinh hoạt rất đặc trưng của người Việt.

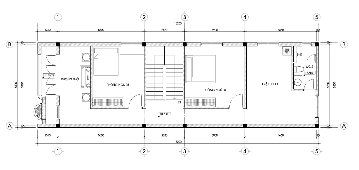
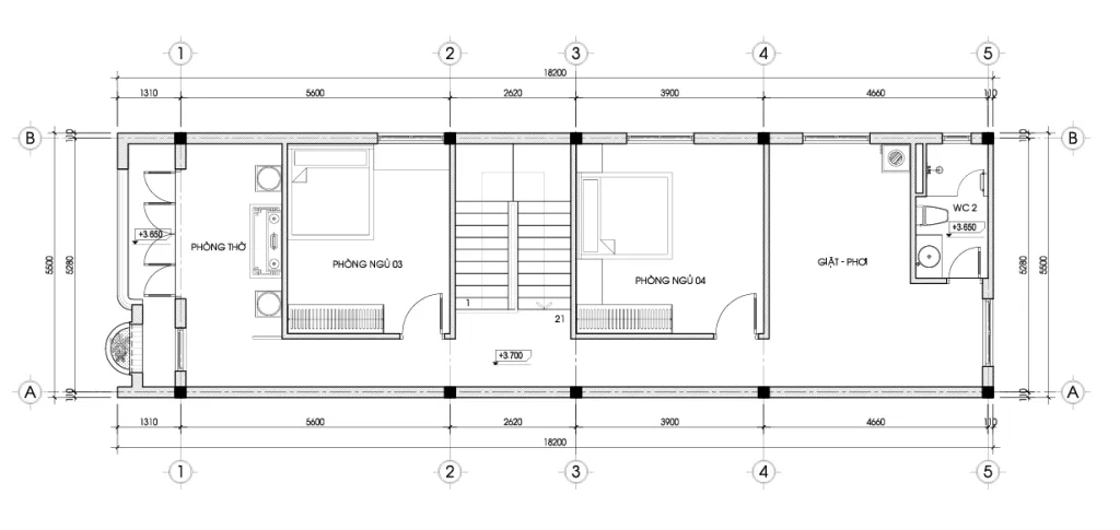
3.2. Tầng 2: Sự riêng tư và Tâm linh
Lên đến tầng 2, không gian được dành cho sự yên tĩnh và nghỉ ngơi:
-
Phòng thờ: Đặt ở vị trí trang trọng nhất phía trước nhà, hướng ra ban công. Trong phong thủy thiết kế nhà 2 tầng, vị trí phòng thờ luôn được ưu tiên để đón vượng khí.
-
Hai phòng ngủ tiện nghi (03 & 04): Tiếp tục bổ sung thêm 2 phòng ngủ, nâng tổng số phòng ngủ lên 4. Điều này khẳng định ngôi nhà này hoàn toàn đáp ứng được nhu cầu của một gia đình 3 thế hệ (Ông bà, bố mẹ, con cái) cùng chung sống thoải mái.
-
Sân giặt phơi: Bố trí kín đáo phía sau, đảm bảo thẩm mỹ cho mặt tiền nhưng vẫn đón được nắng gió tự nhiên.

4. Giải pháp kỹ thuật và Kết cấu trong thiết kế nhà 2 tầng
Một bản vẽ đẹp không chỉ nằm ở bố trí phòng ốc, mà còn ở các chi tiết kỹ thuật đảm bảo sự bền vững. Hồ sơ của TechHome thể hiện rất rõ sự tỉ mỉ này.
4.1. Hệ thống cửa và an toàn
Trong quá trình thiết kế nhà 2 tầng, việc lựa chọn quy cách cửa là vô cùng quan trọng.
-
Cửa chính : Sử dụng cửa 4 cánh mở quay, kích thước lớn (2700x2700mm). Đây là loại cửa đại hội giúp đón tài lộc và thuận tiện khi nhà có công việc lớn.
-
Cửa thông phòng : Kích thước chuẩn Lỗ Ban, sử dụng nhôm hệ kính mờ hoặc kính trong tùy vị trí, đảm bảo sự riêng tư nhưng vẫn hiện đại.
-
Cửa sổ : Bố trí dọc theo chiều dài nhà để lấy sáng cho các phòng ngủ. Việc sử dụng kính an toàn 6.38mm là lựa chọn kinh tế và an toàn.
4.2. Cầu thang và giao thông đứng
Cầu thang là xương sống của ngôi nhà 2 tầng. Bản vẽ chi tiết cầu thang cho thấy:
-
Kết cấu: Bản thang bê tông cốt thép chắc chắn.
-
Vật liệu: Mặt bậc ốp đá Granite (đá hoa cương), cổ bậc ốp đá trắng. Sự tương phản đen – trắng này không chỉ đẹp mà còn giúp người đi dễ dàng phân biệt bậc thang, tránh vấp ngã.
-
Tay vịn: Sự kết hợp giữa con tiện gỗ và tay vịn gỗ mang lại cảm giác ấm áp, cầm nắm chắc chắn, khắc phục nhược điểm lạnh lẽo của tay vịn sắt hay kính.
4.3. Hệ thống trần và đèn
Yếu tố ánh sáng quyết định cảm xúc của không gian nội thất. Trong mẫu thiết kế nhà 2 tầng này, các KTS đã sử dụng hệ trần thạch cao khung xương chìm giật cấp.
-
Kết hợp giữa đèn Downlight âm trần và đèn hắt khe rèm tạo nên ánh sáng đa chiều, sang trọng.
-
Tại các vị trí như phòng khách hay phòng ngủ, trần thạch cao giúp giấu đi dầm bê tông, tạo mặt phẳng thẩm mỹ hoàn hảo.
Để tìm hiểu rõ hơn về tiêu chuẩn vật liệu xây dựng và các yếu tố ảnh hưởng đến chi phí, bạn có thể tham khảo thêm tại các bài viết chuyên sâu về vật liệu xây dựng cao cấp trên Wikipedia.

5. Kinh nghiệm thi công từ bản vẽ thiết kế nhà 2 tầng
Từ bộ hồ sơ chi tiết của gia đình ông Lan, chúng ta có thể rút ra nhiều kinh nghiệm quý báu khi thi công thiết kế nhà 2 tầng:
-
Tuân thủ kích thước hình học: Các bản vẽ mặt bằng xây dựng đã định vị rất rõ kích thước tường xây 110mm và 220mm. Việc tuân thủ đúng kích thước này đảm bảo diện tích lọt lòng (thông thủy) cho việc kê đồ nội thất sau này.
-
Chống thấm và thoát nước mái: Bản vẽ mặt bằng mái sử dụng mái tôn chống nóng với độ dốc thoát nước tiêu chuẩn. Đây là giải pháp tiết kiệm chi phí hơn mái bằng bê tông cốt thép toàn khối nhưng vẫn đảm bảo hiệu quả cách nhiệt tuyệt vời cho tầng 2.
-
Lựa chọn vật liệu lát sàn : Sự phân chia rõ ràng giữa gạch Granite 800×800 cho phòng khách (sang trọng) và gạch Ceramic chống trơn 300×600, 400×400 cho khu vực bếp, vệ sinh, sân phơi (an toàn) là một điểm cộng lớn trong tư duy thiết kế nhà 2 tầng của TechHome.

6. Tại sao nên chọn đơn vị thiết kế chuyên nghiệp như TechHome?
Nhìn vào độ dày và chi tiết của bộ hồ sơ, từ mặt bằng bố trí nội thất, mặt đứng, mặt cắt cho đến chi tiết từng con tiện cầu thang, chúng ta thấy được tầm quan trọng của việc thuê thiết kế.
-
Tránh phát sinh: Một bộ hồ sơ thiết kế nhà 2 tầng đầy đủ giúp gia chủ dự toán chính xác khối lượng vật tư (gạch, đá, sơn, cửa…), tránh tình trạng “đội vốn” khi xây dựng.
-
Tối ưu hóa không gian: Với diện tích 5.5×18.6m, nếu tự xây dựng theo kinh nghiệm, rất khó để bố trí được 4 phòng ngủ thoáng đãng như phương án của KTS TechHome.
-
Hồ sơ pháp lý đầy đủ: Bản vẽ kỹ thuật là cơ sở để xin cấp phép xây dựng và hoàn công sau này.

7. Xu hướng thiết kế nhà 2 tầng trong tương lai
Dự án nhà ông Lan tại Hải Phòng phản ánh rõ nét xu hướng nhà ở hiện đại: Chú trọng vào chất lượng sống bên trong hơn là vẻ hào nhoáng phù phiếm bên ngoài. Xu hướng thiết kế nhà 2 tầng sắp tới sẽ tiếp tục đề cao:
-
Không gian mở, hạn chế vách ngăn cứng.
-
Mang mảng xanh vào không gian sống (giếng trời, ban công cây xanh).
-
Sử dụng vật liệu mới, thân thiện môi trường và dễ thi công.

Kết luận
Mẫu thiết kế nhà 2 tầng của gia đình ông Đồng Huy Lan tại Hải Phòng là một minh chứng xuất sắc cho năng lực của TechHome. Không chỉ giải quyết bài toán về số lượng phòng ngủ lớn trên một diện tích đất phố, công trình còn đảm bảo tính thẩm mỹ, hiện đại và chuẩn phong thủy.
Nếu bạn đang sở hữu một mảnh đất tương tự và mong muốn xây dựng một tổ ấm tiện nghi, khoa học, đừng ngần ngại đầu tư vào một bản vẽ thiết kế chất lượng. Một bản thiết kế nhà 2 tầng hoàn hảo chính là nền móng vững chắc nhất cho hạnh phúc gia đình bạn.
Liên hệ ngay với TechHome để được tư vấn các giải pháp kiến trúc và xây dựng tối ưu nhất!
Xem thêm các dự án nổi bật khác của Techhome tại https://nhadeptechhome.vn/
