Mẫu Nhà Ống 3 Tầng 1 Tum Hiện Đại Tại Phú Thọ: Đỉnh Cao Kiến Trúc Phố 2026

Trong bối cảnh quỹ đất đô thị ngày càng thu hẹp, việc tìm kiếm một giải pháp kiến trúc vừa đảm bảo thẩm mỹ, vừa tối ưu công năng là bài toán nan giải của nhiều gia chủ. Dự án nhà ở gia đình của chị Hiền tại Phú Thọ do Techhome thực hiện chính là lời giải hoàn hảo. Đây là một mẫu nhà ống 3 tầng 1 tum hiện đại tiêu biểu, kết hợp hài hòa giữa nét sang trọng và sự tiện nghi đột phá.

1. Tại sao mẫu nhà ống 3 tầng 1 tum hiện đại lại trở thành xu hướng?

Không phải ngẫu nhiên mà các gia đình trẻ hiện nay lại ưu tiên lựa chọn mẫu nhà ống 3 tầng 1 tum hiện đại. Kiểu thiết kế này mang lại ba lợi ích cốt lõi:

  • Tối ưu diện tích: Với chiều cao 3 tầng và thêm 1 tầng tum, gia chủ có thêm không gian cho các phòng chức năng phụ như phòng thờ, kho hay sân phơi mà không tốn thêm diện tích đất.

  • Thông gió và ánh sáng: Tầng tum đóng vai trò như một “phễu” lọc khí, giúp ngôi nhà luôn thông thoáng, tránh cảm giác bí bách đặc trưng của nhà ống.

  • Thẩm mỹ trẻ trung: Phong cách hiện đại sử dụng các mảng khối hình học mạnh mẽ, vật liệu mới như kính, đá tự nhiên và gỗ nhựa, tạo nên diện mạo sang trọng vượt thời gian.

Phối cảnh mặt tiền mẫu nhà ống 3 tầng 1 tum hiện đại ốp đá sang trọng tại Phú Thọ.
Phối cảnh mặt tiền mẫu nhà ống 3 tầng 1 tum hiện đại ốp đá sang trọng tại Phú Thọ.

2. Phân tích kiến trúc ngoại thất công trình nhà chị Hiền – Phú Thọ

Nhìn vào phối cảnh 3D, bạn sẽ thấy mẫu nhà ống 3 tầng 1 tum hiện đại này sở hữu một mặt tiền cực kỳ ấn tượng.

Tầng 1: Sự đẳng cấp từ vật liệu đá

Toàn bộ mặt tiền tầng 1 được Techhome tư vấn ốp đá Marble vân mây tone vàng ấm. Lớp đá này không chỉ giúp bảo vệ tường khỏi ẩm mốc mà còn tạo cảm giác vững chãi, xa hoa ngay từ cái nhìn đầu tiên. Hệ cửa nhôm kính Xingfa bản lớn giúp kết nối không gian trong – ngoài một cách tinh tế.

Tầng 2 và 3: Những mảng khối nghệ thuật

Điểm nhấn của mẫu nhà ống 3 tầng 1 tum hiện đại này nằm ở cách phối màu. Sự kết hợp giữa tông trắng chủ đạo và các mảng tường màu cam đất tạo nên sự tương phản nhẹ nhàng nhưng sâu sắc. Các đường chỉ dọc trang trí ở mặt tiền giúp ngôi nhà trông cao ráo và thanh thoát hơn.

Tầng tum: Khoảng thở xanh giữa lòng phố

Khu vực tầng tum được thiết kế mở với sân chơi phía trước. Đây là nơi gia chủ có thể trồng cây xanh, đặt một bộ bàn trà để thư giãn mỗi buổi tối. Việc đưa thiên nhiên vào mẫu nhà ống 3 tầng 1 tum hiện đại là tiêu chí hàng đầu mà Techhome luôn hướng tới để cải thiện chất lượng sống.

Góc nghiêng mẫu nhà ống 3 tầng 1 tum hiện đại


3. Chi tiết bố trí công năng: Tối ưu đến từng centimet

Một ngôi nhà đẹp thôi chưa đủ, nó phải là một bộ máy vận hành trơn tru cho sinh hoạt hàng ngày. Hãy cùng khám phá hồ sơ thiết kế kỹ thuật thi công của dự án này.

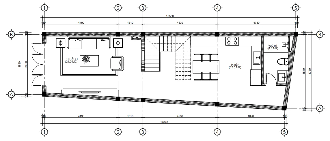
Tầng 1: Không gian sinh hoạt chung (Diện tích: 65m2)

  • Phòng khách (21 m2): Nằm ngay sau sảnh chính, rộng rãi và thoáng đãng.

  • Phòng bếp & ăn (17.5 m2): Được ngăn cách khéo léo với phòng khách bằng cầu thang bộ.

  • Cầu thang: Gồm 21 bậc, chiều cao mỗi bậc 176mm, đảm bảo yếu tố phong thủy “Sinh – Lão – Bệnh – Tử”.

  • WC 01 (4.3 m2): Bố trí kín đáo ở cuối nhà.

Bản vẽ bố trí công năng tầng 1 mẫu nhà ống 3 tầng 1 tum hiện đại diện tích 65m2.
Bản vẽ bố trí công năng tầng 1 mẫu nhà ống 3 tầng 1 tum hiện đại diện tích 65m2.

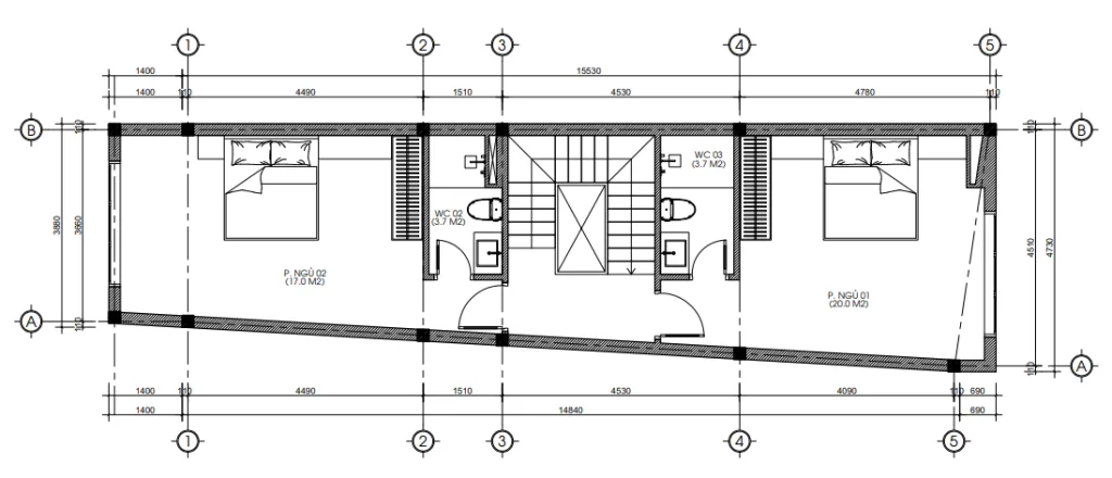
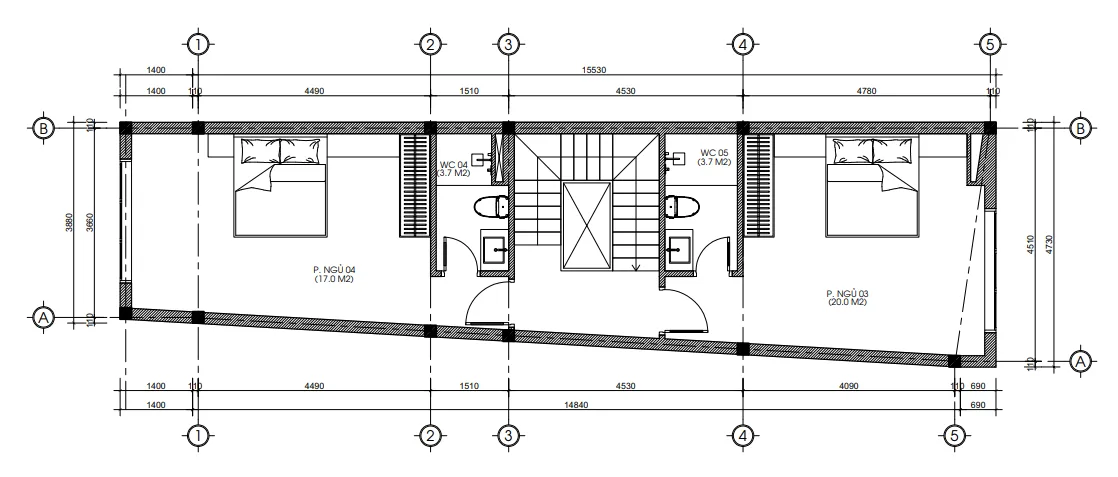
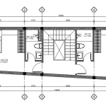
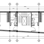
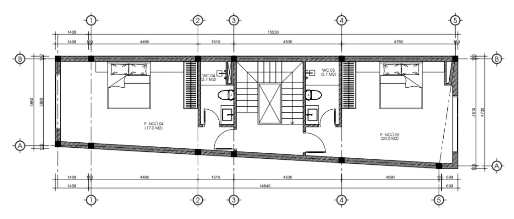
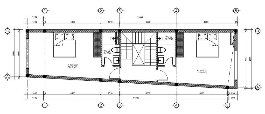
Tầng 2 & 3: Không gian riêng tư (Diện tích: 77 m2/sàn)

Trong thiết kế mẫu nhà ống 3 tầng 1 tum hiện đại, tầng 2 và 3 là nơi nghỉ ngơi của các thành viên:

  • Phòng ngủ 01 & 03 (20 m2): Yên tĩnh, được bố trí phía sau.

  • Phòng ngủ 02 & 04 (17 m2): Hướng ra mặt tiền, có ban công rộng để đón nắng gió.

  • Hệ thống WC khép kín (3.7 m2): Đảm bảo sự riêng tư tuyệt đối cho mỗi phòng.

  • Chiều cao tầng ở các tầng này là 3.5m, tạo sự thông thoáng tối đa cho phòng ngủ.

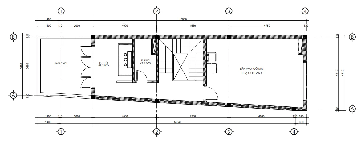
Tầng Tum: Đa năng và linh hoạt (Diện tích: 31 m2)

Đây là phần giá trị nhất của mẫu nhà ống 3 tầng 1 tum hiện đại:

  • Phòng thờ: Đặt ở vị trí trang trọng, hướng ra phía trước.

  • Sân chơi: Không gian thư giãn ngoài trời.

  • Sân phơi & Kho: Giải quyết triệt để vấn đề giặt giũ và lưu trữ đồ đạc.

Bản vẽ bố trí công năng tầng tum mẫu nhà ống 3 tầng 1 tum hiện đại diện tích 31m2.
Bản vẽ bố trí công năng tầng tum mẫu nhà ống 3 tầng 1 tum hiện đại diện tích 31m2.

4. Báo giá thi công mẫu nhà ống 3 tầng 1 tum hiện đại (Cập nhật 2026)

Để giúp bạn có cái nhìn thực tế về chi phí, Techhome xin đưa ra bảng dự toán tham khảo cho mẫu nhà ống 3 tầng 1 tum hiện đại với tổng diện tích sàn khoảng 250 m2.

Hạng mục Đơn giá tham khảo Ghi chú
Thiết kế kiến trúc  108.000 VNĐ/m2 Bao gồm hồ sơ thi công, phối cảnh 3D.
Thi công phần thô 3.800.000 – 4.200.000 VNĐ/m2 Gạch, cát, đá, xi măng, sắt thép, nhân công.
Thi công trọn gói (Chìa khóa trao tay) 6.500.000 – 8.000.000 VNĐ/m2 Tùy thuộc vào vật liệu hoàn thiện (cao cấp hay cơ bản).

Lưu ý: Đây chỉ là mức chi phí ước tính. Để nhận được báo giá chính xác và chi tiết nhất cho công trình của bạn, vui lòng liên hệ trực tiếp với chúng tôi. Hoặc để tìm hiểu rõ hơn về tiêu chuẩn vật liệu xây dựng và các yếu tố ảnh hưởng đến chi phí, bạn có thể tham khảo thêm tại các bài viết chuyên sâu về vật liệu xây dựng cao cấp trên Wikipedia.

Góc nghiêng mẫu nhà ống 3 tầng 1 tum hiện đại


5. Góc chuyên gia: Lời khuyên khi xây dựng mẫu nhà ống 3 tầng 1 tum hiện đại

Với kinh nghiệm hàng trăm công trình tại Phú Thọ và các tỉnh lân cận, các kiến trúc sư tại Techhome muốn chia sẻ 3 lưu ý quan trọng để sở hữu một mẫu nhà ống 3 tầng 1 tum hiện đại hoàn hảo:

Hãy chú trọng vào giếng trời

Nhà ống thường có nhược điểm là thiếu sáng ở giữa nhà. Trong mẫu nhà ống 3 tầng 1 tum hiện đại, chúng tôi luôn khuyến khích gia chủ chừa khoảng 2-3 m2 làm giếng trời ngay khu vực cầu thang. Điều này không chỉ giúp lưu thông không khí mà còn mang lại nguồn năng lượng tích cực theo phong thủy.

Lựa chọn vật liệu xanh

Năm 2026, xu hướng bền vững lên ngôi. Việc sử dụng gạch không nung, sơn phản quang chống nóng hay hệ thống pin năng lượng mặt trời trên mái tum là sự đầu tư thông minh cho tương lai.

Đừng bỏ qua yếu tố phong thủy

Trong mẫu nhà ống 3 tầng 1 tum hiện đại, việc bố trí số bậc cầu thang (21 bậc – cung Sinh ) hay hướng bếp, hướng bàn thờ đều được Techhome tính toán kỹ lưỡng dựa trên tuổi của gia chủ. “Có thờ có thiêng, có kiêng có lành”, một ngôi nhà đúng phong thủy sẽ giúp gia đạo bình an, công việc hanh thông.

Tổng thể mẫu nhà ống 3 tầng 1 tum hiện đại nhìn từ trên cao có sân thượng xanh mát.
Tổng thể mẫu nhà ống 3 tầng 1 tum hiện đại nhìn từ trên cao có sân thượng xanh mát.

6. Techhome – Đơn vị thiết kế và thi công mẫu nhà ống 3 tầng 1 tum hiện đại uy tín

Tại sao bạn nên chọn Công ty Cổ phần Kiến trúc và Xây dựng Techhome?

  1. Hồ sơ kỹ thuật chi tiết: Chúng tôi cung cấp bộ hồ sơ thiết kế kỹ thuật thi công đầy đủ từ mặt bằng định vị , mặt bằng công năng các tầng đến chi tiết điện nước.

  2. Đội ngũ chuyên gia tâm huyết: Những kiến trúc sư, kỹ sư luôn lắng nghe và hiện thực hóa ý tưởng của bạn.

  3. Cam kết chất lượng: Mọi quy trình từ thiết kế đến giám sát đều được thực hiện nghiêm ngặt, đảm bảo công trình thực tế giống 99% phối cảnh 3D.

Mẫu nhà ống 3 tầng 1 tum hiện đại không chỉ là một nơi để về, đó là niềm tự hào và là tổ ấm mơ ước của mỗi gia đình. Nếu bạn đang có ý định xây nhà tại Phú Thọ hay bất cứ đâu, đừng ngần ngại để Techhome đồng hành cùng bạn.

Tổng thể mẫu nhà ống 3 tầng 1 tum hiện đại

Thông tin liên hệ:

Hy vọng bài viết về mẫu nhà ống 3 tầng 1 tum hiện đại này đã cung cấp cho bạn những thông tin hữu ích và nguồn cảm hứng mới cho ngôi nhà tương lai của mình. Chúng tôi tin rằng, với sự tận tâm và chuyên nghiệp, Techhome sẽ cùng bạn kiến tạo nên những giá trị sống đích thực.

Để lại một bình luận

Email của bạn sẽ không được hiển thị công khai. Các trường bắt buộc được đánh dấu *

    Vui lòng nhấn nút YÊU CẦU TƯ VẤN và đợi 1 - 2 giây đến khi thấy thông báo thành công

    YÊU CẦU TƯ VẤN