Có những ngôi nhà khi nhìn vào, ta không chỉ thấy gạch đá hay bê tông, mà thấy cả một câu chuyện về sự nỗ lực và gu thẩm mỹ tinh tế của gia chủ. Công trình mẫu nhà ống 3 tầng đẹp mang mã số 499 của gia đình anh Long tại Mê Linh, Hà Nội chính là một tác phẩm như thế. Giữa nhịp sống hối hả, anh Long tìm đến Techhome với mong muốn kiến tạo một không gian sống không chỉ để “ở”, mà là nơi để “trở về” – nơi có cây xanh, có gió trời và sự tiện nghi hiện đại.
Hôm nay, hãy cùng Techhome “mổ xẻ” chi tiết bản vẽ và thiết kế của ngôi nhà này, để xem tại sao đây lại là mẫu nhà ống 3 tầng đẹp được săn đón nhiều nhất trong năm nay nhé!
1. Thông tin tổng quan dự án
Trước khi đi sâu vào chi tiết, Techhome muốn chia sẻ với mọi người những thông số “biết nói” của công trình này, được trích xuất trực tiếp từ hồ sơ kỹ thuật thi công:
-
Chủ đầu tư: Anh Long.
-
Địa điểm: Mê Linh – Hà Nội.
-
Đơn vị thiết kế & thi công: Công ty Cổ phần Kiến trúc và Xây dựng Techhome.
-
Kích thước xây dựng: Mặt tiền 5.5m x Chiều sâu 18.55m.
-
Loại hình: Nhà ở gia đình (Nhà ống/Nhà phố hiện đại)
-
Số tầng: 03 tầng.
-
Phong cách: Hiện đại, không gian mở, kết hợp giếng trời và mảng xanh.
Nếu bạn đang sở hữu một mảnh đất có kích thước tương tự và đang loay hoay tìm ý tưởng, thì đây chính xác là mẫu nhà ống 3 tầng đẹp dành cho bạn.

2. Câu chuyện thiết kế: Khi “Hiện đại” gặp gỡ “Thiên nhiên”
Anh Long chia sẻ với Techhome rằng: “Anh không cần nhà quá cầu kỳ kiểu lâu đài, anh cần sự thoáng đãng. Đi làm về mệt, nhìn thấy cái ban công xanh, cái cổng hiện đại là thấy nhẹ lòng.”
Hiểu được tâm tư đó, kiến trúc sư (KTS) của Techhome đã đưa ra phương án thiết kế mặt tiền cực kỳ ấn tượng. Nhìn vào phối cảnh 3D, bạn sẽ thấy ngôi nhà toát lên vẻ đẹp khỏe khoắn với các khối hình học vuông vức.
Điểm nhấn đắt giá nhất của mẫu nhà ống 3 tầng đẹp này chính là hệ lam che nắng trên tầng thượng và cách phối màu ghi xám – trắng cực kỳ sang trọng. Không sử dụng quá nhiều phào chỉ rườm rà, Techhome tập trung vào chất liệu: kính cường lực để lấy sáng, đá ốp mặt tiền để tăng độ bền và những bồn cây xanh rủ xuống ban công tạo cảm giác mềm mại.

3. Khám phá công năng: Sự bố trí thông minh đến từng centimet
Một mẫu nhà ống 3 tầng đẹp không chỉ cần “nước sơn” tốt mà “gỗ” bên trong cũng phải chất lượng. Với chiều dài lên tới 18.55m, việc bố trí công năng sao cho không bị hun hút hay thiếu sáng là bài toán khó. Nhưng hãy xem Techhome đã giải quyết thế nào nhé.
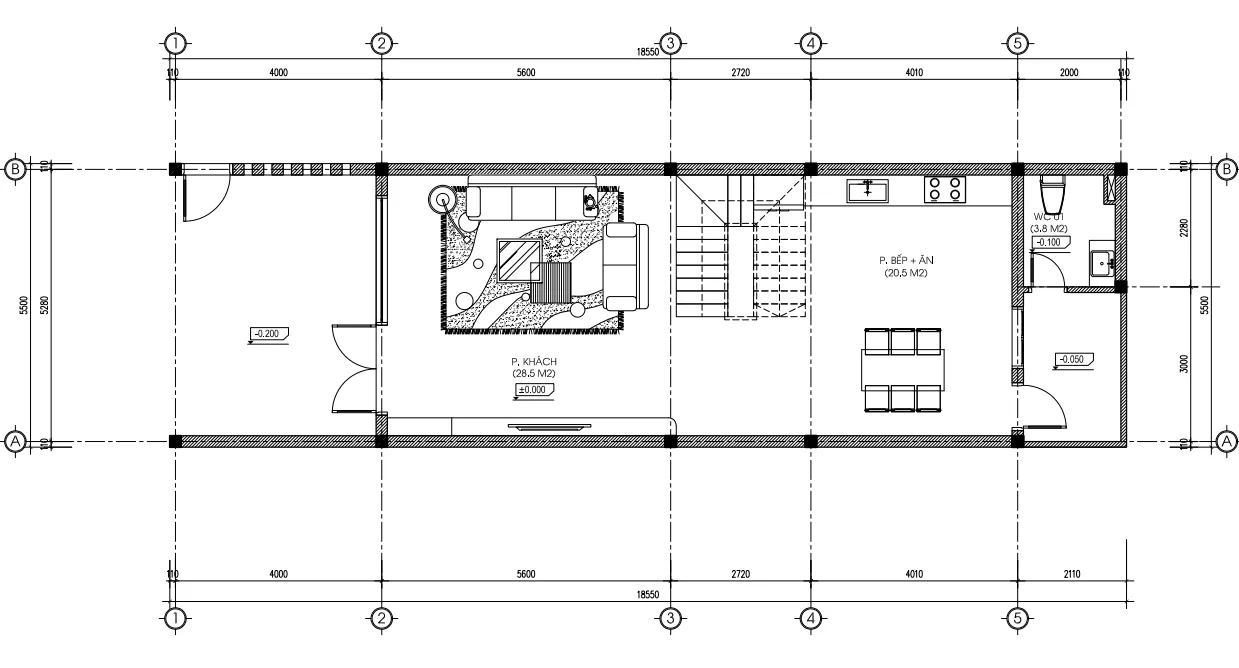
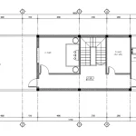
3.1. Tầng 1: Không gian kết nối (Diện tích sàn khoảng 100m2)
Bước qua khoảng sân trước rộng rãi dùng để để xe, chúng ta tiến vào không gian chính:
-
Phòng khách (28.5m2): Được đặt ngay tại vị trí trang trọng nhất. Đây là bộ mặt của ngôi nhà, nơi anh Long tiếp đón bạn bè. Với diện tích này, gia chủ thoải mái bố trí bộ sofa lớn, kệ tivi hiện đại mà lối đi vẫn thênh thang.
-
Cầu thang & Giếng trời: Cầu thang được đặt ở giữa nhà, đóng vai trò như xương sống kết nối. Gầm cầu thang được tận dụng khéo léo, không để góc chết.
-
Phòng Bếp + Ăn (20.5m2): Nằm phía sau cầu thang. Cách bố trí này sẽ tách biệt mùi thức ăn khỏi phòng khách, nhưng vẫn giữ được sự liên thông ấm cúng.
-
Vệ sinh chung (3.8m2): Đặt kín đáo ở cuối nhà, cạnh một khoảng sân ướt nhỏ. Điều này cực kỳ hợp lý về mặt phong thủy lẫn vệ sinh, giúp không gian sạch sẽ tuyệt đối.
Sự phân chia này biến tầng 1 thành một không gian sinh hoạt chung lý tưởng, xứng đáng là tiêu chuẩn cho một mẫu nhà ống 3 tầng đẹp và tiện nghi.

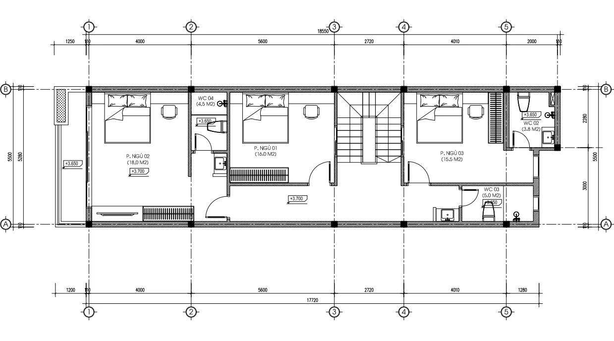
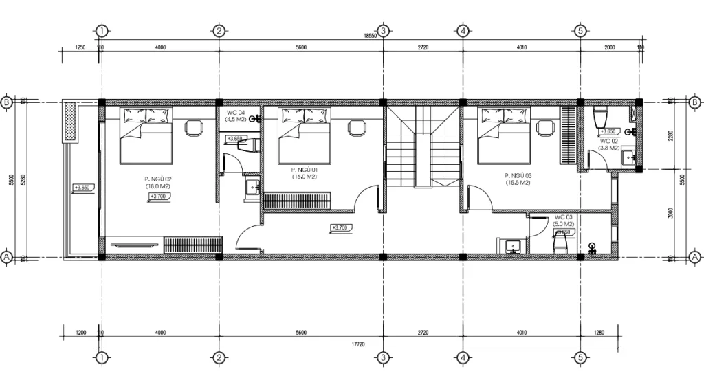
3.2. Tầng 2: Chốn nghỉ ngơi riêng tư
Lên đến tầng 2, không gian được dành trọn vẹn cho sự nghỉ ngơi với 3 phòng ngủ. Đây là tầng mật độ cao nhất, phục vụ giấc ngủ cho cả gia đình:
-
Phòng ngủ 02 (18.0m2): Nằm ở phía trước mặt tiền, có ban công rộng thoáng. Đây thường là phòng Master dành cho vợ chồng anh Long, với view nhìn ra đường phố Mê Linh. Phòng này có vệ sinh khép kín (WC 04 – 4.5m2) tạo sự tiện nghi tối đa.
-
Phòng ngủ 01 (16.0m2) và Phòng ngủ 03 (15.5m2): Nằm phía sau. Dù không có ban công lớn như phòng trước, nhưng nhờ hệ thống giếng trời và cửa sổ bố trí khoa học, các phòng này vẫn đảm bảo lưu thông không khí tốt.
-
Vệ sinh: Ngoài vệ sinh khép kín trong phòng Master, tầng này còn có thêm 1 WC khép kín ở phòng ngủ 03 và 1 nhà vệ sinh chung ( WC 03), đảm bảo không ai phải “chờ đợi” vào mỗi buổi sáng đi làm, đi học.
Việc bố trí tới 3 phòng ngủ và 3 nhà vệ sinh trên cùng một sàn là một nỗ lực lớn của KTS Techhome để tối ưu hóa công năng, điều mà hiếm mẫu nhà ống 3 tầng đẹp nào có thể làm được một cách thoải mái nếu không tính toán kỹ.

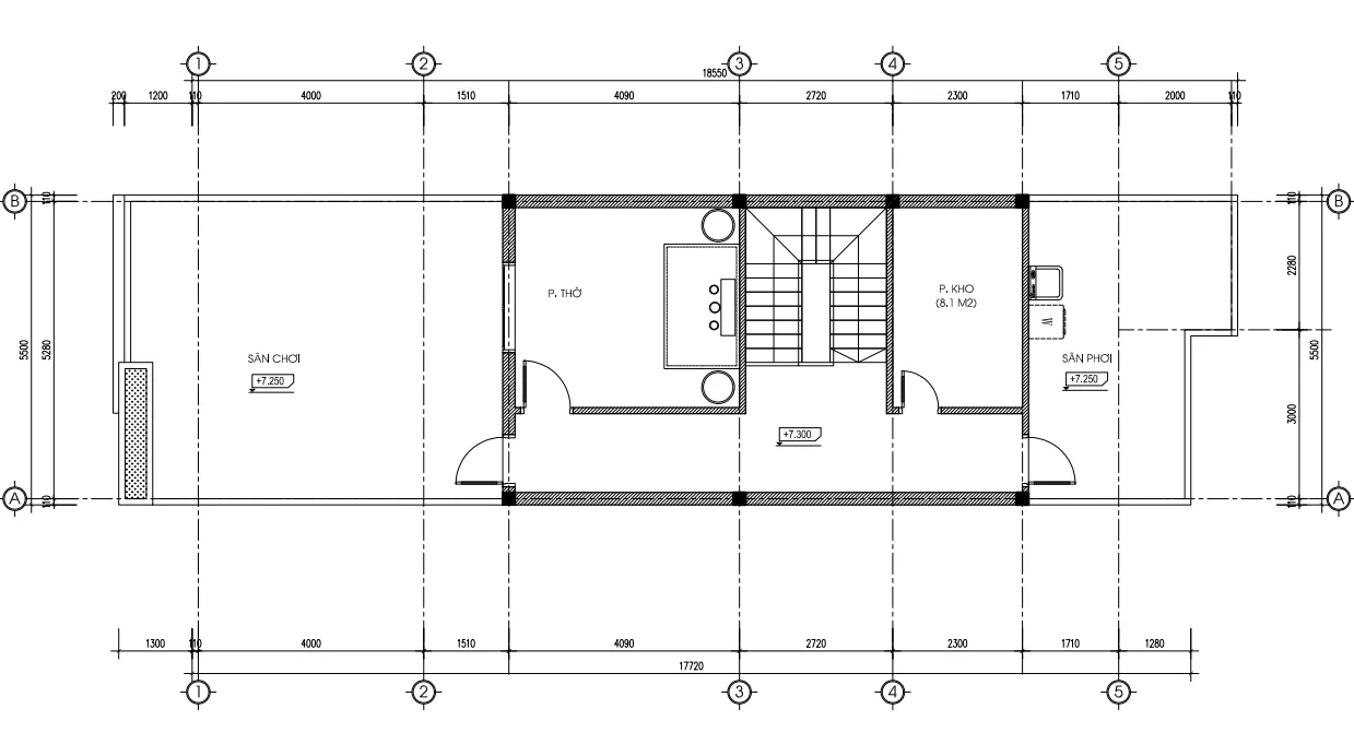
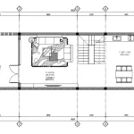
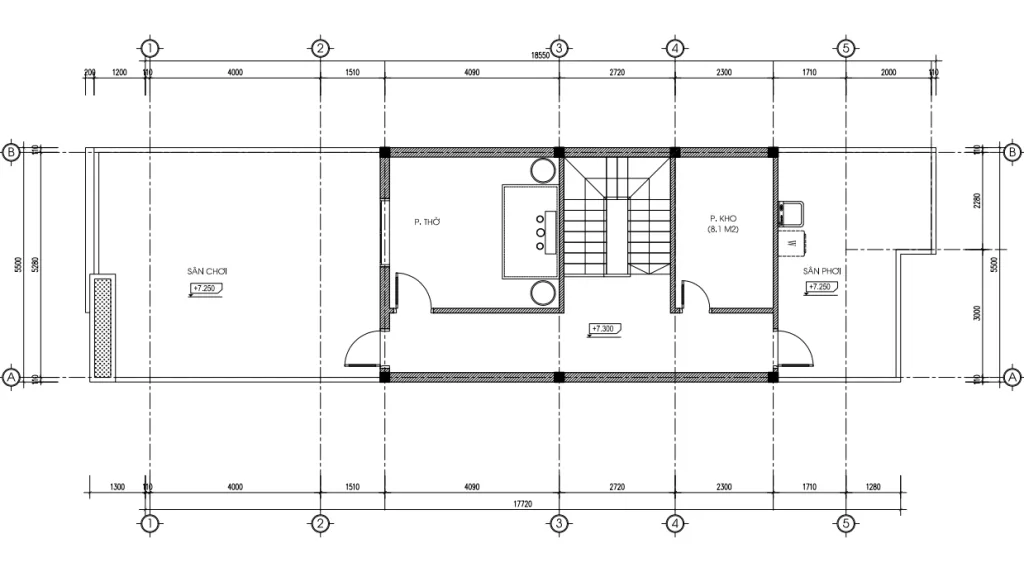
3.3. Tầng 3: Tâm linh và Thư giãn
Tầng cao nhất của ngôi nhà được thiết kế mở:
-
Phòng thờ: Đặt ở vị trí trang nghiêm, hướng ra sân chơi phía trước. Đây là nơi thể hiện lòng thành kính với tổ tiên.
-
Sân chơi (Sân thượng trước): Một khoảng không gian rộng lớn để anh Long thỏa sức trồng cây cảnh, đặt một bàn trà chiều ngắm hoàng hôn. Hệ lam mái che ở đây (như trong phối cảnh 3D) vừa có tác dụng trang trí, vừa giảm bớt ánh nắng gay gắt.
-
Phòng kho (8.1m2): Nơi cất giữ những đồ đạc ít dùng, giúp ngôi nhà luôn gọn gàng
-
Sân phơi: Bố trí kín đáo phía sau, đảm bảo thẩm mỹ cho toàn bộ ngôi nhà.

4. Giải mã sức hút của mẫu nhà ống 3 tầng đẹp
Tại sao anh Long và rất nhiều khách hàng khác lại “chốt” phương án này ngay từ lần trình bày đầu tiên? Techhome xin tổng kết lại vài lý do:
-
Mặt tiền “không lỗi mốt”: Phong cách hiện đại với các đường nét tối giản là xu hướng bền vững. 10 hay 20 năm nữa, mẫu nhà ống 3 tầng đẹp này vẫn sẽ trông thời thượng.
-
Đón sáng tự nhiên: Nhìn vào mặt cắt công trình , bạn sẽ thấy hệ thống thang và độ cao trần hợp lý (tầng 1 cao 3.9m, các tầng trên cao 3.6m). Điều này giúp đối lưu không khí cực tốt, nhà luôn mát mẻ.
-
Công năng “thực dụng”: Không có không gian thừa. Mọi ngóc ngách từ gầm cầu thang đến khoảng lùi sau nhà đều có mục đích sử dụng.

5. Bảng dự toán chi phí xây dựng (Tham khảo 2026)
Rất nhiều bạn nhắn tin cho Techhome hỏi: “Em ơi, xây mẫu nhà ống 3 tầng đẹp như nhà anh Long hết bao nhiêu tiền?”.
Thực tế, chi phí xây dựng phụ thuộc vào rất nhiều yếu tố: thời điểm mua vật liệu, vị trí đất (xe to vào được hay phải dùng xe cải tiến), và mức độ “chịu chi” của gia chủ cho nội thất. Tuy nhiên, Techhome xin gửi đến bạn bảng báo giá ước tính dựa trên mức giá thị trường xây dựng tại Hà Nội năm 2026 để bạn tham khảo và chuẩn bị ngân sách:
| Hạng mục | Đơn giá ước tính (VNĐ/m2) | Diễn giải |
| 1. Chi phí Thiết kế | 108.000đ | Bao gồm phối cảnh 3D, hồ sơ kiến trúc, kết cấu, điện nước. |
| 2. Thi công phần thô | 3.800.000đ – 4.200.000đ | Bao gồm: Gạch, cát, đá, xi măng, sắt thép, nhân công xây trát, đổ bê tông, đi đường điện nước âm tường. |
| 3. Thi công hoàn thiện | 2.500.000đ – 3.500.000đ | Bao gồm: Gạch ốp lát, sơn bả, trần thạch cao, thiết bị vệ sinh cơ bản, hệ thống cửa, đá ốp cầu thang. |
| 4. Xây nhà trọn gói | 6.500.000đ – 7.500.000đ | Chìa khóa trao tay (Chưa bao gồm nội thất rời như giường, tủ, sofa). |
Ví dụ cụ thể cho nhà anh Long (Tổng diện tích sàn khoảng 300m2):
-
Chi phí xây thô: Khoảng 1.1 tỷ – 1.3 tỷ đồng.
-
Chi phí hoàn thiện (chưa nội thất rời): Khoảng 800 triệu – 1 tỷ đồng.
-
Tổng ngân sách dự kiến: Khoảng 2 tỷ – 2.3 tỷ đồng để dọn vào ở.
Lưu ý: Đây là con số tham khảo. Techhome luôn cam kết minh bạch tài chính, có bảng bóc tách khối lượng chi tiết đến từng viên gạch để gia chủ yên tâm không phát sinh.
Để tìm hiểu rõ hơn về tiêu chuẩn vật liệu xây dựng và các yếu tố ảnh hưởng đến chi phí, bạn có thể tham khảo thêm tại các bài viết chuyên sâu về vật liệu xây dựng cao cấp trên Wikipedia.

6. Góc chuyên gia Techhome: Lời khuyên để có mẫu nhà ống 3 tầng đẹp và bền vững
Là người trong nghề, Techhome muốn chia sẻ thêm vài “bí kíp” riêng dành cho bạn khi muốn xây dựng mẫu nhà ống 3 tầng đẹp như thế này:
-
Đừng tiếc tiền cho chống thấm: Đặc biệt là khu vực sàn mái, ban công và nhà vệ sinh. Nhà anh Long được Techhome xử lý chống thấm 2 lớp Sika, ven thành cao 250mm tại các khu vệ sinh. Đây là chi tiết nhỏ nhưng quyết định tuổi thọ ngôi nhà.
-
Lựa chọn cửa nhôm hệ: Trong bản vẽ chi tiết cửa, chúng tôi sử dụng nhôm hệ kính an toàn 8.38mm hoặc 6.38mm. Loại cửa này cách âm, cách nhiệt tốt hơn cửa gỗ truyền thống và không bị cong vênh do thời tiết miền Bắc.
-
Chú trọng thông gió giếng trời: Với nhà ống dài trên 15m như nhà anh Long, giếng trời ở khu vực cầu thang là “lá phổi” của ngôi nhà. Đừng lợp kín mít, hãy dùng khung thép kết hợp kính cường lực có khe thoáng để gió đối lưu.
-
Phong thủy mặt tiền: Màu sắc mặt tiền không chỉ là thẩm mỹ mà còn là phong thủy. Màu trắng – ghi của nhà anh Long thuộc hành Kim và Thủy, rất hợp với gia chủ mệnh Kim hoặc Thủy, mang lại tài lộc.

7. Quy trình làm việc tại Techhome
Để ra đời được một bộ hồ sơ mẫu nhà ống 3 tầng đẹp và chi tiết như bạn thấy (gồm hàng chục bản vẽ từ kiến trúc, kết cấu đến điện nước), Techhome tuân thủ quy trình 6 bước chặt chẽ:
-
Tiếp nhận thông tin: Lắng nghe mong muốn, diện tích đất
-
Khảo sát hiện trạng: KTS về tận nơi đo đạc, kiểm tra hướng nắng, hướng gió.
-
Lên phương án mặt bằng: Bố trí công năng (Tầng 1 khách bếp, Tầng 2 ngủ…) và chốt với chủ nhà.
-
Dựng phối cảnh 3D: Giúp anh Long hình dung rõ ngôi nhà tương lai.
-
Triển khai hồ sơ kỹ thuật: Chi tiết sắt thép, điện nước, thi công.
-
Bàn giao & Giám sát: Đồng hành cùng gia chủ đến ngày tân gia.

Lời kết
Ngôi nhà của anh Long tại Mê Linh không chỉ là một công trình xây dựng, đó là minh chứng cho sự kết hợp hoàn hảo giữa mong muốn của gia chủ và tư duy sáng tạo của đội ngũ Techhome. Một mẫu nhà ống 3 tầng đẹp, hiện đại, đầy đủ công năng và chi phí hợp lý hoàn toàn nằm trong tầm tay bạn.
Nếu bạn đang ấp ủ dự định xây nhà và yêu thích phong cách này, đừng ngần ngại liên hệ với Techhome. Chúng tôi không chỉ xây nhà, chúng tôi xây dựng tổ ấm cùng bạn.
Bạn đã sẵn sàng sở hữu một mẫu nhà ống 3 tầng đẹp cho riêng mình chưa?
CÔNG TY CỔ PHẦN KIẾN TRÚC VÀ XÂY DỰNG TECHHOME
-
Hotline: 0364.04.2222 – 0387.60.3333
-
Website: nhadeptechhome.vn
-
Địa chỉ: B1.1 LK18 Ô 3 – KĐT Thanh Hà – Cienco 5 – Thanh Oai- Hà Nội.
Hãy để lại bình luận hoặc gọi ngay cho Techhome để được tư vấn miễn phí nhé!
