Mẫu Nhà Ống 2 Tầng Đẹp 6×18.5m Tại Thanh Hóa: Hiện Đại, Thoáng Đãng Và Câu Chuyện Của Anh Hưng

Có những ngôi nhà khi nhìn vào, ta không chỉ thấy gạch đá, xi măng, mà thấy cả một tổ ấm bình yên. Công trình tại Thanh Hóa của gia đình anh Hưng chính là một ví dụ điển hình như thế. Giữa hàng ngàn lựa chọn, anh Hưng đã tìm đến TechHome với mong muốn kiến tạo một không gian sống hiện đại, tối giản nhưng phải “chất”. Và đáp lại sự tin tưởng đó, TechHome đã trình làng một mẫu nhà ống 2 tầng đẹp, giải quyết bài toán thông gió và lấy sáng cực kỳ thông minh.

Hôm nay, hãy cùng TechHome “mổ xẻ” chi tiết bản vẽ và thiết kế của ngôi nhà này để xem vì sao đây lại là thiết kế được săn đón nhất năm 2026 nhé!

1. Thông Tin Tổng Quan Dự Án

Trước khi đi sâu vào chi tiết, mời quý vị điểm qua những thông số kỹ thuật chính của công trình này được trích xuất từ hồ sơ thiết kế kỹ thuật thi công:

  • Chủ đầu tư: Anh Hưng

  • Địa điểm xây dựng: Thanh Hóa

  • Đơn vị thiết kế & thi công: Công ty Cổ phần Kiến trúc và Xây dựng TechHome.

  • Kích thước xây dựng: Mặt tiền 6m x Chiều sâu 18.5m.

  • Loại hình: Nhà ống hiện đại mái bằng.

  • Công năng chính:

    • Tầng 1: Phòng khách, Phòng Bếp + Ăn, 01 Phòng ngủ, 02 WC.

    • Tầng 2: Phòng thờ, 03 Phòng ngủ, 01 WC, Sân phơi.

Đây chắc chắn là một mẫu nhà ống 2 tầng đẹp lý tưởng cho những gia đình có từ 4-6 thành viên, yêu thích sự tiện nghi và gắn kết.

mẫu nhà ống 2 tầng đẹp
Phối cảnh 3D mặt tiền hiện đại với gạch bông gió điểm nhấn

2. Câu Chuyện Thiết Kế: Khi “Thở” Là Yếu Tố Tiên Quyết

Khi ngồi trò chuyện với anh Hưng, anh có tâm sự thật lòng: “Đất nhà anh dài, anh sợ nhất là nhà ống bị bí, vào nhà mà như cái hộp diêm thì chán lắm”. Hiểu được nỗi lo đó, các KTS TechHome đã xác định ngay từ đầu: Đây phải là một mẫu nhà ống 2 tầng đẹp không chỉ về hình thức mà phải “đẹp” cả về công năng đối lưu không khí.

Nhìn vào phối cảnh mặt tiền , bạn sẽ thấy sự xuất hiện dày đặc của gạch bông gió ở mảng tường bên phải. Đây không phải là chi tiết trang trí ngẫu nhiên. Nó là “lá phổi” của ngôi nhà, giúp đón gió trời, chắn nắng gắt đặc trưng của miền Trung nhưng vẫn giữ được sự riêng tư cần thiết.

mẫu nhà ống 2 tầng đẹp

3. Phân Tích Chi Tiết Kiến Trúc Ngoại Thất

Để tạo nên một mẫu nhà ống 2 tầng đẹp, mặt tiền chính là yếu tố quyết định “tình yêu sét đánh”.

3.1. Hình Khối Vuông Vức, Mạnh Mẽ

Ngôi nhà sở hữu mặt tiền rộng 6m, một kích thước khá lý tưởng so với các căn nhà ống thông thường (thường chỉ 4-5m). Tận dụng lợi thế này, TechHome sử dụng các khối hình hộp vuông vức, đua ra thụt vào hợp lý để tạo chiều sâu.

Màu sắc chủ đạo là xám ghi và trắng sứ. Tầng 1 được ốp đá Marble vân mây sang trọng, giúp công trình luôn sạch sẽ, dễ vệ sinh và bền màu theo thời gian. Tầng 2 sử dụng sơn ngoại thất cao cấp kết hợp với lam sắt hộp sơn tĩnh điện tạo cảm giác nhẹ nhàng, thanh thoát.

3.2. Hệ Thống Cửa Và Ban Công Xanh

Một mẫu nhà ống 2 tầng đẹp hiện đại không thể thiếu hệ cửa kính Xingfa. Hệ cửa chính 4 cánh rộng mở giúp phòng khách đón trọn vẹn ánh sáng tự nhiên.

Ban công tầng 2 được thiết kế đua ra, kết hợp bồn hoa chạy dài. Cây xanh ở đây không chỉ để ngắm, nó đóng vai trò như một lớp lọc bụi và giảm nhiệt bức xạ cho phòng ngủ phía trước.

mẫu nhà ống 2 tầng đẹp

4. Khám Phá Công Năng Bên Trong: Tối Ưu Hóa Từng Centimet

Điểm đắt giá nhất của mẫu nhà ống 2 tầng đẹp này nằm ở cách bố trí mặt bằng công năng. Dựa trên bản vẽ kỹ thuật, chúng ta cùng đi “tour” một vòng nhé.

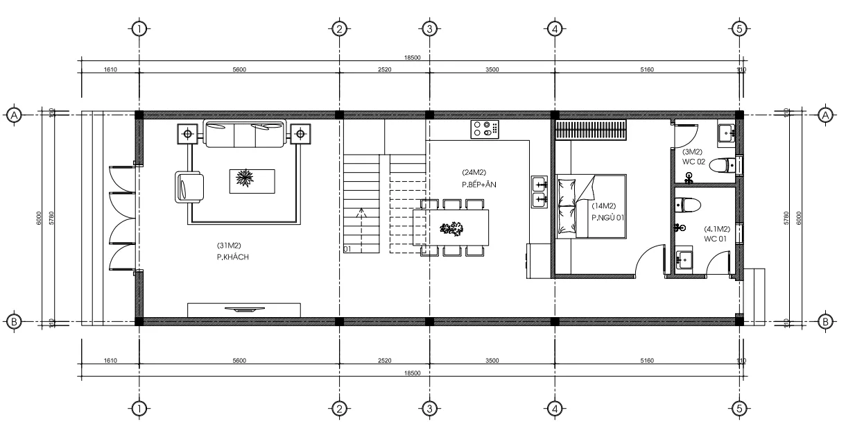
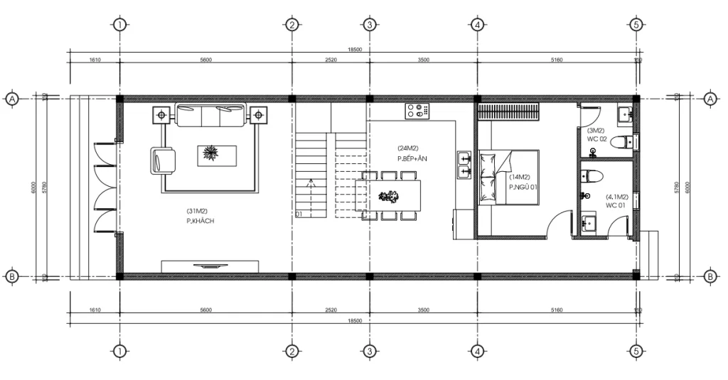
4.1. Tầng 1: Không Gian Kết Nối (Diện tích sàn ~110m2)

Bước qua sảnh chính, chúng ta gặp ngay phòng khách rộng mênh mông với diện tích 31m2. Với chiều ngang 5.78m lọt lòng, gia chủ thoải mái bố trí bộ sofa lớn và kệ tivi hoành tráng mà lối đi vẫn thênh thang.

Tiếp đến là khu vực cầu thang bộ đóng vai trò vách ngăn ước lệ. Ngay sau cầu thang là Phòng Bếp + Ăn rộng 24m2. Việc liên thông Khách – Bếp tạo cảm giác nhà dài hun hút và cực kỳ thoáng.

Cuối nhà là một Phòng ngủ 01 rộng 14m2 có WC khép kín dành cho ông bà hoặc gia chủ, đảm bảo sự yên tĩnh. WC chung được đặt cuối nhà và có cửa sau, đảm bảo sự thông thoáng.

mặt bằng tầng 1 mẫu nhà ống 2 tầng đẹp
Mặt bằng công năng tầng 1 khoa học

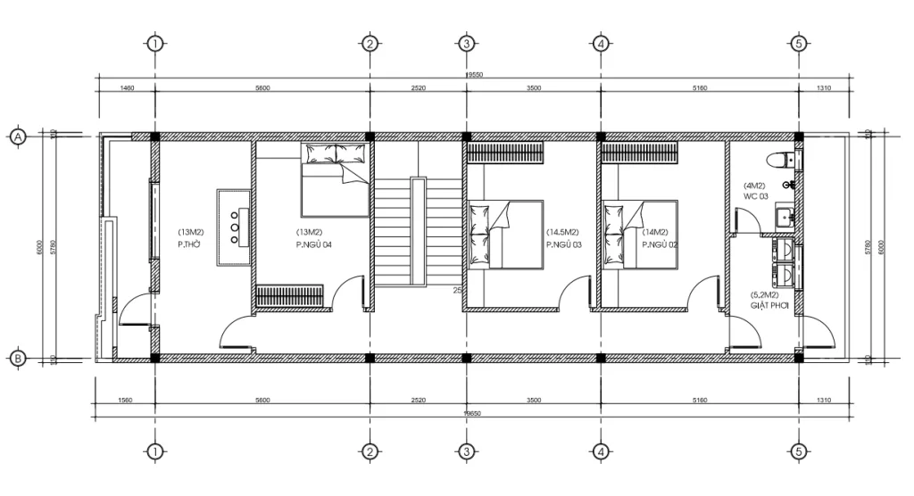
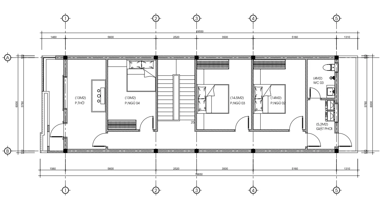
4.2. Tầng 2: Không Gian Riêng Tư & Tâm Linh

Lên đến tầng 2, không gian được chia nhỏ để đảm bảo sự riêng tư cho từng thành viên.

  • Phòng thờ: Đặt trang trọng phía trước nhà, hướng ra ban công, diện tích 13m2. Đây là vị trí phong thủy tốt nhất trong mẫu nhà ống 2 tầng đẹp.

  • Hệ thống phòng ngủ: Gồm 3 phòng ngủ (PN 04: 13m2, PN 03: 14.5m2, PN 02: 14m2). Các phòng đều vuông vắn, dễ kê đồ nội thất.

  • Khu giặt phơi: Được bố trí kín đáo phía sau rộng 5.2m2, đảm bảo mỹ quan.

mặt bằng tầng 2 mẫu nhà ống 2 tầng đẹp

5. Giải Pháp Kỹ Thuật: Mái Bằng Và Giếng Trời

Nhiều người hỏi tôi, làm mái thái hay mái bằng cho mẫu nhà ống 2 tầng đẹp thì tốt hơn? Với nhà anh Hưng, chúng tôi chọn mái bằng (lợp tôn chống nóng phía trên)

  • Lý do: Mái bằng giúp tận dụng không gian để đặt téc nước, thái dương năng. Hệ mái tôn phía trên có độ dốc thoát nước tốt, đồng thời tạo lớp đệm không khí cách nhiệt cho trần tầng 2.

  • Giếng trời: Trên bản vẽ mái, bạn sẽ thấy ô kính lấy sáng ngay khu vực cầu thang. Đây là chi tiết “nhỏ nhưng có võ”, giúp đưa ánh sáng lõi vào giữa nhà, xua tan sự u tối thường thấy của nhà ống.

6. Tại Sao “Mẫu Nhà Ống 2 Tầng Đẹp” Của TechHome Lại Hot?

Không phải ngẫu nhiên mà bản thiết kế này được anh Hưng chốt ngay từ phương án đầu tiên. Dưới đây là 3 lý do khiến mẫu nhà ống 2 tầng đẹp này trở thành xu hướng:

  1. Tiết kiệm chi phí: Thiết kế đơn giản, hạn chế phào chỉ rườm rà giúp giảm nhân công và vật liệu hoàn thiện.

  2. Bền vững với thời gian: Phong cách hiện đại tập trung vào mảng khối, không bao giờ lỗi mốt.

  3. Công năng thực dụng: Không có góc chết, mọi mét vuông đều được sử dụng triệt để.

mẫu nhà ống 2 tầng đẹp

7. Báo Giá Xây Dựng Mẫu Nhà Ống 2 Tầng Đẹp (Cập Nhật 2026)

Đây là phần các bác quan tâm nhất phải không? Để xây dựng một mẫu nhà ống 2 tầng đẹp với quy mô khoảng 220m2 sàn như nhà anh Hưng tại Thanh Hóa, TechHome xin đưa ra bảng khái toán chi phí (tham khảo) như sau:

Lưu ý: Đơn giá dưới đây mang tính chất tham khảo tại thời điểm viết bài và có thể thay đổi tùy thuộc vào giá vật liệu, vị trí thi công và chủng loại vật tư gia chủ lựa chọn.

7.1. Bảng Dự Toán Chi Phí (Đơn vị: VNĐ)

Hạng mục Diện tích (tạm tính) Đơn giá (Tạm tính) Thành tiền (Ước lượng)
1. Phần Thô & Nhân công hoàn thiện 220 m2 4.200.000 đ/m2 ~ 924.000.000 đ
Bao gồm: Móng, khung cột, xây trát, điện nước âm tường, mái…
2. Phần Hoàn Thiện (Gói Khá) 220 m2 2.500.000 đ/m2 ~ 550.000.000 đ

Bao gồm: Gạch ốp lát (80×80), Sơn bả (Dulux/Jotun), Cửa nhôm kính Xingfa, Thiết bị vệ sinh (Inax/Toto), Trần thạch cao, Hệ thống đèn chiếu sáng

TỔNG CỘNG (Chìa khóa trao tay) ~ 1.474.000.000 đ

Như vậy, với ngân sách khoảng 1,5 tỷ đồng, bạn hoàn toàn có thể sở hữu một mẫu nhà ống 2 tầng đẹp, đầy đủ tiện nghi như gia đình anh Hưng. Nếu tài chính hạn hẹp hơn, bạn có thể cân đối lại vật liệu hoàn thiện để giảm chi phí xuống khoảng 1,2 – 1,3 tỷ đồng.

Để tìm hiểu rõ hơn về tiêu chuẩn vật liệu xây dựng và các yếu tố ảnh hưởng đến chi phí, bạn có thể tham khảo thêm tại các bài viết chuyên sâu về vật liệu xây dựng cao cấp trên Wikipedia.

mẫu nhà ống 2 tầng đẹp

8. Lời Khuyên Của Chuyên Gia TechHome Khi Xây Nhà Ống

Là người làm nghề, tôi muốn chia sẻ thêm vài kinh nghiệm xương máu để các bạn có được một mẫu nhà ống 2 tầng đẹp và ưng ý nhất:

  • Đừng tham phòng ngủ: Nếu nhà ít người, hãy ưu tiên diện tích cho không gian sinh hoạt chung. Nhà anh Hưng làm 4 phòng ngủ vì gia đình 3 thế hệ. Nếu bạn chỉ có 2 vợ chồng và 2 con, có thể giảm bớt 1 phòng ngủ để làm phòng đọc sách hoặc mở rộng phòng ngủ Master.

  • Chú trọng chống thấm: Với mái bằng và sân thượng, việc xử lý chống thấm bằng Sika hoặc màng khò nóng là cực kỳ quan trọng. Đừng tiếc tiền cho hạng mục này, nếu không sau 2 năm trần nhà sẽ bị ố vàng rất xấu.

  • Ánh sáng là lớp trang điểm: Một mẫu nhà ống 2 tầng đẹp đến mấy mà thiếu sáng cũng thành “nhà kho”. Hãy đầu tư hệ thống đèn LED âm trần và đèn hắt khe như bản vẽ điện của nhà anh Hưng để tạo hiệu ứng thị giác sang trọng vào ban đêm.

  • Phong thủy: Cầu thang không nên lao thẳng ra cửa chính. Tại tầng 1 nhà anh Hưng, cầu thang được bố trí nép dọc nhà, đây là cách xử lý khéo léo để tụ khí.

9. Tại Sao Chọn TechHome?

Giữa “ma trận” các công ty xây dựng, TechHome tự tin là đơn vị hàng đầu trong việc thiết kế thi công trọn gói mẫu nhà ống 2 tầng đẹp tại Thanh Hóa và miền Bắc.

  • Minh bạch: Hồ sơ thiết kế kỹ thuật thi công của chúng tôi dày hàng trăm trang, chi tiết đến từng viên gạch, từng mối nối thép. Không có chuyện làm ẩu, làm tắt.

  • Chuyên nghiệp: Đội ngũ KTS và KS đều là những người có chứng chỉ hành nghề và kinh nghiệm thực chiến.

  • Tận tâm: Chúng tôi coi nhà của khách như nhà mình. Mỗi mẫu nhà ống 2 tầng đẹp ra đời là một đứa con tinh thần được chăm chút kỹ lưỡng.

mẫu nhà ống 2 tầng đẹp

10. Kết Luận

Công trình nhà phố 2 tầng 6×18.5m của anh Hưng tại Thanh Hóa là minh chứng rõ nét cho xu hướng kiến trúc hiện đại: Đơn giản nhưng không đơn điệu, tối ưu nhưng vẫn thẩm mỹ. Hy vọng rằng, qua bài phân tích chi tiết này, quý vị đã có thêm ý tưởng để phác thảo nên mẫu nhà ống 2 tầng đẹp cho riêng mình.

Đừng để ngôi nhà mơ ước chỉ nằm trên giấy. Hãy để TechHome hiện thực hóa nó giúp bạn!

Nếu bạn đang sở hữu mảnh đất tương tự và muốn có một mẫu nhà ống 2 tầng đẹp “để đời”, đừng ngần ngại liên hệ với chúng tôi để được tư vấn miễn phí và nhận báo giá chi tiết nhất.


CÔNG TY CỔ PHẦN KIẾN TRÚC VÀ XÂY DỰNG TECHHOME

Hãy gọi ngay hôm nay để nhận ưu đãi thiết kế cho mẫu nhà ống 2 tầng đẹp của bạn!

Để lại một bình luận

Email của bạn sẽ không được hiển thị công khai. Các trường bắt buộc được đánh dấu *

    Vui lòng nhấn nút YÊU CẦU TƯ VẤN và đợi 1 - 2 giây đến khi thấy thông báo thành công

    YÊU CẦU TƯ VẤN