Mẫu Nhà Phố 2 Tầng 1 Tum Hiện Đại Tại Bắc Ninh: Tuyệt Phẩm Của Sự Tinh Tế Và Tiện Nghi

Chào các bác, chào mừng mọi người đã quay trở lại với góc chia sẻ chuyện làm nhà của Kiến trúc TechHome.

Hôm nay, Techhome muốn giới thiệu cho các bác về một công trình “vừa vặn” và đong đầy cảm xúc. Đó là câu chuyện về tổ ấm của gia đình anh Quang tại Bắc Ninh. Đây là một mẫu nhà phố 2 tầng 1 tum hiện đại điển hình, nơi mà từng mét vuông đất đều được các kiến trúc sư của chúng tôi nâng niu để biến thành không gian sống lý tưởng.

Nếu bạn đang sở hữu mảnh đất phố na ná kích thước 6.5m x 16m và đang đau đầu tìm ý tưởng, thì bài viết này chính xác là dành cho bạn. Hãy cùng TechHome khám phá nhé!

1. Tại sao “Mẫu nhà phố 2 tầng 1 tum hiện đại” đang là xu hướng “hot” tại Bắc Ninh?

Thú thật với các bạn, trong khoảng 2 năm trở lại đây, khi Tech Home đi tư vấn tại các tỉnh như Bắc Ninh, Bắc Giang hay Hưng Yên, câu yêu cầu chúng tôi nhận được nhiều nhất không phải là nhà cao tầng chọc trời, mà là: “Em ơi, làm sao thiết kế cho anh một mẫu nhà phố 2 tầng 1 tum hiện đại, đủ công năng mà vẫn phải thoáng, đừng bí bách như nhà ống ngày xưa.”

Tại sao lại như vậy?

Đơn giản vì mẫu nhà phố 2 tầng 1 tum hiện đại giải quyết được bài toán kinh tế và thẩm mỹ cực tốt.

  • Thứ nhất: Nó không quá cao gây lãng phí chi phí xây dựng và mệt mỏi khi leo cầu thang.

  • Thứ hai: Tầng tum (tầng thượng) đóng vai trò như một lớp cách nhiệt tự nhiên, giúp tầng 2 (khu vực ngủ nghỉ) luôn mát mẻ vào mùa hè.

  • Thứ ba: Về mặt thẩm mỹ, kiến trúc lệch tầng của tum tạo nên vẻ đẹp phóng khoáng, phá vỡ sự nhàm chán của những khối bê tông vuông vức.

Công trình của anh Quang mà chúng tôi giới thiệu hôm nay chính là minh chứng rõ nét nhất cho xu hướng này.

Phối cảnh mặt tiền mẫu nhà phố 2 tầng 1 tum hiện đại mặt tiền 6.5m sang trọng của anh Quang tại Bắc Ninh.
Phối cảnh mặt tiền mẫu nhà phố 2 tầng 1 tum hiện đại mặt tiền 6.5m sang trọng của anh Quang tại Bắc Ninh.

2. Câu chuyện thiết kế: Khi kích thước 6.5m x 16m là một lợi thế

Nhiều người nghĩ đất phố thì chật chội, nhưng với lô đất của anh Quang, Tech Home đánh giá đây là “kích thước vàng”. Chiều rộng 6.5m cho phép chúng tôi thoả sức sáng tạo mặt tiền cho mẫu nhà phố 2 tầng 1 tum hiện đại này mà không bị gò bó như những lô đất 4m hay 5m thông thường.

Vẻ đẹp ngoại thất: Đơn giản nhưng không đơn điệu

Nhìn vào phối cảnh mặt tiền, các bạn sẽ thấy ngay sự trẻ trung. Chúng tôi sử dụng tông màu trắng sứ làm chủ đạo – gam màu “huyền thoại” không bao giờ lỗi mốt. Để mẫu nhà phố 2 tầng 1 tum hiện đại này không bị nhạt nhòa, các kiến trúc sư đã khéo léo nhấn nhá bằng những mảng tường ốp gạch thẻ màu xám ghi và hệ lam gỗ nhựa composite ở trần ban công.

Đặc biệt, hệ cửa kính cường lực khung nhôm Xingfa được mở rộng tối đa. Ban ngày, ánh sáng tự nhiên tràn ngập khắp nhà, giúp tiết kiệm điện năng. Ban đêm, khi ánh đèn vàng hắt ra, ngôi nhà trông lung linh như một chiếc đèn lồng giữa phố.

Hệ thống cây xanh cũng là điểm cộng. Chúng tôi không để ban công trống trơn mà bố trí các bồn hoa tại tầng 2 và khu vực tầng tum. Màu xanh của lá cây làm mềm đi những đường nét kiến trúc bê tông cứng nhắc, mang lại cảm giác “nhà là nơi để về” đúng nghĩa.

Góc nghiêng mẫu nhà phố 2 tầng 1 tum hiện đại

3. “Mổ xẻ” công năng: Tối ưu hoá từng centimet

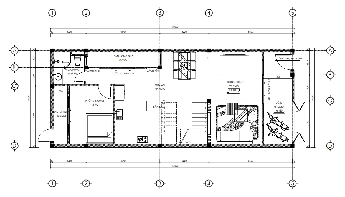
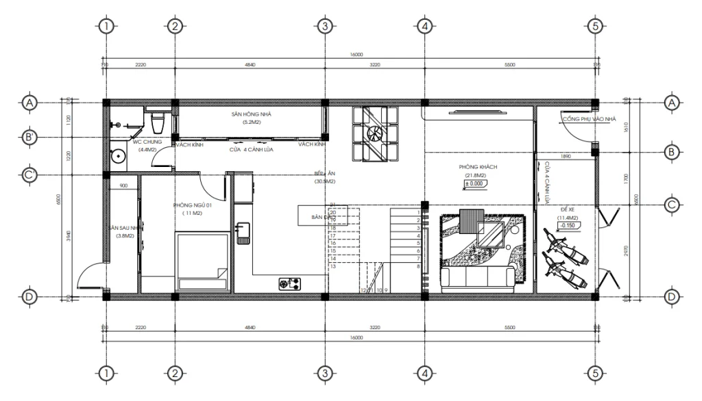
Một ngôi nhà đẹp mã mà bên trong bất tiện thì cũng “vứt”, đúng không các bạn? Với mẫu nhà phố 2 tầng 1 tum hiện đại của anh Quang, Tech Home đã dành rất nhiều tâm huyết để bố trí mặt bằng công năng sao cho khoa học nhất. Tổng diện tích thiết kế lên đến 230 m2, đủ rộng rãi cho gia đình 3 thế hệ.

Tầng 1: Sự kết nối của các thành viên

Mặt bằng tầng 1 có diện tích thiết kế khoảng 104 m2, được chia thành các khu vực chức năng rõ ràng:

  • Khu để xe (11.4 m2): Bước qua cổng là khu vực để xe riêng biệt. Điểm tinh tế ở đây là sàn được hạ cốt -0.150 so với sàn nhà, giúp bụi bẩn từ xe cộ không bay vào phòng khách.

  • Phòng khách (21.8 m2): Đây là “bộ mặt” của gia chủ. Với diện tích này, anh Quang thoải mái kê một bộ sofa gỗ óc chó sang trọng.

  • Bếp và phòng ăn (30.5 m2): Đây là trái tim của ngôi nhà. Diện tích 30m2 là rất rộng đối với nhà phố, đủ để đặt một bàn ăn 8-10 người. Điểm đắt giá nhất là hệ cửa lùa 4 cánh mở ra khoảng sân hông nhà rộng 5.2 m2. Khi nấu nướng, chỉ cần mở cửa này ra, gió lùa vào, mùi thức ăn bay đi, không gian lúc nào cũng thoáng đãng.

  • Phòng ngủ 01 (11 m2): Phòng này dành cho ông bà. Việc bố trí phòng ngủ người già ở tầng 1 là cực kỳ cần thiết trong các mẫu nhà phố 2 tầng 1 tum hiện đại, giúp người lớn tuổi hạn chế việc leo cầu thang, đảm bảo an toàn.

  • WC chung (4.4 m2): Được đẩy kín đáo về phía cuối nhà, cạnh phòng ngủ, rất tiện sinh hoạt.

Bản vẽ bố trí công năng tầng 1 mẫu nhà phố 2 tầng 1 tum hiện đại diện tích 104m2 gồm phòng khách liên thông bếp ăn.
Bản vẽ bố trí công năng tầng 1 mẫu nhà phố 2 tầng 1 tum hiện đại diện tích 104m2 gồm phòng khách liên thông bếp ăn.

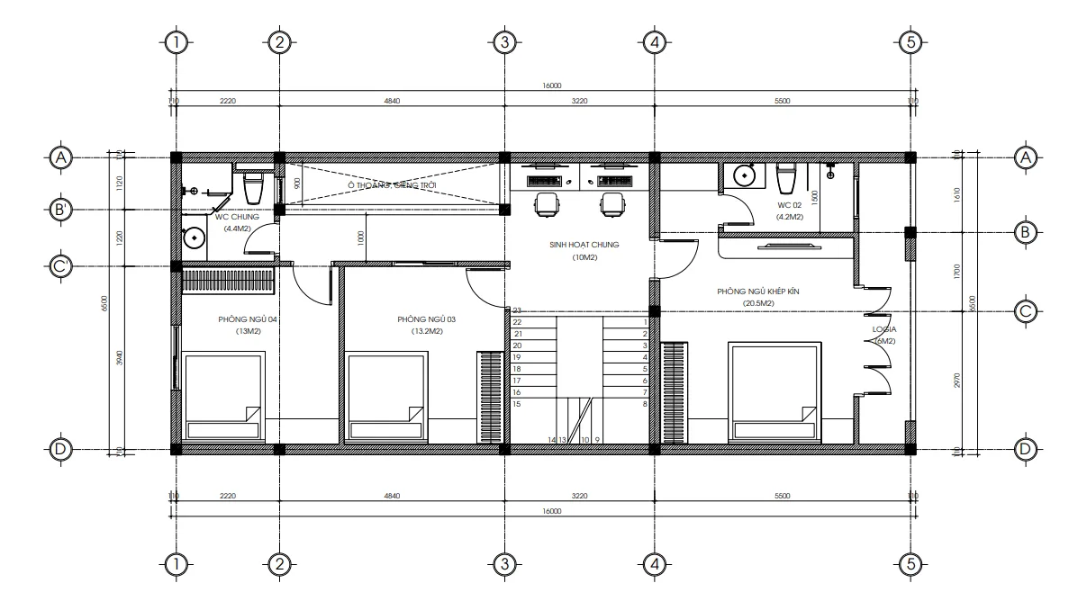
Tầng 2: Không gian riêng tư tuyệt đối

Lên đến tầng 2, không gian trở nên ấm cúng và riêng tư hơn hẳn. Mặt bằng tầng 2 cũng có diện tích 104 m2, bao gồm:

  • Phòng ngủ Master (20.5 m2): Đây là thiên đường nghỉ ngơi của vợ chồng anh Quang. Phòng rộng rãi, có WC khép kín (4.2 m2) đảm bảo sự riêng tư. Từ phòng này có cửa mở ra ban công lớn phía trước, buổi tối hai vợ chồng có thể ra đây hóng gió, uống trà.

  • 02 Phòng ngủ con (13 m2 và 13.2 m2): Hai phòng ngủ dành cho các con được đặt phía sau nhà. Dù ở sau nhưng nhờ có khoảng thông tầng (ô thoáng) nên phòng nào cũng chan hòa ánh sáng.

  • Phòng sinh hoạt chung (10 m2): Nằm ở vị trí trung tâm, đối diện cầu thang. Đây là nơi cả nhà quây quần xem tivi, đọc sách trước khi đi ngủ, gắn kết tình cảm gia đình.

  • WC chung (4.4 m2): Phục vụ cho 2 phòng ngủ con và khách ghé thăm tầng 2.

Bản vẽ bố trí công năng tầng 2 mẫu nhà phố 2 tầng 1 tum hiện đại diện tích 104m2 gồm 3 phòng ngủ.
Bản vẽ bố trí công năng tầng 2 mẫu nhà phố 2 tầng 1 tum hiện đại diện tích 104m2 gồm 3 phòng ngủ.

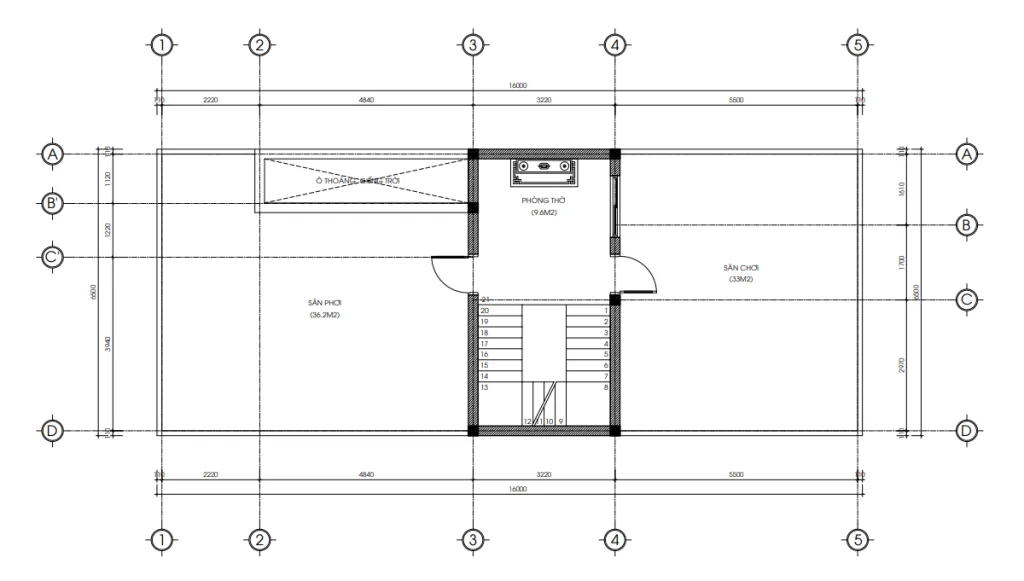
Tầng Tum: Điểm nhấn của phong cách sống mới

Đây chính là lý do khiến mẫu nhà phố 2 tầng 1 tum hiện đại được yêu thích. Tầng tum có diện tích xây dựng kín là 22 m2, nhưng giá trị sử dụng lại nằm ở không gian mở:

  • Phòng thờ (9.6 m2): Được đặt ở vị trí cao nhất, trang trọng nhất của ngôi nhà, thể hiện lòng thành kính với tổ tiên. Hướng bàn thờ nhìn ra sân chơi phía trước hợp phong thủy.

  • Sân chơi phía trước (33 m2): Đây là khu vực “chill” nhất nhà. Anh Quang dự định sẽ đặt một bộ bàn ghế đá, trồng dàn hoa giấy và vài chậu cây cảnh. Cuối tuần, đây sẽ là nơi tổ chức tiệc nướng BBQ ngoài trời cho cả đại gia đình mà không sợ ám mùi vào nhà.

  • Sân phơi phía sau (36.2 m2): Khu vực giặt giũ, phơi phóng được bố trí khuất phía sau, đảm bảo tính thẩm mỹ cho mặt tiền ngôi nhà.

Bản vẽ mặt bằng tầng tum mẫu nhà phố 2 tầng 1 tum hiện đại bố trí phòng thờ và sân chơi thoáng mát.
Bản vẽ mặt bằng tầng tum mẫu nhà phố 2 tầng 1 tum hiện đại bố trí phòng thờ và sân chơi thoáng mát.

4. Giải pháp thông thoáng: “Nhà phố nhưng thở như Resort”

Nỗi ám ảnh lớn nhất của người ở nhà phố là sự bí bách, thiếu sáng. Tuy nhiên, với mẫu nhà phố 2 tầng 1 tum hiện đại này, Tech Home đã giải quyết triệt để vấn đề đó.

Nhìn vào bản vẽ mặt bằng mái, các bạn sẽ thấy chúng tôi bố trí hệ thống ô thoáng (giếng trời) chạy dọc theo cầu thang và khu vệ sinh. Nguyên lý đối lưu không khí được vận dụng tối đa: Gió mát đi vào từ cửa chính và cửa bên hông, khí nóng bốc lên cao và thoát ra theo đường giếng trời và cửa sổ tầng tum. Nhờ vậy, ngôi nhà luôn tự điều hòa nhiệt độ, giảm thiểu sự phụ thuộc vào điều hòa không khí.

5. Vật liệu xây dựng: Bền đẹp theo thời gian

Để mẫu nhà phố 2 tầng 1 tum hiện đại của anh Quang giữ được vẻ đẹp bền bỉ, Tech Home tư vấn sử dụng các vật liệu tiên tiến:

  • Kính Low-E: Cho hệ cửa mặt tiền, giúp cản nhiệt, cản tia UV nhưng vẫn đón sáng tốt.

  • Sơn ngoại thất chống thấm: Dòng sơn cao cấp có khả năng tự làm sạch khi trời mưa, chống rêu mốc.

  • Gạch lát nền khổ lớn: Sử dụng gạch 80×80 hoặc 60×120 vân đá marble giúp không gian tầng 1 trông rộng và sang hơn.

  • Đá ốp cổng và mặt tiền: Đá tự nhiên giúp ngôi nhà trông vững chãi và đẳng cấp.

Để tìm hiểu rõ hơn về tiêu chuẩn vật liệu xây dựng và các yếu tố ảnh hưởng đến chi phí, bạn có thể tham khảo thêm tại các bài viết chuyên sâu về vật liệu xây dựng cao cấp trên Wikipedia.

Góc nghiêng mẫu nhà phố 2 tầng 1 tum hiện đại

6. Báo giá thiết kế và thi công (Cập nhật 2026)

Đây chắc hẳn là phần các bạn mong chờ nhất. Chi phí để sở hữu một mẫu nhà phố 2 tầng 1 tum hiện đại như nhà anh Quang là bao nhiêu?

Tech Home xin gửi đến bạn bảng báo giá tham khảo để bạn dễ dàng dự trù ngân sách. (Lưu ý: Giá có thể thay đổi tùy thuộc vào thời điểm thi công, vị trí địa lý và chủng loại vật tư bạn chọn).

a. Chi phí thiết kế kiến trúc

Hiện tại, Tech Home đang có mức giá ưu đãi cho gói thiết kế mẫu nhà phố 2 tầng 1 tum hiện đại:

  • Đơn giá: 108.000 VNĐ/m2.

  • Với tổng diện tích sàn 230 m2, chi phí thiết kế trọn bộ hồ sơ (Kiến trúc, Kết cấu, Điện nước, 3D) rơi vào khoảng 25 triệu đồng.

b. Chi phí thi công xây dựng (Dự toán)

Dựa trên kinh nghiệm thi công thực tế tại Bắc Ninh, chúng tôi tạm tính cho bạn:

Hạng Mục Đơn Giá (VNĐ/m2) Thành Tiền Tạm Tính Diễn Giải
Thi công phần thô & nhân công hoàn thiện 3.800.000 – 4.200.000 ~ 900 Triệu – 1 Tỷ Bao gồm móng, khung cột, xây trát, điện nước âm tường.
Thi công trọn gói (Chìa khóa trao tay) – Gói Khá 6.500.000 – 7.000.000 ~ 1.5 Tỷ – 1.6 Tỷ Đã bao gồm cửa, gạch ốp lát, thiết bị vệ sinh, sơn bả, trần thạch cao (chưa bao gồm đồ gỗ nội thất rời).
Thi công trọn gói – Gói Cao Cấp 7.500.000 – 8.000.000 ~ 1.8 Tỷ – 1.9 Tỷ Vật liệu cao cấp, thiết bị vệ sinh nhập khẩu…

Lời khuyên: Với mẫu nhà phố 2 tầng 1 tum hiện đại, bạn có thể chọn phương án xây thô rồi tự hoàn thiện dần nếu ngân sách hạn hẹp, hoặc chọn trọn gói để đồng bộ chất lượng và tiết kiệm thời gian quản lý.

Tổng thể mẫu nhà phố 2 tầng 1 tum hiện đại có sân chơi và sân phơi rộng rãi trên tầng thượng.
Tổng thể mẫu nhà phố 2 tầng 1 tum hiện đại có sân chơi và sân phơi rộng rãi trên tầng thượng.

7. Quy trình làm việc tại Tech Home

Để cho ra đời bản vẽ mẫu nhà phố 2 tầng 1 tum hiện đại hoàn chỉnh cho anh Quang, đội ngũ Tech Home đã làm việc theo quy trình 5 bước chặt chẽ:

  1. Tiếp nhận thông tin: Lắng nghe mong muốn, khảo sát hiện trạng đất thực tế tại Bắc Ninh.

  2. Lên phương án mặt bằng: KTS trực tiếp lên ý tưởng và chỉnh sửa đến khi anh Quang ưng ý.

  3. Dựng phối cảnh 3D: Giúp gia chủ hình dung rõ nét ngôi nhà trong tương lai.

  4. Triển khai hồ sơ kỹ thuật: KTS kiểm duyệt kỹ lưỡng từng chi tiết kết cấu, điện nước.

  5. Bàn giao và giám sát: Hỗ trợ tư vấn kỹ thuật từ xa qua Hotline 0364.04.2222 trong suốt quá trình nhà thầu địa phương thi công.

8. Cảm nhận của khách hàng

Khi nhận được hồ sơ thiết kế mẫu nhà phố 2 tầng 1 tum hiện đại, anh Quang chia sẻ: “Ban đầu anh nghĩ đất 6.5m ngang thì khó làm nhà đẹp lắm, sợ nó cứ dài thuồn thuột. Nhưng nhìn bản thiết kế này anh rất ưng, nhất là cái sân thượng và phòng bếp thoáng. Cảm ơn đội ngũ Tech Home đã rất nhiệt tình.”

Sự hài lòng của khách hàng chính là động lực để chúng tôi sáng tạo mỗi ngày.

Tổng thể mẫu nhà phố 2 tầng 1 tum hiện đại

9. Tại sao bạn nên chọn Tech Home?

Giữa hàng trăm đơn vị thiết kế, Tech Home tự tin mang đến cho bạn không chỉ một bản vẽ, mà là một giải pháp sống.

  • Chuyên nghiệp: Đội ngũ KTS được đào tạo bài bản, am hiểu phong thủy và kết cấu.

  • Tận tâm: Chúng tôi coi ngôi nhà của bạn như ngôi nhà của chính mình.

  • Minh bạch: Báo giá rõ ràng, không phát sinh chi phí vô lý.

  • Hỗ trợ trọn đời: Dù bạn chỉ thuê thiết kế, chúng tôi vẫn sẵn sàng tư vấn kỹ thuật 24/7 khi thợ xây gặp vướng mắc.

10. Lời kết

Xây nhà là việc trọng đại cả đời người. Một mẫu nhà phố 2 tầng 1 tum hiện đại không chỉ che mưa che nắng mà còn là nơi nuôi dưỡng tâm hồn, là nơi con cái trưởng thành và cha mẹ an hưởng tuổi già.

Hy vọng qua bài viết review chi tiết về công trình của anh Quang tại Bắc Ninh, bạn đã có thêm ý tưởng cho ngôi nhà tương lai của mình. Đừng ngần ngại để lại bình luận hoặc liên hệ với chúng tôi để được tư vấn miễn phí nhé!

Thông tin liên hệ:

Hãy gọi cho chúng tôi ngay hôm nay nếu bạn cũng đang mơ về một mẫu nhà phố 2 tầng 1 tum hiện đại đẹp như mơ thế này! Cảm ơn các bạn đã đọc bài, hẹn gặp lại ở những công trình tiếp theo!

Để lại một bình luận

Email của bạn sẽ không được hiển thị công khai. Các trường bắt buộc được đánh dấu *

    Vui lòng nhấn nút YÊU CẦU TƯ VẤN và đợi 1 - 2 giây đến khi thấy thông báo thành công

    YÊU CẦU TƯ VẤN