Chào các bạn, lại là đội ngũ TechHome đây! Hôm nay, thay vì những lời quảng cáo hoa mỹ, tôi muốn dẫn các bạn đi tham quan một công trình mà chúng tôi vừa bàn giao hồ sơ thiết kế cho chị Linh tại Hải Phòng.
Nếu bạn đang sở hữu một mảnh đất phố đặc trưng và đang tìm kiếm một mẫu nhà ống 2 tầng 4x15m vừa túi tiền nhưng phải “chất”, thì đừng bỏ qua bài viết này. Tôi sẽ phân tích kỹ từ bản vẽ kỹ thuật đến thực tế công năng để bạn có cái nhìn chân thực nhất.
1. Câu chuyện đằng sau mẫu nhà ống 2 tầng 4x15m của chị Linh
Chị Linh tìm đến TechHome với một nỗi lo khá phổ biến: “Đất nhà chị ngang có 4m, sâu 15m, liệu có xây được 2 phòng ngủ mà phòng nào cũng thoáng không em? Chị sợ nhà ống nó bí bách lắm.” Thú thực với các bạn, cái khó của mẫu nhà ống 2 tầng 4x15m không phải là xây lên cho đẹp, mà là làm sao để gió và ánh sáng len lỏi được vào từng ngóc ngách. Sau nhiều đêm “cân não” của đội ngũ kiến trúc sư và cộng sự, phương án nhà chị Linh đã ra đời, giải quyết triệt để bài toán không gian.

2. Phân tích kiến trúc ngoại thất: Đơn giản nhưng không đơn điệu
Nhìn vào hình ảnh phối cảnh, bạn sẽ thấy mẫu nhà ống 2 tầng 4x15m này mang phong cách hiện đại tối giản. Chúng tôi không sử dụng quá nhiều phào chỉ rườm rà vì diện tích mặt tiền 4m nếu làm quá “nặng” sẽ gây cảm giác chật chội.
-
Tông màu: Trắng chủ đạo kết hợp với các mảng đá ốp màu xám ghi và hệ cửa nhôm kính đen. Đây là bộ ba màu sắc “bất tử”, không bao giờ lỗi mốt.
-
Điểm nhấn: Phần ban công tầng 2 được thiết kế đua ra một chút, kết hợp với lan can sắt thanh mảnh, tạo độ thông thoáng tối đa.
-
Ánh sáng: Hệ thống đèn led âm trần ở ban công và cổng chính không chỉ chiếu sáng mà còn giúp ngôi nhà lung linh hơn khi đêm về.
Đây chính là điểm mạnh của mẫu nhà ống 2 tầng 4x15m mà TechHome luôn hướng tới: Đẹp một cách tinh tế và cực kỳ dễ thi công.

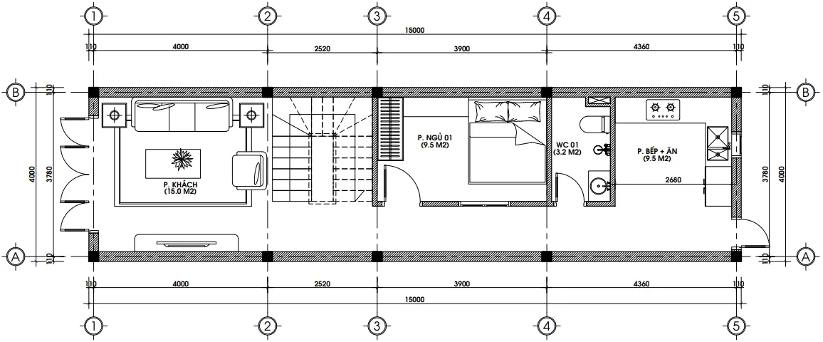
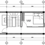
3. “Mổ xẻ” công năng tầng 1: Sự logic trong từng mét vuông
Nhiều người hay tham lam nhét quá nhiều thứ vào tầng 1, nhưng với mẫu nhà ống 2 tầng 4x15m này, chúng tôi ưu tiên sự mạch lạc.
-
Phòng khách (15.0 m2): Ngay sau lớp cửa kính lớn là không gian tiếp khách. Với diện tích này, bạn hoàn toàn có thể đặt một bộ sofa chữ L hiện đại mà vẫn có lối đi thoải mái.
-
Cầu thang (2520mm): Được đặt ở giữa nhà, đóng vai trò là “vách ngăn tự nhiên” giữa phòng khách và không gian phía sau. Dưới gầm thang, bạn có thể tận dụng làm kho hoặc tiểu cảnh khô.
-
Phòng ngủ 01 (9.5 m2): Một phòng ngủ nhỏ dưới tầng 1 cực kỳ tiện lợi cho gia đình có người lớn tuổi hoặc dùng làm phòng ngủ dự phòng.
-
Bếp + Ăn (9.5 m2): Đặt ở cuối nhà để đảm bảo mùi thức ăn không bay ngược lên phòng khách. Cửa hậu thông ra sân sau giúp không gian luôn thoáng đãng.
-
WC 01 (3.2 m2): Thiết kế nhỏ gọn, đủ dùng và cực kỳ kín đáo.
Tổng diện tích sàn tầng 1 là 60m2, một con số lý tưởng cho một mẫu nhà ống 2 tầng 4x15m hiện nay.

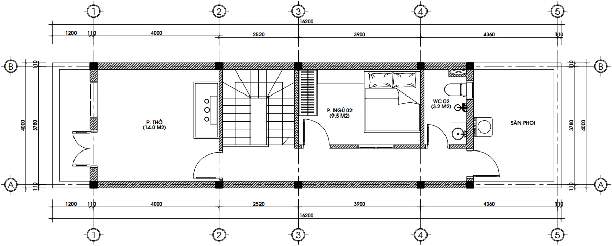
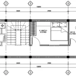
4. Tầng 2: Không gian riêng tư và tâm linh
Nếu tầng 1 là nơi náo nhiệt thì tầng 2 của mẫu nhà ống 2 tầng 4x15m là khoảng lặng cần thiết.
-
Phòng thờ (14.0 m2): Gia đình chị Linh rất coi trọng việc thờ cúng nên chúng tôi dành một không gian rộng rãi, trang trọng hướng ra ban công mặt tiền.
-
Phòng ngủ 02 (9.5 m2): Tương tự tầng 1, phòng ngủ này được thiết kế vuông vức, dễ dàng kê đồ nội thất.
-
Sân phơi: Đây là khu vực không thể thiếu trong các mẫu nhà phố. Chúng tôi bố trí phía sau để giữ thẩm mỹ cho mặt tiền ngôi nhà.
Việc phân bổ công năng như vậy giúp mẫu nhà ống 2 tầng 4x15m của chị Linh trở nên cực kỳ đáng sống, không có diện tích “chết”.

5. Tại sao bạn nên chọn mẫu nhà ống 2 tầng 4x15m này?
Tôi nói thật, trên mạng có hàng nghìn mẫu nhà, nhưng để tìm được một thiết kế vừa thực tế, vừa đúng kỹ thuật như hồ sơ của TechHome thì không dễ.
-
Chi phí tối ưu: Với diện tích 60m2/sàn, tổng chi phí xây dựng sẽ nằm trong tầm kiểm soát của đa số các cặp vợ chồng trẻ.
-
Thông tầng thông minh: Chúng tôi bố trí ô giếng trời ngay khu vực cầu thang, giúp đối lưu không khí cực tốt. Bạn sẽ không bao giờ cảm thấy ngột ngạt trong mẫu nhà ống 2 tầng 4x15m này.
-
Hồ sơ kỹ thuật chuẩn chỉ: Từ kết cấu móng, điện nước đến chi tiết cửa đều được KTS kiểm duyệt khắt khe.

6. Báo giá thiết kế và thi công (Tham khảo 2026)
Để các bạn dễ hình dung và chuẩn bị ngân sách cho mẫu nhà ống 2 tầng 4x15m, TechHome xin đưa ra bảng giá công khai như sau:
| Hạng mục | Đơn giá dự kiến | Thành tiền (tạm tính cho 120m2) |
| Thiết kế kiến trúc | 108.000 đ/m2 | ~13 triệu VNĐ |
| Xây dựng phần thô | 3.800.000 – 4.200.000 đ/m2 | 456 – 504 triệu VNĐ |
| Xây nhà trọn gói (Chìa khóa trao tay) | 6.500.000 – 7.500.000 đ/m2 | 780 – 900 triệu VNĐ |
Lưu ý: Đây chỉ là mức chi phí ước tính. Để nhận được báo giá chính xác và chi tiết nhất cho công trình của bạn, vui lòng liên hệ trực tiếp với chúng tôi. Hoặc để tìm hiểu rõ hơn về tiêu chuẩn vật liệu xây dựng và các yếu tố ảnh hưởng đến chi phí, bạn có thể tham khảo thêm tại các bài viết chuyên sâu về vật liệu xây dựng cao cấp trên Wikipedia.

7. Những lưu ý “xương máu” khi xây mẫu nhà ống 2 tầng 4x15m
Với tư cách là người trong nghề, tôi có vài lời khuyên thật lòng cho anh em đang có ý định xây mẫu nhà ống 2 tầng 4x15m:
-
Đừng tiết kiệm tiền thiết kế: Một bộ hồ sơ chuẩn sẽ giúp bạn tránh được những lãng phí không đáng có khi thi công sai, đập đi xây lại.
-
Ưu tiên chống thấm: Nhà phố chung tường rất dễ bị thấm từ nhà hàng xóm. Hãy đầu tư vật liệu chống thấm tốt ngay từ đầu.
-
Chọn đơn vị uy tín: Hãy nhìn vào những sản phẩm thực tế mà họ đã làm. TechHome luôn sẵn sàng đưa bạn đi tham quan các công trình chúng tôi đã thi công tại Hải Phòng và các tỉnh lân cận.
Mẫu nhà ống 2 tầng 4x15m không chỉ là một ngôi nhà, nó là tổ ấm, là tài sản cả đời của bạn. Hãy để những người có tâm và có tầm đồng hành cùng bạn.

8. Kết luận
Hy vọng bài phân tích chi tiết về mẫu nhà ống 2 tầng 4x15m của gia đình chị Linh tại Hải Phòng đã giúp bạn có thêm nguồn cảm hứng cho ngôi nhà tương lai của mình. Nếu bạn thích sự đơn giản, hiện đại và công năng khoa học, thì đây chính là lựa chọn số 1.
Đừng ngần ngại nhấc máy gọi cho TechHome qua số 036.273.2222 hoặc truy cập website nhadeptechhome.vn để được tư vấn miễn phí nhé. Chúng tôi không chỉ xây nhà, chúng tôi xây dựng niềm tin!
Một lần nữa, cảm ơn các bạn đã theo dõi bài viết về mẫu nhà ống 2 tầng 4x15m. Chúc bạn sớm sở hữu ngôi nhà mơ ước!
