Bạn đang sở hữu một mảnh đất tại Hà Nội và đau đầu với bài toán: Làm sao để xây dựng một không gian sống đầy đủ tiện nghi cho đại gia đình, có tới 4 phòng ngủ nhưng ngân sách lại phải chăng? Câu chuyện về ngôi nhà cấp 4 mái bằng của gia đình anh Đình (Hà Nội) do Techhome thiết kế chính là câu trả lời hoàn hảo nhất mà bạn đang tìm kiếm.
Không cầu kỳ hoa mỹ như những lâu đài tân cổ điển, cũng không tốn kém quá nhiều chi phí phần mái như nhà mái Thái, mẫu nhà cấp 4 mái bằng này hiện lên như một nét chấm phá tinh tế, hiện đại và cực kỳ “thực dụng” theo đúng nghĩa tốt đẹp nhất của từ này. Hãy cùng Techhome “mổ xẻ” chi tiết hồ sơ thiết kế này để thấy được sự tài tình trong bố trí công năng của các kiến trúc sư.
1. Tại sao “Nhà cấp 4 mái bằng” lại trở thành xu hướng tại Hà Nội?
Trong những năm gần đây, xu hướng kiến trúc tại các đô thị lớn như Hà Nội đang có sự chuyển dịch mạnh mẽ. Người ta bắt đầu ưu tiên “chất” hơn là “lượng”, ưu tiên sự tiện dụng và thông thoáng hơn là những chi tiết rườm rà. Và đó là lúc nhà cấp 4 mái bằng lên ngôi.
Nhìn vào phối cảnh mặt tiền của nhà anh Đình, bạn sẽ bị thu hút ngay bởi sự khỏe khoắn, gọn gàng. Kiến trúc mái bằng không chỉ giúp tiết kiệm chi phí xây dựng (do giảm thiểu được phần ngói, xà gồ, nhân công lợp mái) mà còn mang lại vẻ đẹp vượt thời gian. Đặc biệt, với thiết kế của Techhome, phần mái không hề đơn điệu. Chúng tôi đã khéo léo xử lý bằng những đường bo cong mềm mại ở góc mái hiên, kết hợp với trần giả gỗ conwood, tạo nên một “giao diện” vừa sang trọng, vừa gần gũi. Đây chính là điểm “ăn tiền” khiến mẫu nhà cấp 4 mái bằng này trở nên khác biệt hoàn toàn so với những ngôi nhà “hộp diêm” truyền thống.

2. Phân tích “Mặt tiền triệu view” – Đơn giản nhưng đầy khí chất
Một ngôi nhà cấp 4 mái bằng đẹp là ngôi nhà biết cách “giao tiếp” với thiên nhiên.
Quan sát kỹ hình ảnh 3D, bạn sẽ thấy Techhome sử dụng tông màu trắng sứ làm chủ đạo – một gam màu không bao giờ lỗi mốt. Để tránh sự lạnh lẽo, các kiến trúc sư đã điểm xuyết hệ thống gạch ốp chân tường màu ghi xám, vừa sạch sẽ, chống rêu mốc, vừa tạo cảm giác vững chãi cho công trình.
Hệ thống cửa chính và cửa sổ sử dụng nhôm kính Xingfa bản lớn. Đây là giải pháp tối ưu để lấy sáng tự nhiên. Hãy tưởng tượng mỗi buổi sáng, ánh nắng chan hòa chiếu rọi vào phòng khách, tạo nên luồng sinh khí dồi dào cho cả gia đình. Với nhà cấp 4 mái bằng, việc xử lý chống nóng và thoát nước mái là cực kỳ quan trọng. Tại công trình này, Techhome đã thiết kế hệ thống thu nước mái âm tường gọn gàng và sử dụng các lớp vật liệu chống nóng chuyên dụng trên trần, đảm bảo “đông ấm, hè mát”.

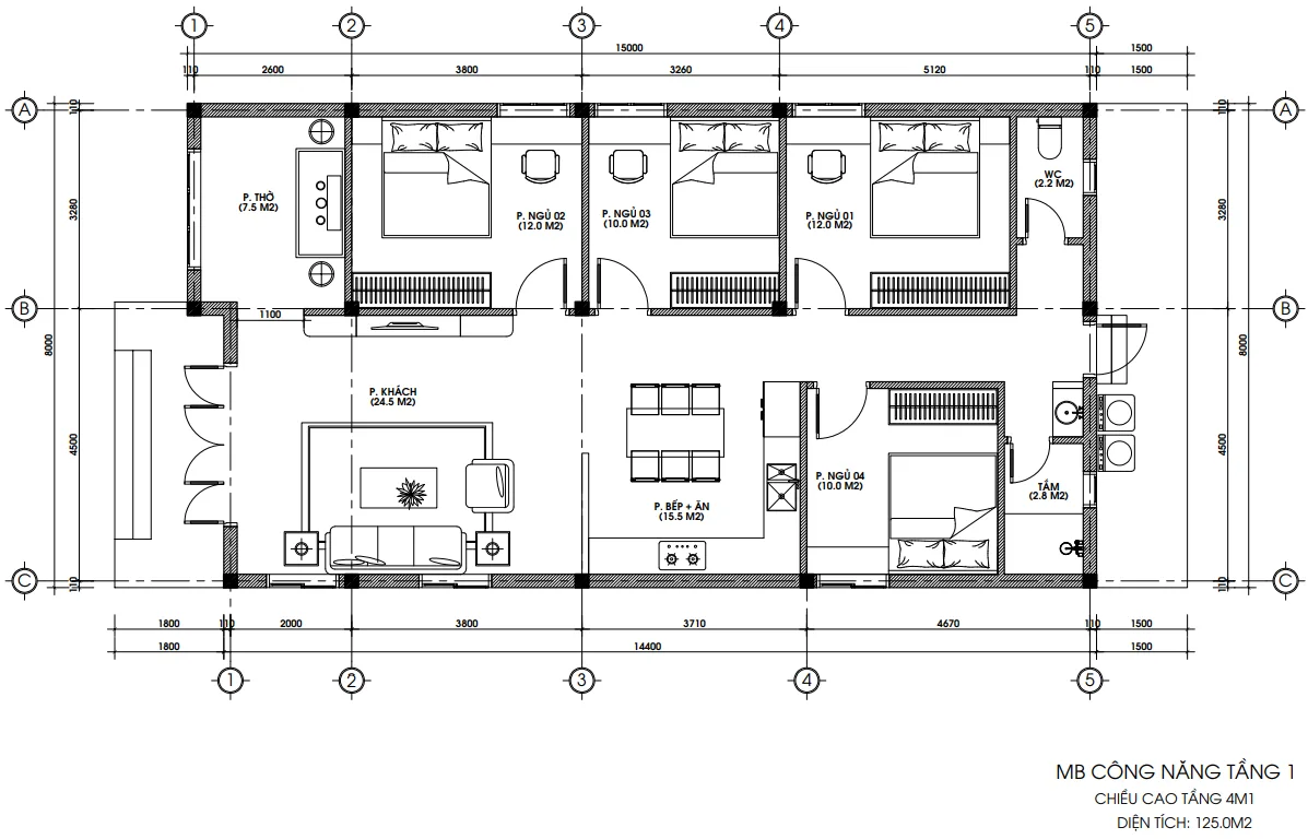
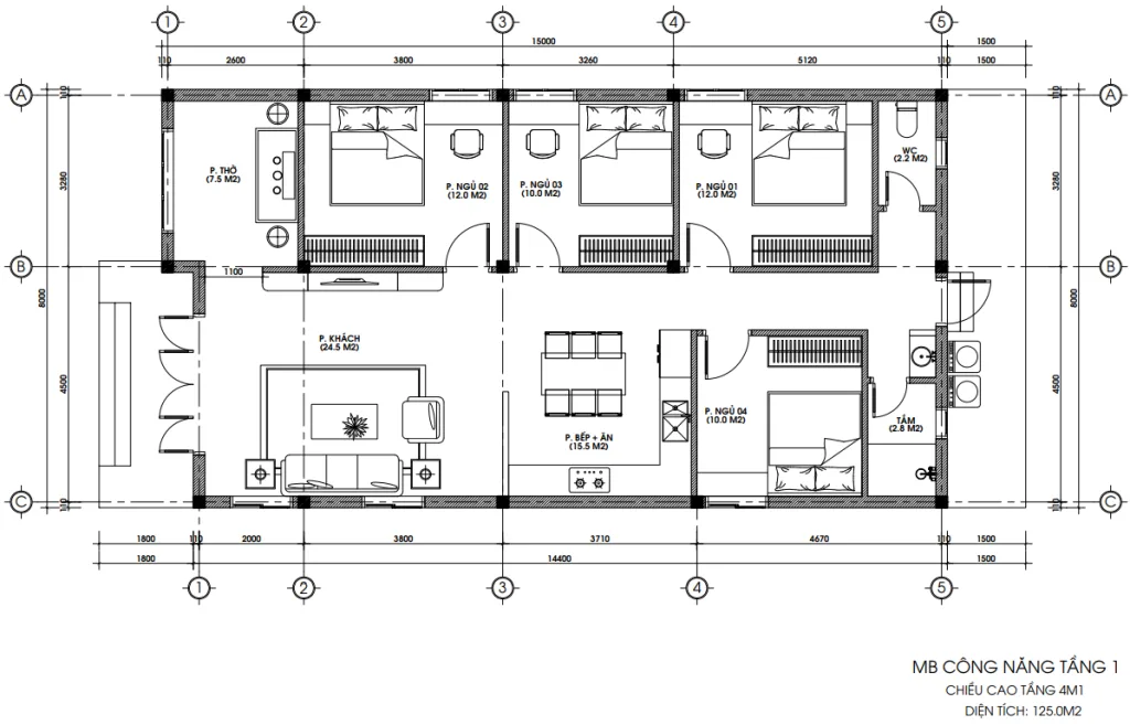
3. “Mổ xẻ” mặt bằng công năng: Bài toán chia 125m2 cho 4 phòng ngủ
Đây chính là phần “tinh hoa” nhất của bản thiết kế này. Với diện tích sàn 125m2 (chiều ngang 8m, chiều sâu khoảng 15m), làm thế nào để bố trí được: 1 Phòng thờ, 1 Phòng khách, 1 Bếp ăn và tới 4 Phòng ngủ mà không gian không bị bí bách?
Dưới đây là cách Techhome giải bài toán này trong mẫu nhà cấp 4 mái bằng của anh Đình:
-
Phòng khách (24.5 m2): Nằm ngay sau sảnh chính, đây là “bộ mặt” của ngôi nhà. Diện tích này đủ rộng để bố trí bộ sofa lớn, kệ tivi và vẫn còn không gian vui chơi cho trẻ nhỏ.
-
Phòng thờ (7.5 m2): Được đặt trang trọng ở phía mặt tiền, cạnh phòng khách. Vị trí này đảm bảo sự tôn nghiêm và phong thủy, hướng ra không gian thoáng đãng phía trước.
-
Khu vực Bếp + Ăn (15.5 m2): Được bố trí liên thông nhưng vẫn có sự kín đáo cần thiết. Diện tích này đủ cho một bàn ăn 6-8 người và hệ tủ bếp tiện nghi.
-
Hệ thống 4 Phòng ngủ: Đây là điểm nhấn của nhà cấp 4 mái bằng này. Techhome đã chia không gian cực kỳ khoa học:
-
Phòng ngủ 01 và 02: Diện tích 12.0 m2/phòng. Rộng rãi, phù hợp cho ông bà hoặc bố mẹ.
-
Phòng ngủ 03 và 04: Diện tích 10.0 m2/phòng. Tuy nhỏ hơn một chút nhưng vẫn đầy đủ công năng cho con cái hoặc khách.
-
Việc bố trí 4 phòng ngủ chạy dọc theo hai bên hông nhà giúp tạo ra một hành lang giao thông ở giữa thông thoáng, hút gió từ cửa chính xuống cuối nhà.
-
-
Khu vệ sinh tách biệt: Một điểm cộng cực lớn cho sự tinh tế. Techhome đã tách riêng khu vực tắm (2.8 m2) và khu vực vệ sinh (WC 2.2 m2). Điều này cực kỳ quan trọng với gia đình đông người, buổi sáng đi học đi làm sẽ không bị cảnh “chờ đợi” nhau.
Rõ ràng, mẫu nhà cấp 4 mái bằng này không chỉ đẹp mà còn là đỉnh cao của sự tối ưu hóa không gian. Mọi cm2 đều được tính toán kỹ lưỡng.

4. Giải pháp thi công & Vật liệu: Bền bỉ với thời gian
Nhiều người e ngại nhà cấp 4 mái bằng sẽ dễ bị thấm dột hoặc nóng hơn mái Thái. Tuy nhiên, với công nghệ xây dựng hiện nay của Techhome, nỗi lo này đã được giải quyết triệt để.
-
Chống thấm: Chúng tôi sử dụng quy trình chống thấm 3 lớp: Lớp bê tông gốc, lớp sika latex chuyên dụng và lớp gạch/tôn chống nóng phía trên.
-
Chống nóng: Mái được đổ bê tông cốt thép chịu lực, phía trên lợp thêm một lớp tôn lạnh hoặc lát gạch chữ U chống nóng. Ngoài ra, trần thạch cao bên trong nhà cũng đóng vai trò như một lớp đệm không khí cách nhiệt tuyệt vời.
Sự kiên cố của nhà cấp 4 mái bằng còn đến từ hệ khung kết cấu bê tông cốt thép vững chắc, phù hợp với nền đất tại khu vực Hà Nội.
5. Tại sao bạn nên chọn Techhome cho ngôi nhà mơ ước?
Giữa hàng trăm đơn vị thiết kế, tại sao anh Đình tại Hà Nội lại “chọn mặt gửi vàng” cho Techhome để kiến tạo mẫu nhà cấp 4 mái bằng này?
-
Sự thấu hiểu: Chúng tôi không chỉ vẽ nhà, chúng tôi vẽ tổ ấm. Chúng tôi hiểu rằng với 125m2, việc bố trí 4 phòng ngủ vào là một thử thách, nhưng chúng tôi đã làm được mà không khiến ngôi nhà trở nên chật chội.
-
Minh bạch: Từ hồ sơ thiết kế kỹ thuật thi công đến bảng dự toán chi phí, mọi thứ đều rõ ràng. Bạn sẽ không lo phát sinh chi phí vô lý.
-
Đồng hành: Số hotline hỗ trợ kỹ thuật xây dựng 0364.04.2222 – 0387.60.3333 của chúng tôi luôn sẵn sàng giải đáp mọi thắc mắc của thợ thuyền trong quá trình thi công, dù bạn ở Hà Nội hay bất kỳ đâu.

6. Báo Giá Thiết Kế & Thi Công Nhà Cấp 4 Mái Bằng (Cập Nhật 2026)
Rất nhiều khách hàng khi xem mẫu nhà cấp 4 mái bằng này đều có chung câu hỏi: “Xây nhà đẹp thế này hết bao nhiêu tiền?”. Techhome xin đưa ra bảng khái toán chi phí (tham khảo) để bạn dễ dàng hình dung và chuẩn bị tài chính.
> Lưu ý: Đơn giá có thể thay đổi tùy thuộc vào thời điểm, vị trí địa lý và chủng loại vật liệu bạn lựa chọn.
1. Chi phí thiết kế kiến trúc
Hiện nay, đơn giá thiết kế cho nhà cấp 4 mái bằng phong cách hiện đại tại Techhome đang có mức giá cực kỳ ưu đãi:
-
Đơn giá: 108.000 VNĐ/m2.
-
Thành tiền (ước tính cho 125m2): Khoảng 13.500.000 VNĐ.
2. Chi phí thi công xây dựng (Chìa khóa trao tay)
Đối với mẫu nhà cấp 4 mái bằng diện tích 125m2, công năng 4 phòng ngủ như nhà anh Đình:
| Hạng mục | Đơn giá tham khảo (VNĐ/m2) | Tổng chi phí ước tính (VNĐ) |
| Xây dựng phần thô | 3.500.000 – 4.000.000 | ~ 437.000.000 – 500.000.000 |
| Thi công trọn gói (Vật tư khá) | 6.000.000 – 7.000.000 | ~ 750.000.000 – 875.000.000 |
Chi tiết vật tư gói cơ bản – khá:
-
Sắt thép: Hòa Phát, Việt Nhật.
-
Xi măng: Hoàng Thạch, Bỉm Sơn.
-
Gạch xây: Gạch tuynel nhà máy loại A.
-
Cửa: Nhôm kính hệ Xingfa nhập khẩu/Việt Pháp.
-
Sơn: Dulux, Jotun chính hãng.
-
Thiết bị vệ sinh: Inax, Viglacera.
So với nhà mái Thái (thường tốn kém hơn khoảng 15-20% do hệ mái phức tạp), thì nhà cấp 4 mái bằng là lựa chọn kinh tế hơn hẳn, giúp bạn tiết kiệm được hàng trăm triệu đồng để đầu tư vào nội thất xịn sò.
Lưu ý: Đây chỉ là mức chi phí ước tính. Để nhận được báo giá chính xác và chi tiết nhất cho công trình của bạn, vui lòng liên hệ trực tiếp với chúng tôi. Hoặc để tìm hiểu rõ hơn về tiêu chuẩn vật liệu xây dựng và các yếu tố ảnh hưởng đến chi phí, bạn có thể tham khảo thêm tại các bài viết chuyên sâu về vật liệu xây dựng cao cấp trên Wikipedia.

7. Góc Chuyên Gia: Làm sao để nhà mái bằng đẹp mãi với thời gian?
Là người làm nghề lâu năm, tôi khuyên bạn 3 điều khi xây nhà cấp 4 mái bằng:
-
Đừng tiếc tiền cho chống thấm sàn mái: Đây là “tử huyệt” của nhà mái bằng. Hãy yêu cầu nhà thầu xử lý kỹ các cổ ống thoát nước và chân tường trên mái.
-
Tạo độ dốc thoát nước tốt: Dù gọi là “mái bằng” nhưng thực tế mái cần có độ dốc từ 2-5% về phía lỗ thoát nước. Đọng nước chính là nguyên nhân gây thấm dột và rêu mốc.
-
Biến sân thượng thành “khu vườn trên mây”: Đừng để phí phần mái. Bạn có thể thiết kế thang lên mái, đặt một bộ bàn ghế nhỏ, trồng vài chậu cây. Đó sẽ là nơi “chill” lý tưởng mỗi tối cho cả gia đình.

Lời kết
Ngôi nhà cấp 4 mái bằng của gia đình anh Đình tại Hà Nội là minh chứng rõ nét cho việc: Không cần quá nhiều tiền, không cần đất quá rộng, chỉ cần một thiết kế thông minh và có tâm, bạn hoàn toàn có thể sở hữu một không gian sống lý tưởng.
Nếu bạn đang ấp ủ dự định xây một ngôi nhà cấp 4 mái bằng 4 phòng ngủ tiện nghi, hiện đại và tiết kiệm, hãy để Techhome hiện thực hóa giấc mơ đó cùng bạn. Đừng ngần ngại liên hệ với chúng tôi để được tư vấn miễn phí và nhận báo giá chi tiết nhất.
CÔNG TY CỔ PHẦN KIẾN TRÚC VÀ XÂY DỰNG TECHHOME
-
Địa chỉ: B1.1 LK18 Ô 3 – KĐT Thanh Hà – Cienco 5 – Thanh Oai- Hà Nội.
-
Hotline: 0364.04.2222 – 0387.60.3333.
-
Website: nhadeptechhome.vn
Techhome – Kiến tạo không gian, vun đắp hạnh phúc.
