Có bao giờ bạn tự hỏi, điều gì tạo nên hạnh phúc trong một ngôi nhà? Với đội ngũ Techhome, đó không phải là những phù điêu cầu kỳ hay sự xa hoa choáng ngợp. Hạnh phúc đôi khi chỉ là sự vừa vặn – vừa vặn trong thẩm mỹ và thấu hiểu trong công năng.
Hôm nay, Tôi muốn kể cho mọi người nghe về câu chuyện xây tổ ấm của anh Nhật tại Hải Phòng. Một dự án mà khi cầm trên tay bản hồ sơ thiết kế, cả team Techhome đều gật gù: “Đây chính xác là mẫu nhà 2 tầng hiện đại mà mọi gia đình trẻ đều đang tìm kiếm.”
Nếu bạn đang sở hữu một mảnh đất rộng và yêu thích lối sống phóng khoáng, tiện nghi, hãy cùng Techhome đi dạo một vòng quanh ngôi nhà đặc biệt này nhé.
1. Câu chuyện thiết kế: Từ mong muốn bình dị đến kiệt tác kiến trúc
Anh Nhật tìm đến Techhome vào một ngày cuối năm. Là một người con của đất Cảng, anh sở hữu tính cách phóng khoáng, thẳng thắn nhưng cũng cực kỳ tỉ mỉ. Anh chia sẻ với Techhome: “Anh có mảnh đất hơn 10m mặt tiền, anh muốn xây một ngôi nhà nhìn vào phải thấy sáng, thấy thoáng. Đừng làm rườm rà, anh thích sự đơn giản nhưng phải ‘chất’. Quan trọng nhất là công năng bên trong phải rộng rãi để các con chạy nhảy.”
Từ đề bài đó, các kiến trúc sư (KTS) của Techhome đã chốt phương án kiến trúc mái bằng, tận dụng tối đa lợi thế mặt tiền rộng để tạo nên một mẫu nhà 2 tầng hiện đại độc bản.
Ngôi nhà không chỉ là nơi che mưa che nắng, nó là tuyên ngôn về gu thẩm mỹ của gia chủ. Với tổng diện tích thiết kế lên tới 257m2, ngôi nhà của anh Nhật thực sự là một bài toán thú vị về cách bố trí không gian mà Techhome sẽ bật mí chi tiết ở phần sau.

2. Vẻ đẹp ngoại thất: Sự lên ngôi của kiến trúc hình khối
Nhìn vào phối cảnh mặt tiền, bạn sẽ thấy mẫu nhà 2 tầng hiện đại này toát lên vẻ đẹp của sự vững chãi và thanh lịch.
-
Ngôn ngữ thiết kế tối giản:
Thay vì những chi tiết uốn lượn của tân cổ điển, ngôi nhà sử dụng các hình khối vuông vức, khỏe khoắn. Hệ mái bằng đua rộng không chỉ giúp che chắn mưa nắng mà còn tạo nên tỉ lệ cân đối cho công trình. Màu trắng sứ chủ đạo kết hợp với đá ốp tường vân mây tạo nên sự tương phản nhẹ nhàng nhưng sang trọng.
-
Vật liệu của tương lai:
Điểm nhấn đắt giá nhất của mẫu nhà 2 tầng hiện đại này chính là hệ thống cửa kính lớn kịch trần. Techhome sử dụng kính cường lực kết hợp nhôm hệ Xingfa cao cấp, giúp thu trọn ánh sáng tự nhiên vào nhà. Lan can ban công cũng được làm bằng kính, giúp xóa nhòa ranh giới giữa trong và ngoài, khiến ngôi nhà như rộng hơn so với thực tế.
-
Cây xanh – “Lá phổi” của ngôi nhà:
Dù là nhà phố hay biệt thự, mảng xanh là điều không thể thiếu. KTS đã khéo léo bố trí các bồn cây tại ban công tầng 2 và khu vực sân vườn bao quanh. Màu xanh của lá cây làm mềm đi những đường nét bê tông cốt thép, mang lại sinh khí cho toàn bộ mẫu nhà 2 tầng hiện đại.

3. “Mổ xẻ” công năng: Khi diện tích lớn được nuông chiều đúng cách
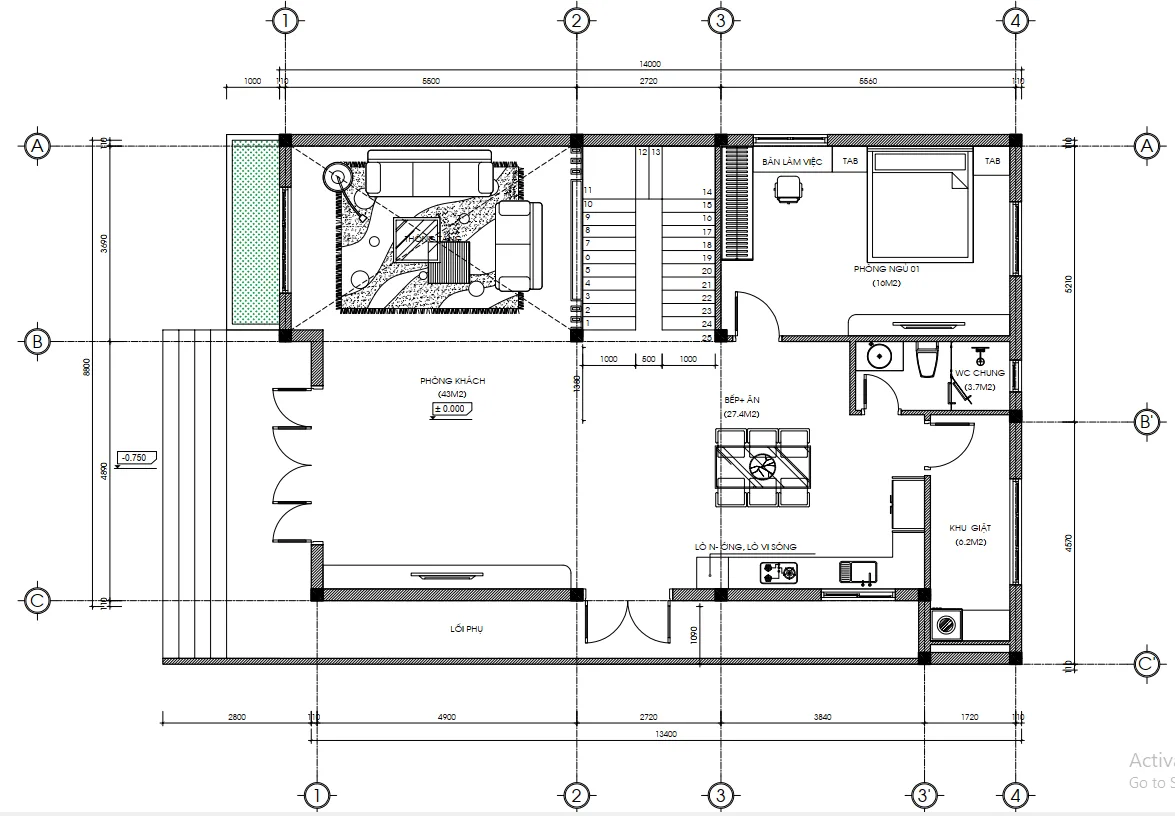
Đây là phần Techhome thích nhất ở ngôi nhà này. Với diện tích sàn tầng 1 là 137m2 và tầng 2 là 120m2, anh Nhật đã “chơi lớn” khi dành những khoảng không gian cực đại cho sinh hoạt chung.
Tầng 1: Sự kết nối không giới hạn
Bước qua sảnh chính, bạn sẽ choáng ngợp bởi phòng khách rộng tới 43m2. Vâng, bạn không nghe nhầm đâu, 43m2 cho một phòng khách! Trong các mẫu nhà 2 tầng hiện đại thông thường, phòng khách chỉ khoảng 20-25m2. Nhưng với anh Nhật, đây là nơi cả đại gia đình sum vầy, nơi những người bạn Hải Phòng ghé chơi, nên nó phải thật rộng, thật sang.
-
Bếp ăn (27.4m2): Nằm liên thông nhưng vẫn giữ được sự riêng tư nhất định. Khu vực này đủ chỗ cho một bàn ăn lớn 8-10 người.
-
Phòng ngủ 01 (16m2): Dành cho ông bà hoặc khách, được bố trí ngay tầng 1 để tiện đi lại, hạn chế leo cầu thang.
-
Khu vực phụ trợ: Gồm WC chung (3.7m2) và khu giặt (6.2m2) được đẩy về phía sau, đảm bảo thẩm mỹ và vệ sinh.

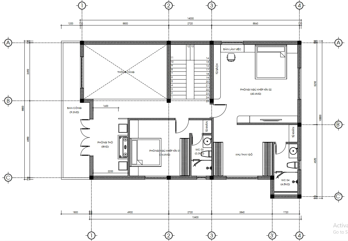
Tầng 2: Đỉnh cao của sự hưởng thụ
Nếu tầng 1 là sự kết nối, thì tầng 2 là không gian riêng tư đẳng cấp resort 5 sao.
-
Phòng ngủ Master (40.6m2): Đây là “trái tim” của tầng 2. Với diện tích 40.6m2, căn phòng này rộng hơn cả một căn hộ chung cư mini. Nó bao gồm không gian ngủ, khu thay đồ và nhà vệ sinh khép kín (4.5m2). Sống trong một mẫu nhà 2 tầng hiện đại với phòng ngủ Master như thế này, mỗi ngày thức dậy đều là một ngày tràn đầy năng lượng.
-
Phòng ngủ con (14.6m2): Có WC khép kín (3.3m2), đảm bảo sự tự lập và riêng tư cho thành viên nhỏ trong gia đình.
-
Phòng thờ (8m2): Đặt ở vị trí trang trọng, hướng ra ban công (9.3m2), đảm bảo yếu tố tâm linh và phong thủy.
-
Khoảng thông tầng: Giúp đối lưu không khí, gió trời luân chuyển từ tầng 1 lên mái, làm mát toàn bộ ngôi nhà một cách tự nhiên.

4. Tại sao Mẫu Nhà 2 Tầng Hiện Đại Mái Bằng lại là xu hướng 2026?
Nhiều khách hàng hỏi Tôi: “Xây mái bằng có sợ nóng không em?”. Câu trả lời là: Với công nghệ xây dựng hiện nay, mẫu nhà 2 tầng hiện đại mái bằng là lựa chọn tối ưu nhất về chi phí và công năng.
-
Tiết kiệm chi phí: So với mái Thái hay mái Nhật cần hệ kèo, ngói phức tạp, mái bằng giúp gia chủ tiết kiệm từ 10-15% chi phí xây dựng phần thô.
-
Dễ dàng nâng cấp: Nếu sau này anh Nhật muốn lên thêm tầng 3, việc cải tạo trên nền mái bằng sẽ đơn giản và ít tốn kém hơn rất nhiều.
-
Tận dụng sân thượng: Mái bằng tạo ra một khoảng sân thượng tuyệt vời. Bạn có thể biến nó thành vườn rau sạch, khu BBQ cuối tuần hoặc đơn giản là nơi đặt bồn nước, thái dương năng gọn gàng.

5. Báo giá thiết kế và thi công Mẫu Nhà 2 Tầng Hiện Đại (Cập nhật 2026)
Techhome hiểu rằng, bên cạnh vẻ đẹp, chi phí là vấn đề các bạn quan tâm hàng đầu. Techhome xin gửi đến bạn bảng ước tính chi phí để xây dựng một mẫu nhà 2 tầng hiện đại tương tự như nhà anh Nhật.
(Lưu ý: Đơn giá mang tính chất tham khảo tại thời điểm viết bài và có thể thay đổi tùy thuộc vào vị trí, thời điểm và vật liệu gia chủ lựa chọn).
| Hạng mục | Đơn giá tham khảo | Diễn giải chi tiết |
| Thiết kế kiến trúc | 108.000 VNĐ/m2 | Bao gồm bản vẽ 3D, kết cấu, điện nước, bóc tách vật tư. |
| Thi công phần thô | 3.800.000 – 4.200.000 VNĐ/m2 | Bao gồm sắt thép, xi măng, gạch, nhân công xây trát, đổ bê tông. |
| Thi công trọn gói | 6.500.000 – 7.500.000 VNĐ/m2 | Chìa khóa trao tay (Gồm cả ốp lát, sơn bả, thiết bị vệ sinh, cửa…). |
Ví dụ, với mẫu nhà 2 tầng hiện đại của anh Nhật tổng diện tích 257m2, chi phí xây dựng hoàn thiện mức khá sẽ rơi vào khoảng 1.7 tỷ – 1.9 tỷ đồng. Một con số cực kỳ hợp lý cho một cơ ngơi hoành tráng như vậy đúng không nào?
Lưu ý: Đây chỉ là mức chi phí ước tính. Để nhận được báo giá chính xác và chi tiết nhất cho công trình của bạn, vui lòng liên hệ trực tiếp với chúng tôi. Hoặc để tìm hiểu rõ hơn về tiêu chuẩn vật liệu xây dựng và các yếu tố ảnh hưởng đến chi phí, bạn có thể tham khảo thêm tại các bài viết chuyên sâu về vật liệu xây dựng cao cấp trên Wikipedia.

6. Những lưu ý “sống còn” khi xây nhà hiện đại tại Hải Phòng
Là người làm nghề, Tôi muốn chia sẻ thêm vài kinh nghiệm thực tế khi thi công mẫu nhà 2 tầng hiện đại tại khu vực ven biển hoặc miền Bắc nói chung:
-
Chống thấm là ưu tiên số 1: Với mái bằng, quy trình chống thấm phải thực hiện nghiêm ngặt (dùng Sika, màng khò nóng…). Techhome luôn bảo hành chống thấm dài hạn cho khách hàng.
-
Lựa chọn cửa nhôm kính: Hải Phòng có gió biển và độ ẩm cao. Hãy chọn nhôm Xingfa nhập khẩu chính hãng hoặc các dòng cao cấp có sơn tĩnh điện tốt để tránh ăn mòn muối biển.
-
Hệ thống điện thông minh: Một mẫu nhà 2 tầng hiện đại sẽ hoàn hảo hơn nếu tích hợp các thiết bị Smarthome cơ bản (đèn cảm ứng, rèm tự động).

7. Vì sao anh Nhật và hàng trăm khách hàng chọn Techhome?
Giữa “ma trận” các đơn vị thiết kế, tại sao anh Nhật lại chọn Techhome để gửi gắm mẫu nhà 2 tầng hiện đại tâm huyết của mình?
-
Minh bạch pháp lý: Hợp đồng thiết kế rõ ràng, cam kết không phát sinh chi phí vô lý.
-
Tôn trọng khách hàng: Chúng tôi lắng nghe từng ý tưởng nhỏ nhất của bạn, từ việc đặt cái bếp ở đâu cho hợp phong thủy đến việc chọn màu sơn nào cho hợp mệnh.
-
Đồng hành trọn đời: Techhome không chỉ vẽ xong là hết trách nhiệm. Chúng tôi hỗ trợ tư vấn kỹ thuật xây dựng 24/7 qua hotline 0364.04.2222.
8. Góc chia sẻ: Đừng xây nhà để “khoe”, hãy xây để “sống”
Cuối cùng, Tôi muốn nhắn nhủ rằng: Một mẫu nhà 2 tầng hiện đại đẹp nhất không phải là mẫu nhà đắt tiền nhất, mà là ngôi nhà phù hợp nhất với lối sống của gia đình bạn.
Nhìn vào bản vẽ nhà anh Nhật, Tôi thấy được sự yêu thương anh dành cho vợ con qua phòng ngủ Master rộng lớn, sự hiếu kính với tổ tiên qua phòng thờ trang nghiêm, và sự hiếu khách của người Hải Phòng qua phòng khách thênh thang. Đó mới là giá trị cốt lõi của kiến trúc.
Nếu bạn cũng đang ấp ủ giấc mơ về một mẫu nhà 2 tầng hiện đại, tiện nghi và ấm áp như thế, đừng ngần ngại chia sẻ với Techhome.

Kết luận
Công trình nhà anh Nhật tại Hải Phòng là minh chứng rõ nét cho xu hướng thiết kế mẫu nhà 2 tầng hiện đại: Đơn giản nhưng không đơn điệu, sang trọng nhưng đầy thực tế.
Cảm ơn bạn đã dành thời gian đọc bài viết này. Hy vọng những chia sẻ chân thật của Tôi đã giúp bạn có thêm ý tưởng cho ngôi nhà tương lai của mình.
Bạn đã sẵn sàng sở hữu một bản thiết kế “đo ni đóng giày” cho riêng mình chưa?
👉 Hành động ngay: Hãy để lại bình luận bên dưới hoặc liên hệ trực tiếp với Techhome qua Hotline/Zalo: 0364.04.2222 – 0387.60.3333 để được tư vấn phong thủy và lên phương án mặt bằng MIỄN PHÍ ngay hôm nay nhé! Techhome luôn sẵn sàng lắng nghe bạn.
