Mẫu nhà 2 tầng đẹp tại Thanh Hóa (Chị Nga): Kiến trúc bo cong dẫn đầu xu hướng 2026

Chắc hẳn ai trong chúng ta, sau những bộn bề lo toan của cuộc sống “cơm áo gạo tiền”, đều mong muốn được trở về một nơi chốn bình yên. Nơi đó không cần phải là lâu đài nguy nga, nhưng nhất định phải là một tổ ấm đúng nghĩa. Hôm nay, Kiến Trúc Techhome xin mời bạn ghé thăm một công trình tâm huyết mà chúng tôi vừa hoàn thiện hồ sơ thiết kế cho gia đình chị Nga tại Thanh Hóa. Đây không chỉ là một ngôi nhà, mà là một mẫu nhà 2 tầng đẹp đến nao lòng, nơi từng đường nét kiến trúc đều kể câu chuyện về sự hiện đại và tiện nghi.

1. Cơ duyên đến với “siêu phẩm” nhà phố tại Thanh Hóa

Câu chuyện bắt đầu vào một buổi chiều, chị Nga liên hệ với Techhome qua Hotline 0364042222. Chị chia sẻ rằng mình đang sở hữu một mảnh đất tại Thanh Hóa với mặt tiền 6m, chiều sâu 20m. Chị muốn xây dựng một không gian sống cho gia đình, không cần quá cầu kỳ nhưng phải thoáng đãng, trẻ trung và đặc biệt là không được “lỗi mốt” sau vài năm sử dụng.

Sau khi lắng nghe và khảo sát, đội ngũ KTS Techhome hiểu rằng, bài toán đặt ra không chỉ là vẽ nên một ngôi nhà, mà là tạo ra một mẫu nhà 2 tầng đẹp hoàn hảo, tối ưu hóa diện tích 6×15.3m để đảm bảo công năng sử dụng cho cả gia đình mà vẫn giữ được sự thông thoáng của giếng trời và sân vườn.

Và bản thiết kế mã số 567 đã ra đời như thế, là sự kết hợp ăn ý giữa mong muốn của gia chủ và tư duy sáng tạo của Kiến trúc sư.

mẫu nhà 2 tầng đẹp

2. “Mổ xẻ” công năng: Tiện nghi đến từng centimet

Vẻ đẹp bên ngoài có thể thu hút ánh nhìn, nhưng công năng bên trong mới là thứ giữ chân gia chủ. Dựa trên hồ sơ thiết kế kỹ thuật thi công, hãy cùng Techhome khám phá cách bố trí mặt bằng công năng thông minh của ngôi nhà này.

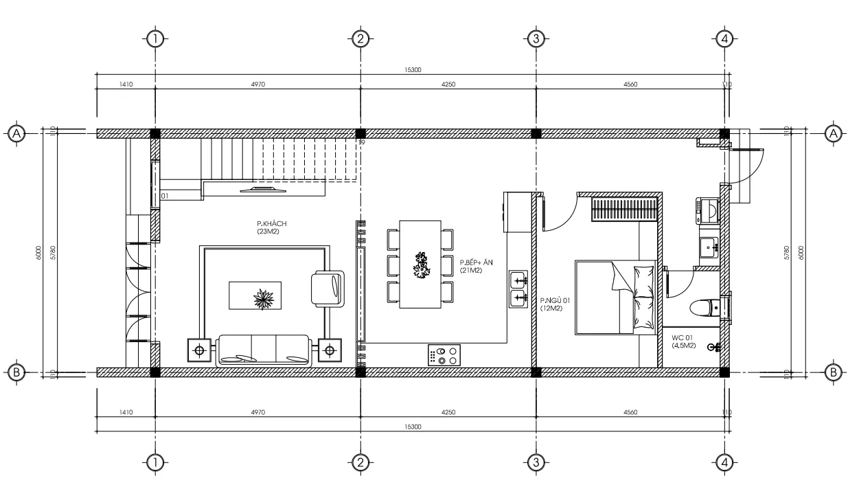
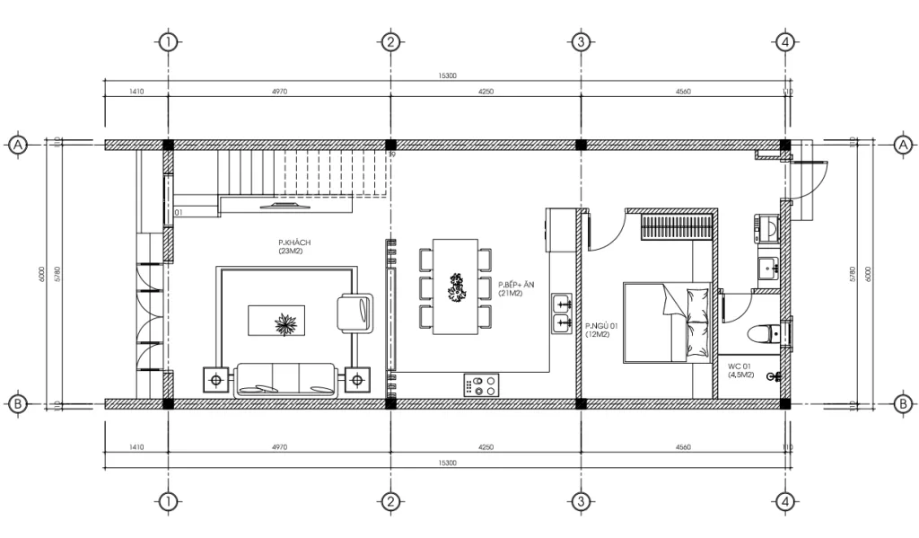
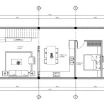
2.1. Tầng 1: Không gian kết nối (Diện tích xây dựng ~90m2)

Bước qua sảnh chính rộng rãi, chúng ta sẽ tiến vào phòng khách với diện tích 23m2. Đây là “trái tim” của ngôi nhà, nơi thể hiện gu thẩm mỹ của chị Nga. Với chiều ngang nhà lên tới 6m, phòng khách cực kỳ rộng rãi, dễ dàng bố trí bộ sofa lớn và kệ tivi hiện đại mà vẫn còn lối đi thoải mái.

Cạnh bên phòng khách là khu vực cầu thang, tận dụng gầm cầu thang để làm kệ tivi, không để phí diện tích.

Ngăn cách vách trang trí là Phòng Bếp + Ăn rộng 21m2. Thiết kế liên thông khách – bếp là giải pháp tối ưu cho mẫu nhà 2 tầng đẹp dạng ống, giúp không gian không bị chia cắt vụn vặt. Tại đây, chị Nga có thể vừa nấu nướng vừa trò chuyện với chồng con đang xem tivi ở phòng khách.

Cuối nhà là một phòng ngủ diện tích 12m2 dành cho ông bà hoặc gia chủ, đảm bảo sự riêng tư và yên tĩnh. Kế bên là 1 nhà vệ sinh chung tiện lợi. Một khoảng sân sau nhỏ được chừa lại để làm khu vực sơ chế ướt hoặc phơi đồ, đảm bảo sự thông thoáng đối lưu gió từ cửa chính ra sau nhà.

mặt bằng tầng 1 mẫu nhà 2 tầng đẹp

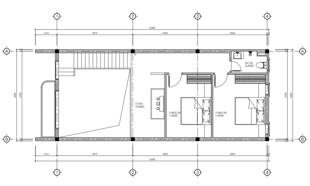
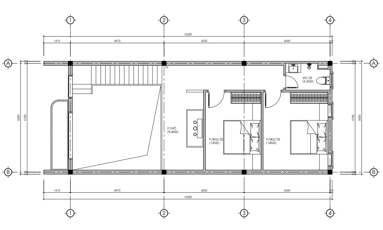
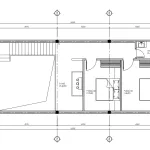
2.2. Tầng 2: Chốn nghỉ ngơi riêng tư

Di chuyển theo lối cầu thang được ốp đá Granite sang trọng, chúng ta lên đến tầng 2 – không gian riêng tư của gia đình nhỏ.

Tại đây, Techhome bố trí 02 phòng ngủ.

  • Phòng ngủ 02: Diện tích 12m2.

  • Phòng ngủ 03: Diện tích 14m2 có cửa sổ lớn hướng ra sân sau thoáng đãng.

Phòng thờ diện tích 9.4m2 được đặt ở vị trí trang trọng nhất phía trước nhà, hướng ra ban công. Theo phong thủy, đây là vị trí “tọa cát hướng cát”, mang lại tài lộc và bình an cho gia chủ.

mặt bằng tầng 2 mẫu nhà 2 tầng đẹp

3. Phân tích vẻ đẹp ngoại thất: Sự quyến rũ của những đường cong

Khi nhìn vào phối cảnh 3D mặt tiền, điều đầu tiên khiến bất kỳ ai đi ngang qua cũng phải ngoái nhìn chính là ngôn ngữ thiết kế “Soft Modern” (Hiện đại mềm mại). Khác với những khối bê tông vuông vức, cứng nhắc thường thấy ở các ngôi nhà ống, mẫu nhà nhà 2 tầng đẹp của chị Nga sở hữu những đường bo cong cực kỳ tinh tế ở ban công và mái.

3.1. Màu sắc và vật liệu – Bản giao hưởng của sự thanh lịch

Ngôi nhà khoác lên mình “chiếc áo” màu trắng sứ chủ đạo. Đây là gam màu “kinh điển” trong thiết kế hiện đại, giúp ngôi nhà trông rộng hơn, sáng hơn và nổi bật giữa nền trời xanh. Để tránh sự đơn điệu, Techhome đã khéo léo kết hợp với các mảng trần ốp gỗ nhựa màu nâu ấm áp tại ban công tầng 2 và sảnh chính tầng 1.

Sự tương phản nhẹ nhàng giữa màu trắng của tường, màu nâu của gỗ và màu đen của khung nhôm kính Xingfa tạo nên một tổng thể hài hòa. Đây chính là bí quyết để tạo nên một mẫu nhà 2 tầng đẹp, sang trọng mà không cần phô trương quá nhiều chi tiết rườm rà.

3.2. Hệ cửa vòm và kính lớn – Đón trọn ánh sáng tự nhiên

Điểm nhấn đắt giá nhất của mặt tiền chính là hệ cửa sổ và cửa đi được thiết kế dạng vòm . Chi tiết này thường thấy trong các biệt thự tân cổ điển, nhưng khi được Techhome cách điệu và đưa vào kiến trúc hiện đại, nó lại mang đến một vẻ đẹp lạ mắt, vừa hoài cổ vừa tân thời.

Toàn bộ hệ thống cửa đều sử dụng kính cường lực cao cấp. Điều này không chỉ giúp mặt tiền trông “sang” hơn mà còn giải quyết triệt để bài toán thiếu sáng của nhà phố. Từ bên trong, gia chủ có thể phóng tầm mắt ngắm nhìn đường phố, tận hưởng ánh nắng ban mai mà không lo tiếng ồn hay khói bụi. Một mẫu nhà 2 tầng đẹp đúng nghĩa là phải đẹp từ hình thức bên ngoài đến cảm nhận bên trong.

mẫu nhà 2 tầng đẹp

4. Tại sao “Mẫu nhà 2 tầng đẹp” mái bằng lại được ưa chuộng tại Thanh Hóa?

Trong quá trình tư vấn cho chị Nga cũng như nhiều khách hàng khác tại Thanh Hóa, chúng tôi nhận thấy xu hướng mẫu nhà 2 tầng đẹp mái bằng đang lên ngôi mạnh mẽ. Vì sao vậy?

Thứ nhất, tiết kiệm chi phí. So với mái Thái hay mái Nhật cầu kỳ, mái bằng có kết cấu bê tông cốt thép đơn giản hơn, giúp gia chủ tiết kiệm được một khoản tiền kha khá để đầu tư vào nội thất.

Thứ hai, tận dụng không gian. Như bạn thấy trong bản vẽ mặt bằng tầng mái, phần mái bằng có thể được tận dụng để đặt téc nước, thái dương năng, hoặc sau này gia đình chị Nga có điều kiện có thể dễ dàng cải tạo làm sân thượng, vườn rau sạch hay khu vực BBQ ngoài trời.

Thứ ba, bền vững với thời tiết. Thanh Hóa là vùng đất thường xuyên chịu ảnh hưởng của bão gió. Kết cấu mái bằng kiên cố, độ dốc thoát nước được tính toán kỹ lưỡng (đánh dốc 2% về phễu thu) giúp ngôi nhà vững chãi trước mọi biến động của thiên nhiên.

mẫu nhà 2 tầng đẹp

5. Báo giá thiết kế và thi công mẫu nhà 2 tầng đẹp (Tham khảo)

Đây chắc chắn là phần mà bạn đọc quan tâm nhất. Để sở hữu một mẫu nhà 2 tầng đẹp như của gia đình chị Nga, chi phí sẽ nằm ở khoảng nào? Techhome xin đưa ra bảng dự toán chi tiết dựa trên đơn giá thị trường năm 2026 (Lưu ý: Giá có thể thay đổi tùy thời điểm và vật liệu gia chủ chọn).

5.1. Chi phí thiết kế kiến trúc

Hiện nay, đơn giá thiết kế cho mẫu nhà 2 tầng đẹp phong cách hiện đại là 108.000đ/m2. Với tổng diện tích sàn khoảng 180m2 (2 tầng), chi phí thiết kế trọn bộ hồ sơ (Kiến trúc, Kết cấu, Điện nước, 3D) sẽ rơi vào khoảng 20 triệu đồng.

5.2. Chi phí thi công xây dựng

  • Gói xây thô và nhân công hoàn thiện: Đơn giá khoảng 3.800.000đ – 4.200.000đ/m2.

    • Tổng chi phí xây thô: ~700 – 800 triệu đồng.

  • Gói xây nhà trọn gói (Chìa khóa trao tay): Đơn giá từ 6.000.000đ – 7.000.000đ/m2 (Tùy mức độ vật liệu Khá hay Tốt).

    • Tổng chi phí hoàn thiện: ~1.1 tỷ – 1.3 tỷ đồng.

Với mức đầu tư khoảng hơn 1 tỷ đồng, bạn đã có thể sở hữu một mẫu nhà 2 tầng đẹp, đầy đủ tiện nghi, nội thất cơ bản, chỉ việc xách vali vào ở. Đây là mức giá cực kỳ hợp lý cho một ngôi nhà phố 2 tầng tại khu vực Thanh Hóa.

Lưu ý: Đây chỉ là mức chi phí ước tính. Để nhận được báo giá chính xác và chi tiết nhất cho công trình của bạn, vui lòng liên hệ trực tiếp với chúng tôi. Hoặc để tìm hiểu rõ hơn về tiêu chuẩn vật liệu xây dựng và các yếu tố ảnh hưởng đến chi phí, bạn có thể tham khảo thêm tại các bài viết chuyên sâu về vật liệu xây dựng cao cấp trên Wikipedia.

mẫu nhà 2 tầng đẹp

6. Bí kíp để có mẫu nhà 2 tầng đẹp và tiết kiệm

Là những người làm nghề lâu năm, Techhome muốn chia sẻ với bạn những kinh nghiệm “xương máu” để quá trình xây nhà diễn ra suôn sẻ:

  1. Đừng tiếc tiền thiết kế: Nhiều người nghĩ rằng “lên mạng tìm mẫu nhà 2 tầng đẹp rồi đưa thợ xây là được”. Sai lầm! Mỗi mảnh đất có địa chất khác nhau, mỗi gia đình có nhu cầu khác nhau. Một bộ hồ sơ thiết kế chi tiết như của chị Nga sẽ giúp bạn kiểm soát chính xác khối lượng sắt thép, gạch đá, tránh phát sinh chi phí không đáng có.

  2. Lựa chọn thời điểm xây dựng: Xây nhà vào đầu năm (tháng 2-3 âm lịch) thường thuận lợi về thời tiết và nhân công hơn so với dịp cuối năm.

  3. Tối giản nội thất: Một mẫu nhà 2 tầng đẹp hiện đại không cần quá nhiều đồ đạc. Hãy tập trung vào những món đồ đa năng, thông minh để không gian rộng thoáng hơn.

  4. Chọn nhà thầu uy tín: Hãy nhìn vào những công trình thực tế họ đã làm, xem cách họ làm hồ sơ (như bộ hồ sơ chi tiết Techhome cung cấp cho chị Nga gồm hàng chục bản vẽ từ mặt đứng đến chi tiết vệ sinh) để đánh giá năng lực.

mẫu nhà 2 tầng đẹp

7. Quy trình làm việc tại Kiến Trúc Techhome

Để ra đời được một mẫu nhà 2 tầng đẹp và chất lượng, Techhome áp dụng quy trình làm việc 6 bước chuyên nghiệp:

  1. Tiếp nhận thông tin: Lắng nghe nhu cầu, khảo sát hiện trạng đất thực tế.

  2. Tư vấn phương án: Lên ý tưởng mặt bằng công năng ( 2D) và ý tưởng mặt tiền.

  3. Ký hợp đồng thiết kế: Thống nhất phương án và chi phí.

  4. Triển khai bản vẽ 3D: Dựng phối cảnh ngoại thất, nội thất chân thực.

  5. Triển khai hồ sơ kỹ thuật: Bản vẽ thi công chi tiết (Kiến trúc, Kết cấu, Điện, Nước).

  6. Bàn giao & Giám sát: Bàn giao hồ sơ và hỗ trợ giám sát tác giả trong quá trình thi công.

mẫu nhà 2 tầng đẹp

Lời kết

Ngôi nhà của chị Nga tại Thanh Hóa là minh chứng rõ nét cho việc: Không cần đất quá rộng, không cần chi phí “khủng”, bạn vẫn có thể sở hữu một mẫu nhà 2 tầng đẹp, hiện đại và đậm chất riêng nếu tìm đúng đơn vị thiết kế có tâm và có tầm.

Nếu bạn đang tìm kiếm ý tưởng cho tổ ấm tương lai, hay đơn giản là trót yêu thích mẫu nhà 2 tầng đẹp mã số 567 này, đừng ngần ngại liên hệ với Techhome. Chúng tôi không chỉ vẽ nhà, chúng tôi vẽ nên ước mơ của bạn.

Hành trình xây dựng tổ ấm chưa bao giờ là dễ dàng, nhưng với Techhome, bạn sẽ không phải đi một mình. Hãy để chúng tôi đồng hành cùng bạn kiến tạo nên những không gian sống hạnh phúc nhất!


CÔNG TY CỔ PHẦN KIẾN TRÚC VÀ XÂY DỰNG TECHHOME

Hy vọng bài viết này sẽ giúp bạn có thêm động lực để bắt tay vào thực hiện giấc mơ về một mẫu nhà 2 tầng đẹp cho riêng mình!

Để lại một bình luận

Email của bạn sẽ không được hiển thị công khai. Các trường bắt buộc được đánh dấu *

    Vui lòng nhấn nút YÊU CẦU TƯ VẤN và đợi 1 - 2 giây đến khi thấy thông báo thành công

    YÊU CẦU TƯ VẤN