Mẫu nhà 2 tầng 1 tum hiện đại không gian xanh cực Chill – Techhome

Có bao giờ bạn mơ về một tổ ấm không quá đồ sộ, hào nhoáng nhưng lại “chất” đến từng chi tiết? Một nơi mà sau 8 tiếng mệt nhoài ở công sở, bạn chỉ muốn lao ngay về để tưới vài chậu cây trên sân thượng, hay ngả lưng trong phòng khách tràn ngập ánh sáng? Nếu đó là điều bạn đang tìm kiếm, thì mẫu nhà 2 tầng 1 tum hiện đại mã số 536 do Techhome thiết kế chính là câu trả lời hoàn hảo nhất. Không chỉ là nơi để ở, đây là nơi để “sống” đúng nghĩa. Hãy cùng Techhome “bóc tách” xem ngôi nhà này có gì mà khiến gia chủ tại Hà Nội gật đầu cái rụp nhé!


1. Tổng quan công trình: Khi sự đơn giản lên ngôi

Trong thời buổi “tấc đất tấc vàng” hiện nay, đặc biệt là tại các đô thị lớn hay vùng ven Hà Nội, việc sở hữu một lô đất rộng thênh thang là điều xa xỉ. Vì thế, xu hướng thiết kế nhà 2 tầng 1 tum hiện đại đang trở thành “vua” của các loại hình nhà ở.

Dựa trên hồ sơ thiết kế, công trình này được Techhome triển khai cho chủ đầu tư tại Hà Nội. Với kích thước xây dựng mặt tiền khoảng 7.9m và chiều sâu nhà khoảng 9m, các kiến trúc sư đã khéo léo biến hóa để ngôi nhà trông rộng hơn nhiều so với diện tích thực tế.

  • Chủ đầu tư: anh Thái

  • Địa điểm: Hà Nội

  • Đơn vị thiết kế & thi công: Công ty Cổ phần Kiến trúc và Xây dựng Techhome

  • Phong cách: Hiện đại, mái bằng, hình khối khỏe khoắn.

  • Công năng: 3 phòng ngủ, phòng khách, bếp, phòng thờ, sân chơi.

Phối cảnh mặt tiền mẫu nhà 2 tầng 1 tum hiện đại ốp đá sang trọng tại Hà Nội.
Phối cảnh mặt tiền mẫu nhà 2 tầng 1 tum hiện đại ốp đá sang trọng tại Hà Nội.

2. “Soi” cận cảnh ngoại thất: Vẻ đẹp đến từ những khối hộp

Nhìn vào phối cảnh 3D, điều đầu tiên đập vào mắt chúng ta là sự trẻ trung, năng động. Mẫu nhà 2 tầng 1 tum hiện đại này rũ bỏ hoàn toàn những chi tiết phào chỉ rườm rà của phong cách cổ điển. Thay vào đó là những đường thẳng dứt khoát, những khối hộp vuông vức xếp chồng lên nhau đầy nghệ thuật.

  • Màu sắc chủ đạo: Ngôi nhà khoác lên mình “chiếc áo” màu trắng tinh khôi kết hợp với màu xám ghi của các mảng tường trang trí và màu nâu gỗ ấm áp. Đây là cách phối màu không bao giờ lỗi mốt, tạo cảm giác sang trọng nhưng vẫn rất gần gũi.

  • Mặt tiền tầng 1: Được ốp đá marble đen vân mây cực kỳ sang chảnh. Việc ốp đá này không chỉ giúp mặt tiền luôn sạch sẽ, dễ vệ sinh mà còn tạo điểm nhấn tương phản mạnh mẽ với màu trắng của tầng trên.

  • Hệ thống cửa: Techhome sử dụng toàn bộ hệ nhôm kính xingfa cao cấp. Cửa kính lớn giúp ngôi nhà 2 tầng 1 tum hiện đại này “hứng” trọn vẹn ánh sáng tự nhiên. Bạn sẽ không cần bật đèn vào ban ngày, tiết kiệm kha khá tiền điện đấy!

  • Ban công xanh: Tại tầng 2 và tầng tum, các kiến trúc sư đã khéo léo bố trí những khoảng ban công đua ra. Lan can kính cường lực trong suốt giúp mở rộng tầm nhìn. Đây là nơi lý tưởng để gia chủ đặt vài chậu cây cảnh, tạo nên những “khoảng thở” xanh mát cho ngôi nhà.

nhà 2 tầng 1 tum hiện đại

3. Khám phá công năng: Bố trí thông minh, tối ưu diện tích

Ngoại thất đẹp là để người ngoài ngắm, còn nội thất và công năng mới là thứ phục vụ trực tiếp cho cuộc sống của bạn. Mẫu nhà 2 tầng 1 tum hiện đại này đã giải quyết bài toán diện tích cực kỳ thông minh theo bản vẽ mặt bằng kỹ thuật.

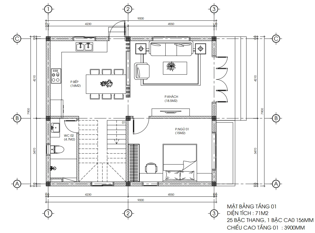
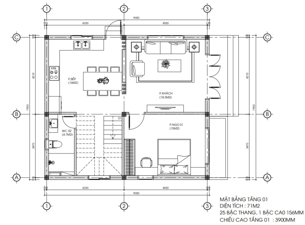
Tầng 1: Không gian kết nối yêu thương (Diện tích 71m2) Bước qua sảnh chính là phòng khách rộng 18.5m2. Không quá lớn nhưng đủ để bố trí một bộ sofa êm ái, nơi cả nhà quây quần xem TV mỗi tối.

  • Phòng bếp + Ăn: Nằm liên thông với phòng khách nhưng vẫn có sự riêng tư nhất định, diện tích 16m2. Các bà nội trợ sẽ cực thích khu bếp này vì có cửa sổ thoáng và cửa đi phụ, mùi thức ăn sẽ không bị ám vào phòng khách.

  • Phòng ngủ 01: Diện tích 15m2 dành cho ông bà hoặc người lớn tuổi, giúp hạn chế việc leo cầu thang.

  • WC chung: Diện tích 4.7m2, được bố trí kín đáo ở góc nhà, vừa tiết kiệm diện tích vừa đảm bảo thẩm mỹ.

Chiều cao tầng 1 là 3.9m, một độ cao lý tưởng giúp ngôi nhà luôn thoáng mát, không bị cảm giác “đè nén” bí bách.

Bản vẽ bố trí công năng tầng 1 mẫu nhà 2 tầng 1 tum hiện đại diện tích 7,9x9m.
Bản vẽ bố trí công năng tầng 1 mẫu nhà 2 tầng 1 tum hiện đại diện tích 7,9x9m.

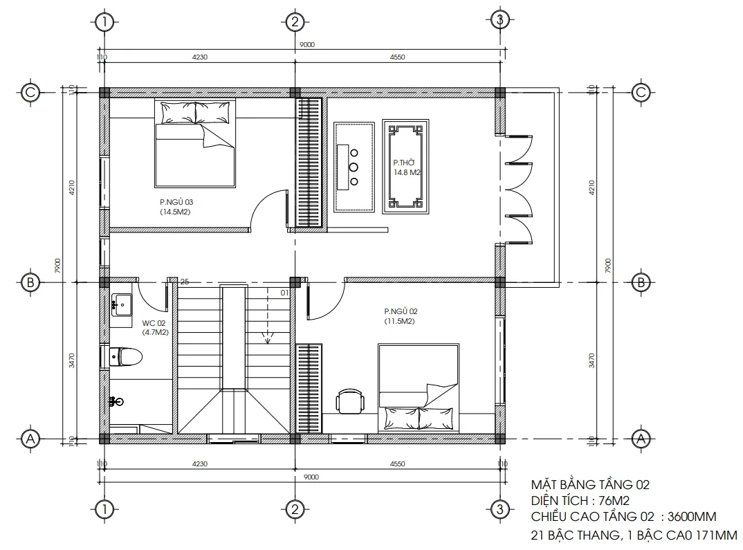
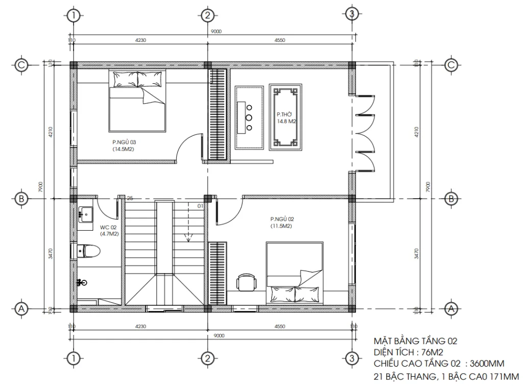
Tầng 2: Không gian nghỉ ngơi riêng tư (Diện tích 76m2) Đi lên cầu thang 21 bậc, chúng ta đến với không gian riêng tư của vợ chồng và con cái trong ngôi nhà 2 tầng 1 tum hiện đại này.

  • Phòng thờ: Một không gian trang nghiêm rộng 14.8m2  hướng ra mặt tiền. Đây là nét văn hóa tâm linh không thể thiếu của người Việt, giúp gia chủ an tâm về mặt tinh thần.

  • Phòng ngủ 02: Diện tích 11.5m2, nhỏ xinh dành cho con.

  • Phòng ngủ 03: Diện tích 14.5m2, rộng rãi hơn, có cửa sổ lớn đón gió.

  • WC chung: Đồng trục với tầng 1, thuận tiện cho việc đi đường ống nước.

Bản vẽ bố trí công năng tầng 2 mẫu nhà 2 tầng 1 tum hiện đại diện tích 7,9x9m.
Bản vẽ bố trí công năng tầng 2 mẫu nhà 2 tầng 1 tum hiện đại diện tích 7,9x9m.

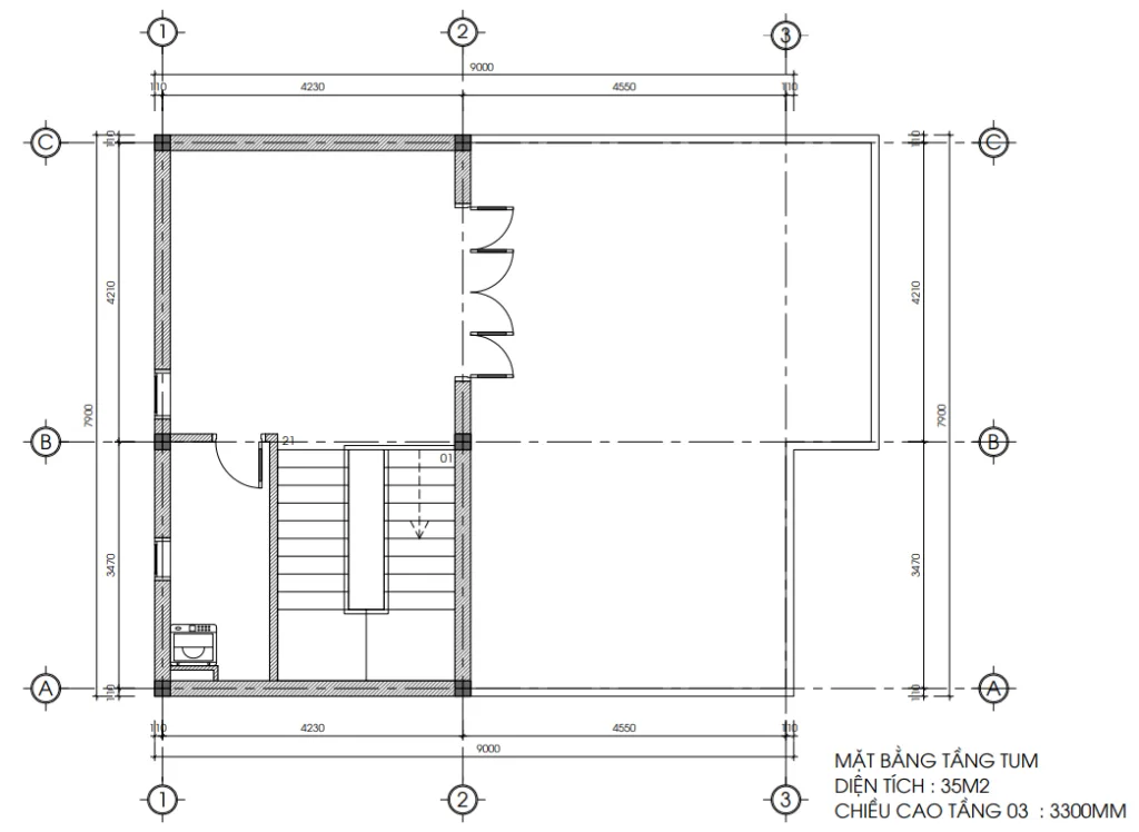
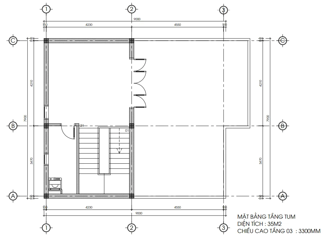
Tầng Tum: Góc “Chill” bí mật (Diện tích 35m2) 

Đây chính là điểm “ăn tiền” của mẫu nhà 2 tầng 1 tum hiện đại. Tầng tum không xây hết diện tích mà chừa lại khoảng sân thượng rộng lớn.

  • Khu vực trong nhà có thể làm kho hoặc khu giặt là.

  • Sân thượng phía trước: Đây là nơi bạn có thể tổ chức tiệc BBQ cuối tuần, trồng rau sạch, hay đơn giản là đặt một bộ bàn ghế mây ngồi uống trà ngắm trăng như trong phối cảnh 3D. Hệ thống thái dương năng và bồn nước cũng được đặt gọn gàng trên mái tum.

Bản vẽ bố trí công năng tầng tum mẫu nhà 2 tầng 1 tum hiện đại diện tích 7,9x9m.
Bản vẽ bố trí công năng tầng tum mẫu nhà 2 tầng 1 tum hiện đại diện tích 7,9x9m.

4. Vì sao “Nhà 2 tầng 1 tum hiện đại” lại gây sốt?

Tại sao không xây hẳn 3 tầng mà lại là 2 tầng 1 tum? Đây là câu hỏi Techhome nhận được rất nhiều.

Thứ nhất, về chi phí: Xây tum tiết kiệm hơn nhiều so với xây trọn vẹn 1 tầng.

Thứ hai, về thẩm mỹ: Ngôi nhà 2 tầng 1 tum hiện đại trông thanh thoát, cao ráo hơn nhà 2 tầng thường, nhưng không quá đồ sộ như nhà 3 tầng.

Thứ ba, về công năng: Tầng tum có tác dụng chống nóng cực tốt cho các phòng ngủ ở tầng 2. Mùa hè miền Bắc nóng như đổ lửa, lớp đệm không khí ở tầng tum sẽ giúp tầng dưới mát mẻ hơn hẳn.

nhà 2 tầng 1 tum hiện đại

5. Phong thủy – Yếu tố không thể bỏ qua

Trong bản vẽ thiết kế, Techhome luôn chú trọng đến yếu tố phong thủy Bát Trạch. Với mẫu nhà 2 tầng 1 tum hiện đại này, hướng bếp, hướng ban thờ, hướng cửa chính đều được các KTS tính toán kỹ lưỡng dựa trên tuổi của gia chủ .

Ví dụ, việc đặt bếp tọa hung hướng cát hay ban thờ tọa cát hướng cát là những nguyên tắc bất di bất dịch mà Techhome tuân thủ để mang lại tài lộc, bình an cho gia đình bạn.

Tổng thể mẫu nhà 2 tầng 1 tum hiện đại mái bằng có sân chơi và ban công xanh mát.
Tổng thể mẫu nhà 2 tầng 1 tum hiện đại mái bằng có sân chơi và ban công xanh mát.

6. BÁO GIÁ THAM KHẢO XÂY DỰNG NHÀ 2 TẦNG 1 TUM HIỆN ĐẠI (CẬP NHẬT 2026)

Đây chắc hẳn là phần các bạn mong chờ nhất. “Đẹp thì có đẹp, nhưng giá rổ thế nào?”. Techhome xin đưa ra bảng dự toán tham khảo để bạn dễ hình dung. Lưu ý: Giá cả có thể thay đổi tùy thuộc vào thời điểm, vị trí đất và loại vật liệu bạn chọn.

Để xây dựng trọn gói mẫu nhà 2 tầng 1 tum hiện đại (tổng diện tích sàn khoảng 180m2 – 200m2 bao gồm cả móng và mái), mức đầu tư sẽ dao động như sau:

Hạng mục Đơn giá (VNĐ/m2) Diễn giải
Thiết kế kiến trúc 108.000 Bao gồm bản vẽ 3D, kết cấu, điện nước 
Thi công phần thô 3.800.000 – 4.500.000 Bao gồm vật tư thô (sắt, thép, xi măng…) và nhân công hoàn thiện
Thi công trọn gói 6.000.000 – 7.500.000 Chìa khóa trao tay (Đã bao gồm gạch ốp lát, thiết bị vệ sinh, sơn bả, cửa…)

Ví dụ tính toán sơ bộ cho mẫu nhà này:

  • Diện tích xây dựng tạm tính: ~182m2 (Tầng 1: 71m2 + Tầng 2: 76m2 + Tum: 35m2).

  • Chi phí xây thô: ~ 182m2 x 4.500.000đ = 819.000.000 VNĐ.

  • Chi phí hoàn thiện trọn gói (mức khá): ~ 182m2 x 7.500.000đ = 1.365.000.000 VNĐ.

Chỉ với hơn 1 tỷ đồng, bạn đã sở hữu cơ ngơi nhà 2 tầng 1 tum hiện đại sang trọng, đầy đủ tiện nghi ngay tại Hà Nội. Một mức giá quá hợp lý phải không nào?

Lưu ý: Đây chỉ là mức chi phí ước tính. Để nhận được báo giá chính xác và chi tiết nhất cho công trình của bạn, vui lòng liên hệ trực tiếp với chúng tôi. Hoặc để tìm hiểu rõ hơn về tiêu chuẩn vật liệu xây dựng và các yếu tố ảnh hưởng đến chi phí, bạn có thể tham khảo thêm tại các bài viết chuyên sâu về vật liệu xây dựng cao cấp trên Wikipedia.

nhà 2 tầng 1 tum hiện đại


7. Tại sao nên chọn Techhome là người bạn đồng hành?

Giữa “ma trận” các công ty xây dựng, Techhome tự tin là điểm tựa vững chắc cho ngôi nhà mơ ước của bạn. Chúng tôi không chỉ vẽ nên những ngôi nhà 2 tầng 1 tum hiện đại, chúng tôi kiến tạo không gian sống.

  • Minh bạch: Hợp đồng rõ ràng, không phát sinh chi phí vô lý.

  • Tận tâm: Đội ngũ KTS luôn theo sát công trình từ nét vẽ đầu tiên đến viên gạch cuối cùng.

  • Chất lượng: Cam kết vật tư chính hãng, thi công đúng kỹ thuật, bảo hành dài hạn.

nhà 2 tầng 1 tum hiện đại

Lời kết

Ngôi nhà không chỉ là tài sản, nó là nơi lưu giữ những khoảnh khắc hạnh phúc nhất của đời người. Mẫu nhà 2 tầng 1 tum hiện đại mã số 536 là minh chứng cho việc bạn không cần phải là tỷ phú mới có thể sở hữu một không gian sống đẳng cấp. Sự tinh tế nằm ở cách thiết kế và bố trí công năng hợp lý.

Nếu bạn đã “phải lòng” mẫu thiết kế này, hay đang ấp ủ ý tưởng về một ngôi nhà 2 tầng 1 tum hiện đại của riêng mình, đừng ngần ngại nhấc máy lên. Chúng ta sẽ cùng nhau biến bản vẽ thành hiện thực, biến giấc mơ thành tổ ấm.

Bạn đã sẵn sàng để xây dựng tổ ấm trong mơ chưa?


👉 LIÊN HỆ NGAY VỚI TECHHOME ĐỂ NHẬN TƯ VẤN MIỄN PHÍ:

Hãy để Techhome cùng bạn kiến tạo nên những ngôi nhà 2 tầng 1 tum hiện đại vững chãi cùng thời gian!

Để lại một bình luận

Email của bạn sẽ không được hiển thị công khai. Các trường bắt buộc được đánh dấu *

    Vui lòng nhấn nút YÊU CẦU TƯ VẤN và đợi 1 - 2 giây đến khi thấy thông báo thành công

    YÊU CẦU TƯ VẤN