Tìm kiếm một mẫu nhà mái Nhật 2 tầng đẹp không khó, nhưng để tìm được một thiết kế vừa vặn với mảnh đất, hợp phong thủy và túi tiền tại khu vực Thanh Hóa thì lại là câu chuyện khác. Hôm nay, Techhome xin giới thiệu đến quý khách hàng dự án nhà ở gia đình của anh Thùy tại Hoằng Hóa. Đây là một trong những công trình trọng điểm mang mã số 671 mà đội ngũ kiến trúc sư chúng tôi tâm huyết thực hiện.
1. Tại sao anh Thùy chọn mẫu nhà mái Nhật 2 tầng đẹp cho tổ ấm của mình?
Khi tìm đến với Techhome, anh Thùy chia sẻ rằng anh muốn một ngôi nhà trông hiện đại, bền bỉ với thời gian nhưng phải có nét thanh thoát. Sau khi khảo sát thực tế khu đất tại Thanh Hóa, chúng tôi đã tư vấn mẫu nhà mái Nhật 2 tầng đẹp này vì nó giải quyết được bài toán khí hậu khắc nghiệt miền Trung và tối ưu hóa không gian sống.
Ngôi nhà không chỉ là nơi để che nắng che mưa, mà là niềm tự hào của cả gia đình. Với diện tích thiết kế tầng 1 là 96m2 và tầng 2 là 80m2 , tổng diện tích sử dụng lên tới 176m2. Đây là kích thước lý tưởng để bố trí đầy đủ công năng mà vẫn đảm bảo sự thông thoáng.

2. Phân tích kiến trúc ngoại thất: Hiện đại và sang trọng
Nhìn vào phối cảnh 3D, điểm nhấn đầu tiên chính là hệ mái Nhật màu xanh thẫm cực kỳ lịch lãm. Khác với mái Thái có độ dốc lớn, mái Nhật có độ dốc vừa phải, giúp thoát nước tốt nhưng vẫn giữ được nét bình yên, vững chãi. Đây chính là linh hồn của mẫu nhà mái Nhật 2 tầng đẹp mà nhiều chủ đầu tư hiện nay đang theo đuổi.
-
Màu sắc: Sự kết hợp giữa tông trắng chủ đạo và những mảng tường ốp gạch trang trí màu xám đá tạo nên hiệu ứng thị giác mạnh mẽ.
-
Hệ cửa: Cửa chính được làm bằng gỗ tự nhiên cao cấp với những đường chạm khắc tinh tế, mang lại cảm giác ấm cúng và bề thế ngay từ cửa vào. Hệ cửa sổ sử dụng nhôm kính xingfa giúp lấy sáng tự nhiên tối đa cho các phòng chức năng.
-
Chi tiết trang trí: Các đường chỉ phào chạy dọc theo thân nhà đơn giản nhưng sắc nét, giúp xóa tan đi sự đơn điệu của những mảng tường phẳng.

3. Bố trí công năng sử dụng – Tối ưu đến từng m2
Một mẫu nhà mái Nhật 2 tầng đẹp thực sự phải đẹp từ ngoài vào trong. Techhome đã tính toán kỹ lưỡng dựa trên nhu cầu thực tế của gia đình anh Thùy.
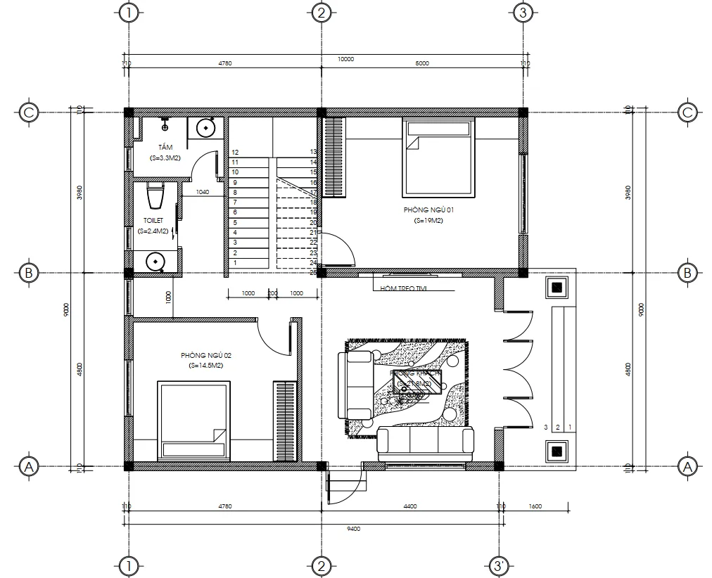
Mặt bằng tầng 1 (Diện tích 96m2)
Tầng 1 là không gian sinh hoạt chung và nghỉ ngơi cho người lớn tuổi trong gia đình:
-
Phòng khách: Nằm ngay sau sảnh chính, không gian rộng rãi, thoáng đãng.
-
Phòng ngủ 01: Diện tích lên đến 19m2, là không gian nghỉ ngơi chính với cửa sổ lớn nhìn ra sân vườn.
-
Phòng ngủ 02: Diện tích 14.5m2, phù hợp cho khách hoặc thành viên nhỏ trong nhà.
-
Khu vực phụ: Gồm nhà tắm (3.3m2) và toilet riêng biệt (2.4m2), cực kỳ tiện lợi cho sinh hoạt đông người.
-
Cầu thang: Thiết kế 23 bậc , chiều cao bậc chuẩn 169mm, đảm bảo yếu tố phong thủy “Sinh – Lão – Bệnh – Tử” rơi vào cung Sinh.

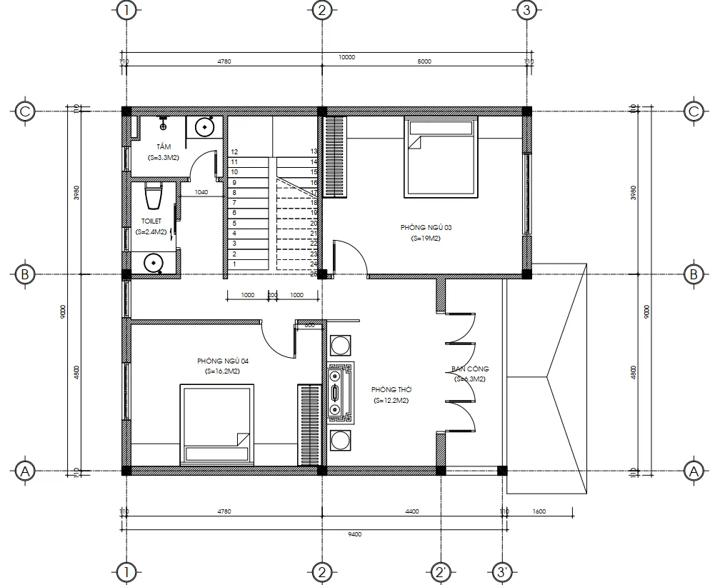
Mặt bằng tầng 2 (Diện tích 80m2)
Tầng 2 tập trung vào sự riêng tư và tâm linh:
-
Phòng thờ: Rộng 12.2m2, có hướng nhìn ra ban công chính, đón vượng khí cho ngôi nhà.
-
Phòng ngủ 04: Diện tích 16.2m2, ấm cúng và yên tĩnh.
-
Phòng ngủ 03: Diện tích 19m2 (tương đương phòng ngủ chính tầng 1).
-
Ban công: Diện tích 6.3m2, là nơi thư giãn, hóng gió mỗi buổi tối.
-
Khu vệ sinh: Tương tự tầng 1 với phòng tắm và toilet riêng biệt.

4. Tổng kết thông số kỹ thuật dự án 671
Để quý khách dễ hình dung, dưới đây là bảng thông số chi tiết của mẫu nhà mái Nhật 2 tầng đẹp tại Hoằng Hóa:
| Hạng mục | Thông tin chi tiết |
| Chủ đầu tư |
Anh Thùy Hoàng |
| Địa điểm |
Hoằng Hóa, Thanh Hóa |
| Đơn vị thiết kế |
Công ty CP Kiến trúc và Xây dựng Techhome |
| Mã công trình |
671 |
| Diện tích tầng 1 |
96m2 |
| Diện tích tầng 2 |
80m2 |
| Tổng diện tích |
176m2 |
| Số phòng ngủ |
04 Phòng ngủ |
| Chiều cao tầng 1 |
3.9m |

5. Báo giá thiết kế và thi công trọn gói tại Thanh Hóa
Chúng tôi hiểu rằng, sau khi xem xong một mẫu nhà mái Nhật 2 tầng đẹp, điều bạn quan tâm nhất chính là giá cả. Tại Techhome, chúng tôi luôn minh bạch về tài chính để gia chủ yên tâm chuẩn bị.
-
Đơn giá thiết kế kiến trúc: Từ 108.000đ/m2 .
-
Đơn giá thi công phần thô: Từ 3.800.000đ – 4.200.000đ/m2.
-
Đơn giá thi công trọn gói (Chìa khóa trao tay): Từ 6.500.000đ – 7.500.000đ/m2 (Tùy thuộc vào chủng loại vật tư hoàn thiện).
Ước tính ngân sách cho nhà anh Thùy: Với tổng diện tích 176m2, ngân sách hoàn thiện cơ bản rơi vào khoảng 1,1 tỷ đến 1.3 tỷ đồng. Đây là mức giá cực kỳ cạnh tranh cho một mẫu nhà mái Nhật 2 tầng đẹp chất lượng tại khu vực Thanh Hóa hiện nay.
Lưu ý: Đây chỉ là mức chi phí ước tính. Để nhận được báo giá chính xác và chi tiết nhất cho công trình của bạn, vui lòng liên hệ trực tiếp với chúng tôi. Hoặc để tìm hiểu rõ hơn về tiêu chuẩn vật liệu xây dựng và các yếu tố ảnh hưởng đến chi phí, bạn có thể tham khảo thêm tại các bài viết chuyên sâu về vật liệu xây dựng cao cấp trên Wikipedia.

6. Lời khuyên từ chuyên gia Techhome khi xây nhà mái Nhật
Là người trực tiếp tham gia vào hàng trăm dự án, tôi có một vài lưu ý nhỏ cho bạn khi chọn mẫu nhà mái Nhật 2 tầng đẹp:
-
Đừng bỏ qua hệ thống thoát nước mái: Mái Nhật có độ dốc thấp, nên việc thi công máng thu nước (sê-nô) phải cực kỳ chuẩn xác để tránh thấm dột về sau.
-
Lựa chọn màu sơn ngoại thất: Với khí hậu nắng nóng tại Thanh Hóa, bạn nên chọn các dòng sơn có tính năng phản xạ nhiệt và chống rêu mốc tốt.
-
Cầu thang phải đúng số bậc: Như ở nhà anh Thùy là 23 bậc, vừa khớp với chiều cao tầng vừa đảm bảo phong thủy. Tuyệt đối không làm số bậc rơi vào cung “Bệnh” hay “Tử”.
-
Cân đối diện tích phòng: Không phải cứ phòng rộng là tốt. Hãy bố trí sao cho vừa đủ kê đồ đạc và có khoảng không để luân chuyển khí.

Mọi chi tiết trong mẫu nhà mái Nhật 2 tầng đẹp mã 671 đều đã được khách hàng xem xét và chốt phương án mặt bằng định vị khu đất. Nếu bạn cũng đang ấp ủ dự định xây dựng một tổ ấm tương tự, đừng ngần ngại liên hệ với chúng tôi.
Thông tin liên hệ tư vấn kỹ thuật:
-
Hotline: 036.273.2222
-
Website: nhadeptechhome.vn
-
Địa chỉ văn phòng: B1.1 LK18 Ô 3 – KĐT Thanh Hà – Cienco 5 – Thanh Oai- Hà Nội.
Hãy để Techhome biến ước mơ về một mẫu nhà mái Nhật 2 tầng đẹp của bạn trở thành hiện thực!
