Bạn biết đấy, ở mảnh đất miền Trung đầy nắng và gió như Nghệ An, việc xây một ngôi nhà không chỉ đơn thuần là tìm chỗ che mưa che nắng. Đó phải là một tổ ấm đủ vững chãi để chống chọi với thời tiết khắc nghiệt, nhưng cũng phải đủ tinh tế để khẳng định gu thẩm mỹ của gia chủ. Hôm nay, Techhome xin giới thiệu đến bạn một “siêu phẩm” vừa được chúng tôi bàn giao hồ sơ thiết kế: Mẫu nhà cấp 4 mái Nhật của gia đình anh Tiến.
1. Cái “Duyên” Với Mẫu Nhà Cấp 4 Mái Nhật Tại Nghệ An
Anh Tiến tìm đến Techhome vào một buổi chiều cuối năm với mong muốn rất rõ ràng: “Tôi muốn một ngôi nhà vừa hiện đại, vừa ấm cúng, không quá phô trương nhưng nhìn vào phải thấy được sự bề thế.” Sau nhiều vòng thảo luận, phương án mẫu nhà cấp 4 mái Nhật đã được lựa chọn vì nó đáp ứng hoàn hảo sự cân bằng giữa tính thẩm mỹ và công năng sử dụng.
Tại sao lại là mái Nhật mà không phải mái Thái? Thực tế, mái Nhật có độ dốc vừa phải, giúp thoát nước nhanh nhưng lại tạo cảm giác bình yên, thư thái hơn so với vẻ cao vút của mái Thái. Điều này cực kỳ phù hợp với lối sống hiền hòa nhưng bền bỉ của người dân xứ Nghệ.

2. Phối Cảnh Ngoại Thất: Sự Giao Thoa Giữa Hiện Đại Và Cổ Điển
Nhìn vào những hình ảnh 3D, bạn sẽ thấy ngay sự chỉn chu trong từng đường nét. Mẫu nhà cấp 4 mái Nhật này sử dụng tông màu trắng sứ làm chủ đạo, kết hợp với hệ mái màu xanh than sang trọng. Đây là sự kết hợp màu sắc “kinh điển” không bao giờ lỗi mốt.
Hệ cột trụ bề thế và vững chãi
Điểm nhấn đầu tiên đập vào mắt chính là hệ cột vuông to bản ở sảnh chính. Các đường chỉ dọc chạy dọc thân cột mang hơi hướng kiến trúc tân cổ điển, giúp ngôi nhà trông cao ráo và uy nghi hơn hẳn. Chân tường được ốp đá tối màu, vừa tạo điểm tựa thị giác, vừa giúp bảo vệ công trình khỏi rêu mốc, bụi bẩn – một chi tiết nhỏ nhưng cực kỳ quan trọng khi xây dựng tại Việt Nam.
Cửa gỗ đại hội – Linh hồn của mặt tiền
Cánh cửa chính được làm bằng gỗ tự nhiên với các đường chạm khắc tinh xảo. Trong kiến trúc mẫu nhà cấp 4 mái Nhật, cánh cửa không chỉ là lối ra vào mà còn là bộ mặt của gia chủ. Sự ấm áp của gỗ kết hợp với sự lạnh lùng, hiện đại của kính cường lực ở các ô cửa sổ tạo nên một tổng thể hài hòa, vừa kín đáo vừa cởi mở.

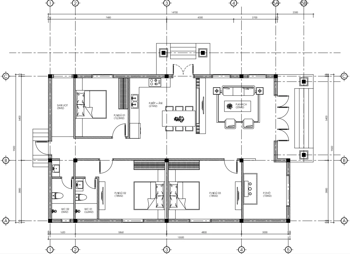
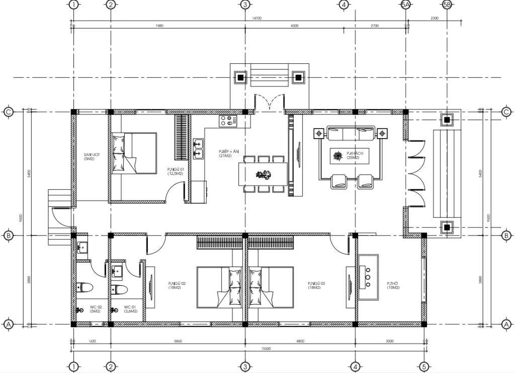
3. Phân Tích Mặt Bằng Công Năng 157m2 – Tối Ưu Đến Từng Centimet
Hồ sơ thiết kế kỹ thuật thi công của Techhome cho thấy một sự tính toán cực kỳ khoa học về diện tích. Với tổng diện tích sàn là 157 m2, ngôi nhà được chia không gian rất rõ ràng để đảm bảo sự riêng tư nhưng vẫn có tính kết nối.
Phòng khách và Phòng thờ: Nơi giữ lửa truyền thống
-
Phòng khách (25 m2): Nằm ngay sau sảnh chính, đây là không gian rộng rãi nhất để tiếp khách. Với chiều cao tầng lên tới 3900 mm (3.9 m), phòng khách cực kỳ thoáng đãng, mang lại cảm giác sang trọng ngay khi vừa bước chân vào.
-
Phòng thờ (10 m2): Được đặt ở vị trí trang trọng, tách biệt bằng vách ngăn để đảm bảo sự yên tĩnh và tôn nghiêm. Người Nghệ An rất coi trọng việc thờ cúng, vì vậy Techhome đã tư vấn cho anh Tiến hướng bàn thờ chuẩn phong thủy nhất.
Không gian bếp và sinh hoạt chung
-
Phòng bếp + ăn (21 m2): Được thiết kế theo lối mở, kết nối trực tiếp với sảnh phụ giúp việc đi chợ hay nấu nướng không bị ám mùi vào phòng khách.
-
Sân ướt (5 m2): Một chi tiết cực kỳ thực tế trong mẫu nhà cấp 4 mái Nhật này là khu vực sân ướt phía sau. Đây là nơi sơ chế thực phẩm sống hoặc giặt giũ, giúp bên trong nhà luôn sạch sẽ.
Hệ thống 03 phòng ngủ ấm cúng
Sự tiện nghi của mẫu nhà cấp 4 mái Nhật này nằm ở cách sắp xếp các phòng ngủ:
-
Phòng ngủ 01 (12.5 m2): Dành cho con cái hoặc khách, gần khu vực sân ướt thoáng mát.
-
Phòng ngủ 02 (18 m2): Không gian rộng rãi, dễ dàng bố trí nội thất. Tích hợp WC riêng biệt.
-
Phòng ngủ 03 (18 m2): đảm bảo mỗi thành viên đều có không gian riêng thoải mái.
Vệ sinh chung WC 02 (5 m2), đảm bảo phục vụ tốt cho gia đình mà không gây bất tiện.

4. Tại Sao Mẫu Nhà Cấp 4 Mái Nhật Lại Trở Thành Xu Hướng?
Nếu bạn dạo quanh các hội nhóm xây dựng, bạn sẽ thấy mẫu nhà cấp 4 mái Nhật xuất hiện với tần suất dày đặc. Có 3 lý do chính:
-
Phù hợp khí hậu: Hệ mái Nhật có khả năng chống nóng và chống thấm cực tốt. Lớp không khí đệm dưới mái giúp ngôi nhà luôn mát mẻ vào mùa hè và ấm áp vào mùa đông.
-
Chi phí hợp lý: So với những mẫu biệt thự cao tầng, mẫu nhà cấp 4 mái Nhật giúp gia chủ tiết kiệm được chi phí đổ sàn, cầu thang và nhân công thi công trên cao.
-
Vẻ đẹp trường tồn: Kiến trúc mái Nhật không quá cầu kỳ nên rất khó bị lỗi thời. Nó mang một vẻ đẹp điềm đạm, càng nhìn càng thấy sang.

5. Chi Tiết Kỹ Thuật – Cam Kết Từ Techhome
Trong hồ sơ thiết kế cho anh Tiến, Techhome không chỉ đưa ra những hình ảnh 3D bóng bẩy. Chúng tôi cung cấp chi tiết:
-
Bản vẽ kiến trúc đầy đủ từ mặt bằng, mặt đứng đến mặt cắt.
-
Hệ thống điện nước (ME) được tính toán chịu tải an toàn.
-
Kết cấu móng vững chãi, phù hợp với địa chất tại Nghệ An.
Mọi thông tin đều được kiểm duyệt chặt chẽ bởi đội ngũ kiến trúc sư và kỹ sư giàu kinh nghiệm.

6. Báo Giá Tham Khảo Cho Mẫu Nhà Cấp 4 Mái Nhật 157m2
Đây chắc chắn là phần bạn quan tâm nhất. Chi phí xây dựng mẫu nhà cấp 4 mái Nhật phụ thuộc vào nhiều yếu tố như thời điểm thi công, chủng loại vật liệu và địa điểm xây dựng.
Dưới đây là mức dự toán tham khảo cho công trình tương tự anh Tiến (157 m2):
| Hạng mục | Đơn giá ước tính (VNĐ/m2) | Thành tiền (VNĐ) |
| Thi công phần thô | 3.500.000 – 3.800.000 | ~ 550.000.000 – 600.000.000 |
| Hoàn thiện cơ bản | 2.000.000 – 2.500.000 | ~ 315.000.000 – 400.000.000 |
| Hệ mái Nhật (xà gồ + ngói) | Tính theo diện tích mái | ~ 120.000.000 – 150.000.000 |
| Chìa khóa trao tay | 6.500.000 – 7.500.000 | ~ 1.000.000.000 – 1.200.000.000 |
Lưu ý: Đây chỉ là mức chi phí ước tính. Để nhận được báo giá chính xác và chi tiết nhất cho công trình của bạn, vui lòng liên hệ trực tiếp với chúng tôi. Hoặc để tìm hiểu rõ hơn về tiêu chuẩn vật liệu xây dựng và các yếu tố ảnh hưởng đến chi phí, bạn có thể tham khảo thêm tại các bài viết chuyên sâu về vật liệu xây dựng cao cấp trên Wikipedia.

7. Cảm Nhận Của Gia Chủ Về Mẫu Nhà Cấp 4 Mái Nhật
Anh Tiến chia sẻ: “Khi nhận bản vẽ từ Techhome, tôi thực sự hài lòng. Các bạn không chỉ vẽ nhà, các bạn đang vẽ nên giấc mơ của tôi. Từng vị trí ổ cắm, hướng gió vào phòng ngủ đều được các kiến trúc sư tư vấn rất tâm huyết.”
Đó chính là động lực để Techhome tiếp tục kiến tạo nên những mẫu nhà cấp 4 mái Nhật khắp mọi miền tổ quốc. Chúng tôi tin rằng, một ngôi nhà đẹp là khởi đầu cho một cuộc sống hạnh phúc.

8. Kết Luận
Mẫu nhà cấp 4 mái Nhật 157 m2 tại Nghệ An của anh Tiến là minh chứng cho việc: Không cần quá nhiều tầng, chỉ cần một thiết kế thông minh và tinh tế là bạn đã có một không gian sống đẳng cấp. Nếu bạn cũng đang ấp ủ dự định xây dựng một tổ ấm như thế, đừng ngần ngại kết nối với chúng tôi.
Hãy ghé thăm Website của chúng tôi tại: https://nhadeptechhome.vn/ để cập nhật thêm hàng trăm mẫu nhà cấp 4 mái Nhật xu hướng mới nhất năm 2026.
