Nhà mái Nhật 2 tầng tân cổ điển: Tuyệt phẩm kiến trúc tại Phúc Thọ cho chú Mậu

Hôm nay, Techhome mời các bạn xem 1 bản vẽ với sự giao thoa tuyệt vời giữa nét quyền quý châu Âu và sự bình yên của làng quê Việt. Đó chính là mẫu nhà mái Nhật 2 tầng tân cổ điển mà Techhome vừa hoàn thiện thiết kế cho gia đình chú Mậu tại Sen Phương, Phúc Thọ, Hà Nội.

Nếu bạn đang tìm kiếm một không gian sống vừa sang trọng để “nở mày nở mặt” với xóm giềng, vừa đủ ấm cúng để sum vầy con cháu, thì đây chính là bài viết dành riêng cho bạn.

1. Câu chuyện đằng sau mẫu nhà mái Nhật 2 tầng tân cổ điển tại Phúc Thọ

Khi gặp chú Mậu vào một buổi chiều tại Phúc Thọ, chú chia sẻ với chúng mình: “Chú muốn một ngôi nhà nhìn vào là thấy sự vững chãi, nhưng đừng cứng nhắc quá. Nó phải có cái nét mềm mại của kiến trúc Pháp nhưng vẫn phải hợp với khí hậu và lối sống ở quê mình.”

Thấu hiểu mong muốn đó, các kiến trúc sư tại Techhome đã dành nhiều tuần để nhào nặn nên phương án nhà mái Nhật 2 tầng tân cổ điển này. Đây không chỉ là một công trình xây dựng, nó là tâm huyết của một đời người tích cóp, là món quà chú dành cho gia đình.

Phối cảnh chính diện mẫu nhà mái Nhật 2 tầng tân cổ điển sang trọng của chú Mậu tại Phúc Thọ.
Phối cảnh chính diện mẫu nhà mái Nhật 2 tầng tân cổ điển sang trọng của chú Mậu tại Phúc Thọ.

2. Phân tích ngoại thất: Sự lên ngôi của tỉ lệ vàng

Nhìn vào phối cảnh 3D, điểm đầu tiên hút mắt chính là hệ mái Nhật màu xanh than thanh lịch. Khác với mái Thái có độ dốc lớn, mái Nhật có độ dốc vừa phải, mở ra các hướng giúp thoát nước mưa nhanh và chống nóng cực tốt – một lựa chọn thông minh cho thời tiết khắc nghiệt tại miền Bắc.

Hệ cột và những đường cong quý phái

Mẫu nhà mái Nhật 2 tầng tân cổ điển của chú Mậu sử dụng hệ cột tròn trang trí với những đường gờ chỉ chạy dọc tinh tế. Điểm nhấn đắt giá nhất nằm ở ban công hình bán nguyệt với lan can nhôm đúc nghệ thuật màu vàng đồng. Nó giống như một chiếc vương miện nhẹ nhàng đặt lên tầng 2 của ngôi nhà, tạo nên vẻ kiêu sa mà không hề phô trương.

Màu sắc và chất liệu

Sự kết hợp giữa tone sơn trắng sứ chủ đạo và màu đá ốp vàng nhạt ở các mảng tường trang trí giúp ngôi nhà luôn bừng sáng dưới ánh nắng. Cửa chính được làm bằng gỗ tự nhiên cao cấp, tạo cảm giác bề thế và an tâm ngay từ cái chạm tay đầu tiên vào ngôi nhà mái Nhật 2 tầng tân cổ điển này.

Góc nghiêng nhà mái Nhật 2 tầng tân cổ điển

3. Công năng sử dụng: Thiết kế “vì con người”

Một ngôi nhà đẹp trước hết phải là một ngôi nhà tiện nghi. Với tổng diện tích sàn thiết kế là 197m2, chúng mình đã tối ưu hóa từng mét vuông để không có “không gian chết”.

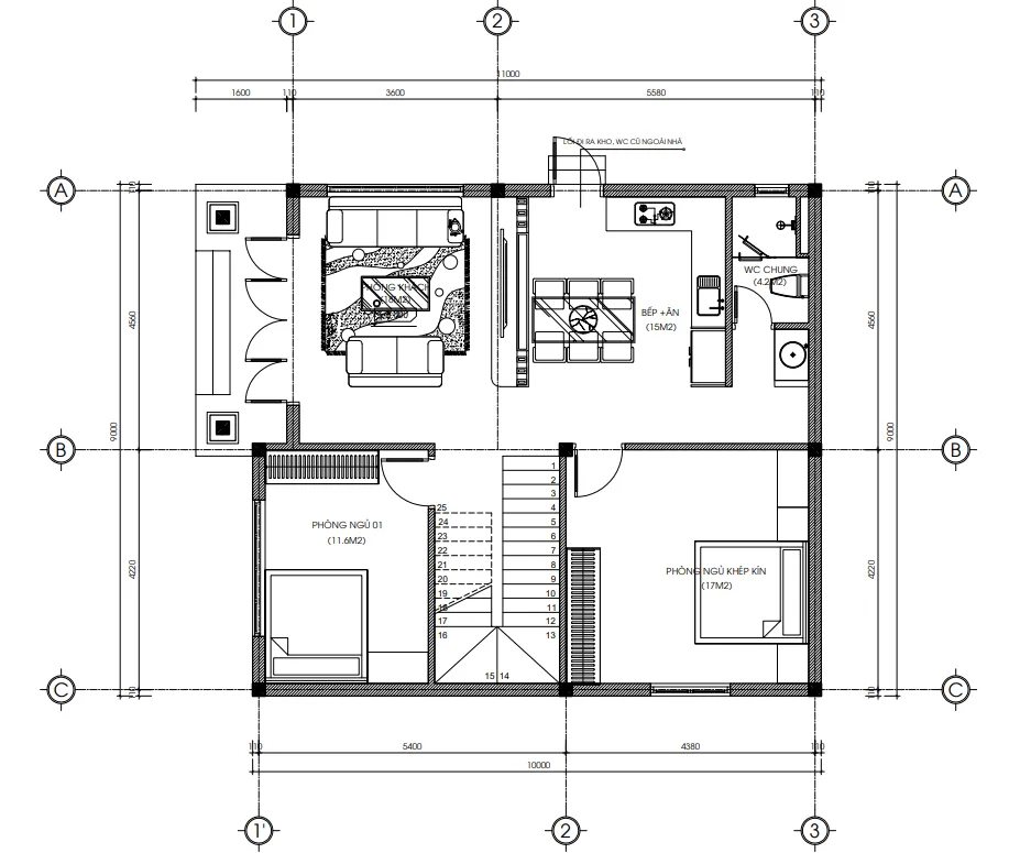
Tầng 1: Không gian kết nối (Diện tích 95m2)

  • Phòng khách rộng rãi: Ngay sau cửa chính, là nơi chú Mậu tiếp đón những người bạn, nơi rộn rã tiếng cười mỗi dịp lễ Tết.

  • Bếp và phòng ăn (15m2): Được thiết kế liên thông, tạo sự thông thoáng. Đây là “trái tim” của ngôi nhà, nơi giữ lửa yêu thương qua những bữa cơm gia đình.

  • 02 Phòng ngủ:  giúp việc sinh hoạt thuận tiện hơn khi tuổi xế chiều.

  • Cầu thang 25 bậc: Một chi tiết kỹ thuật cực kỳ tinh tế. Với chiều cao tầng 4.1m, việc thiết kế 25 bậc (rơi vào cung “Sinh”) không chỉ giúp việc đi lại nhẹ nhàng với chiều cao bậc 164mm mà còn mang ý nghĩa phong thủy tốt lành cho gia chủ.

Bản vẽ chi tiết mặt bằng công năng tầng 1 mẫu nhà mái Nhật 2 tầng tân cổ điển diện tích 95m2.
Bản vẽ chi tiết mặt bằng công năng tầng 1 mẫu nhà mái Nhật 2 tầng tân cổ điển diện tích 95m2.

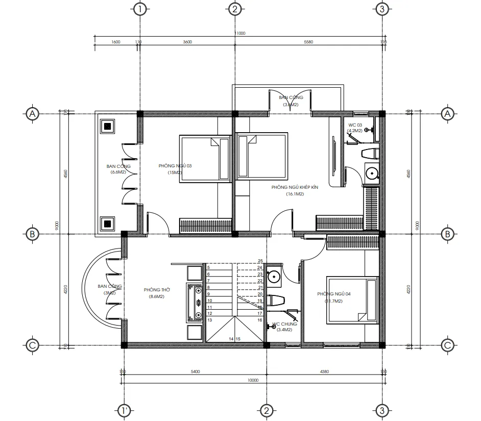
Tầng 2: Sự riêng tư và tĩnh mịch (Diện tích 102m2)

  • Phòng thờ (8.6m2): Được đặt ở vị trí trang trọng nhất, hướng ra ban công thoáng đãng, thể hiện lòng thành kính của con cháu với tổ tiên.

  • 03 Phòng ngủ: Trong đó có một phòng ngủ khép kín (16.1m2), Các phòng ngủ đều có cửa sổ lớn đón gió tự nhiên, đảm bảo sức khỏe cho các thành viên.

  • Ban công: Nơi lý tưởng để mỗi sáng sớm chú Mậu có thể nhâm nhi chén trà, ngắm nhìn khung cảnh làng quê Sen Phương thanh bình.

Bản vẽ chi tiết mặt bằng công năng tầng 2 mẫu nhà mái Nhật 2 tầng tân cổ điển diện tích 102m2.
Bản vẽ chi tiết mặt bằng công năng tầng 2 mẫu nhà mái Nhật 2 tầng tân cổ điển diện tích 102m2.

4. Giải pháp xanh và kỹ thuật bền vững

Trong bản vẽ phối cảnh từ trên cao, các bạn có thể thấy Techhome đã bố trí hệ thống thái dương năng trên mái. Đây là xu hướng của những mẫu nhà mái Nhật 2 tầng tân cổ điển hiện đại, vừa tận dụng năng lượng mặt trời sạch, vừa tiết kiệm chi phí điện năng lâu dài cho gia đình.

Hệ thống cửa sổ sử dụng khung nhôm kính xingfa cao cấp giúp cách âm, cách nhiệt hoàn hảo. Dù ngoài đường có ồn ào hay thời tiết có oi bức, bước vào bên trong ngôi nhà mái Nhật 2 tầng tân cổ điển này, bạn sẽ cảm nhận ngay sự bình yên và mát mẻ.

Góc nghiêng nhà mái Nhật 2 tầng tân cổ điển

5. Báo giá tham khảo xây dựng nhà mái Nhật 2 tầng tân cổ điển (Năm 2026)

Để các bạn dễ dàng hình dung và chuẩn bị tài chính, Techhome xin đưa ra bảng dự toán tham khảo cho mẫu nhà có quy mô tương tự chú Mậu (197m2):

Hạng mục Đơn giá (VNĐ/m2) Thành tiền (Ước tính)
Gói thiết kế kiến trúc  108.000 21.276.000
Thi công phần thô (Nhân công + Vật tư) 3.800.000 – 4.200.000 ~ 750 – 830 triệu
Thi công hoàn thiện (Chưa thiết bị điện tử) 2.500.000 – 3.500.000 ~ 500 – 700 triệu
Tổng giá trị xây dựng (Trọn gói) 7.000.000 – 8.000.000 ~ 1,4 – 1,6 tỷ VNĐ

Lưu ý: Đây chỉ là mức chi phí ước tính. Để nhận được báo giá chính xác và chi tiết nhất cho công trình của bạn, vui lòng liên hệ trực tiếp với chúng tôi. Hoặc để tìm hiểu rõ hơn về tiêu chuẩn vật liệu xây dựng và các yếu tố ảnh hưởng đến chi phí, bạn có thể tham khảo thêm tại các bài viết chuyên sâu về vật liệu xây dựng cao cấp trên Wikipedia.

Tổng thể mẫu nhà mái Nhật 2 tầng tân cổ điển nhìn từ trên cao với hệ mái Nhật màu xanh thanh lịch.
Tổng thể mẫu nhà mái Nhật 2 tầng tân cổ điển nhìn từ trên cao với hệ mái Nhật màu xanh thanh lịch.

6. Tại sao nên chọn Techhome cho ngôi nhà của bạn?

Tại Techhome, chúng mình không chỉ bán bản vẽ, chúng mình bán “giải pháp sống”.

  1. Chính xác: Mọi thông số từ bậc cầu thang đến vị trí ổ điện đều được tính toán tỉ mỉ.

  2. Tận tâm: Chúng mình luôn lắng nghe thói quen sinh hoạt của từng thành viên để thiết kế không gian phù hợp nhất.

  3. Hỗ trợ kỹ thuật 24/7: Như trên bản vẽ chú Mậu, hotline luôn sẵn sàng giải đáp mọi thắc mắc của thợ nề tại công trường.

Xây nhà là việc trọng đại cả đời. Một mẫu nhà mái Nhật 2 tầng tân cổ điển đẹp không chỉ ở vẻ ngoài hào nhoáng mà còn ở sự bền vững và sự thoải mái khi sử dụng.

Tổng thể mẫu nhà mái Nhật 2 tầng tân cổ điển

7. Lời kết từ chuyên gia

Mẫu nhà mái Nhật 2 tầng tân cổ điển của chú Mậu tại Phúc Thọ là minh chứng cho việc kiến trúc cao cấp hoàn toàn có thể hiện diện và hòa hợp tại các vùng nông thôn đang phát triển. Nó khẳng định gu thẩm mỹ tinh tế và sự quan tâm chu đáo của gia chủ dành cho tổ ấm.

Nếu bạn cũng yêu thích phong cách nhà mái Nhật 2 tầng tân cổ điển này, đừng ngần ngại liên hệ hotline của Techhome để được tư vấn miễn phí nhé!


Thông tin liên hệ:

Để lại một bình luận

Email của bạn sẽ không được hiển thị công khai. Các trường bắt buộc được đánh dấu *

    Vui lòng nhấn nút YÊU CẦU TƯ VẤN và đợi 1 - 2 giây đến khi thấy thông báo thành công

    YÊU CẦU TƯ VẤN