Bạn đang sở hữu một mảnh đất rộng ở quê và muốn xây dựng một không gian sống vừa hiện đại, vừa ấm cúng cho cả gia đình? Bạn băn khoăn không biết bố trí công năng thế nào để 3 phòng ngủ đều thoáng đãng trên diện tích 120m2? Vậy thì câu chuyện về mẫu nhà cấp 4 mái Nhật 3 phòng ngủ của gia đình anh Vinh tại Ninh Bình mà Techhome vừa hoàn thiện dưới đây chính là câu trả lời hoàn hảo nhất dành cho bạn.
1. Thông tin tổng quan dự án anh Vinh – Ninh Bình
Trước khi đi sâu vào vẻ đẹp kiến trúc, hãy cùng điểm qua các thông số kỹ thuật “vàng” của công trình này để bạn có cái nhìn khách quan nhất:
-
Chủ đầu tư: Anh Vinh.
-
Địa điểm xây dựng: Ninh Bình.
-
Đ vị thiết kế & thi công: Công ty Cổ phần Kiến trúc và Xây dựng Techhome.
-
Loại hình: Nhà ở gia đình (Nhà vườn cấp 4).
-
Phong cách: Hiện đại – Mái Nhật.
-
Diện tích xây dựng: 120m2.
-
Chiều cao tầng: 4100mm (4.1m).
-
Công năng: 1 Phòng khách, 1 Phòng bếp + ăn, 3 Phòng ngủ, 2 Nhà vệ sinh (WC).

2. Tại sao mẫu nhà cấp 4 mái Nhật 3 phòng ngủ lại “làm mưa làm gió” hiện nay?
Nói thật với các bác, trong suốt nhiều năm tư vấn thiết kế tại Techhome, tôi nhận thấy xu hướng xây nhà đang dịch chuyển rõ rệt. Thay vì những ngôi nhà cao tầng cầu kỳ, người ta bắt đầu ưu tiên sự tiện lợi, kết nối và gần gũi với thiên nhiên. Và mẫu nhà cấp 4 mái Nhật 3 phòng ngủ chính là “ngôi sao” trong phân khúc này.
Kiến trúc mái Nhật – Vẻ đẹp của sự cân bằng
Khác với mái Thái có độ dốc lớn và nhọn, mái Nhật (mái lùn) có độ dốc vừa phải, mở rộng ra các hướng. Điều này không chỉ giúp thoát nước mưa cực tốt trong điều kiện khí hậu Việt Nam mà còn tạo nên sự bề thế, vững chãi. Nhìn từ xa, ngôi nhà của anh Vinh trông cực kỳ thanh thoát, không hề bị nặng nề.
Sự phối hợp màu sắc hiện đại
Ngôi nhà sử dụng tone màu chủ đạo là trắng kết hợp với các mảng tường màu xanh ghi đậm và phần chân tường ốp đá xám. Cách phối màu này không chỉ giúp ngôi nhà luôn trông như mới mà còn tạo cảm giác mát mẻ, dễ chịu giữa cái nắng của vùng đất Ninh Bình.

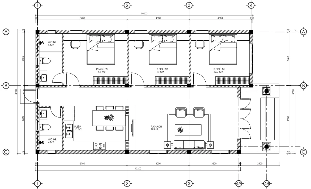
3. Phân tích chi tiết mặt bằng công năng 120m2 của anh Vinh
Nhiều người hỏi tôi: “120m2 liệu có chật khi bố trí 3 phòng ngủ không?”. Nhìn vào bản vẽ kỹ thuật mã số 023 của Techhome, bạn sẽ thấy sự tài tình của các kiến trúc sư trong việc tối ưu hóa không gian.
Không gian sinh hoạt chung (Phòng khách & Bếp)
-
Phòng khách (29m2): Đây là “trái tim” của ngôi nhà. Với diện tích rộng rãi này, gia đình anh Vinh có thể thoải mái tiếp đón khách quý. Cửa chính 4 cánh bằng gỗ tự nhiên với hoa văn tinh xảo không chỉ sang trọng mà còn đón trọn ánh sáng vào phòng.
-
Phòng bếp & ăn (16m2): Được thiết kế liên thông nhưng vẫn có sự ngăn cách ước lệ với phòng khách. Việc bố trí bếp có cửa phụ đi ra phía sau giúp việc đi chợ, nấu nướng không bị ám mùi vào không gian chính và cực kỳ thuận tiện cho sinh hoạt hằng ngày.
Không gian nghỉ ngơi riêng tư
Điểm cộng lớn nhất của mẫu nhà cấp 4 mái Nhật 3 phòng ngủ này là sự riêng tư được đề cao:
-
Phòng ngủ 01 (12.7m2): Nằm phía ngoài cùng, gần phòng khách, phù hợp cho người lớn tuổi hoặc khách đến chơi nhà.
-
Phòng ngủ 02 (13m2): Nằm giữa, diện tích vừa vặn cho con cái.
-
Phòng ngủ 03 (13.7m2): Đây là phòng ngủ lớn nhất, nằm phía cuối nhà, đảm bảo sự yên tĩnh tuyệt đối. Tích hợp WC riêng.
-
vệ sinh chung: bố trí cực kỳ khoa học. WC 02 (4m2) nằm gần khu vực bếp để phục vụ nhu cầu chung.

4. Những chi tiết “đắt giá” trong thiết kế của Techhome
Là người trong nghề, tôi tâm đắc nhất ở dự án này 3 điểm mà có thể nếu không để ý, bạn sẽ bỏ qua:
-
Hệ thống cửa sổ nhôm kính Xingfa: Toàn bộ hệ cửa sổ được dùng kính cường lực khung nhôm tối màu. Nó không chỉ giúp lấy sáng tự nhiên cực tốt mà còn tạo tầm nhìn ra sân vườn xanh mát bên ngoài.
-
Bậc tam cấp chuẩn phong thủy: Lối vào nhà được thiết kế 5 bậc cao ráo, giúp ngôi nhà trông uy nghi hơn và tránh được ẩm mốc từ nền đất.
-
Tận dụng năng lượng sạch: Trên mái nhà, Techhome đã tư vấn anh Vinh lắp đặt hệ thống bình nước nóng năng lượng mặt trời. Đây là giải pháp sống xanh, tiết kiệm điện năng rất đáng để các bác tham khảo.

5. Báo giá thi công mẫu nhà cấp 4 mái Nhật 3 phòng ngủ (Tham khảo 2026)
“Xây nhà này hết bao nhiêu tiền?” – Đây chắc chắn là câu hỏi các bác quan tâm nhất. Thực tế, giá thành sẽ phụ thuộc vào chủng loại vật liệu và địa điểm xây dựng. Tuy nhiên, tại khu vực Ninh Bình, Techhome đưa ra mức giá dự toán sơ bộ để các bác dễ hình dung:
| Hạng mục | Đơn giá tham khảo (VNĐ/m2) | Tổng chi phí dự kiến cho 120m2 |
| Gói thi công phần thô | 3.500.000 – 4.000.000 | ~ 420 – 480 triệu |
| Gói thi công hoàn thiện (Khá) | 6.000.000 – 6.800.000 | ~ 720 – 816 triệu |
| Gói chìa khóa trao tay | 7.000.000 – 7.500.000 | ~ 840 – 900 triệu |
Lưu ý: Đây chỉ là mức chi phí ước tính. Để nhận được báo giá chính xác và chi tiết nhất cho công trình của bạn, vui lòng liên hệ trực tiếp với chúng tôi. Hoặc để tìm hiểu rõ hơn về tiêu chuẩn vật liệu xây dựng và các yếu tố ảnh hưởng đến chi phí, bạn có thể tham khảo thêm tại các bài viết chuyên sâu về vật liệu xây dựng cao cấp trên Wikipedia.

6. Gợi ý từ chuyên gia để có một mẫu nhà cấp 4 mái Nhật 3 phòng ngủ hoàn hảo
Nếu bạn đang nhen nhóm ý định xây dựng theo mẫu nhà cấp 4 mái Nhật 3 phòng ngủ, hãy ghi nhớ vài lời khuyên “xương máu” sau từ tôi:
-
Đừng tiết kiệm diện tích sân vườn: Một ngôi nhà mái Nhật chỉ thực sự đẹp khi nó được đặt trong một khuôn viên có cây xanh, tiểu cảnh. Như nhà anh Vinh, khoảng sân lát gạch xám sạch sẽ kết hợp với các bồn hoa quanh nhà giúp không gian tràn đầy sức sống.
-
Chú trọng hướng nắng, hướng gió: Hãy nhờ kiến trúc sư đo đạc kỹ để đặt vị trí các cửa sổ sao cho đón được gió mát mà không bị nắng gắt chiếu trực tiếp vào giường ngủ.
-
Lựa chọn đơn vị thiết kế uy tín: Một bộ hồ sơ thiết kế kỹ thuật thi công đầy đủ như của Techhome sẽ giúp bạn quản lý được khối lượng vật tư, tránh phát sinh chi phí không kiểm soát và đảm bảo an toàn kết cấu bền vững.

7. Tại sao bạn nên chọn Techhome?
Chúng tôi không chỉ bán bản vẽ, chúng tôi bán giải pháp về không gian sống. Tại Techhome, mỗi ngôi nhà là một tác phẩm nghệ thuật được “đo ni đóng giày” cho từng gia chủ.
-
Tư vấn tận tâm: Chúng tôi lắng nghe thói quen sinh hoạt của từng thành viên trong gia đình bạn để bố trí công năng hợp lý nhất.
-
Minh bạch chi phí: Báo giá rõ ràng ngay từ đầu, nói không với việc vẽ thêm chi phí trong quá trình thi công.
-
Kinh nghiệm dày dặn: Với hàng trăm công trình đã hoàn thiện tại Ninh Bình và các tỉnh lân cận, chúng tôi thấu hiểu địa chất và văn hóa vùng miền để đưa ra giải pháp thi công tối ưu.
Nếu bạn yêu thích mẫu nhà cấp 4 mái Nhật 3 phòng ngủ của anh Vinh, đừng ngần ngại truy cập website của chúng tôi tại: https://nhadeptechhome.vn/ để xem thêm nhiều mẫu nhà đẹp khác.
Mẫu nhà cấp 4 mái Nhật 3 phòng ngủ – Không chỉ là nơi để che nắng che mưa, đó là nơi nuôi dưỡng hạnh phúc. Hãy để Techhome đồng hành cùng bạn trên hành trình xây tổ ấm!
Thông tin liên hệ tư vấn:
-
Hotline: 036.273.2222
-
Địa chỉ: B1.1 LK18 Ô 3 – KĐT Thanh Hà – Cienco 5 – Thanh Oai- Hà Nội.
