Chào các “đồng nghiệp” đang ấp ủ dự định xây tổ ấm! Bạn biết đấy, ở cái thời buổi đất chật người đông, lại thêm áp lực công việc bộn bề, xu hướng tìm về những không gian sống xanh, tối giản nhưng phải “chất” đang lên ngôi. Hôm nay, Tôi sẽ dắt bạn về thăm Đại Bái, Gia Bình, Bắc Ninh để chiêm ngưỡng một siêu phẩm mà Techhome vừa hoàn thiện hồ sơ: Mẫu nhà 2 tầng hiện đại 100m2 của gia đình anh Long.
Thực sự mà nói, khi cầm bản vẽ này trên tay, mình đã thốt lên: “Đúng là nhà người ta!”. Không quá phô trương với phù điêu hay cột kèo uốn lượn, ngôi nhà ghi điểm bởi những hình khối vuông vức, mạch lạc và cách phối màu cực kỳ “tây”.
1. Tại sao mẫu nhà 2 tầng hiện đại 100m2 lại “lên ngôi” năm 2026?
Không phải ngẫu nhiên mà từ khóa mẫu nhà 2 tầng hiện đại 100m2 lại được tìm kiếm “cháy máy” trên các nền tảng mạng xã hội. Với diện tích sàn khoảng 100m2, gia chủ hoàn toàn có thể bố trí từ 3 đến 4 phòng ngủ, đáp ứng thoải mái nhu cầu cho một gia đình 2-3 thế hệ.
Ở dự án của anh Long, với kích thước mặt tiền 12.5m và chiều sâu 8m, Techhome đã khéo léo biến một mảnh đất hình chữ nhật trở thành một không gian sống mở, tràn ngập ánh sáng tự nhiên. Đây chính là “tỉ lệ vàng” để thiết kế ngoại thất trông bề thế mà không bị thô.
Ngoại thất: Sự giao thoa giữa ánh sáng và hình khối
Nhìn vào phối cảnh 3D, bạn sẽ thấy điểm nhấn lớn nhất của mẫu nhà 2 tầng hiện đại 100m2 này chính là mảng khối hình chữ C màu trắng ôm trọn ban công tầng 2. Cách thiết kế này không chỉ tạo chiều sâu cho mặt tiền mà còn là giải pháp chống nắng hướng Tây cực kỳ hiệu quả.
Sự kết hợp giữa tone màu trắng chủ đạo, nhấn nhá thêm các mảng tường sơn màu tối và hệ trần ốp giả gỗ tạo cảm giác ấm cúng, sang trọng. Đặc biệt, hệ thống cửa kính cường lực khung nhôm xám đen giúp xóa nhòa ranh giới giữa bên trong và bên ngoài, khiến ngôi nhà lúc nào cũng thoáng đãng.

2. Chi tiết mặt bằng công năng: Tối ưu đến từng centimet
Một ngôi nhà đẹp trước hết phải là một ngôi nhà tiện dụng. Hãy cùng Tôi “soi” kỹ xem các kiến trúc sư Techhome đã phù phép gì cho bản vẽ mẫu nhà 2 tầng hiện đại 100m2 này nhé.
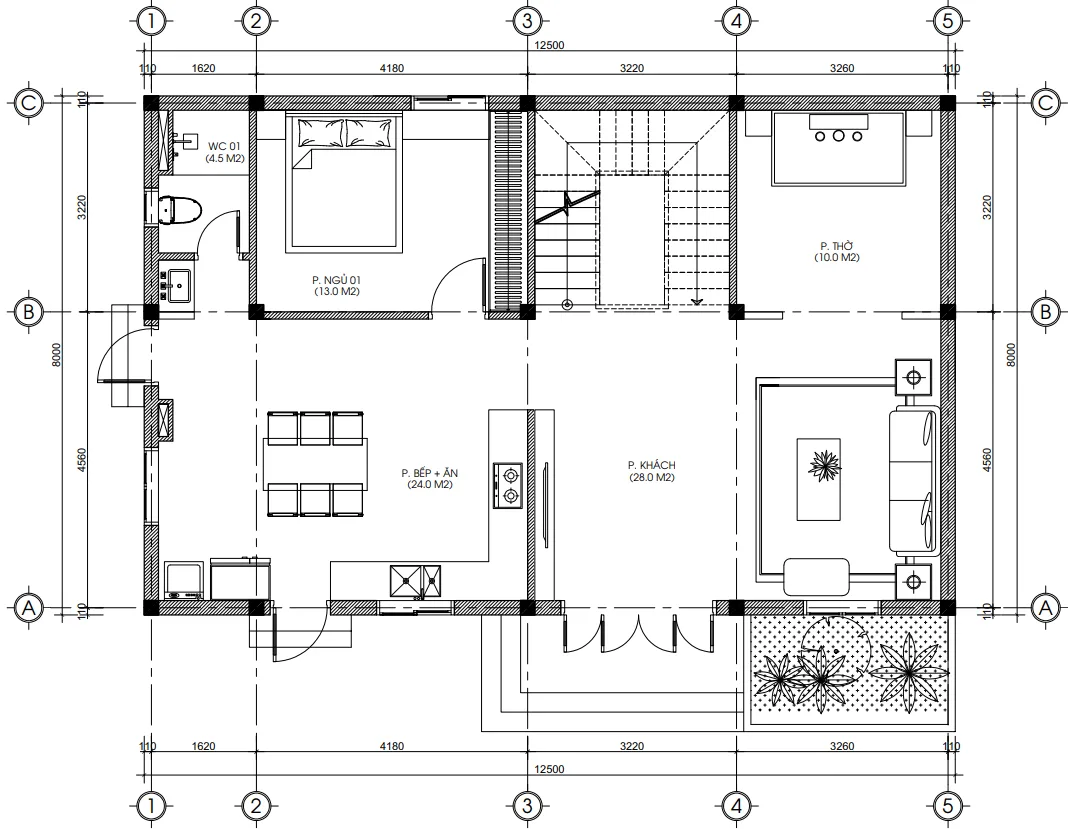
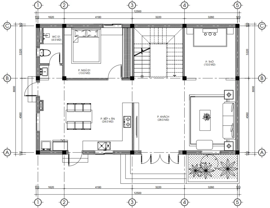
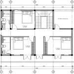
Mặt bằng tầng 1: Không gian kết nối gia đình
Tầng 1 được thiết kế với chiều cao thông thủy 3.9m, một con số lý tưởng để tạo sự thông thoáng.
-
Phòng khách (28m2): Bước qua sảnh chính là không gian phòng khách rộng lớn. Với diện tích này, anh Long thoải mái đặt một bộ sofa da cao cấp và hệ tủ tivi lớn mà vẫn có lối đi lại rộng rãi.
-
Phòng bếp + ăn (24m2): Thiết kế mở liên thông với phòng khách. Đây là nơi giữ lửa hạnh phúc, được trang bị hệ tủ bếp chữ L hiện đại.
-
Phòng thờ (10m2): Một điểm rất tinh tế trong tâm thức người Việt. Việc đặt phòng thờ ngay tầng 1 giúp những người lớn tuổi trong gia đình thuận tiện trong việc nhang khói, lễ bái mà không phải leo trèo tầng cao.
-
Phòng ngủ 01 (13m2): Dành riêng cho ông bà hoặc khách ghé chơi, đảm bảo sự riêng tư và kín đáo.
-
WC 01 (4.5m2): Được bố trí gọn gàng phía cuối nhà, thuận tiện cho sinh hoạt chung.

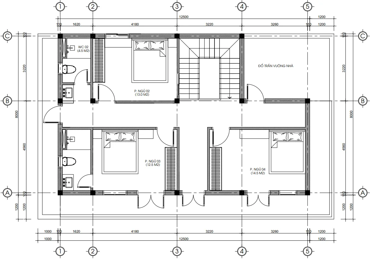
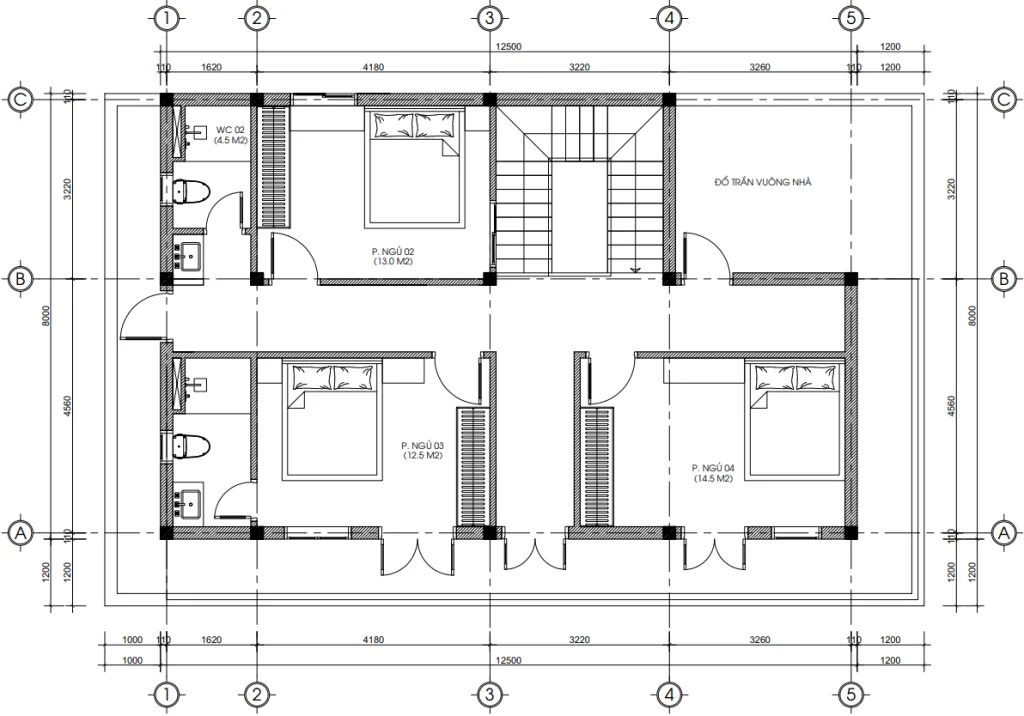
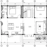
Mặt bằng tầng 2: Thiên đường nghỉ ngơi
Tầng 2 của mẫu nhà 2 tầng hiện đại 100m2 có chiều cao 3.6m, tập trung vào sự riêng tư với 3 phòng ngủ:
-
Phòng ngủ 02 (13m2), Phòng ngủ 03 (12.5m2) & Phòng ngủ 04 (14.5m2): Các phòng đều có cửa sổ lớn để đón gió trời. Trong đó phòng ngủ 03 có WC riêng biệt.
-
Hệ thống cầu thang: Với 25 bậc thang, chiều cao mỗi bậc chỉ 156mm, giúp việc di chuyển cực kỳ êm chân, không lo mỏi gối – một chi tiết nhỏ nhưng thể hiện sự tâm huyết của người làm nghề.

3. Báo giá thi công mẫu nhà 2 tầng hiện đại 100m2 (Tham khảo 2026)
Chắc hẳn bạn đang thắc mắc: “Xây một ngôi nhà như thế này hết bao nhiêu tiền?”. Techhome luôn minh bạch trong vấn đề tài chính để chủ đầu tư dễ dàng chuẩn bị. Dưới đây là bảng dự toán sơ bộ cho mẫu nhà 2 tầng hiện đại 100m2 tại khu vực Bắc Ninh:
| Hạng mục | Đơn giá (VNĐ/m2) | Thành tiền (Tạm tính) |
| Thiết kế kiến trúc | 108.000 | 21.600.000 |
| Thi công phần thô | 3.800.000 – 4.200.000 | ~ 800.000.000 |
| Thi công hoàn thiện (Chìa khóa trao tay) | 6.500.000 – 7.500.000 | ~ 1.300.000.000 – 1.500.000.000 |
Lưu ý: Đây chỉ là mức chi phí ước tính. Để nhận được báo giá chính xác và chi tiết nhất cho công trình của bạn, vui lòng liên hệ trực tiếp với chúng tôi. Hoặc để tìm hiểu rõ hơn về tiêu chuẩn vật liệu xây dựng và các yếu tố ảnh hưởng đến chi phí, bạn có thể tham khảo thêm tại các bài viết chuyên sâu về vật liệu xây dựng cao cấp trên Wikipedia.
4. Tại sao nên chọn Techhome để hiện thực hóa ước mơ?
Giữa hàng ngàn công ty kiến trúc, tại sao anh Long lại chọn Techhome? Câu trả lời nằm ở chữ “Tâm” và “Tầm”.
Khi thực hiện mẫu nhà 2 tầng hiện đại 100m2 này, đội ngũ KTS cùng các cộng sự đã xuống tận Đại Bái để khảo sát địa chất, hướng nắng, hướng gió. Chúng tôi không chỉ bán bản vẽ, chúng tôi bán giải pháp sống bền vững.
Sở hữu một mẫu nhà 2 tầng hiện đại 100m2 do Techhome thiết kế, bạn sẽ nhận được:
-
Hồ sơ kỹ thuật chi tiết, chính xác từng mm.
-
Tư vấn phong thủy chuyên sâu, giúp gia đạo bình an, tài lộc hanh thông.
-
Hỗ trợ giám sát tác giả trong suốt quá trình thi công.

5. Góc chuyên gia: Những lưu ý “sống còn” khi xây mẫu nhà 2 tầng hiện đại 100m2
Với kinh nghiệm viết và tư vấn cho hàng trăm website kiến trúc, Tôi muốn chia sẻ thêm một vài mẹo nhỏ để mẫu nhà 2 tầng hiện đại 100m2 của bạn trở nên hoàn hảo hơn:
-
Đừng bỏ qua sân vườn: Nhìn vào phối cảnh, bạn thấy không? Những khoảng xanh nhỏ ở chân tường hay góc ban công không chỉ làm đẹp mà còn giúp điều hòa không khí cực tốt.
-
Hệ thống chiếu sáng: Đừng chỉ dùng đèn tuýp. Hãy kết hợp đèn led âm trần, đèn rọi ray và đèn trang trí ngoại thất để ngôi nhà lung linh hơn khi đêm về.
-
Lựa chọn vật liệu: Với phong cách hiện đại, hãy ưu tiên đá tự nhiên ốp chân tường, gỗ nhựa ngoài trời và nhôm kính cao cấp. Chúng bền bỉ với thời tiết khắc nghiệt của miền Bắc.
-
Chống thấm: Đây là “nỗi đau” của nhiều nhà phố. Hãy đầu tư vào quy trình chống thấm mái và ban công ngay từ đầu để tránh phiền phức sau này.
Ngôi nhà không chỉ là nơi để che mưa che nắng, nó là tuyên ngôn về phong cách sống của bạn. Một mẫu nhà 2 tầng hiện đại 100m2 vừa vặn, ấm cúng sẽ là bến đỗ bình yên nhất sau mỗi ngày làm việc mệt mỏi.
Nếu bạn cũng đang sở hữu một mảnh đất tương tự và yêu thích phong cách của mẫu nhà 2 tầng hiện đại 100m2 này, hãy để Techhome đồng hành cùng bạn. Chúng mình tin rằng, mỗi khách hàng là một người bạn, và mỗi ngôi nhà là một tác phẩm nghệ thuật.

Kết luận: Với chi phí đầu tư hợp lý, công năng tối ưu và thẩm mỹ vượt thời gian, mẫu nhà 2 tầng hiện đại 100m2 thực sự là lựa chọn số 1 cho các gia đình trẻ hiện nay. Đừng để những lo toan về xây dựng làm bạn chùn bước. Liên hệ ngay với Techhome để biến bản vẽ trên giấy thành tổ ấm trong mơ nhé!
CÔNG TY CỔ PHẦN KIẾN TRÚC VÀ XÂY DỰNG TECHHOME
🏠 Website: https://nhadeptechhome.vn/
☎️ Hotline: 036.273.2222
📍 Địa chỉ: B1.1 LK18 Ô 3 – KĐT Thanh Hà – Cienco 5 – Thanh Oai- Hà Nội.
