Xây nhà là chuyện cả đời. Có người dành cả thanh xuân để tích góp, cũng có người đợi đến khi con cái trưởng thành mới dám nghĩ đến việc sửa sang lại mảnh vườn, dựng lên một ngôi nhà khang trang. Với anh Thắng tại Hải Phòng, ngôi nhà không chỉ là nơi che mưa che nắng, mà là nơi gắn kết các thành viên, nơi lưu giữ những bữa cơm ấm cúng. Và Techhome đã hiện thực hóa giấc mơ đó bằng một mẫu nhà cấp 4 mái Nhật 4 phòng ngủ cực kỳ tinh tế.
1. Tại sao mẫu nhà cấp 4 mái Nhật 4 phòng ngủ lại “lên ngôi” năm 2026?
Nếu như vài năm trước, người ta chuộng nhà cao cửa rộng, thì xu hướng hiện nay lại quay về với những thiết kế một tầng gần gũi với thiên nhiên. Đặc biệt, mẫu nhà cấp 4 mái Nhật 4 phòng ngủ đang trở thành lựa chọn quốc dân cho những gia đình có quỹ đất rộng ở ngoại thành hoặc vùng nông thôn.
Tại sao vậy? Đơn giản vì nó giải quyết được bài toán:
-
Sự tiện lợi: Mọi sinh hoạt nằm trên một mặt sàn, không phải leo cầu thang, cực kỳ an toàn cho người già và trẻ nhỏ.
-
Vẻ đẹp vượt thời gian: Mái Nhật với độ dốc vừa phải, thanh thoát, mang lại cảm giác bình yên nhưng vẫn rất sang trọng.
-
Công năng tối ưu: Với 4 phòng ngủ, gia đình 2-3 thế hệ vẫn có không gian riêng tư thoải mái.

2. Chi tiết hồ sơ thiết kế công trình của anh Thắng – Hải Phòng
Dựa trên hồ sơ thiết kế kỹ thuật thi công, công trình này là minh chứng rõ nhất cho sự tỉ mỉ của đội ngũ KTS Techhome.
Thông tin chung về công trình:
-
Chủ đầu tư: Anh Thắng.
-
Địa điểm: Hải Phòng.
-
Đơn vị tư vấn: Công ty Cổ phần Kiến trúc và Xây dựng Techhome.
-
Diện tích tổng thể: 160.0 m2 (bao gồm cả bậc tam cấp).
-
Chiều cao tầng: 4.1 m.
Với chiều cao 4.1 m, ngôi nhà trở nên cực kỳ thông thoáng. Bạn cứ tưởng tượng, bước vào nhà mà trần cao ráo, gió trời lồng lộng thì cái nóng oi ả của mùa hè Hải Phòng cũng phải “chào thua”.
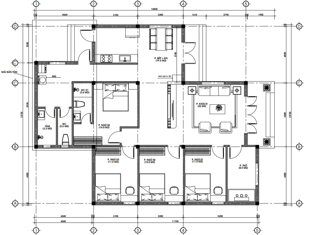
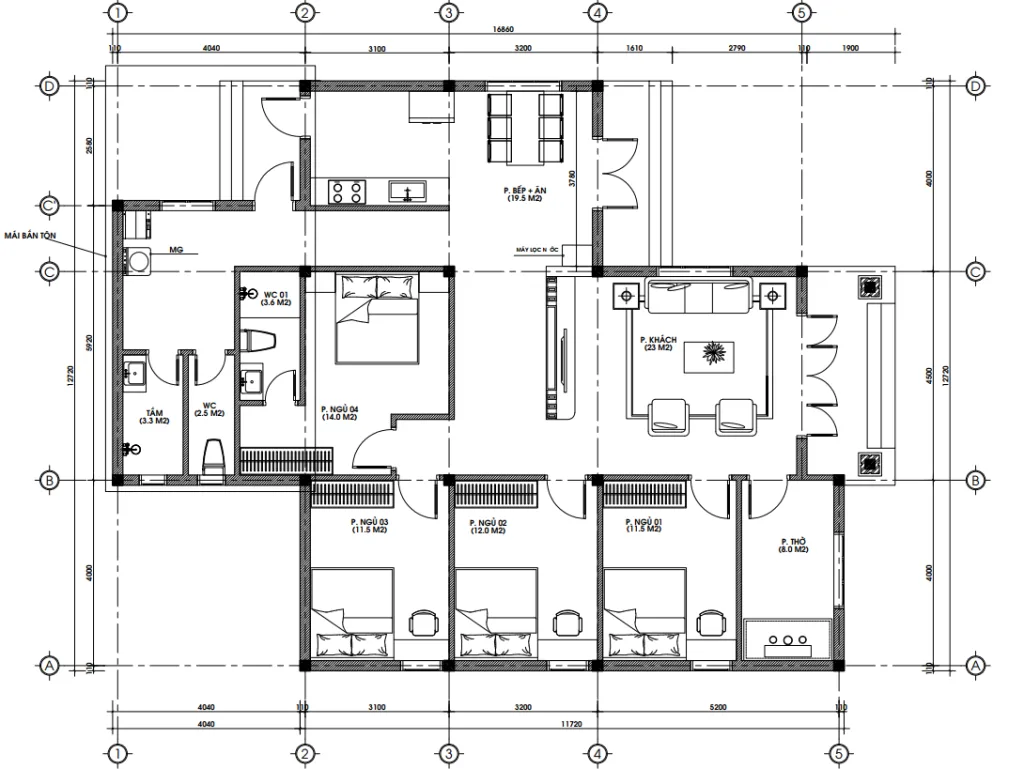
Mặt bằng công năng tầng 1 – Sự bố trí khoa học
Nhìn vào bản vẽ mặt bằng, chúng ta có thể thấy sự tài tình trong cách sắp xếp các phòng:
-
Phòng khách (23 m2): Nằm ngay vị trí trung tâm, đón ánh sáng trực tiếp từ sảnh chính. Đây là bộ mặt của gia chủ, nơi anh Thắng tiếp đón bạn bè bằng những tách trà đậm chất đất cảng.
-
Phòng Bếp + Ăn (19.5 m2): Thiết kế mở, tạo không gian liên hoàn giúp căn nhà rộng hơn thực tế.
-
Hệ thống 4 phòng ngủ:
-
Phòng ngủ 01: 11.5 m2.
-
Phòng ngủ 02: 12.0 m2.
-
Phòng ngủ 03: 11.5 m2.
-
Phòng ngủ 04: 14.0 m2 (vị trí gần bếp, thuận tiện cho sinh hoạt). Tích hợp Wc riêng biệt.
-
-
Phòng Thờ (8.0 m2): Được đặt ở vị trí trang trọng, hướng ra phía trước để đảm bảo yếu tố phong thủy và sự tôn nghiêm.
Việc sở hữu một mẫu nhà cấp 4 mái Nhật 4 phòng ngủ có diện tích 160 m2 giúp gia đình anh Thắng vừa có không gian chung ấm cúng, vừa có những góc riêng tư cho mỗi thành viên.

3. Phân tích kiến trúc ngoại thất: Trắng tinh khôi và xanh thâm trầm
Nhìn vào hình ảnh thực tế, bạn sẽ thấy ngay sự phối màu cực kỳ “nghề”. Tông màu trắng chủ đạo giúp ngôi nhà trông trẻ trung, hiện đại. Điểm xuyết trên đó là hệ mái Nhật màu xanh than, tạo nên một sự tương phản đầy quý phái.
Các đường phào chỉ được lược bỏ sự rườm rà của phong cách cổ điển, thay vào đó là những đường nét dứt khoát, khỏe khoắn. Hệ cửa chính bằng gỗ tự nhiên với hoa văn mặt trời tỏa sáng không chỉ là điểm nhấn thẩm mỹ mà còn mang ý nghĩa rước tài lộc vào nhà.
Nếu bạn đang tìm kiếm một mẫu nhà cấp 4 mái Nhật 4 phòng ngủ đẹp, đừng bỏ qua chi tiết hệ cửa sổ nhôm kính xingfa. Nó giúp lấy sáng tối đa, đưa thiên nhiên vào tận giường ngủ.

4. Báo giá thi công trọn gói tại Techhome (Tham khảo)
Mình biết đây là phần bạn quan tâm nhất. Để xây dựng một mẫu nhà cấp 4 mái Nhật 4 phòng ngủ như của anh Thắng, chi phí sẽ phụ thuộc vào nhiều yếu tố như: thời điểm thi công, chất lượng vật liệu và địa hình.
Dưới đây là mức giá tham khảo tại Techhome cho năm 2026:
| Hạng mục | Đơn giá tham khảo (VNĐ/m2) | Thành tiền (Dự tính cho 160 m2) |
| Thiết kế kiến trúc | 108.000 | 17.280.000 |
| Thi công phần thô | 3.500.000 – 3.800.000 | ~560 – 610 triệu |
| Thi công hoàn thiện (Gói cơ bản) | 6.000.000 – 6.500.000 | ~960 – 1.040.000.000 |
| Thi công hoàn thiện (Gói cao cấp) | 6.500.000 – 7.500.000 | ~1.040 – 1.2 tỷ |
Lưu ý: Đây chỉ là mức chi phí ước tính. Để nhận được báo giá chính xác và chi tiết nhất cho công trình của bạn, vui lòng liên hệ trực tiếp với chúng tôi. Hoặc để tìm hiểu rõ hơn về tiêu chuẩn vật liệu xây dựng và các yếu tố ảnh hưởng đến chi phí, bạn có thể tham khảo thêm tại các bài viết chuyên sâu về vật liệu xây dựng cao cấp trên Wikipedia.

5. Cảm nhận từ gia chủ
Anh Thắng chia sẻ: “Lúc đầu tôi cũng phân vân giữa nhà 2 tầng và nhà cấp 4. Nhưng sau khi xem bản thiết kế mẫu nhà cấp 4 mái Nhật 4 phòng ngủ của Techhome, tôi chốt luôn. Nhà xây xong ai đi qua cũng khen, quan trọng nhất là bố mẹ tôi không phải leo cầu thang, cụ vui lắm!”
Đó chính là giá trị mà Techhome hướng tới – không chỉ là xây nhà, mà là xây dựng hạnh phúc. Một mẫu nhà cấp 4 mái Nhật 4 phòng ngủ không chỉ cần đẹp trên giấy, nó cần phải “sống” cùng gia chủ.

6. Những lưu ý “vàng” khi xây mẫu nhà cấp 4 mái Nhật 4 phòng ngủ
Để ngôi nhà hoàn hảo nhất, mình có vài lời khuyên chân thành cho bạn:
-
Hệ thống thoát nước mái: Mái Nhật có độ dốc thấp hơn mái Thái, nên việc xử lý thoát nước và chống thấm phải cực kỳ cẩn thận.
-
Thông gió tự nhiên: Với mẫu nhà cấp 4 mái Nhật 4 phòng ngủ, hãy tận dụng các ô cửa sổ lớn để tạo dòng đối lưu không khí.
-
Lựa chọn nhà thầu: Đừng chỉ nhìn vào giá rẻ. Một đơn vị uy tín như Techhome sẽ giúp bạn tránh được những chi phí phát sinh không đáng có và đảm bảo đúng tiến độ.

CÔNG TY CỔ PHẦN KIẾN TRÚC VÀ XÂY DỰNG TECHHOME
-
Website: https://nhadeptechhome.vn/
-
Hotline: 036.273.2222
-
Địa chỉ: B1.1 LK18 Ô 3 – KĐT Thanh Hà – Cienco 5 – Thanh Oai- Hà Nội.
