Bạn đang sở hữu một mảnh đất tại Gia Lai và muốn xây dựng một tổ ấm vừa hiện đại, vừa tối ưu công năng nhưng lại chán ngấy những kiểu mái Thái hay mái Nhật truyền thống? Vậy thì mẫu nhà cấp 4 mái lệch mã số 077 mà Techhome vừa bàn giao cho gia đình anh Nam chính là câu trả lời hoàn hảo nhất dành cho bạn.
Thông tin tổng quan dự án
-
Chủ đầu tư: Anh Nam
-
Địa điểm xây dựng: Gia Lai
-
Đơn vị thiết kế & thi công: Công ty Cổ phần Kiến trúc và Xây dựng Techhome
-
Diện tích thiết kế: 100 m2
-
Loại hình: Nhà ở gia đình
-
Phong cách: Hiện đại, mái lệch phá cách.

1. Tại sao mẫu nhà cấp 4 mái lệch lại “lên ngôi” trong năm 2026?
Nói thật với anh em, cái thời mà nhà nào cũng giống nhà nào đã qua rồi. Năm 2026, khách hàng của Techhome tại khu vực Tây Nguyên như Gia Lai bắt đầu tìm kiếm sự khác biệt. Mẫu nhà cấp 4 mái lệch không chỉ mang lại diện mạo trẻ trung mà còn cực kỳ phù hợp với khí hậu đặc thù tại đây.
Sự kết hợp giữa các mảng khối vuông vức và hệ mái dốc không đối xứng tạo nên một hiệu ứng thị giác mạnh mẽ. Với diện tích 100 m2, đây là con số “vàng” cho những gia đình trẻ có từ 3-4 thành viên. Không quá rộng để gây lãng phí, nhưng cũng không quá hẹp để cảm thấy bí bách.

2. Phân tích kiến trúc ngoại thất: Sự giao thoa của màu sắc và hình khối
Nhìn vào phối cảnh 3D của mẫu nhà cấp 4 mái lệch này, điểm ấn tượng đầu tiên chính là cách phối màu cực kỳ “mát mắt”. Techhome đã sử dụng tone màu trắng chủ đạo kết hợp cùng xanh pastel và các mảng nhấn xám ghi, tạo cảm giác thanh lịch và bền bỉ với thời gian.
Hệ mái lệch đặc trưng
Hệ mái được thiết kế phân tầng, tạo độ cao thấp khác nhau. Điều này không chỉ giúp thoát nước mưa cực nhanh (rất quan trọng với mùa mưa tại Gia Lai) mà còn tạo ra các khe thoáng khí tự nhiên, giúp ngôi nhà luôn mát mẻ. Đây chính là ưu điểm lớn nhất khiến nhiều chủ đầu tư lựa chọn mẫu nhà cấp 4 mái lệch.
Chi tiết trang trí mặt tiền
-
Cột trụ: Thiết kế vuông vức với phần chân ốp đá màu tối, tạo sự vững chãi cho công trình.
-
Cửa sổ & Cửa chính: Sử dụng hệ nhôm kính Xingfa cao cấp. Việc dùng kính cường lực giúp tận dụng tối đa ánh sáng tự nhiên, giúp không gian 100 m2 trở nên rộng rãi hơn thực tế rất nhiều.
-
Hệ đèn trang trí: Các điểm đèn led âm trần tại sảnh chính giúp ngôi nhà lung linh hơn khi về đêm.

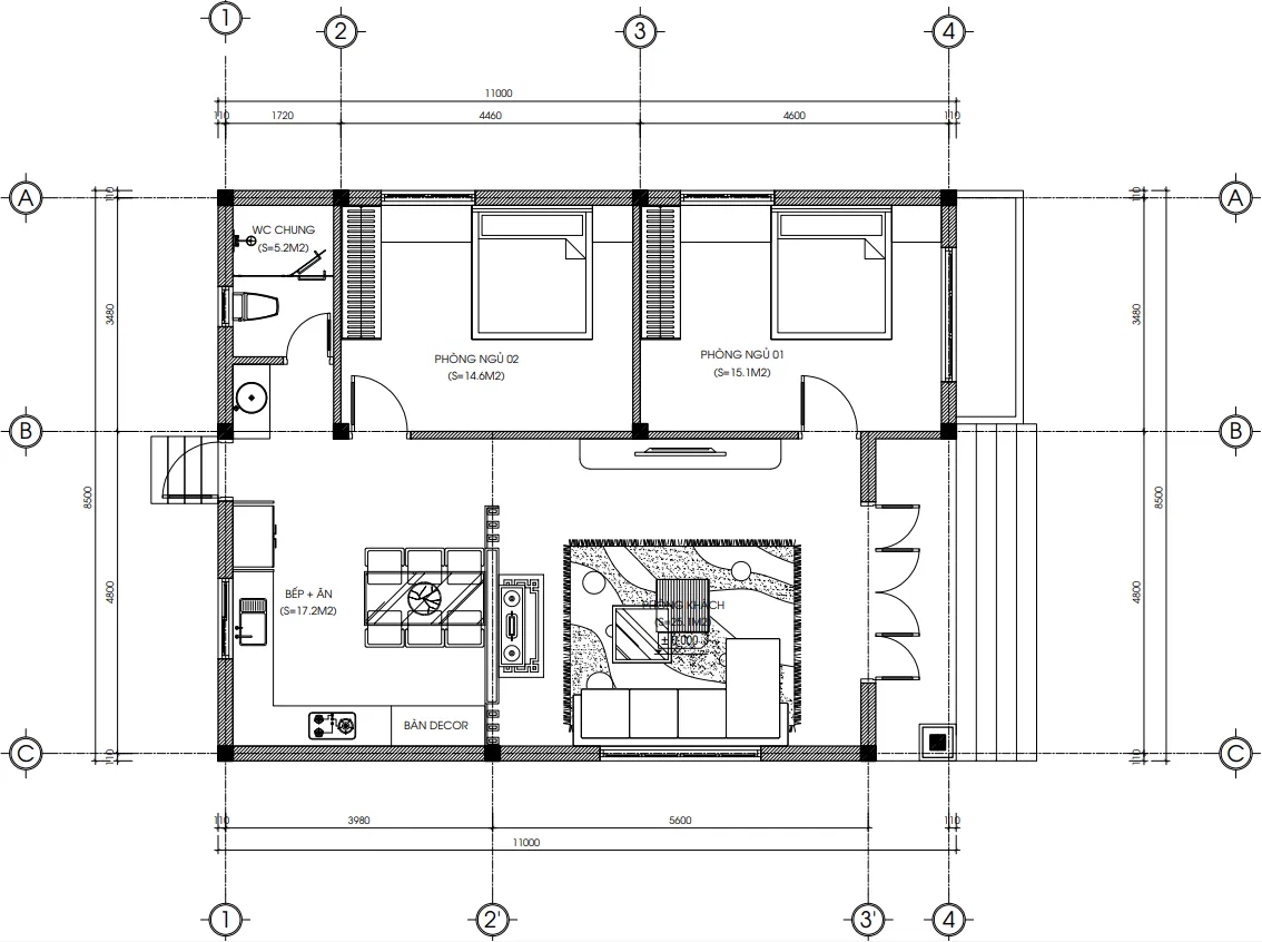
3. Bản vẽ công năng chi tiết: Tối ưu đến từng cm2
Một mẫu nhà cấp 4 mái lệch đẹp thôi là chưa đủ, nó phải đáp ứng được nhu cầu sinh hoạt thực tế. Dưới đây là cách mà các KTS Techhome bố trí không gian cho nhà anh Nam:
| Không gian | Diện tích | Đặc điểm |
| Phòng khách | 25.1 m2 | Kết nối trực tiếp với sảnh chính, thoáng đãng. |
| Bếp + Phòng ăn |
17.2 m2 |
Thiết kế hiện đại, có khu vực bàn decor riêng. |
| Phòng ngủ 01 |
15.1 m2 |
Cửa sổ lớn, đón nắng gió tự nhiên. |
| Phòng ngủ 02 |
14.6 m2 |
Không gian ấm cúng, nội thất tối giản. |
| WC chung |
5.2 m2 |
Thiết kế sạch sẽ, đầy đủ thiết bị vệ sinh cao cấp. |
Việc bố trí 2 phòng ngủ sát nhau giúp gia đình dễ dàng tương tác, trong khi khu vực bếp và phòng khách được ngăn cách khéo léo để đảm bảo sự riêng tư nhưng vẫn giữ được sự thông thoáng cho tổng thể mẫu nhà cấp 4 mái lệch.

4. Dự toán chi phí xây dựng (Báo giá tham khảo 2026)
Để anh em dễ hình dung và chuẩn bị tài chính, Techhome xin đưa ra bảng báo giá dự kiến cho mẫu nhà cấp 4 mái lệch diện tích 100 m2 tại khu vực Gia Lai:
| Hạng mục | Đơn giá (VNĐ/m2) | Thành tiền (VNĐ) |
| Thiết kế kiến trúc | 108.000 – 130.000 | 10.800.000 – 13.000.000 |
| Xây dựng phần thô | 4.000.000 | 400.000.000 |
| Hoàn thiện (Gói khá) | 2.500.000 | 250.000.000 |
| Tổng cộng | 6.500.000 | 650.000.000 |
Với mức đầu tư chỉ hơn 600 triệu đồng, bạn đã có thể sở hữu một mẫu nhà cấp 4 mái lệch hiện đại, đầy đủ tiện nghi và bền vững.
Lưu ý: Đây chỉ là mức chi phí ước tính. Để nhận được báo giá chính xác và chi tiết nhất cho công trình của bạn, vui lòng liên hệ trực tiếp với chúng tôi. Hoặc để tìm hiểu rõ hơn về tiêu chuẩn vật liệu xây dựng và các yếu tố ảnh hưởng đến chi phí, bạn có thể tham khảo thêm tại các bài viết chuyên sâu về vật liệu xây dựng cao cấp trên Wikipedia.

5. Góc chuyên gia: Lời khuyên khi xây dựng nhà mái lệch
Là một chuyên gia tại Techhome, tôi có vài điều “gan ruột” muốn chia sẻ với các bạn khi thi công mẫu nhà cấp 4 mái lệch:
-
Chú trọng chống thấm: Do đặc điểm mái có độ dốc khác nhau, các điểm giao giữa hai mái rất dễ bị thấm nếu thi công không chuẩn. Hãy chắc chắn rằng đơn vị thi công xử lý kỹ phần chống thấm.
-
Lựa chọn vật liệu cách nhiệt: Dù mái lệch giúp thoát nhiệt tốt, nhưng ở Gia Lai nắng khá gắt. Bạn nên dùng thêm tôn lạnh hoặc lớp lót cách nhiệt dưới mái cho mẫu nhà cấp 4 mái lệch của mình.
-
Tận dụng khoảng lệch: Phần lệch của mái có thể thiết kế thêm các ô cửa kính nhỏ để lấy sáng cho phần gác lửng (nếu có) hoặc làm thông tầng, cực kỳ hiệu quả về thẩm mỹ.

6. Tại sao nên chọn Techhome cho tổ ấm của bạn?
Chúng tôi không chỉ bán bản vẽ, chúng tôi bán giải pháp sống. Mẫu nhà cấp 4 mái lệch của anh Nam tại Gia Lai là minh chứng cho sự tận tâm và chuyên nghiệp của đội ngũ KTS và cộng sự.
-
Chính xác: Mọi thông số kỹ thuật được tính toán kỹ lưỡng, đảm bảo độ bền trên 50 năm.
-
Chân thật: Chúng tôi báo giá rõ ràng, không phát sinh chi phí “ngầm”.
-
Đời thường: Thiết kế của Techhome luôn hướng tới sự tiện dụng nhất cho sinh hoạt hàng ngày của người Việt.
Nếu bạn đang tìm kiếm một mẫu nhà cấp 4 mái lệch vừa túi tiền nhưng vẫn phải “chất”, đừng ngần ngại liên hệ với chúng tôi qua Hotline: 036.273.2222
Kết luận
Mẫu nhà cấp 4 mái lệch 100 m2 không chỉ là một công trình kiến trúc, nó là biểu tượng cho phong cách sống hiện đại, năng động. Techhome tự hào là đơn vị đồng hành cùng hàng ngàn gia đình Việt trên hành trình xây dựng tổ ấm. Hãy để chúng tôi giúp bạn hiện thực hóa ý tưởng về một mẫu nhà cấp 4 mái lệch đẹp như mơ!
CÔNG TY CỔ PHẦN KIẾN TRÚC VÀ XÂY DỰNG TECHHOME
🏠 Website: https://nhadeptechhome.vn/
☎️ Hotline: 036.273.2222
📍 Địa chỉ: B1.1 LK18 Ô 3 – KĐT Thanh Hà – Cienco 5 – Thanh Oai- Hà Nội.
