Khi vẻ đẹp hiện đại lên ngôi trong kiến trúc nông thôn
Năm 2025, xu hướng nhà mái chéo 1 tầng đang “làm mưa làm gió” tại các tỉnh đồng bằng Bắc Bộ, đặc biệt là Hưng Yên – nơi giao thoa giữa truyền thống và hiện đại.
Không chỉ vì vẻ ngoài độc đáo, kiểu mái chéo còn thể hiện gu thẩm mỹ mới mẻ, tinh tế và trẻ trung, phù hợp với lối sống hiện đại của các gia đình trẻ.
Trong số đó, ngôi nhà của anh Bình tại Tiên Lữ – Hưng Yên do Techhome thiết kế và thi công trọn gói đã trở thành một biểu tượng của xu hướng kiến trúc mới, khiến ai đi qua cũng phải ngoái nhìn.
📋 Thông tin tổng quan công trình nhà mái chéo 1 tầng
-
Chủ đầu tư: Anh Bình
-
Địa điểm: Tiên Lữ – Hưng Yên
-
Hạng mục: Thiết kế & Thi công trọn gói
-
Đơn vị thực hiện: Công ty TNHH Techhome
-
Diện tích xây dựng: Khoảng 160m²
-
Công năng: 3 phòng ngủ, 1 phòng khách, bếp + ăn, 3 WC, giặt – phơi
-
Phong cách kiến trúc: Hiện đại – mái chéo độc bản
-
Năm hoàn thiện: 2025
🧱 Thiết kế nhà mái chéo 1 tầng – Tuyên ngôn của sự khác biệt
Điểm nổi bật nhất của công trình chính là phần mái chéo 2 lớp đan xen nhau, tạo cảm giác chuyển động mềm mại nhưng vẫn vững chãi.
Khối mái lệch cao – thấp được tính toán kỹ theo hướng nắng và lưu thông gió tự nhiên, giúp ngôi nhà luôn mát mẻ, tiết kiệm năng lượng, đồng thời tạo hiệu ứng thẩm mỹ cực kỳ ấn tượng khi nhìn từ xa.
“Mái chéo – không chỉ là thiết kế, mà là tuyên ngôn của phong cách sống hiện đại.” – KTS Techhome chia sẻ.
🏠 Phối cảnh tổng thể – Giản dị nhưng cuốn hút
Tổng thể công trình nhà mái chéo 1 tầng được bố trí cân đối, với hình khối vuông vức, mặt tiền chia nhịp hợp lý.
Tông màu chủ đạo trắng sáng – xám ghi – điểm nâu gỗ giúp ngôi nhà vừa hiện đại, vừa gần gũi thiên nhiên.
Các chi tiết lam gỗ đứng và tường ốp đá granit sẫm màu ở mặt tiền được thiết kế theo tỷ lệ vàng, vừa tạo chiều sâu vừa tôn lên dáng mái chéo độc đáo.
Ban ngày, ánh sáng chiếu qua khoảng thông gió, khe lam và ô cửa kính lớn, phản chiếu lên nền tường sáng – một khung cảnh tinh tế như trong các mẫu biệt thự resort.
Buổi tối, hệ đèn led hắt sáng khiến ngôi nhà bừng lên như viên ngọc trong khu phố.
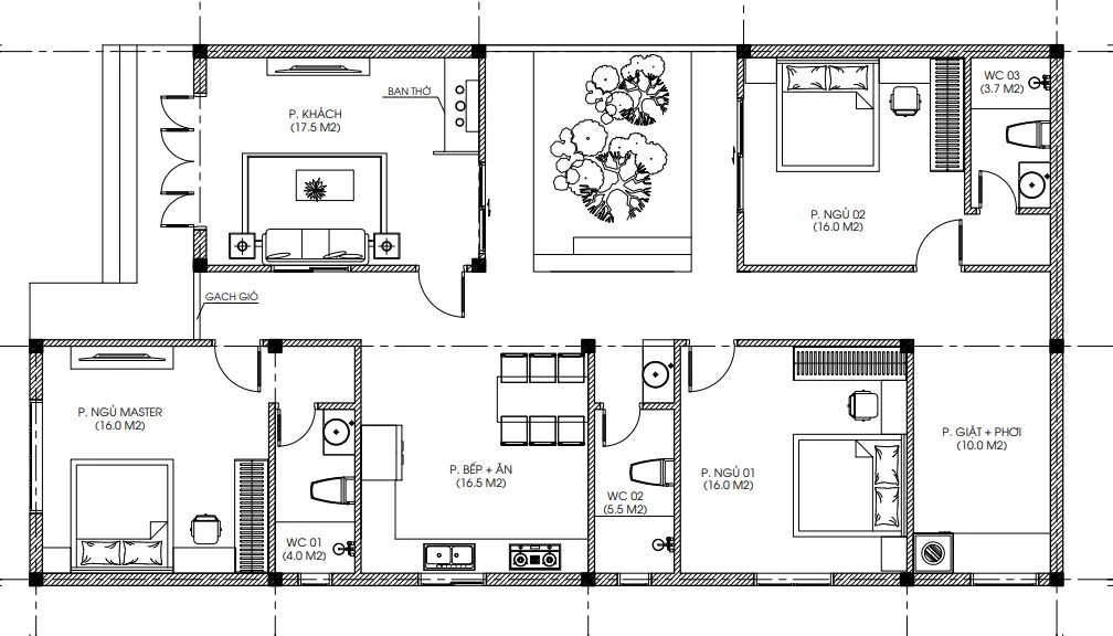
🧩 Mặt bằng công năng – Tối ưu từng mét vuông sử dụng

🔹 Phòng khách (17.5 m²) – Không gian mở kết nối tự nhiên
Bước qua cánh cửa chính, phòng khách rộng thoáng hiện ra với thiết kế mở, liền kề khu bàn thờ truyền thống – nơi con cháu thể hiện lòng hiếu kính.
Các mảng tường gạch gió vừa đảm bảo riêng tư, vừa giúp không gian lưu thông khí tốt hơn, mang lại phong thủy vượng khí, an lành.
🔹 Phòng bếp + ăn (16.5 m²) – Gắn kết yêu thương gia đình
Khu bếp – ăn được Techhome bố trí ngay trung tâm ngôi nhà, thuận tiện giao thông và đón ánh sáng từ sân trong.
Hệ tủ bếp chữ L kết hợp đảo mini giúp tối ưu diện tích, đồng thời tạo điểm nhấn hiện đại.
Gam màu gỗ ấm áp kết hợp nền trắng khiến không gian vừa sang trọng, vừa gần gũi.
🔹 3 Phòng ngủ (từ 16 m² – 18 m²) – Riêng tư nhưng không tách biệt
Mỗi phòng ngủ được thiết kế theo phong cách tối giản, thông thoáng và tràn ngập ánh sáng tự nhiên.
Phòng Master có WC riêng, cửa sổ hướng sân vườn, tạo cảm giác thư giãn và yên bình.
Hai phòng còn lại được bố trí logic, phù hợp cho con cái và khách đến chơi nhà.
“Cảm giác yên tĩnh, mát mẻ và thoải mái – đó là điều Techhome luôn hướng tới trong từng thiết kế.”
🔹 Khu giặt + phơi (10 m²) – Tiện nghi và kín đáo
Phía sau cùng là khu giặt – phơi được che chắn khéo léo, đảm bảo thông thoáng, riêng tư, thuận tiện sinh hoạt hàng ngày.
🌿 Khoảng thông tầng & sân trong – Bí quyết tạo nên sự tươi mát
Techhome đã tinh tế bố trí một khoảng sân giữa nhà – nơi trồng cây xanh và tạo luồng gió tự nhiên.
Khu vực này không chỉ mang yếu tố thẩm mỹ, mà còn giúp cân bằng năng lượng trong nhà, cải thiện vi khí hậu, giảm nhiệt độ trong mùa hè.
Đây chính là “khoảng thở” của ngôi nhà – nơi kết nối con người và thiên nhiên.
🧱 Chất liệu & thi công – Bền vững theo năm tháng
-
Tường 20cm xây gạch đặc, sơn ngoại thất chống thấm Jotun 5 lớp.
-
Mái lợp ngói Fuji màu đen than, chống nóng & cách âm vượt trội.
-
Cửa nhôm Xingfa + kính cường lực 12mm giúp lấy sáng và chống ồn.
-
Lam gỗ nhựa ngoài trời chịu nắng mưa tốt, tuổi thọ hơn 15 năm.
-
Đá ốp chân tường đen vân mây chống rêu mốc và dễ vệ sinh.
Mọi chi tiết đều được thi công chuẩn kỹ thuật, tỉ mỉ từng centimet, đúng với triết lý của Techhome:
Để tìm hiểu rõ hơn về tiêu chuẩn vật liệu xây dựng và các yếu tố ảnh hưởng đến chi phí, bạn có thể tham khảo thêm tại các bài viết chuyên sâu về vật liệu xây dựng cao cấp trên Wikipedia.
“Thiết kế tinh tế – Thi công chuẩn xác – Bền đẹp theo thời gian.”
💬 Chia sẻ từ chủ đầu tư – Anh Bình (Tiên Lữ, Hưng Yên)
“Ban đầu tôi chỉ nghĩ xây nhà 1 tầng đơn giản, nhưng khi gặp Techhome, tôi thay đổi hoàn toàn suy nghĩ.
Mẫu nhà mái chéo 1 tầng này không chỉ đẹp mà còn tiện nghi, mát mẻ quanh năm.
Gia đình tôi rất hài lòng – hàng xóm ai cũng khen!”
🔥 Vì sao nhà mái chéo 1 tầng đang là xu hướng hot tại Hưng Yên?
-
Thiết kế hiện đại – khác biệt hoàn toàn với nhà mái bằng, mái thái truyền thống.
-
Tối ưu công năng, tận dụng ánh sáng & gió tự nhiên.
-
Thích hợp cho quỹ đất vừa phải (120 – 180m²), phổ biến tại vùng nông thôn mới.
-
Đáp ứng thẩm mỹ thế hệ trẻ, vừa hiện đại, vừa giữ nét gần gũi truyền thống.
Công trình của anh Bình chính là hình mẫu lý tưởng cho xu hướng “Sống xanh – Kiến trúc thông minh” mà Techhome đang lan tỏa.
🏆 Techhome – Đơn vị tiên phong trong thiết kế và thi công nhà mái chéo hiện đại
Với hàng trăm công trình trên khắp miền Bắc, Techhome không chỉ là đơn vị thi công, mà còn là người đồng hành kiến tạo tổ ấm cho mỗi gia đình Việt.
🔹 Điểm khác biệt của Techhome:
-
Thiết kế độc quyền – không trùng lặp, tối ưu theo nhu cầu từng gia chủ.
-
Thi công trọn gói – cam kết không phát sinh chi phí.
-
Bảo hành kết cấu 5 năm, bảo trì trọn đời.
-
Đội ngũ kỹ sư, kiến trúc sư chuyên nghiệp, tận tâm.
-
Đưa phong cách “kiến trúc resort” về trong từng ngôi nhà Việt.
💡 Kết luận – Kiến tạo giá trị sống bền vững cùng Techhome
Ngôi nhà mái chéo 1 tầng của anh Bình tại Tiên Lữ, Hưng Yên không chỉ là không gian sinh hoạt, mà còn là tác phẩm nghệ thuật sống, dung hòa giữa thẩm mỹ, công năng và cảm xúc.
Đây chính là lời giải cho xu hướng kiến trúc hiện đại 2025 – nơi con người tìm thấy sự an yên trong chính tổ ấm của mình.
“Mỗi ngôi nhà là một câu chuyện – và Techhome chính là người kể chuyện bằng kiến trúc.”
📞 Liên hệ ngay với Techhome để được tư vấn và báo giá trọn gói
-
Hotline: 0364 042 222 – 0387 603 333
-
Địa chỉ: B1.1 LK17 – Ô số 4, KĐT Thanh Hà, Thanh Oai, Hà Nội
- Xem thêm các dự án nổi bật khác của Techhome tại https://nhadeptechhome.vn/






