Nhiều người hay bảo: “Xây nhà ở quê thì cứ phải mái Thái, mái Nhật cho nó hoành tráng”. Nhưng với anh Dũng tại Thái Bình, anh lại có một cái nhìn rất khác. Anh tìm đến Techhome với một đề bài khá “gắt”: Phải hiện đại, phải thoáng nhưng không được quá phô trương. Và thế là, mẫu nhà 2 tầng hiện đại này đã ra đời, mang đúng hơi thở của sự tinh tế và tiện nghi.
Nói thật với các bác, làm nghề thiết kế cái sướng nhất là gặp được gia chủ “hợp gu”. Anh Dũng thích cái nét phẳng phiu của kiến trúc hiện đại, thích cái cách mà ánh sáng tự nhiên len lỏi qua từng ô cửa kính lớn. Hôm nay, tôi sẽ “mổ xẻ” chi tiết hồ sơ thiết kế này để các bác thấy vì sao đây lại là xu hướng được săn đón nhất năm 2026.

1. Kiến trúc ngoại thất: Sự kết hợp hoàn mỹ giữa đá và kính
Nhìn vào phối cảnh 3D, điểm đập vào mắt đầu tiên chính là sự bề thế nhưng lại cực kỳ thanh thoát. Techhome không sử dụng những hoa văn phào chỉ rườm rà. Thay vào đó, chúng tôi tập trung vào những mảng khối vuông vức và vật liệu cao cấp.
-
Mặt tiền ốp đá sang trọng: Toàn bộ mặt tiền tầng 1 và một phần tầng 2 được sử dụng đá ốp vân loang xám. Việc ốp đá không chỉ giúp căn nhà trông “xịn” hơn mà còn cực kỳ bền màu, chống thấm tốt với khí hậu nồm ẩm đặc trưng của Thái Bình.
-
Hệ cửa kính lớn: Để tận dụng tối đa view nhìn và ánh sáng, hệ cửa nhôm kính Xingfa màu đen tuyền được ưu tiên sử dụng. Đây là linh hồn của mẫu nhà 2 tầng hiện đại, giúp kết nối không gian bên trong và bên ngoài, xóa tan cảm giác bí bách của những bức tường bê tông.
-
Điểm nhấn xanh: Các khoảng ban công và bồn hoa được bố trí khéo léo giúp căn nhà lúc nào cũng tràn đầy sức sống. Các bác cứ tưởng tượng, sáng sớm thức dậy mở cửa ban công, thấy màu xanh của cây lá ngay trước mắt thì tinh thần nó cũng thư thái hẳn.

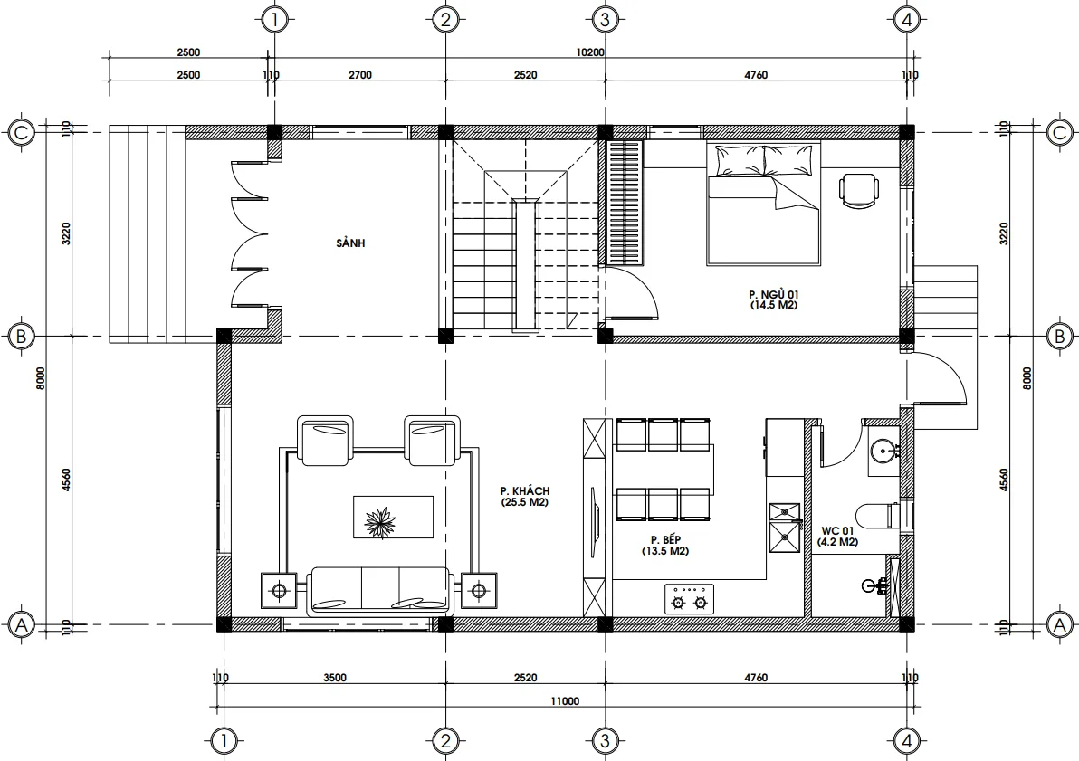
2. Công năng tầng 1: Không gian sinh hoạt chung ấm cúng
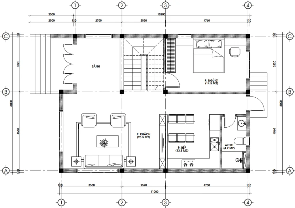
Dưới góc độ chuyên gia, tôi đánh giá cao cách bố trí của căn nhà này. Tầng 1 có diện tích sàn là 95.0m2. Đây là diện tích “vàng” cho một gia đình 2-3 thế hệ.
Phòng khách – “Bộ mặt” của gia chủ
Bước qua sảnh chính rộng rãi , chúng ta sẽ tiến vào phòng khách rộng 25.5m2. Với diện tích này, các bác có thể thoải mái đặt một bộ sofa chữ L lớn và một kệ tivi hiện đại. Điểm cộng lớn nhất ở đây là hệ cửa kính kịch trần, ngồi trong nhà mà cảm giác như đang ở resort vậy.
Bếp và phòng ăn – Nơi giữ lửa yêu thương
Phòng bếp có diện tích 13.5m2, được thiết kế mở nối liền với phòng khách. Cách bố trí này cực kỳ thông minh trong các mẫu nhà 2 tầng hiện đại vì nó giúp không gian trở nên thông thoáng, người nội trợ vừa nấu ăn vừa có thể trò chuyện với người thân ở phòng khách.
Phòng ngủ tầng 1 cho người già
Hiểu được tâm lý các gia đình Việt thường có người lớn tuổi ngại leo cầu thang, Techhome đã bố trí 1 phòng ngủ rộng 14.5m2 ngay tại tầng 1. Phòng ngủ này được đặt ở vị trí yên tĩnh, có cửa sổ lấy sáng tự nhiên, đảm bảo sức khỏe cho các cụ.
Ngoài ra, tầng 1 còn có 1 nhà vệ sinh chung 4.2m2 được bố trí cuối nhà để tiết kiệm diện tích.

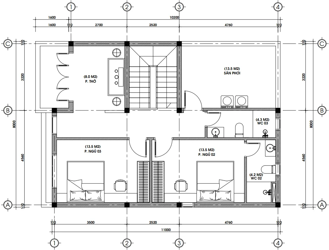
3. Công năng tầng 2: Riêng tư và tôn nghiêm
Nếu tầng 1 là nơi náo nhiệt thì tầng 2 lại là khoảng lặng bình yên. Với diện tích 85.0m2, công năng được chia nhỏ cực kỳ khoa học:
-
Phòng thờ (8.0m2): Được đặt ở vị trí trang trọng nhất, hướng ra mặt tiền của căn nhà. Đây là nơi con cháu bày tỏ lòng thành kính với tổ tiên. Việc ngăn tách bằng vách gỗ trang trí giúp phòng thờ vừa thông thoáng vừa giữ được sự tĩnh lặng cần thiết.
-
02 Phòng ngủ (13.5m2 mỗi phòng): Được thiết kế vuông vức, dễ dàng kê đồ nội thất. Các phòng đều có cửa sổ lớn để đón gió trời, cực kỳ tốt cho giấc ngủ.
-
Hệ thống vệ sinh: Tầng 2 có thêm 2 WC (4.2m2 và 4.3m2) đảm bảo sự riêng tư tuyệt đối cho từng thành viên.
-
Sân phơi (13.5m2): Một khoảng sân phơi rộng rãi phía sau giúp căn nhà luôn gọn gàng, sạch sẽ. Đây cũng là nơi các bác có thể trồng thêm rau sạch hoặc đặt một bộ bàn trà nhỏ ngắm sao đêm.

4. Chi tiết kỹ thuật “đắt giá”
Một mẫu nhà 2 tầng hiện đại hoàn hảo không chỉ ở cái mã bên ngoài mà còn ở những con số kỹ thuật chuẩn chỉ.
-
Cầu thang 21 bậc: Theo phong thủy, 21 là con số “Sinh”, mang lại may mắn và tài lộc cho gia chủ. Chiều cao bậc 176mm là kích thước cực kỳ vừa vặn, giúp việc di chuyển không bị mỏi chân.
-
Chiều cao tầng lý tưởng: Tầng 1 cao 3.7m và tầng 2 cao 3.5m. Chiều cao này giúp không gian bên trong luôn thoáng đạt, dễ dàng lắp đặt trần thạch cao và hệ thống đèn âm trần hiện đại.
-
Giải pháp mái: Căn nhà sử dụng mái bằng, bên trên có lớp tôn chống nóng và bồn nước, thái dương năng. Cách làm này vừa tiết kiệm chi phí, vừa dễ dàng bảo trì và tận dụng tối đa diện tích sàn mái.

5. Báo giá tham khảo xây dựng mẫu nhà 2 tầng hiện đại
Để các bác dễ hình dung và chuẩn bị tài chính, tôi xin đưa ra bảng dự toán sơ bộ cho mẫu nhà này (Lưu ý: Giá có thể thay đổi tùy vào thời điểm và loại vật liệu hoàn thiện):
| Hạng mục | Đơn giá tham khảo (VNĐ/m2) | Thành tiền (Ước tính) |
| Thi công phần thô | 3.800.000 – 4.200.000 | Khoảng 700 – 800 Triệu |
| Hoàn thiện cơ bản | 2.000.000 – 3.000.000 | Khoảng 400 – 500 Triệu |
| Nội thất gỗ công nghiệp | Tùy chọn | 150 – 250 Triệu |
| Tổng cộng gói chìa khóa trao tay | ~ 6.500.000 – 7.500.000 | Khoảng 1.2 – 1.4 Tỷ |
Lưu ý: Đây chỉ là mức chi phí ước tính. Để nhận được báo giá chính xác và chi tiết nhất cho công trình của bạn, vui lòng liên hệ trực tiếp với chúng tôi. Hoặc để tìm hiểu rõ hơn về tiêu chuẩn vật liệu xây dựng và các yếu tố ảnh hưởng đến chi phí, bạn có thể tham khảo thêm tại các bài viết chuyên sâu về vật liệu xây dựng cao cấp trên Wikipedia.

6. Tại sao bạn nên chọn Techhome làm đơn vị thiết kế và thi công?
Thị trường bây giờ nhiều đơn vị thiết kế lắm, nhưng tại sao anh Dũng lại tin tưởng Techhome?
-
Hồ sơ chi tiết, minh bạch: Từ bản vẽ định vị công trình đến chi tiết từng bậc cầu thang đều được tính toán kỹ lưỡng.
-
Đội ngũ kiến trúc sư tâm huyết: KTS và cộng sự luôn lắng nghe để đưa ra giải pháp tối ưu nhất cho gia chủ.
-
Hỗ trợ kỹ thuật 24/7: Số hotline 0364042222 – 0387603333 luôn sẵn sàng giải đáp mọi thắc mắc của các bác ngay tại công trường.
-
Tư vấn theo phong thủy: Chúng tôi không chỉ xây nhà để ở, chúng tôi xây nhà để gia chủ “phát”.

7. Góc nhìn chuyên gia: Những lưu ý khi làm mẫu nhà 2 tầng hiện đại
Ngoài những thông tin trong hồ sơ của anh Dũng, tôi muốn chia sẻ thêm với các bác 3 điều “sống còn” khi làm kiểu nhà này:
-
Đừng tiết kiệm tiền cửa nhôm kính: Nhà hiện đại dùng rất nhiều kính. Nếu các bác dùng loại rẻ tiền, sau 1-2 năm nó sẽ bị xệ cánh, ngấm nước mưa hoặc cách âm kém. Hãy ưu tiên dùng nhôm Xingfa chính hãng hoặc các dòng nhôm hệ cao cấp.
-
Chống thấm mái bằng: Đây là “gót chân Achilles” của nhà mái bằng. Hãy yêu cầu đơn vị thi công xử lý chống thấm bằng màng khò hoặc các loại sơn chống thấm chuyên dụng 3-4 lớp. Đừng để đến lúc tường mốc mới đi chữa thì mệt lắm.
-
Hệ thống ánh sáng: Với mẫu nhà 2 tầng hiện đại, ánh sáng vàng nhẹ sẽ làm tôn lên vẻ đẹp của các mảng đá ốp. Hãy kết hợp đèn led dây, đèn âm trần và đèn rọi ray để tạo chiều sâu cho không gian.
Nếu các bác đang sở hữu một mảnh đất ở quê và muốn thay đổi tư duy kiến trúc, muốn một không gian sống “chất” như anh Dũng ở Thái Bình, đừng ngần ngại liên hệ với Techhome. Chúng tôi sẽ cùng các bác kiến tạo nên những giá trị bền vững.
Mẫu nhà 2 tầng hiện đại không chỉ là một công trình, đó là lời khẳng định về phong cách sống của bạn!
TECHHOME – Kiến tạo không gian, dựng xây hạnh phúc.
-
Website: https://nhadeptechhome.vn/
-
Hotline: 036.273.2222
- Địa chỉ: B1.1 LK18 Ô 3 – KĐT Thanh Hà – Cienco 5 – Thanh Oai- Hà Nội.
Hy vọng bài viết này mang lại cái nhìn chân thực nhất cho các bác. Chúc các bác sớm có được ngôi nhà mơ ước!
