Mẫu nhà phố 3 tầng mái Nhật: Đỉnh cao sang trọng tại Chí Linh – Hải Dương

Xây nhà là chuyện cả đời, và ai trong chúng ta chẳng mơ về một tổ ấm vừa để ở, vừa có thể kinh doanh mà vẫn giữ được nét sang trọng, tinh tế? Nếu bạn đang tìm kiếm một ý tưởng hội tụ đủ các yếu tố: Thẩm mỹ hiện đại, công năng thông minh và phong thủy hài hòa, thì mẫu nhà phố 3 tầng mái Nhật của gia đình anh Nam tại Chí Linh chính là “chân ái” mà bạn không thể bỏ qua.

Hôm nay, hãy cùng Techhome “mổ xẻ” chi tiết hồ sơ thiết kế này để thấy tại sao kiến trúc mái Nhật lại đang làm mưa làm gió trong năm 2026 nhé!

1. Tổng quan dự án: Sự kết hợp hoàn hảo giữa Techhome và Anh Nam

Dự án này được đội ngũ Kiến trúc sư tại Công ty Cổ phần Kiến trúc và Xây dựng Techhome dành rất nhiều tâm huyết. Chủ đầu tư là anh Nam , tọa lạc tại mảnh đất Chí Linh – Hải Dương đầy nắng gió.

Yêu cầu của anh Nam rất rõ ràng: “Tôi muốn một ngôi nhà hiện đại, mặt tiền phải thoáng để thuận tiện kinh doanh nhưng bên trong phải thật ấm cúng cho gia đình 3 thế hệ”. Và thế là, mẫu nhà phố 3 tầng mái Nhật mang mã số 646 đã ra đời.

Thông tin chung về công trình:

  • Chủ đầu tư: Anh Nam

  • Địa điểm: Chí Linh – Hải Dương

  • Đơn vị thiết kế: Techhome

  • Diện tích sàn: 89.0 m2

  • Phong cách: Hiện đại, mái Nhật hệ xanh đen.

Phối cảnh mặt tiền mẫu nhà phố 3 tầng mái Nhật hiện đại tại Chí Linh Hải Dương.
Phối cảnh mặt tiền mẫu nhà phố 3 tầng mái Nhật hiện đại tại Chí Linh Hải Dương.

2. Phân tích ngoại thất: Tại sao mẫu nhà phố 3 tầng mái Nhật lại cuốn hút đến thế?

Nhìn vào phối cảnh 3D, điều đầu tiên đập vào mắt chính là hệ mái Nhật đặc trưng. Khác với mái Thái có độ dốc lớn và nhọn, mẫu nhà phố 3 tầng mái Nhật có độ dốc vừa phải, mở rộng ra các hướng, tạo cảm giác thanh thoát và bề thế.

Màu sắc và chất liệu

Sự kết hợp giữa tông màu trắng sứ chủ đạo cùng các mảng tường ốp đá marble xám ở tầng 1 tạo nên một diện mạo vô cùng hiện đại. Techhome đã khéo léo sử dụng các khung cửa nhôm kính Xingfa màu đen tuyền để tạo điểm nhấn tương phản mạnh mẽ.

Đặc biệt, hệ thống ban công kính cường lực xuyên suốt các tầng không chỉ giúp ngôi nhà “ăn gian” diện tích mà còn giúp gia chủ có tầm nhìn bức tranh toàn cảnh cực đẹp ra phố phường Chí Linh.

Ánh sáng và không gian xanh

Bạn có để ý những chậu cây bonsai và tiểu cảnh xanh được bố trí khéo léo ở các góc ban công không? Trong mẫu nhà phố 3 tầng mái Nhật này, yếu tố “mộc” được đưa vào để cân bằng lại sự cứng cáp của bê tông và kính, mang lại cảm giác thư thái mỗi khi trở về nhà.

Góc nghiêng mẫu nhà phố 3 tầng mái Nhật


3. Chi tiết công năng: Tối ưu đến từng milimet

Một ngôi nhà đẹp mà không tiện dụng thì cũng chỉ là “vỏ rỗng”. Với diện tích 89.0 m2 mỗi sàn, các kiến trúc sư Techhome đã bố trí layout cực kỳ khoa học.

Tầng 1: Không gian kinh doanh và bếp ấm cúng

Mặt bằng tầng 1 được ưu tiên cho mục đích kinh doanh với diện tích lên tới 36.0 m2.

  • Khu vực kinh doanh: Thiết kế mở, rộng rãi, dễ dàng bố trí showroom hoặc văn phòng.

  • Phòng Bếp + Ăn (16.5 m2): Nằm phía sau để đảm bảo sự riêng tư khi có khách ghé cửa hàng.

  • Tiện ích: Có khu vực tắm riêng (2.9 m2) và hệ thống WC Nam/Nữ tách biệt, rất tinh tế cho một không gian kết hợp kinh doanh.

  • Thông số kỹ thuật: Chiều cao tầng 1 là 3.9m, tạo sự thông thoáng tuyệt đối.

Bản vẽ bố trí công năng tầng 1 kết hợp kinh doanh diện tích 89m2.
Bản vẽ bố trí công năng tầng 1 kết hợp kinh doanh diện tích 89m2.

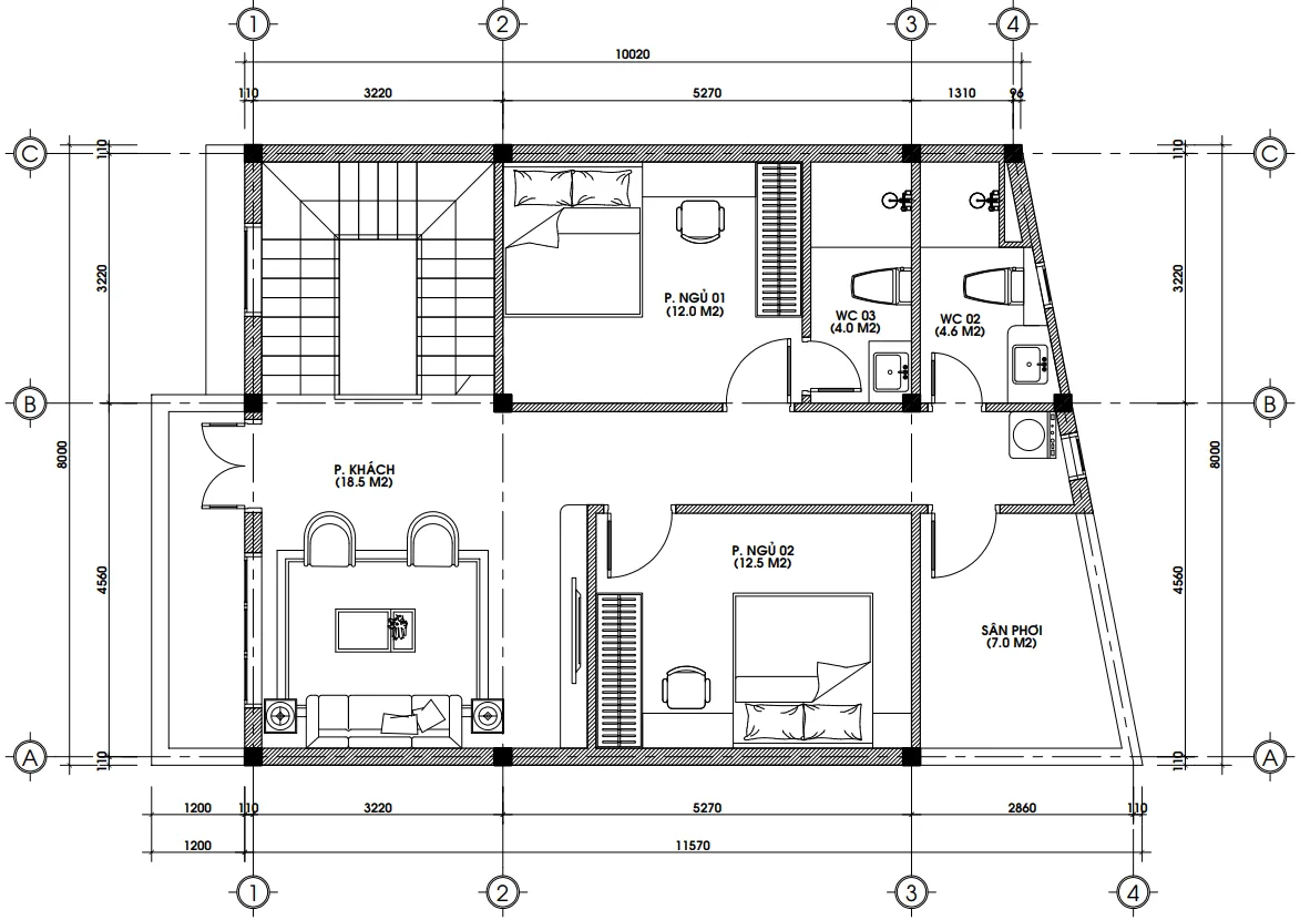
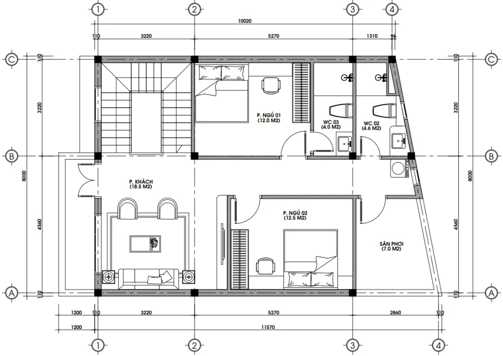
Tầng 2: Nơi gắn kết gia đình

Lên đến tầng 2, không gian hoàn toàn thuộc về sự riêng tư và nghỉ ngơi của mẫu nhà phố 3 tầng mái Nhật này.

  • Phòng Khách (18.5 m2): Nơi cả nhà cùng xem phim, trò chuyện sau bữa tối.

  • Hệ thống phòng ngủ: Gồm Phòng ngủ 01 (12.0 m2) kết hợp vệ sinh khép kín và Phòng ngủ 02 (12.5 m2). Mỗi phòng đều có cửa sổ lớn đón gió tự nhiên.

  • Vệ sinh: Bố trí 2 WC (WC 02 – 4.6 m2 và WC 03 – 4.0 m2) cực kỳ tiện lợi.

  • Sân phơi (7.0 m2): Được giấu khéo léo phía sau để không làm ảnh hưởng đến thẩm mỹ mặt tiền.

Bản vẽ tầng 2 gồm phòng khách và 2 phòng ngủ mẫu nhà phố 3 tầng mái Nhật.
Bản vẽ tầng 2 gồm phòng khách và 2 phòng ngủ mẫu nhà phố 3 tầng mái Nhật.

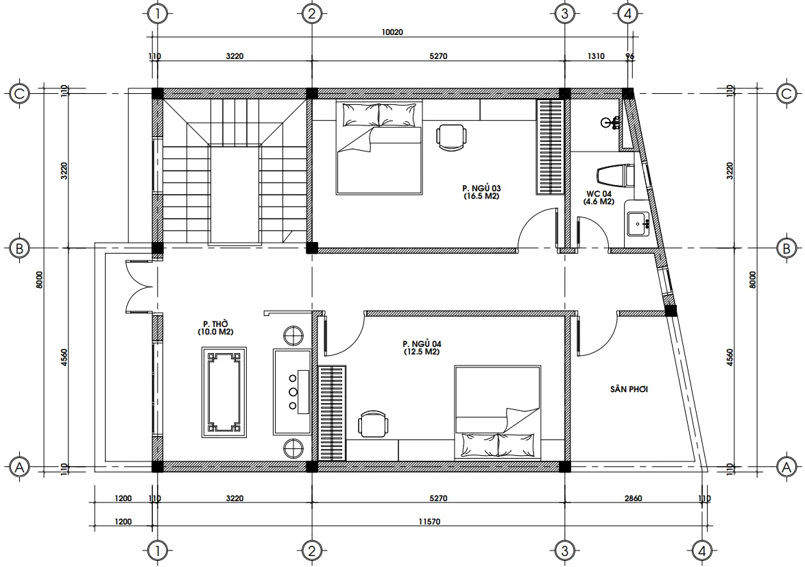
Tầng 3: Sự yên tĩnh và tâm linh

Tầng cao nhất của mẫu nhà phố 3 tầng mái Nhật là nơi dành cho những giá trị tinh thần.

  • Phòng Thờ (10.0 m2): Đặt ở vị trí trang trọng nhất, hướng ra ban công thoáng đãng.

  • Phòng ngủ bổ sung: Phòng ngủ 03 (16.5 m2) và Phòng ngủ 04 (12.5 m2)

  • Tiện ích: 1 WC (4.6 m2) và thêm một khoảng sân phơi rộng rãi.

Bản vẽ tầng 3 gồm phòng thờ và 2 phòng ngủ mẫu nhà phố 3 tầng mái Nhật.
Bản vẽ tầng 3 gồm phòng thờ và 2 phòng ngủ mẫu nhà phố 3 tầng mái Nhật.

4. Báo giá thi công trọn gói mẫu nhà phố 3 tầng mái Nhật (Dự kiến 2026)

Để bạn dễ dàng hình dung và chuẩn bị ngân sách cho mẫu nhà phố 3 tầng mái Nhật, Techhome xin đưa ra bảng báo giá tham khảo dựa trên quy mô công trình 89 m2/sàn:

Hạng mục Đơn giá (VNĐ/m2) Thành tiền (Tạm tính)
Thiết kế kiến trúc  108.000 ~ 29 Triệu
Xây dựng phần thô 3.800.000 – 4.200.000 ~ 1 – 1,2 Tỷ
Thi công trọn gói (Chìa khóa trao tay) 6.500.000 – 7.500.000 ~ 1,7 – 2 Tỷ

Lưu ý: Đây chỉ là mức chi phí ước tính. Để nhận được báo giá chính xác và chi tiết nhất cho công trình của bạn, vui lòng liên hệ trực tiếp với chúng tôi. Hoặc để tìm hiểu rõ hơn về tiêu chuẩn vật liệu xây dựng và các yếu tố ảnh hưởng đến chi phí, bạn có thể tham khảo thêm tại các bài viết chuyên sâu về vật liệu xây dựng cao cấp trên Wikipedia.

Góc nghiêng mẫu nhà phố 3 tầng mái Nhật


5. Tại sao bạn nên chọn Techhome để hiện thực hóa mẫu nhà phố 3 tầng mái Nhật?

Giữa hàng ngàn công ty kiến trúc, tại sao anh Nam lại trao trọn niềm tin cho Techhome? Câu trả lời nằm ở sự tử tế và chuyên nghiệp.

  1. Minh bạch từ con số: Hồ sơ thiết kế kỹ thuật của chúng tôi chi tiết đến từng bậc cầu thang (cao 156mm ở tầng 1 , 144mm ở tầng 2 ). Điều này giúp thợ thi công không bao giờ sai lệch.

  2. Đội ngũ thực chiến: Các kiến trúc sư luôn trực tiếp giám sát để đảm bảo bản vẽ và thực tế là một.

  3. Hỗ trợ kỹ thuật 24/7: Bất kể bạn ở đâu, chỉ cần nhấc máy gọi, đội ngũ Techhome luôn sẵn sàng giải đáp thắc mắc về kỹ thuật xây dựng.

Với mẫu nhà phố 3 tầng mái Nhật, chúng tôi không chỉ xây nhà, chúng tôi xây dựng sự an tâm cho khách hàng.

Tổng thể mẫu nhà phố 3 tầng mái Nhật lợp ngói màu xanh đen sang trọng nhìn từ trên cao.
Tổng thể mẫu nhà phố 3 tầng mái Nhật lợp ngói màu xanh đen sang trọng nhìn từ trên cao.

6. Góc chuyên gia: 3 bí kíp để mẫu nhà phố 3 tầng mái Nhật luôn bền đẹp

Ngoài các tiêu chí thiết kế, mình xin chia sẻ thêm với các bạn một vài kinh nghiệm thực tế khi triển khai mẫu nhà phố 3 tầng mái Nhật:

  • Chống thấm mái Nhật: Hệ mái này có nhiều điểm giao cắt. Hãy yêu cầu đơn vị thi công xử lý chống thấm cực kỹ tại các vị trí máng xối và điểm tiếp giáp tường để tránh thấm dột sau 2-3 năm sử dụng.

  • Lựa chọn màu ngói: Với mẫu nhà phố 3 tầng mái Nhật, ngói màu xanh ghi hoặc đen xám là lựa chọn an toàn và sang trọng nhất. Nó giúp ngôi nhà trông luôn mới và không bị lỗi mốt theo thời gian.

  • Hệ thống thoát nước tầng 1: Vì tầng 1 kết hợp kinh doanh, bạn nên bố trí hệ thống thoát nước sàn và hố ga thông minh để tránh mùi hôi và thuận tiện cho việc vệ sinh mặt bằng hàng ngày.

Chi tiết hệ mái Nhật và vị trí đặt téc nước năng lượng mặt trời tối ưu thẩm mỹ
Chi tiết hệ mái Nhật và vị trí đặt téc nước năng lượng mặt trời tối ưu thẩm mỹ

Kết luận

Mẫu nhà phố 3 tầng mái Nhật của anh Nam tại Hải Dương là một minh chứng cho việc diện tích không quá lớn vẫn có thể tạo nên một không gian sống đẳng cấp và đa năng. Nếu bạn cũng đang sở hữu một mảnh đất phố và muốn tối ưu hóa công năng như thế này, hãy để Techhome giúp bạn.

Chúng mình tin rằng, mỗi ngôi nhà đều kể một câu chuyện riêng. Hãy để chúng mình viết nên câu chuyện hạnh phúc cho gia đình bạn qua mẫu nhà phố 3 tầng mái Nhật hoàn hảo nhất!


Mọi chi tiết xin liên hệ:

CÔNG TY CỔ PHẦN KIẾN TRÚC VÀ XÂY DỰNG TECHHOME

  • Website: https://nhadeptechhome.vn/

  • Hotline: 036.273.2222

  • Địa chỉ: B1.1 LK18 Ô 3 – KĐT Thanh Hà – Cienco 5 – Thanh Oai- Hà Nội.

Để lại một bình luận

Email của bạn sẽ không được hiển thị công khai. Các trường bắt buộc được đánh dấu *

    Vui lòng nhấn nút YÊU CẦU TƯ VẤN và đợi 1 - 2 giây đến khi thấy thông báo thành công

    YÊU CẦU TƯ VẤN