
| Chủ đầu tư: Anh Ứng | Số tầng: 3 |
| Địa chỉ: Hải An, Hải Phòng | Diện tích xây dựng: 8m x 12m |
| Loại hình: Biệt thự la mã cổ điện | Tổng diện tích: 300m2 |
| Công năng:
Phòng khách, phòng thờ, phòng bếp, 4 phòng ngủ, 4 wc, phòng giặt, phòng trà, sân thượng tiểu cảnh |
|
Nhà biệt thự cổ điển – Biểu tượng của sự sang trọng và đẳng cấp
Ngay từ cái nhìn đầu tiên, mẫu nhà biệt thự cổ điển 3 tầng 8x12m tại Hải Phòng đã để lại ấn tượng mạnh nhờ vẻ đẹp sang trọng, bề thế và tinh tế trong từng chi tiết. Thiết kế mang phong cách cổ điển phương Tây, với những đường nét mềm mại, cột trụ hoa văn tinh xảo, kết hợp cùng hệ cửa vòm đặc trưng đã kiến tạo nên một công trình đẳng cấp, xứng tầm với gia chủ.
Phong cách cổ điển từ lâu đã trở thành chuẩn mực của sự xa hoa và quyền quý. Với sự sáng tạo của kiến trúc sư, công trình không chỉ tái hiện tinh hoa kiến trúc châu Âu mà còn được tối ưu để phù hợp với khí hậu, thói quen sinh hoạt của người Việt Nam.

Kiến trúc ngoại thất – Vẻ đẹp cổ điển trường tồn
Mặt tiền bề thế với hệ cột La Mã
Mặt tiền nhà biệt thự cổ điển nổi bật với hệ cột trụ lớn phong cách La Mã trang trí hoa văn cầu kỳ, tạo nên vẻ đẹp vững chãi và đẳng cấp. Cửa chính cao vút kết hợp với vòm kính nghệ thuật không chỉ tăng tính thẩm mỹ mà còn giúp đón sáng, tạo sự thông thoáng cho không gian nội thất.
Cửa vòm cao cấp – điểm nhấn tinh tế
Hệ thống cửa vòm uốn cong mềm mại là điểm nhấn quan trọng trong thiết kế. Kính cường lực cao cấp kết hợp khung gỗ tự nhiên chạm khắc tinh xảo đã làm tôn lên nét cổ điển mà vẫn hiện đại, bền vững theo thời gian.
Gam màu thanh lịch, sang trọng
Toàn bộ công trình nhà biệt thự cổ điển được phủ gam màu kem trang nhã, kết hợp cùng lan can sắt mỹ thuật sơn vàng đồng, tạo nên vẻ đẹp hài hòa, quý phái và nổi bật giữa không gian đô thị.
Hệ mái bằng kiên cố
Khác với mái thái hay mái Nhật, nhà biệt thự cổ điển 3 tầng này sử dụng mái bằng kiên cố, kết hợp ban công thoáng đãng, vừa mang lại sự chắc chắn vừa giúp gia chủ tận dụng làm không gian sân thượng.

Công năng khoa học, tiện nghi cho gia đình nhiều thế hệ
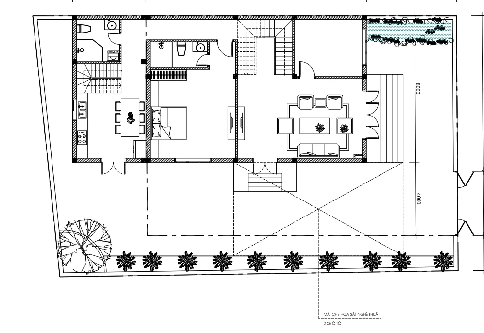
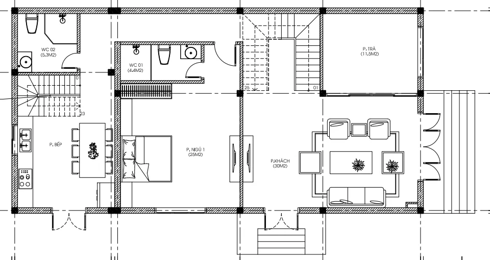
Tầng 1
-
Phòng khách (30m²): Không gian sang trọng, đặt ngay cửa chính, tạo sự đón tiếp trang trọng.
-
Phòng trà (11,5m²): Không gian riêng cho gia chủ tiếp khách thân mật hoặc thư giãn.
-
Phòng ngủ 1 (25m²): Rộng rãi, tiện nghi, thích hợp cho ông bà.
-
Bếp + phòng ăn: Kết nối thuận tiện, có cửa phụ ra sân sau.
-
WC: 2 phòng vệ sinh tiện lợi cho sinh hoạt.
Tầng 2
-
Phòng ngủ master có ban công riêng: Đầy đủ tiện nghi, sang trọng.
-
2 phòng ngủ phụ: Đón sáng, thoáng mát, dành cho con cái.
-
Phòng sinh hoạt chung: Kết nối các thành viên gia đình.
Tầng 3
-
Phòng thờ: Đặt ở vị trí cao nhất, trang nghiêm và yên tĩnh.
-
Phòng kho + phòng giặt: Tiện ích đầy đủ.
-
Sân thượng: Có thể bố trí tiểu cảnh, trồng cây xanh, là nơi thư giãn lý tưởng.
Không gian sân vườn và cổng rào sang trọng
Khuôn viên nhà biệt thự cổ điển được bao quanh bởi hệ thống tường rào và cổng sắt nghệ thuật với hoa văn chạm khắc cầu kỳ. Sân trước lát gạch chống trơn, đủ chỗ cho gara 2 ô tô. Bên hông nhà có giàn che bằng kính hiện đại, vừa sang trọng vừa tiện lợi.
Sân vườn tuy không quá rộng nhưng được bố trí cây cảnh và tiểu cảnh khéo léo, tạo nên sự cân bằng giữa kiến trúc và thiên nhiên.

Giá trị phong thủy của nhà biệt thự cổ điển
Biệt thự được xây dựng theo hướng hợp mệnh gia chủ, đảm bảo yếu tố tụ khí – đón lộc – an cư. Hệ cửa kính lớn giúp lưu thông ánh sáng và gió, mang lại sinh khí dồi dào. Các không gian sinh hoạt được bố trí hợp lý, giúp gia đình thuận lợi trong cuộc sống và công việc.

Vì sao nên chọn nhà biệt thự cổ điển?
-
Khẳng định vị thế và đẳng cấp của gia chủ.
-
Thiết kế sang trọng, trường tồn với thời gian.
-
Không gian sống tiện nghi, thoáng đãng.
-
Phù hợp cho gia đình nhiều thế hệ.
Để tìm hiểu rõ hơn về tiêu chuẩn vật liệu xây dựng và các yếu tố ảnh hưởng đến chi phí, bạn có thể tham khảo thêm tại các bài viết chuyên sâu về vật liệu xây dựng cao cấp trên Wikipedia.
Lợi Ích và Giá Trị Khi Tin Chọn TECHHOME
TECHHOME, với tên đầy đủ là Công ty Cổ phần Kiến trúc và Xây dựng Techhome, tự hào là đơn vị uy tín hàng đầu trong lĩnh vực thiết kế và thi công nhà ở gia đình. Khi chọn Techhome, khách hàng nhận được:
- Thiết kế Tối ưu: Đội ngũ KTS và KS giàu kinh nghiệm, đảm bảo mỗi hồ sơ thiết kế kỹ thuật thi công là một giải pháp hoàn chỉnh, khoa học, phù hợp với nhu cầu sử dụng và ngân sách của gia chủ.
- Minh bạch về Chi phí và Vật liệu: Mọi quy cách vật tư, từ kích thước cửa đến chi tiết lát sàn, đều được thể hiện rõ ràng trong hồ sơ, giúp gia chủ kiểm soát chất lượng và chi phí tuyệt đối.
- Chất lượng Thi công Đảm bảo: Techhome cam kết quy trình thi công nghiêm ngặt, đúng kỹ thuật, sử dụng vật liệu chuẩn và đội ngũ thợ lành nghề, mang lại công trình bền vững, đẹp như bản vẽ 3D.
- Hỗ trợ Kỹ thuật Toàn diện: Cung cấp dịch vụ hỗ trợ tư vấn kỹ thuật xây dựng qua Hotline 0364042222 – 0387603333, sẵn sàng giải đáp mọi thắc mắc trong suốt quá trình triển khai dự án.
Đừng để ý tưởng về ngôi nhà mơ ước chỉ dừng lại trên bản vẽ! Hãy liên hệ ngay với CÔNG TY CỔ PHẦN KIẾN TRÚC VÀ XÂY DỰNG TECHHOME để được tư vấn miễn phí, nhận báo giá chi tiết và biến ngôi nhà mơ ước của bạn thành hiện thực.
Hotline Tư vấn 24/7: 0364042222 – 0387603333
Hãy để TECHHOME đồng hành cùng bạn trên hành trình xây dựng tổ ấm!
Xem thêm các dự án nổi bật khác của Techhome tại https://nhadeptechhome.vn/
