
| Chủ đầu tư: Anh Tín | Số tầng: 1 |
| Địa chỉ: Lục Nam Bắc Giang | Diện tích xây dựng: 8,7×17,6m |
| Loại hình: Nhà vườn mái Nhật hiện đại | Tổng diện tích: 153,12m2 |
| Công năng:
Phòng khách, phòng thờ, phòng bếp, 4 phòng ngủ, 2 wc, phòng giặt |
|
Vẻ đẹp tinh tế của mẫu nhà vườn mái Nhật 4 phòng ngủ
Ngôi nhà vườn mái Nhật hiện đại của gia đình anh Tín tại Bắc Giang là sự kết hợp hài hòa giữa nét đẹp truyền thống và phong cách kiến trúc đương đại. Hệ mái Nhật thanh thoát, mềm mại giúp công trình trở nên nổi bật, gần gũi với thiên nhiên, đồng thời mang lại cảm giác thư thái, bình yên cho gia chủ.
Điểm đặc biệt của mẫu nhà vườn 1 tầng 4 phòng ngủ là sự tiện nghi khi toàn bộ công năng được bố trí trên một mặt bằng. Thiết kế này rất phù hợp với gia đình nhiều thế hệ, giúp sinh hoạt thuận tiện và gắn kết tình cảm.

Thiết kế kiến trúc ấn tượng và sang trọng
Mặt tiền cân đối, vững chãi
Nhà vườn mái Nhật với mặt tiền rộng 8,7m được thiết kế gọn gàng, nổi bật với hai trụ cột vuông chắc chắn, mang lại sự bề thế cho ngôi nhà. Sảnh chính rộng rãi tạo cảm giác đón chào, đồng thời tăng tính sang trọng cho tổng thể công trình.
Hệ mái Nhật tím than – điểm nhấn kiến trúc
Mái Nhật với gam màu Tím lạnh bề thế mang đến vẻ đẹp hiện đại nhưng vẫn ấm áp, trang nhã. Với độ dốc thoải đặc trưng, mái Nhật vừa giúp thoát nước hiệu quả vừa tăng tính thẩm mỹ cho công trình, khẳng định phong cách kiến trúc thời thượng.
Cửa nhôm kính hiện đại, đón sáng tự nhiên
Kiến trúc sư đã sử dụng cửa nhôm kính Xingfa cao cấp cho toàn bộ công trình nhà vườn mái Nhật. Nhờ vậy, không gian trong nhà luôn tràn ngập ánh sáng, tạo sự thông thoáng và mở rộng tầm nhìn ra khu vườn xanh mát. Đây cũng là giải pháp tối ưu cho sự kết nối giữa thiên nhiên và con người.
Vật liệu cao cấp, tinh tế trong từng chi tiết
Ngôi nhà vườn mái Nhật khoác lên mình gam màu trắng tinh khôi – một màu sắc kinh điển trong kiến trúc, vừa thanh lịch vừa bền vững trước xu hướng. Hệ tam cấp 5 bậc cao 750mm được ốp đá Granite đen – trắng đối lập, tạo hiệu ứng thị giác mạnh mẽ và đảm bảo an toàn khi di chuyển. Phần chân tường ốp gạch xám không chỉ tăng tính thẩm mỹ mà còn bảo vệ công trình trước tác động khắc nghiệt từ thời tiết.
Để tìm hiểu rõ hơn về tiêu chuẩn vật liệu xây dựng và các yếu tố ảnh hưởng đến chi phí, bạn có thể tham khảo thêm tại các bài viết chuyên sâu về vật liệu xây dựng cao cấp trên Wikipedia.

Không gian sân vườn xanh mát, tiện nghi
Khuôn viên sân vườn được lát gạch chống trơn màu ghi, đảm bảo sự an toàn khi di chuyển và giữ cho bề mặt luôn sạch sẽ. Bao quanh ngôi nhà vườn mái nhật là hệ thống bồn hoa, cây cảnh và tiểu cảnh xanh mát, giúp công trình trở nên gần gũi với thiên nhiên và mang lại cảm giác thư thái.
Cổng và hàng rào cũng được chú trọng thiết kế. Cổng nhôm đúc bề thế, tường bao xen kẽ hàng rào thoáng đãng, vừa đảm bảo an ninh vừa tôn lên vẻ đẹp kiến trúc tổng thể.

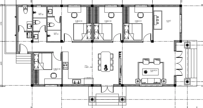
Mặt bằng công năng khoa học, tiện nghi nhà vườn mái Nhật
Mẫu nhà vườn mái Nhật 4 phòng ngủ tại Bắc Giang được bố trí hợp lý, chú trọng sự thoải mái trong sinh hoạt hằng ngày:
-
Phòng khách rộng rãi, đặt gần cửa chính, đón sáng và gió trời tự nhiên.
-
Phòng thờ được bố trí riêng biệt, có vách CNC ngăn cách để đảm bảo sự trang nghiêm, yên tĩnh.
-
Bếp và phòng ăn thông thoáng, có lối đi ra sảnh phụ, tạo sự thuận tiện khi đi lại và lưu thông không khí.
-
4 phòng ngủ được thiết kế rộng rãi, có cửa sổ thoáng mát, đảm bảo riêng tư và thoải mái cho từng thành viên.
-
2 WC chung được sắp xếp khoa học, phục vụ tối đa nhu cầu sinh hoạt của cả gia đình.
-
Phòng giặt bố trí hợp lý, tiện lợi cho việc giặt phơi.

Giá trị thẩm mỹ và phong thủy bền vững
Không chỉ mang giá trị thẩm mỹ, ngôi nhà vườn mái Nhật còn phù hợp với yếu tố phong thủy. Công trình được xây theo hướng Tây Nam, giúp đón gió mát tự nhiên và ánh sáng chan hòa, mang lại sinh khí dồi dào và sự may mắn cho gia chủ.
Ngôi nhà vườn mái Nhật 1 tầng vừa sang trọng, vừa gần gũi thiên nhiên, hứa hẹn là không gian sống lý tưởng – nơi các thành viên trong gia đình sum vầy, gắn kết và tận hưởng cuộc sống bình yên, hạnh phúc.
Lợi Ích và Giá Trị Khi Tin Chọn TECHHOME
TECHHOME, với tên đầy đủ là Công ty Cổ phần Kiến trúc và Xây dựng Techhome, tự hào là đơn vị uy tín hàng đầu trong lĩnh vực thiết kế và thi công nhà ở gia đình. Khi chọn Techhome, khách hàng nhận được:
- Thiết kế Tối ưu: Đội ngũ KTS và KS giàu kinh nghiệm, đảm bảo mỗi hồ sơ thiết kế kỹ thuật thi công là một giải pháp hoàn chỉnh, khoa học, phù hợp với nhu cầu sử dụng và ngân sách của gia chủ.
- Minh bạch về Chi phí và Vật liệu: Mọi quy cách vật tư, từ kích thước cửa đến chi tiết lát sàn, đều được thể hiện rõ ràng trong hồ sơ, giúp gia chủ kiểm soát chất lượng và chi phí tuyệt đối.
- Chất lượng Thi công Đảm bảo: Techhome cam kết quy trình thi công nghiêm ngặt, đúng kỹ thuật, sử dụng vật liệu chuẩn và đội ngũ thợ lành nghề, mang lại công trình bền vững, đẹp như bản vẽ 3D.
- Hỗ trợ Kỹ thuật Toàn diện: Cung cấp dịch vụ hỗ trợ tư vấn kỹ thuật xây dựng qua Hotline 0364042222 – 0387603333, sẵn sàng giải đáp mọi thắc mắc trong suốt quá trình triển khai dự án.
Đừng để ý tưởng về ngôi nhà mơ ước chỉ dừng lại trên bản vẽ! Hãy liên hệ ngay với CÔNG TY CỔ PHẦN KIẾN TRÚC VÀ XÂY DỰNG TECHHOME để được tư vấn miễn phí, nhận báo giá chi tiết và biến ngôi nhà mơ ước của bạn thành hiện thực.
Hotline Tư vấn 24/7: 0364042222 – 0387603333
Hãy để TECHHOME đồng hành cùng bạn trên hành trình xây dựng tổ ấm!
Xem thêm các dự án nổi bật khác của Techhome tại https://nhadeptechhome.vn/
