Biệt Thự 2 Tầng Tân Cổ Điển – Kiến trúc sang trọng, không gian sống tiện nghi

biệt thự 2 tầng tân cổ điển

Chủ đầu tư: Anh Vân Số tầng: 2
Địa chỉ: Phú Xuyên Hà Nội Diện tích xây dựng: 9x13m
Loại hình: biệt thự 2 tầng tân cổ điển Tổng diện tích: 250m2
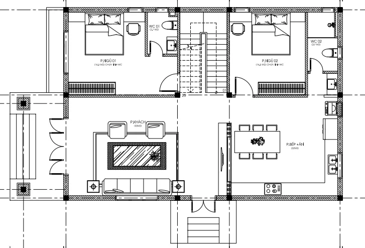
Công năng:

Phòng khách, phòng thờ, phòng bếp, 5 phòng ngủ, 4 wc, phòng giặt

Biệt thự 2 tầng tân cổ điển – Sự giao thoa giữa hiện đại và cổ điển

Trong những năm gần đây, biệt thự 2 tầng tân cổ điển đang trở thành xu hướng thiết kế được nhiều gia đình Việt lựa chọn. Đây là sự kết hợp hài hòa giữa kiến trúc hiện đại tinh giản và các chi tiết phào chỉ, cột trụ mang phong cách cổ điển.

Mẫu biệt thự 2 tầng tân cổ điển 9x13m tại Phú Xuyên Hà Nội của gia đình anh Vân là minh chứng rõ nét cho phong cách này. Công trình không chỉ toát lên sự sang trọng, bề thế mà còn mang đến một không gian sống tiện nghi, gần gũi với thiên nhiên, phù hợp với lối sống hiện đại của gia đình nhiều thế hệ.

biệt thự 2 tầng tân cổ điển

Ngoại thất sang trọng với đường nét tinh tế

Mặt tiền bề thế, ấn tượng

Biệt thự 2 tầng tân cổ điển nổi bật với mặt tiền rộng 9m, được thiết kế cân đối, trang nhã. Hệ cột trụ tròn tân cổ điển kết hợp hoa văn tinh xảo giúp công trình trở nên vững chãi và uy nghi. Lan can ban công được làm bằng sắt mỹ thuật sơn vàng đồng, uốn cong mềm mại, mang lại vẻ đẹp thanh lịch và sang trọng.

Hệ mái thanh thoát

Điểm nhấn của công trình biệt thự 2 tầng tân cổ điển chính là hệ mái Nhật màu xanh than có độ dốc vừa phải. Thiết kế mái này không chỉ giúp thoát nước nhanh, chống nóng hiệu quả mà còn tạo sự cân đối và mềm mại cho tổng thể ngôi nhà. Đây cũng là xu hướng mái được ưa chuộng nhờ tính thẩm mỹ cao và độ bền vượt trội.

Gam màu chủ đạo tinh tế

Công trình được khoác lên mình gam màu trắng tinh khôi làm chủ đạo, kết hợp cùng hệ cửa kính khung tối màu. Sự phối hợp này tạo nên tổng thể vừa nổi bật vừa hài hòa, giúp ngôi nhà luôn tỏa sáng và bền đẹp theo thời gian.

nhà mái Nhật tân cổ
nhà mái Nhật tân cổ

Công năng khoa học, tối ưu cho sinh hoạt

Với diện tích xây dựng 9x13m, các kiến trúc sư đã khéo léo bố trí công năng hợp lý, đảm bảo sự tiện nghi và thoải mái cho gia đình.

Tầng 1

  • Phòng khách (30m²): Sang trọng, đặt ngay cửa chính, thuận tiện cho việc tiếp đón khách.

  • Phòng bếp + ăn: Rộng rãi, có cửa sổ và cửa phụ giúp lưu thông không khí.

  • 2 phòng ngủ: Dành cho ông bà và khách, thuận tiện đi lại.

  • WC: 4 phòng vệ sinh tiện nghi, bố trí hợp lý.

Tầng 2

  • Phòng ngủ master: Có ban công riêng, nội thất đầy đủ, mang lại sự riêng tư và thoải mái.

  • 2 phòng ngủ phụ: Thoáng mát, có cửa sổ lớn đón gió và ánh sáng tự nhiên.

  • Phòng sinh hoạt chung: Nơi gắn kết các thành viên trong gia đình.

  • Phòng thờ: Bố trí trang nghiêm, hợp phong thủy.

Không gian sân vườn và cổng rào

Công trình biệt thự 2 tầng tân cổ điển được bao quanh bởi hệ thống tường rào và cổng sắt mỹ thuật vững chắc, vừa đảm bảo an ninh vừa tăng tính thẩm mỹ. Sân trước lát gạch chống trơn, đủ rộng để bố trí tiểu cảnh, cây xanh và gara ô tô.

Nhờ có khuôn viên thoáng đãng, gia chủ có thể tận dụng để thiết kế vườn cây, bồn hoa, mang lại không gian sống trong lành và thư thái.

nhà mái Nhật tân cổ
nhà mái Nhật tân cổ

Giá trị phong thủy của mẫu biệt thự 2 tầng tân cổ điển

Mẫu biệt thự 2 tầng tân cổ điển 9x13m không chỉ đẹp về kiến trúc mà còn đảm bảo yếu tố phong thủy. Hệ cửa kính rộng giúp lưu thông ánh sáng và gió, mang lại sinh khí dồi dào. Các phòng chức năng được bố trí hợp lý theo mệnh và tuổi của gia chủ, giúp thu hút tài lộc, đem lại sự bình an, hạnh phúc cho cả gia đình.

nhà mái Nhật tân cổ
nhà mái Nhật tân cổ

Vì sao mẫu biệt thự 2 tầng tân cổ điển được ưa chuộng?

  • Vẻ đẹp sang trọng, bền vững theo thời gian.

  • Công năng tiện nghi, phù hợp gia đình nhiều thế hệ.

  • Thiết kế mái Nhật hiện đại, tối ưu chống nóng và thoát nước.

  • Phong thủy hài hòa, mang lại may mắn và tài lộc.

Để tìm hiểu rõ hơn về tiêu chuẩn vật liệu xây dựng và các yếu tố ảnh hưởng đến chi phí, bạn có thể tham khảo thêm tại các bài viết chuyên sâu về vật liệu xây dựng cao cấp trên Wikipedia.

Lợi Ích và Giá Trị Khi Tin Chọn TECHHOME

TECHHOME, với tên đầy đủ là Công ty Cổ phần Kiến trúc và Xây dựng Techhome, tự hào là đơn vị uy tín hàng đầu trong lĩnh vực thiết kế và thi công nhà ở gia đình. Khi chọn Techhome, khách hàng nhận được:

  • Thiết kế Tối ưu: Đội ngũ KTS và KS giàu kinh nghiệm, đảm bảo mỗi hồ sơ thiết kế kỹ thuật thi công là một giải pháp hoàn chỉnh, khoa học, phù hợp với nhu cầu sử dụng và ngân sách của gia chủ.
  • Minh bạch về Chi phí và Vật liệu: Mọi quy cách vật tư, từ kích thước cửa đến chi tiết lát sàn, đều được thể hiện rõ ràng trong hồ sơ, giúp gia chủ kiểm soát chất lượng và chi phí tuyệt đối.
  • Chất lượng Thi công Đảm bảo: Techhome cam kết quy trình thi công nghiêm ngặt, đúng kỹ thuật, sử dụng vật liệu chuẩn và đội ngũ thợ lành nghề, mang lại công trình bền vững, đẹp như bản vẽ 3D.
  • Hỗ trợ Kỹ thuật Toàn diện: Cung cấp dịch vụ hỗ trợ tư vấn kỹ thuật xây dựng qua Hotline 0364042222 – 0387603333, sẵn sàng giải đáp mọi thắc mắc trong suốt quá trình triển khai dự án.

Đừng để ý tưởng về ngôi nhà mơ ước chỉ dừng lại trên bản vẽ! Hãy liên hệ ngay với CÔNG TY CỔ PHẦN KIẾN TRÚC VÀ XÂY DỰNG TECHHOME để được tư vấn miễn phí, nhận báo giá chi tiết và biến ngôi nhà mơ ước của bạn thành hiện thực.

Hotline Tư vấn 24/7: 0364042222 – 0387603333

Hãy để TECHHOME đồng hành cùng bạn trên hành trình xây dựng tổ ấm!

Xem thêm các dự án nổi bật khác của Techhome tại https://nhadeptechhome.vn/

Để lại một bình luận

Email của bạn sẽ không được hiển thị công khai. Các trường bắt buộc được đánh dấu *

    Vui lòng nhấn nút YÊU CẦU TƯ VẤN và đợi 1 - 2 giây đến khi thấy thông báo thành công

    YÊU CẦU TƯ VẤN