
Mục lục
-
Giới thiệu chung về mẫu nhà phố tân cổ 4 tầng 4,5×16 tại Bắc Giang
-
Kiến trúc mặt tiền – sự hòa quyện giữa cổ điển và hiện đại
-
Công năng sử dụng – tối ưu hóa không gian sống tiện nghi
-
Vật liệu & chi tiết nổi bật trong thi công
-
Giá trị phong thủy trong thiết kế nhà phố tân cổ 4 tầng
-
Lợi ích khi lựa chọn Techhome thiết kế – thi công trọn gói
-
Kết luận & liên hệ
1. Giới thiệu chung về mẫu nhà phố tân cổ 4 tầng 4,5×16 tại Bắc Giang
Trong xu hướng hiện nay, nhà phố tân cổ điển ngày càng được nhiều gia chủ lựa chọn bởi sự sang trọng, tinh tế và bền vững với thời gian. Công trình nhà phố tân cổ 4 tầng diện tích 4,5×16 của anh Đức tại Bắc Giang chính là minh chứng điển hình.
Với thiết kế mặt tiền đậm chất tân cổ, điểm xuyết các chi tiết hoa văn tinh xảo, công trình không chỉ là nơi ở mà còn thể hiện vị thế và phong cách sống của gia chủ.

2. Kiến trúc mặt tiền – sự hòa quyện giữa cổ điển và hiện đại
Mặt tiền căn nhà nổi bật với:
-
Hệ cột trụ đăng đối, chắc chắn, lấy cảm hứng từ kiến trúc châu Âu.
-
Ban công uốn cong mềm mại, kết hợp lan can sắt nghệ thuật.
-
Cửa chính gỗ tự nhiên kết hợp kính cường lực, vừa bền bỉ vừa sang trọng.
-
Hệ thống đèn hắt sáng ban đêm làm ngôi nhà lộng lẫy như một lâu đài thu nhỏ.
Đây chính là yếu tố khiến mẫu nhà phố tân cổ 4 tầng 4,5×16 tại Bắc Giang trở thành điểm nhấn nổi bật trong toàn khu phố.
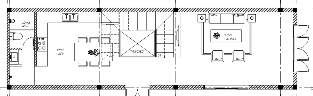
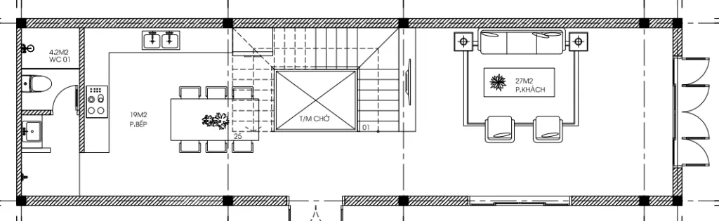
3. Công năng sử dụng – tối ưu hóa không gian sống tiện nghi
Mỗi tầng được bố trí khoa học, đáp ứng nhu cầu sinh hoạt:
-
Tầng 1: Phòng khách 27m², bếp + phòng ăn 19m², WC chung.
-
Tầng 2: 2 phòng ngủ rộng rãi, ban công thoáng mát.
-
Tầng 3: 2 phòng ngủ + phòng sinh hoạt chung.
-
Tầng 4: Phòng thờ trang nghiêm, sân phơi + kho tiện ích.
Nhờ cách sắp xếp hợp lý, gia đình vừa có không gian riêng tư, vừa có khu vực sinh hoạt chung ấm cúng.

4. Vật liệu & chi tiết nổi bật trong thi công
-
Sơn ngoại thất chống thấm cao cấp, bền màu hơn 15 năm.
-
Đá ốp mặt tiền sang trọng, chống bám bẩn.
-
Cửa gỗ kết hợp kính an toàn, đón sáng tự nhiên.
-
Hệ mái bằng kết hợp lan can kính, hiện đại nhưng vẫn giữ tinh thần tân cổ.
Để tìm hiểu rõ hơn về tiêu chuẩn vật liệu xây dựng và các yếu tố ảnh hưởng đến chi phí, bạn có thể tham khảo thêm tại các bài viết chuyên sâu về vật liệu xây dựng cao cấp trên Wikipedia.
5. Giá trị phong thủy trong thiết kế nhà phố tân cổ 4 tầng
Theo phong thủy, ngôi nhà được thiết kế chuẩn hướng, giúp:
-
Đón vượng khí – tài lộc cho gia chủ.
-
Bố trí không gian phòng thờ ở tầng cao nhất, đảm bảo sự trang nghiêm.
-
Tối ưu ánh sáng và gió tự nhiên, tạo không gian sống khỏe mạnh, hạnh phúc.

6. Lợi ích khi lựa chọn Techhome thiết kế – thi công trọn gói
-
Thiết kế độc quyền: Cá nhân hóa theo nhu cầu và gu thẩm mỹ của gia chủ.
-
Thi công trọn gói: Từ A–Z, tiết kiệm thời gian, chi phí.
-
Cam kết chất lượng: Vật liệu chuẩn, thi công đúng tiến độ.
-
Bảo hành dài hạn: Yên tâm tuyệt đối khi bàn giao.
Techhome tự hào đã đồng hành cùng hàng trăm gia chủ trên khắp cả nước, kiến tạo nên những ngôi nhà phố tân cổ điển đẳng cấp.

7. Kết luận & liên hệ
Công trình nhà phố tân cổ 4 tầng 4,5×16 tại Bắc Giang của anh Đức là minh chứng rõ nét cho sự kết hợp hoàn hảo giữa kiến trúc tân cổ sang trọng và công năng hiện đại. Đây không chỉ là không gian sống, mà còn là biểu tượng cho gu thẩm mỹ và đẳng cấp của gia chủ.
👉 Nếu bạn đang tìm kiếm giải pháp thiết kế – thi công trọn gói, hãy liên hệ ngay với Công ty Cổ phần Kiến trúc và Xây dựng Techhome:
📞 Hotline: 0364 042 222 – 0387 603 333
Xem thêm các dự án nổi bật khác của Techhome tại https://nhadeptechhome.vn/
