Mẫu Nhà 2 Tầng Mái Nhật Hiện Đại 6x16m Tại Thanh Hóa: Giấc Mơ An Cư Của Gia Đình Anh Nhân

Trong hành trình xây dựng tổ ấm, việc tìm kiếm một bản vẽ ưng ý cũng giống như tìm một người bạn tâm giao – cần sự thấu hiểu và tin tưởng. Hôm nay, Techhome xin phép được trải lòng về một “đứa con tinh thần” mà chúng tôi vừa hoàn thiện hồ sơ thiết kế. Đó là mẫu nhà 2 tầng mái Nhật hiện đại của gia đình anh Nhân tại mảnh đất Thường Xuân, Thanh Hóa. Đây không chỉ là một công trình, đây là lời giải cho bài toán: Làm sao để trên diện tích đất phố hẹp, ta vẫn có được không gian sống đẳng cấp, tiện nghi và chuẩn phong thủy?

1. Cơ duyên đến với mẫu nhà 2 tầng mái Nhật hiện đại

Thật tình cờ, anh Nhân tìm đến Techhome qua một video review nhà đẹp trên TikTok. Anh tâm sự: “Đất nhà anh bề ngang 6m, dài sâu, anh muốn xây sao cho thoáng, nhìn bên ngoài phải sang nhưng bên trong phải ấm. Anh thích kiểu mái Nhật vì nhìn nó bề thế mà không bị lỗi mốt”.

Nắm bắt được mong mỏi đó, đội ngũ KTS Techhome đã ngay lập tức khảo sát và lên phương án. Với kích thước xây dựng 6m x 16m , tổng diện tích sàn lên tới 210m2, chúng tôi quyết định tư vấn cho anh mẫu nhà 2 tầng mái Nhật hiện đại. Phong cách này vừa vặn giải quyết được vấn đề thẩm mỹ mặt tiền, vừa tối ưu hóa công năng sử dụng cho gia đình đông thành viên.

Sự lựa chọn mẫu nhà 2 tầng mái Nhật hiện đại không chỉ đến từ xu hướng, mà nó xuất phát từ chính nhu cầu thực tế: cần độ dốc mái vừa phải để thoát nước tốt trong mùa mưa miền Trung, nhưng vẫn giữ được nét thanh lịch, gọn gàng.

Phối cảnh mặt tiền mẫu nhà 2 tầng mái Nhật hiện đại kích thước 6m sang trọng tại Thường Xuân, Thanh Hóa.
Phối cảnh mặt tiền mẫu nhà 2 tầng mái Nhật hiện đại kích thước 6m sang trọng tại Thường Xuân, Thanh Hóa.

2. Vẻ đẹp ngoại thất: Sự giao thoa giữa hiện đại và tinh tế

Nhìn vào phối cảnh 3D, bạn sẽ thấy mẫu nhà 2 tầng mái Nhật hiện đại của anh Nhân hiện lên đầy cuốn hút. Không cầu kỳ hoa mỹ như tân cổ điển, ngôi nhà khoác lên mình “bộ cánh” màu trắng sứ chủ đạo, điểm xuyết là những mảng tường ốp đá xám vân mây tại tầng 1 và gỗ nhựa ngoài trời ốp trần ban công tầng 2.

Hệ mái Nhật màu xanh than chính là điểm nhấn “đắt giá” nhất. Nó ôm trọn lấy khối nhà vuông vức, tạo cảm giác vững chãi, an yên. Đặc biệt, hệ thống cửa kính cường lực khung nhôm xingfa được sử dụng tối đa, giúp ngôi nhà luôn tràn ngập ánh sáng tự nhiên – một yếu tố then chốt làm nên giá trị của mẫu nhà 2 tầng mái Nhật hiện đại.

Khu vực ban công tầng 2 được thiết kế rộng rãi, lan can sắt sơn tĩnh điện thanh mảnh giúp tầm nhìn không bị hạn chế. Đây sẽ là nơi anh Nhân đặt một bộ bàn trà nhỏ, mỗi sáng nhâm nhi ly cafe ngắm nhìn phố huyện Thường Xuân yên bình.

Góc nghiêng mẫu nhà 2 tầng mái Nhật hiện đại mặt tiền 6m tại Thanh Hóa
Góc nghiêng mẫu nhà 2 tầng mái Nhật hiện đại mặt tiền 6m tại Thanh Hóa

3. “Mổ xẻ” công năng: Bài toán diện tích được giải quyết ra sao?

Nhiều người e ngại đất phố hẹp sẽ bí bách, nhưng với mẫu nhà 2 tầng mái Nhật hiện đại này, Techhome đã bố trí công năng “kín kẽ” đến từng centimet.

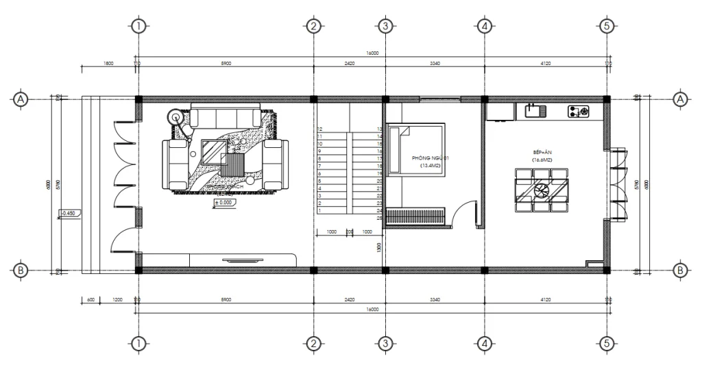
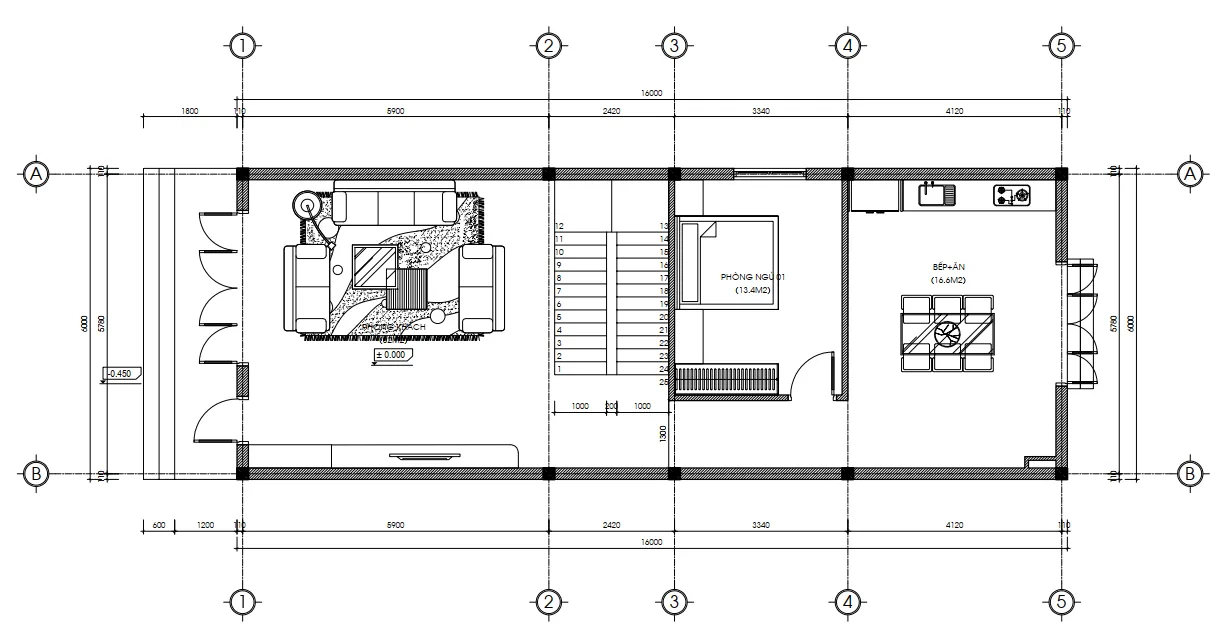
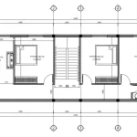
3.1. Tầng 1: Không gian gắn kết yêu thương

Bước qua bậc tam cấp cao ráo (cao 450mm so với sân) , chúng ta tiến vào không gian sinh hoạt chung rộng rãi với diện tích thiết kế sàn tầng 1 là 106m2.

  • Phòng khách: Ngay cửa chính là phòng khách sang trọng, nơi thể hiện bộ mặt của gia chủ.

  • Cầu thang & Giao thông: Cầu thang được đặt giữa nhà, đóng vai trò như xương sống, ngăn chia ước lệ giữa phòng khách và phòng ngủ, đồng thời là giếng trời lấy sáng.

  • Phòng ngủ 01 (13.4m2): Được bố trí kín đáo phía sau cầu thang, dành cho ông bà hoặc người lớn tuổi để hạn chế leo trèo.

  • Bếp + Ăn (16.6m2): Nằm cuối nhà, đảm bảo sự riêng tư và thoát mùi tốt. Khu vực này có cửa mở ra sân ướt phía sau, cực kỳ tiện lợi khi nhà có cỗ bàn.

Bản vẽ bố trí công năng tầng 1 mẫu nhà 2 tầng mái Nhật hiện đại diện tích 106m2 gồm phòng khách, 1 ngủ và bếp ăn.
Bản vẽ bố trí công năng tầng 1 mẫu nhà 2 tầng mái Nhật hiện đại diện tích 106m2 gồm phòng khách, 1 ngủ và bếp ăn.

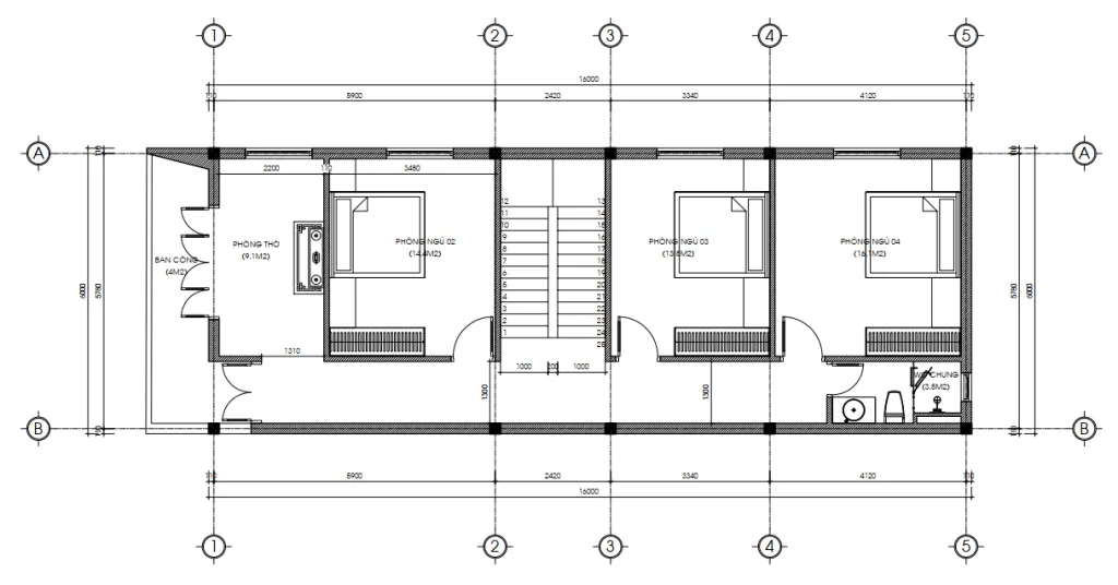
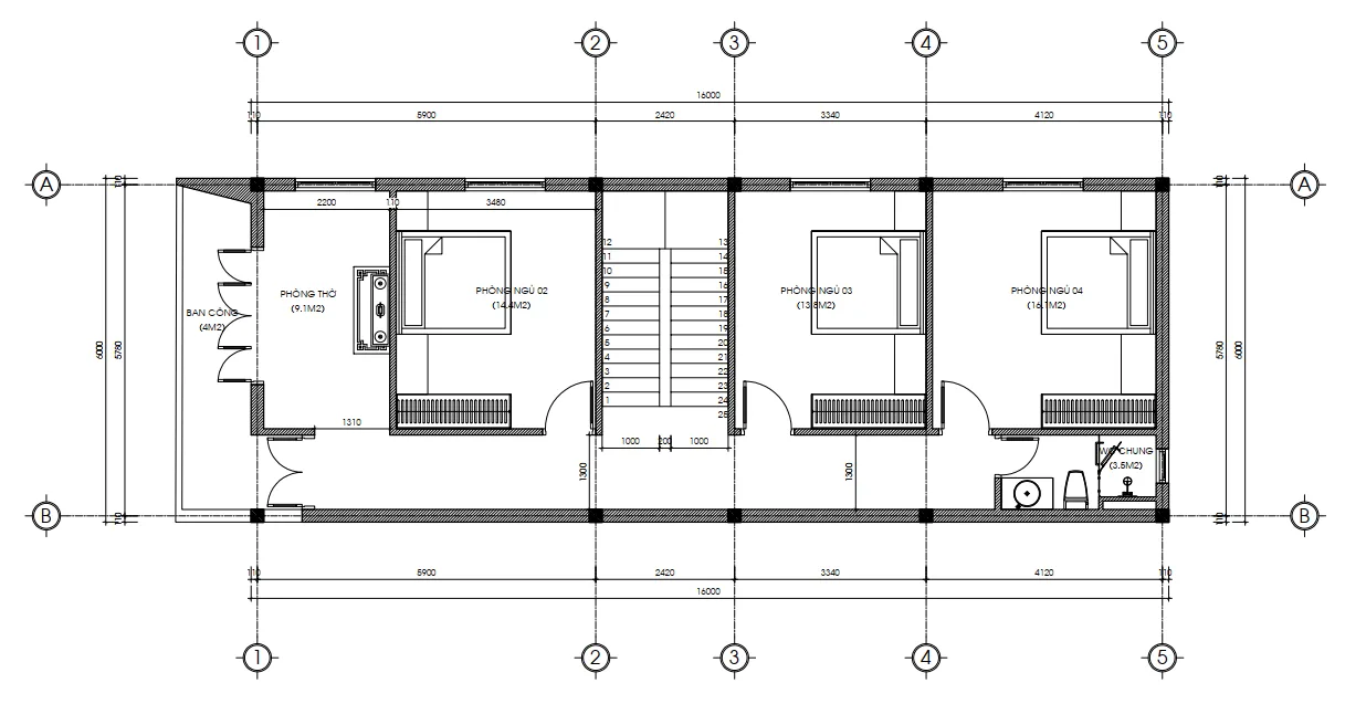
3.2. Tầng 2: Chốn nghỉ ngơi riêng tư

Lên đến tầng 2 (diện tích 104m2), không gian được chia nhỏ để đảm bảo mỗi thành viên đều có thế giới riêng:

  • Phòng thờ (9.1m2): Đặt ở vị trí trang trọng nhất phía trước nhà, hướng ra ban công (4m2), đảm bảo sự tôn nghiêm và thông thoáng.

  • Hệ thống phòng ngủ: Gồm 03 phòng ngủ nối tiếp nhau dọc theo chiều dài nhà. Phòng ngủ 02 (14.4m2), Phòng ngủ 03 (13.8m2) và Phòng ngủ 04 (16.1m2). Việc bố trí tới 4 phòng ngủ trong một mẫu nhà 2 tầng mái Nhật hiện đại diện tích hơn 100m2 1 sàn là một nỗ lực rất lớn của KTS Techhome.

  • Vệ sinh chung (3.5m2): Đặt cuối hành lang, thuận tiện cho sinh hoạt của cả tầng.

Bản vẽ bố trí công năng tầng 2 mẫu nhà 2 tầng mái Nhật hiện đại diện tích 104m2 gồm phòng thờ, 3 ngủ, 1 WC chung.
Bản vẽ bố trí công năng tầng 2 mẫu nhà 2 tầng mái Nhật hiện đại diện tích 104m2 gồm phòng thờ, 3 ngủ, 1 WC chung.

4. Tại sao “Mẫu nhà 2 tầng mái Nhật hiện đại” lại là từ khóa hot nhất năm nay?

Không phải ngẫu nhiên mà khi lướt Facebook hay TikTok, bạn liên tục bắt gặp cụm từ mẫu nhà 2 tầng mái Nhật hiện đại. Lý do thực sự nằm ở 3 yếu tố:

  1. Tiết kiệm chi phí: So với mái Thái cầu kỳ, mái Nhật thi công nhanh hơn, ít tốn vật liệu ngói và nhân công hơn, giúp gia chủ tiết kiệm một khoản kha khá để đầu tư vào nội thất.

  2. Khả năng thích ứng: Dù bạn có đất vuông, đất dài hay đất xéo, mẫu nhà 2 tầng mái Nhật hiện đại đều có thể biến tấu để che đi khuyết điểm của khu đất.

  3. Thẩm mỹ vượt thời gian: Sự đơn giản tạo nên sự sang trọng. 10 năm hay 20 năm nữa, kiến trúc này vẫn không bị coi là “lỗi thời”.

Tổng thể mẫu nhà 2 tầng mái Nhật hiện đại lợp ngói màu xanh than bề thế nhìn từ trên cao.
Tổng thể mẫu nhà 2 tầng mái Nhật hiện đại lợp ngói màu xanh than bề thế nhìn từ trên cao.

5. Báo giá xây dựng mẫu nhà 2 tầng mái Nhật hiện đại (Cập nhật 2026)

Đây chắc chắn là phần anh Nhân và quý vị mong chờ nhất. Techhome xin đưa ra bảng dự toán chi phí mang tính chất tham khảo sát thực tế nhất cho công trình này (Tổng diện tích sàn xây dựng ~210m2).

Lưu ý: Đơn giá có thể thay đổi tùy thuộc vào thời điểm, giá vật liệu tại Thanh Hóa và chủng loại vật tư gia chủ lựa chọn.

5.1. Gói 1: Thi công phần thô và nhân công hoàn thiện

  • Đơn giá trung bình: 3.800.000 VNĐ – 4.200.000 VNĐ/m2.

  • Tổng chi phí ước tính: Khoảng 800 triệu – 900 triệu VNĐ.

  • Phạm vi công việc: Móng, khung cột, xây trát tường, mái, điện nước âm tường.

5.2. Gói 2: Chìa khóa trao tay (Trọn gói)

Với gói này, Techhome sẽ lo từ A-Z, bạn chỉ việc xách vali vào ở. Áp dụng cho mẫu nhà 2 tầng mái Nhật hiện đại mức đầu tư khá.

  • Đơn giá trung bình: 6.500.000 VNĐ – 7.500.000 VNĐ/m2.

  • Tổng chi phí ước tính: Khoảng 1.3 tỷ – 1.6 tỷ VNĐ.

  • Vật tư hoàn thiện: Gạch ốp lát cao cấp, sơn Dulux/Jotun, cửa nhôm Xingfa, thiết bị vệ sinh Inax/Toto, đèn chiếu sáng…

Lưu ý: Đây chỉ là mức chi phí ước tính. Để nhận được báo giá chính xác và chi tiết nhất cho công trình của bạn, vui lòng liên hệ trực tiếp với chúng tôi. Hoặc để tìm hiểu rõ hơn về tiêu chuẩn vật liệu xây dựng và các yếu tố ảnh hưởng đến chi phí, bạn có thể tham khảo thêm tại các bài viết chuyên sâu về vật liệu xây dựng cao cấp trên Wikipedia.

Góc nghiêng mẫu nhà 2 tầng mái Nhật hiện đại

6. Kinh nghiệm xương máu khi xây nhà phố 2 tầng

Trong quá trình tư vấn cho anh Nhân, chúng tôi nhận thấy nhiều gia chủ thường mắc sai lầm ở khâu chuẩn bị. Để sở hữu một mẫu nhà 2 tầng mái Nhật hiện đại hoàn hảo, hãy lưu ý:

  • Đừng tham công năng: 6m chiều ngang là kích thước lý tưởng nhưng không phải vô tận. Đừng cố nhồi nhét quá nhiều vách ngăn khiến nhà bị vụn.

  • Chú trọng chiều cao tầng: Như trong bản vẽ của anh Nhân, tầng 1 cao tới 4.1m (21 bậc cầu thang). Chiều cao này giúp nhà cực kỳ thoáng, sang trọng, tránh cảm giác đè nén thường thấy ở nhà phố.

  • Phong thủy là khoa học: Hướng bếp, hướng bàn thờ, vị trí đặt bể phốt… tất cả đều cần được KTS tính toán trên la bàn phong thủy, chứ không phải “thầy bói xem voi”.

Tổng thể mẫu nhà 2 tầng mái Nhật hiện đại

7. Quy trình làm việc tại Techhome: Minh bạch – Tận tâm

Khi anh Nhân chốt phương án mẫu nhà 2 tầng mái Nhật hiện đại, anh rất bất ngờ về quy trình làm việc của Techhome. Chúng tôi không chỉ bán bản vẽ, chúng tôi bán sự an tâm.

  1. Tiếp nhận & Khảo sát: Lắng nghe tâm tư, đo đạc thực địa.

  2. Lên phương án mặt bằng: Bố trí công năng 2D (như các bản vẽ bạn thấy trong bài).

  3. Dựng phối cảnh 3D: Giúp gia chủ hình dung ngôi nhà tương lai như thật.

  4. Triển khai hồ sơ kỹ thuật: Kết cấu, điện nước chi tiết.

  5. Hỗ trợ giám sát: Techhome luôn đồng hành giải đáp thắc mắc kỹ thuật cho thợ xây qua hotline 0364.04.2222.

Tổng thể mẫu nhà 2 tầng mái Nhật hiện đại

8. Kết luận

Ngôi nhà của anh Nhân tại Thanh Hóa là minh chứng rõ nét nhất cho vẻ đẹp của mẫu nhà 2 tầng mái Nhật hiện đại. Nó không quá phô trương nhưng đủ để ai đi qua cũng phải ngước nhìn. Nó không quá rộng lớn nhưng đủ để chứa đựng tình yêu thương của cả gia đình 3 thế hệ.

Nếu bạn đang sở hữu mảnh đất tương tự và trót yêu thích phong cách này, đừng ngần ngại liên hệ với chúng tôi. Mẫu nhà 2 tầng mái Nhật hiện đại không chỉ là một từ khóa xu hướng, nó là giải pháp tối ưu nhất cho cuộc sống người Việt hiện nay.

Hãy để Techhome cùng bạn kiến tạo nên những tổ ấm vững chãi trước mưa nắng thời gian.


CÔNG TY CỔ PHẦN KIẾN TRÚC VÀ XÂY DỰNG TECHHOME

Để lại một bình luận

Email của bạn sẽ không được hiển thị công khai. Các trường bắt buộc được đánh dấu *

    Vui lòng nhấn nút YÊU CẦU TƯ VẤN và đợi 1 - 2 giây đến khi thấy thông báo thành công

    YÊU CẦU TƯ VẤN