Chào mọi người, lại là TechHome đây!
Hôm nay Techhome không nói về những biệt thự xa hoa hay những lâu đài. Hôm nay, Techhome chia sẻ với mọi người về một “tác phẩm” mà anh em TechHome vừa hoàn thiện hồ sơ bàn giao cho gia đình anh Hợp tại Hoài Đức, Hà Nội.
Tại sao lại gọi đây là một “tác phẩm” đáng xem? Bởi vì nó giải quyết được bài toán đau đầu nhất của 80% khách hàng tìm đến TechHome: Làm sao để xây nhà trên đất phố, mặt tiền khoảng 6.5m, cần tới 4 phòng ngủ cho 3 thế hệ mà nhìn vẫn phải thoáng, phải sang và quan trọng là không bị lỗi mốt?
Câu trả lời chính là mẫu nhà 2 tầng 1 tum hiện đại mà các bạn sắp xem dưới đây. Hãy cùng Techhome “mổ xẻ” chi tiết ngôi nhà này nhé!
1. Tại sao “Mẫu nhà 2 tầng 1 tum hiện đại” lại trở thành xu hướng quốc dân?
Khoảng 3 năm trở lại đây, từ khóa mẫu nhà 2 tầng 1 tum hiện đại liên tục lọt top tìm kiếm trên các nền tảng mạng xã hội như TikTok, Pinterest hay các hội nhóm xây dựng. Không phải ngẫu nhiên mà nó “hot” đến thế.
Thực tế, với chi phí xây dựng leo thang, việc lên tầng 3 trọn vẹn đôi khi là gánh nặng tài chính. Phương án làm “tum” (tầng thượng có phòng nhỏ và sân thượng) là giải pháp cứu cánh tuyệt vời. Nó vừa giúp ngôi nhà cao ráo, bề thế hơn so với nhà 2 tầng mái bằng cụt ngủn, vừa tạo ra khoảng không gian xanh – nơi chill, nơi thở của cả gia đình giữa lòng thủ đô chật chội.
Bản vẽ của anh Hợp là minh chứng rõ nhất. Với diện tích sàn tầng 1 khoảng 74m2 và tổng diện tích thiết kế 185m2, ngôi nhà này gói gọn mọi tiện nghi mà một gia đình đông người cần, trong khi chi phí lại “mềm” hơn rất nhiều so với xây 3 tầng full.

2. Vẻ đẹp ngoại thất: Vuông vức, khỏe khoắn và không sợ lỗi thời
Nhìn vào phối cảnh 3D mặt tiền, điều đầu tiên đập vào mắt chúng ta là sự gãy gọn, tinh tế. TechHome đã tư vấn cho anh Hợp đi theo phong cách hiện đại .
Hình khối kiến trúc
Mẫu nhà 2 tầng 1 tum hiện đại này sử dụng các hình khối vuông vức xếp chồng lên nhau, tạo cảm giác vững chãi. Điểm nhấn đắt giá nằm ở cách đua ban công và mảng tường trang trí tầng 2. TechHome sử dụng lan can kính cường lực thay vì con tiện sứ hay sắt nghệ thuật rườm rà. Điều này giúp “khoe” được trọn vẹn nội thất bên trong (nếu nhìn từ ngoài) và giúp người trong nhà có tầm nhìn thoáng đãng ra con đường phía trước.
Phối màu và vật liệu
Chúng tôi không dùng quá 3 màu cho mặt tiền để tránh rối mắt.
-
Tầng 1: Toàn bộ mặt tiền được ốp đá vân mây màu xám ghi sang trọng. Đây là chi tiết cực kỳ tâm đắc. Đá ốp giúp tầng 1 sạch sẽ, chống rêu mốc, chống bám bẩn từ đường phố và tạo cảm giác nền móng vững chắc.
-
Tầng 2 & Tum: Sử dụng sơn trắng sứ làm nền, điểm xuyết các mảng tường màu nâu cà phê và hệ lam giả gỗ ốp trần ban công. Màu gỗ luôn mang lại cảm giác ấm áp, dung hòa với sự lạnh lùng của kính và bê tông.
Hệ thống cửa nhôm kính Xingfa màu đen tuyền kích thước lớn được bố trí kịch trần, giúp mẫu nhà 2 tầng 1 tum hiện đại này đón gió và ánh sáng tự nhiên tối đa vào ban ngày, tiết kiệm điện năng đáng kể cho gia chủ.

3. Công năng sử dụng: Bài toán chia phòng cực “nghệ”
Đẹp bên ngoài là chưa đủ, một mẫu nhà 2 tầng 1 tum hiện đại thực sự thành công phải là nơi ở sướng. Với kích thước đất xây dựng khoảng 6.5m x 12.1m , TechHome đã tính toán từng centimet.
Hãy cùng đi tour một vòng bên trong nhé!
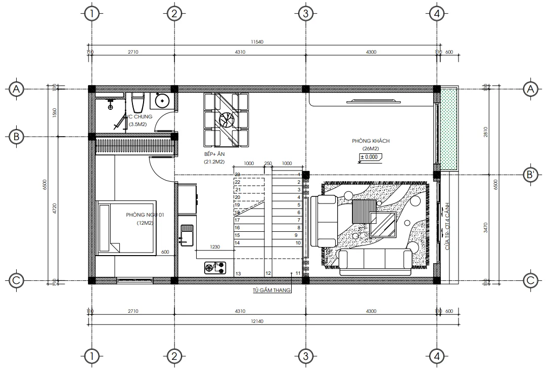
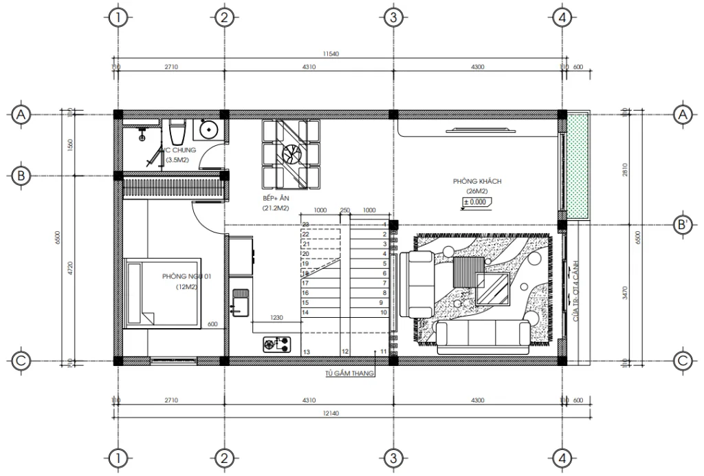
Tầng 1: Không gian kết nối (Cao 3.9m)
Bước qua sảnh chính là Phòng khách rộng 26m2. Đây là diện tích lý tưởng để bố trí bộ sofa gỗ óc chó hoặc sofa da chữ L hiện đại. Liên thông ngay phía sau là khu Bếp + Ăn rộng 21.2m2. Việc thiết kế liên thông khách – bếp là đặc trưng của mẫu nhà 2 tầng 1 tum hiện đại, giúp không gian như rộng gấp đôi.
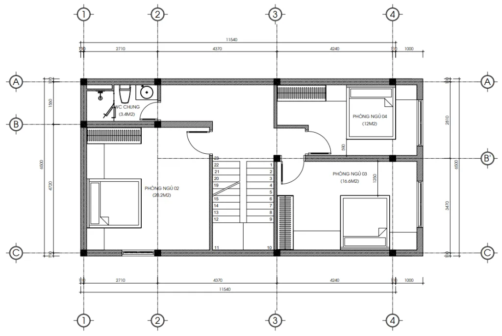
Điểm cộng tuyệt đối: Tầng 1 có bố trí 01 Phòng ngủ (12m2). Các bạn biết không, với những gia đình có ông bà lớn tuổi, phòng ngủ tầng 1 là “báu vật”. Ông bà không phải leo cầu thang, lại gần bếp, gần vệ sinh chung (3.5m2), cực kỳ an toàn và tiện lợi. Cầu thang bộ được thiết kế 23 bậc, rơi vào cung “Sinh” trong phong thủy, đảm bảo sức khỏe và tài lộc.

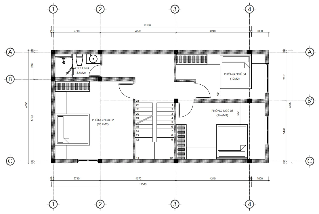
Tầng 2: Không gian nghỉ ngơi riêng tư (Cao 3.6m)
Bước lên 21 bậc cầu thang, chúng ta đến với khu vực nghỉ ngơi chính. Thách thức ở đây là phải bố trí được 3 phòng ngủ mà không bí bách. Và đây là cách giải của TechHome cho mẫu nhà 2 tầng 1 tum hiện đại này:
-
Phòng ngủ 02 (Master): Rộng tới 20.2m2, có cửa sổ thông thoáng.
-
Phòng ngủ 03: 16.6m2, diện tích rất thoải mái cho con cái học tập.
-
Phòng ngủ 04: 12m2, nhỏ gọn, ấm cúng.
-
1 Vệ sinh chung: 3.4m2.
Lưu ý nhỏ : Nhiều bạn sẽ thắc mắc tại sao tầng 2 có 3 phòng ngủ mà chỉ có 1 WC? Đây là bài toán đánh đổi. Để các phòng ngủ đều rộng rãi, thoáng mát trên diện tích sàn 78m2, việc dùng chung 1 WC lớn, tiện nghi sẽ hợp lý hơn là chia nhỏ làm 2 WC bé tí hon, vừa chật chội vừa tốn kém chi phí đi đường ống nước.

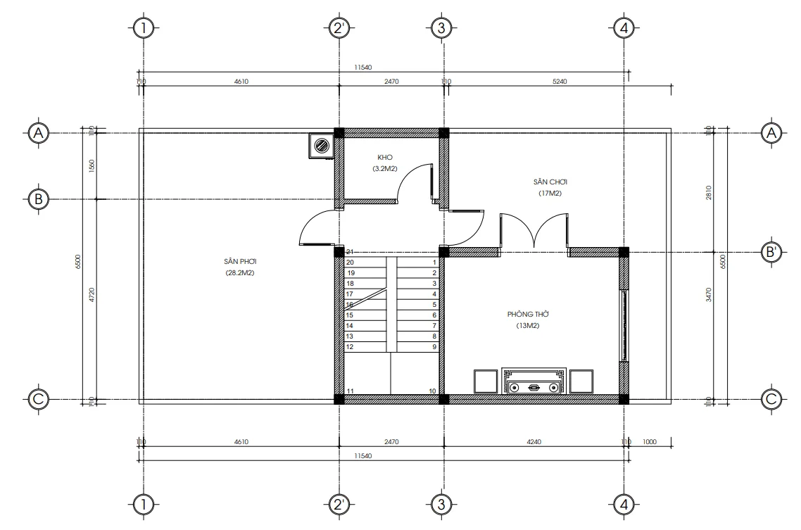
Tầng Tum: Tâm linh và Thư giãn
Đây chính là phần “hồn” của mẫu nhà 2 tầng 1 tum hiện đại.
-
Phòng thờ (13m2): Được đặt ở vị trí cao nhất, trang nghiêm nhất, chuẩn phong thủy, hướng ra sân chơi.
-
Kho (3.2m2): Nơi cất giữ những đồ đạc ít dùng, giúp nhà cửa luôn gọn gàng.
-
Sân chơi (17m2) & Sân phơi (28.2m2): Các bạn tưởng tượng nhé, chiều chiều lên sân chơi rộng 17m2 này, kê một bộ bàn ghế mây, pha ấm trà, ngắm hoàng hôn Hoài Đức thì còn gì bằng. Sân phơi riêng biệt phía sau kín đáo, đảm bảo thẩm mỹ cho mặt tiền ngôi nhà.

4. Bóc tách kỹ thuật – Những con số biết nói
Để các bác thợ xây dựng nhìn vào là hiểu ngay, hoặc các gia chủ muốn tự giám sát cũng nắm được, TechHome luôn minh bạch trong hồ sơ:
-
Chiều cao tầng 1: 3.9m (thông thủy cực tốt).
-
Chiều cao tầng 2: 3.6m.
-
Chiều cao bậc thang: ~169mm – 171mm. Đây là chiều cao “vàng”, bước chân rất vừa, không bị mỏi gối, đặc biệt tốt cho người già và trẻ nhỏ.
-
Hệ thống cửa: TechHome bố trí cửa đi 4 cánh mặt tiền rộng 2.81m, đảm bảo xe cộ ra vào hay vận chuyển đồ nội thất lớn đều dễ dàng.
Sự tỉ mỉ này chính là lý do tại sao mẫu nhà 2 tầng 1 tum hiện đại của TechHome luôn thi công suôn sẻ, ít phát sinh sai số.

5. Dự toán chi phí xây dựng mẫu nhà này năm 2026 (Tham khảo)
Techhome biết đây là phần mọi người mong chờ nhất. “Đẹp thế này thì bao nhiêu tiền?”.
Dưới đây là bảng ước tính chi phí để xây dựng hoàn thiện mẫu nhà 2 tầng 1 tum hiện đại diện tích 185m2 như nhà anh Hợp, áp dụng đơn giá thị trường thời điểm hiện tại (lưu ý giá có thể thay đổi tùy vật liệu và thời điểm):
| Hạng mục | Đơn giá tham khảo (VNĐ/m2) | Thành tiền ước tính (VNĐ) |
| Thiết kế kiến trúc | 108.000 | ~ 20.000.000 |
| Xây dựng phần thô + Nhân công | 3.800.000 – 4.200.000 | ~ 700.000.000 – 780.000.000 |
| Hoàn thiện (Cửa, sơn, gạch, TBVS…) | 2.500.000 – 3.500.000 | ~ 450.000.000 – 650.000.000 |
| Tổng cộng (Chìa khóa trao tay) | ~ 1.15 tỷ – 1.4 tỷ |
Lưu ý: Chi phí trên chưa bao gồm nội thất rời (giường, tủ, bàn ghế sofa…). Với khoảng hơn 1 tỷ đồng, sở hữu một cơ ngơi khang trang, kiên cố, công năng 4 phòng ngủ như thế này là một khoản đầu tư cực kỳ xứng đáng.
Lưu ý: Đây chỉ là mức chi phí ước tính. Để nhận được báo giá chính xác và chi tiết nhất cho công trình của bạn, vui lòng liên hệ trực tiếp với chúng tôi. Hoặc để tìm hiểu rõ hơn về tiêu chuẩn vật liệu xây dựng và các yếu tố ảnh hưởng đến chi phí, bạn có thể tham khảo thêm tại các bài viết chuyên sâu về vật liệu xây dựng cao cấp trên Wikipedia.

6. Lời khuyên tâm huyết từ TechHome
Khi lựa chọn xây dựng mẫu nhà 2 tầng 1 tum hiện đại, Techhome có vài lời khuyên “gan ruột” cho mọi người:
-
Đừng tham lam chi tiết: Nhà hiện đại đẹp ở “cái thần”, ở hình khối. Đừng cố đắp phào chỉ hay treo quá nhiều đèn chùm rườm rà, vừa tốn tiền vừa làm hỏng phong cách nhà.
-
Chú trọng chống thấm mái Tum: Phần sân thượng (sân chơi/sân phơi) tiếp xúc trực tiếp với nắng mưa. Hãy yêu cầu đơn vị thi công xử lý chống thấm bằng Sika hoặc màng khò nhiệt thật kỹ ngay từ đầu. Đừng để “mất bò mới lo làm chuồng”.
-
Lựa chọn đơn vị thiết kế có tâm: Một bản vẽ tốt không chỉ đẹp mà còn phải tiết kiệm sắt thép, bê tông cho chủ nhà mà vẫn đảm bảo kết cấu. Như bộ hồ sơ của anh Hợp, TechHome đã có sự kiểm duyệt kỹ lưỡng từ KTS và KS trước khi bàn giao. Sai một ly là đi một dặm đấy ạ!
7. Quy trình làm việc tại TechHome
Nếu bạn đã “phải lòng” mẫu nhà 2 tầng 1 tum hiện đại này, đừng ngần ngại liên hệ với TechHome. Quy trình của chúng tôi cực kỳ đơn giản và minh bạch:
-
Tiếp nhận thông tin: Lắng nghe nhu cầu, diện tích đất, hướng đất.
-
Khảo sát hiện trạng: Đo đạc thực tế tại khuôn viên đất .
-
Lên phương án mặt bằng: Chốt công năng sử dụng (số phòng, vị trí thang…).
-
Dựng phối cảnh 3D: Chốt hình dáng bên ngoài.
-
Triển khai hồ sơ kỹ thuật thi công: Điện, nước, kết cấu.
-
Bàn giao và Giám sát tác giả.

Kết luận
Mẫu nhà 2 tầng 1 tum hiện đại của gia đình anh Hợp tại Hoài Đức là một ví dụ điển hình cho xu hướng nhà ở thông minh, thực dụng nhưng vẫn đầy tính thẩm mỹ. Nó không chỉ là nơi che mưa che nắng, mà là tổ ấm, là niềm tự hào của cả gia đình.
Cảm ơn anh Hợp đã tin tưởng giao phó “giấc mơ” của mình cho TechHome.
Nếu bạn đang ấp ủ dự định xây nhà và muốn có một bản thiết kế “đo ni đóng giày” cho riêng mình, hay đơn giản là cần tư vấn thêm về mẫu nhà 2 tầng 1 tum hiện đại, hãy gọi TechHome ngay nhé!
Bạn muốn nhận Full bộ hồ sơ mẫu nhà này để tham khảo? Đừng ngần ngại để lại Comment hoặc nhắn tin Zalo cho Techhome nhé. TechHome luôn sẵn sàng hỗ trợ kỹ thuật xây dựng 24/7 qua Hotline: 0364.04.2222 – 0387.60.3333.
Hẹn gặp lại mọi người trong những bài review nhà đẹp tiếp theo!
Thông tin liên hệ:
-
CÔNG TY CỔ PHẦN KIẾN TRÚC VÀ XÂY DỰNG TECHHOME
-
Địa chỉ: B1.1 LK18 Ô 3 – KĐT Thanh Hà – Cienco 5 – Thanh Oai- Hà Nội.
-
Hotline: 0364.04.2222 – 0387.60.3333
-
Website: https://nhadeptechhome.vn/
