Chào các bạn! Có bao giờ bạn mơ ước về một ngôi nhà mà ở đó, sự hiện đại hòa quyện với nét truyền thống, nơi tiếng cười của con trẻ và sự tĩnh lặng của người già đều tìm thấy góc riêng cho mình? Hôm nay, Techhome muốn kể cho bạn nghe câu chuyện về mẫu nhà 2 tầng mái Nhật tại Bắc Ninh của anh Quang Hợp Thịnh. Đây không chỉ là một bản vẽ, mà là tâm huyết xây tổ ấm của cả một gia đình.
1. Câu chuyện về ngôi nhà của anh Thịnh tại Kinh Bắc
Anh Thịnh tìm đến Techhome với một trăn trở: “Anh muốn xây một ngôi nhà vừa phải hiện đại để các con thích, vừa phải có nét gì đó trầm mặc, vững chãi đúng chất người Bắc Ninh mình”. Và thế là, phương án mẫu nhà 2 tầng mái Nhật tại Bắc Ninh ra đời. Với diện tích sàn 111m² mỗi tầng, ngôi nhà này thực sự là một bài toán tối ưu công năng đầy thú vị.
Phối cảnh ngoại thất: Sự giao thoa giữa hiện đại và truyền thống
Nhìn vào phối cảnh 3D, điểm đập vào mắt bạn đầu tiên chắc chắn là hệ mái Nhật màu xanh đen thanh lịch. Khác với mái Thái có độ dốc cao, mái Nhật có độ dốc vừa phải, mở ra các hướng, tạo cảm giác bền bỉ và cân đối.
-
Màu sắc chủ đạo: Ngôi nhà sử dụng tông màu trắng sứ kết hợp với các mảng tường xám trung tính, tạo nên vẻ ngoài sang trọng nhưng không quá phô trương.
-
Điểm nhấn vật liệu: Cửa chính được làm bằng gỗ tự nhiên với họa tiết vòng tròn đồng tâm đại diện cho sự viên mãn. Hệ thống cửa sổ nhôm kính xingfa đen cao cấp giúp ngôi nhà luôn ngập tràn ánh sáng tự nhiên.
-
Hệ thống ánh sáng: Các kiến trúc sư Techhome đã khéo léo bố trí đèn tường trang trí dọc theo các trụ cột, giúp mẫu nhà 2 tầng mái Nhật tại Bắc Ninh lung linh hơn khi đêm về.

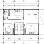
2. Chi tiết mặt bằng công năng: Tối ưu đến từng centimet
Một ngôi nhà đẹp trước hết phải là một ngôi nhà tiện dụng. Hãy cùng tôi “đột nhập” vào bên trong bản vẽ kỹ thuật của Techhome để xem chúng tôi đã phân chia không gian cho gia đình anh Thịnh như thế nào nhé.
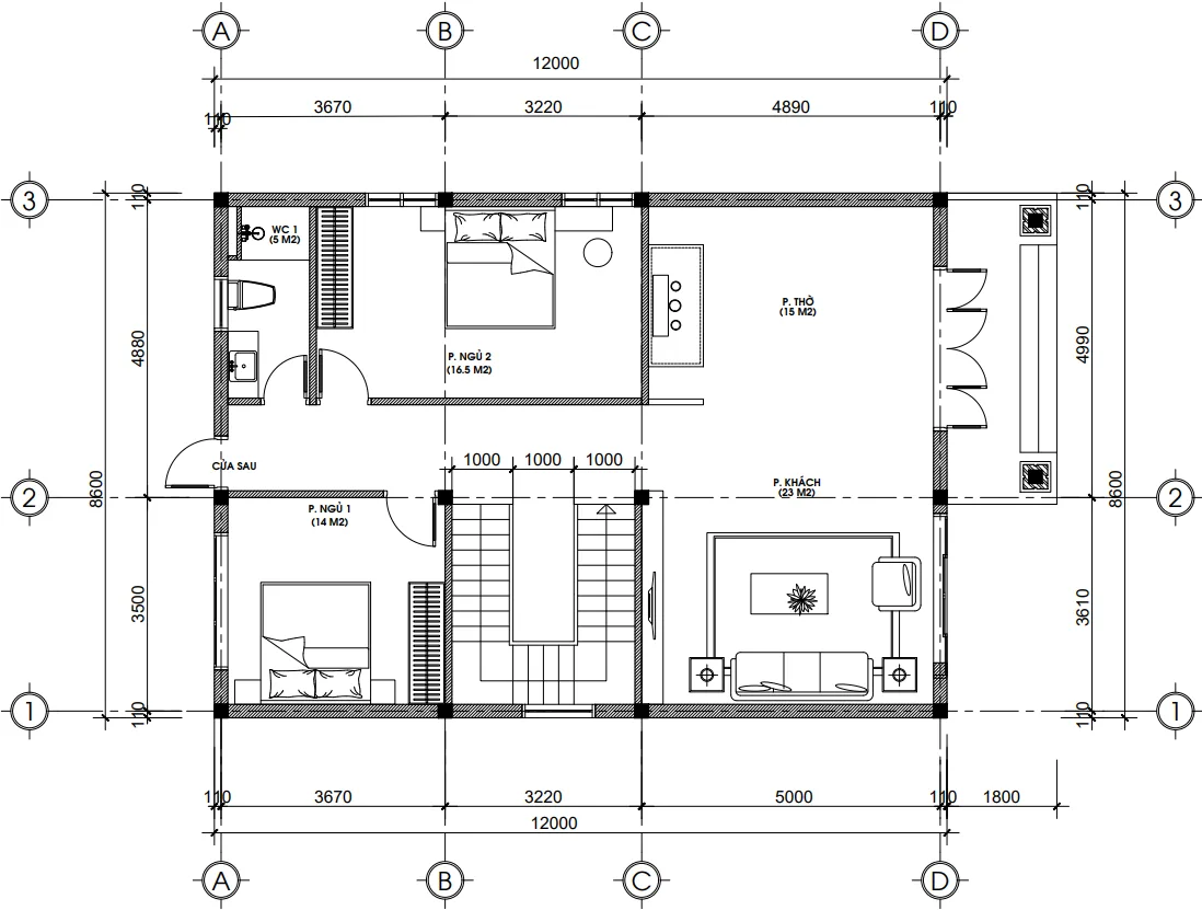
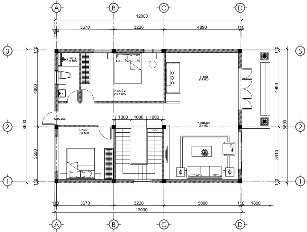
Tầng 1: Không gian gắn kết và truyền thống
Tầng 1 có chiều cao thông thủy 3.9m, tạo cảm giác cực kỳ thoáng đãng ngay khi bước chân vào nhà.
-
Phòng khách (23m²): Nằm ngay sau sảnh chính, đây là “trái tim” của ngôi nhà. Với diện tích này, anh Thịnh có thể thoải mái bài trí những bộ sofa lớn để tiếp đón bạn bè.
-
Phòng thờ (15m²): Được đặt ở vị trí trang trọng ngay tầng 1. Đây là nét đặc trưng trong văn hóa của người Bắc Ninh, giúp việc thờ cúng, lễ tết trở nên thuận tiện hơn, đặc biệt là với người lớn tuổi.
-
Phòng ngủ 1 & 2: Tầng 1 bố trí 2 phòng ngủ với diện tích lần lượt là 14m² và 16.5m². Việc đặt phòng ngủ dưới tầng 1 cực kỳ tâm lý, dành riêng cho ông bà để tránh việc phải leo cầu thang quá nhiều.
-
WC 1 (5m²): Được đặt kín đáo phía cuối hành lang, cạnh cửa sau để đảm bảo phong thủy và sự riêng tư.

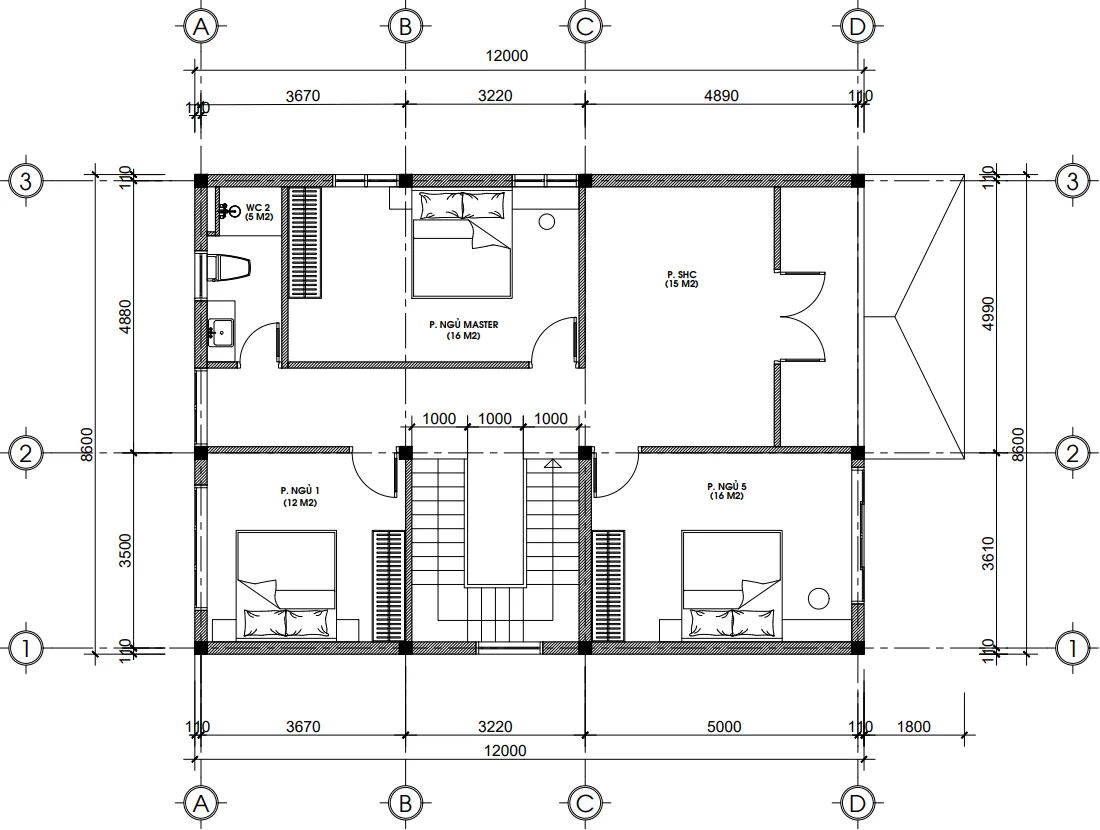
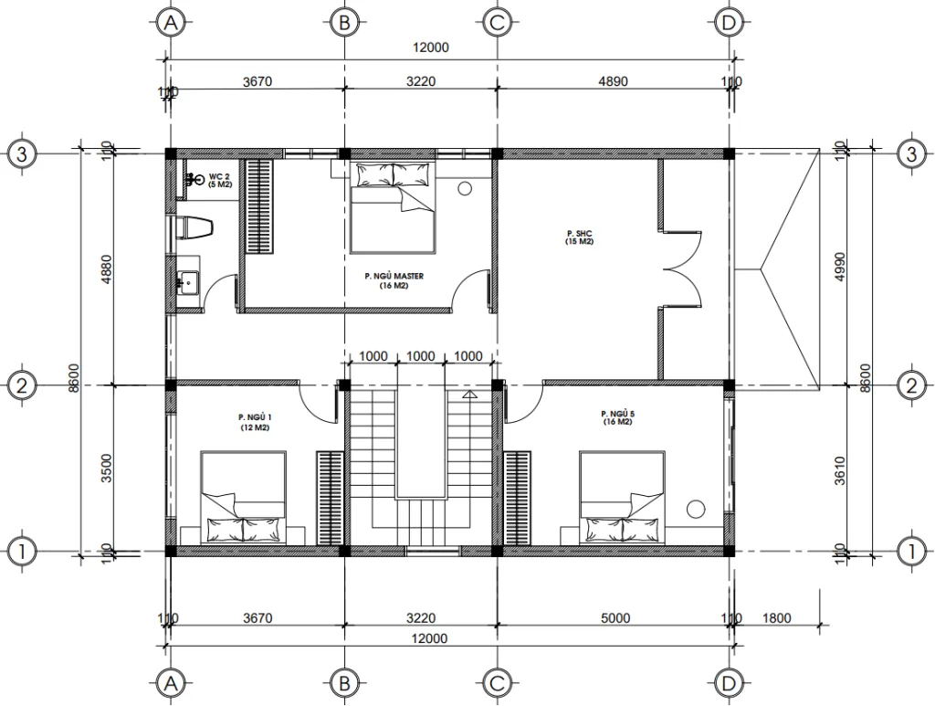
Tầng 2: Sự riêng tư và thư giãn
Tiếp tục hành trình khám phá mẫu nhà 2 tầng mái Nhật tại Bắc Ninh, chúng ta lên tầng 2 – không gian nghỉ ngơi của vợ chồng anh Thịnh và các con.
-
Phòng ngủ Master (16m²): Không gian riêng tư nhất của chủ nhà với hệ thống cửa sổ lớn .
-
Phòng sinh hoạt chung (15m²): Nằm ở giữa tầng, đây là nơi cả nhà cùng nhau xem phim, đọc sách mỗi tối trước khi đi ngủ.
-
Phòng ngủ 4 & 5: Thêm 2 phòng ngủ nữa cho các thành viên trong gia đình. Như vậy, tổng cộng ngôi nhà có tới 5 phòng ngủ – một con số ấn tượng cho diện tích 111m²/sàn.
-
Sân chơi ngoài trời: Khu vực ban công tầng 2 được thiết kế hệ lam gỗ phía trên, là góc “chill” lý tưởng để anh Thịnh trồng cây hoặc nhâm nhi tách trà vào buổi sáng.

3. Tại sao mẫu nhà 2 tầng mái Nhật tại Bắc Ninh lại được ưa chuộng?
Không phải ngẫu nhiên mà anh Thịnh và nhiều khách hàng khác của Techhome lại “phải lòng” phong cách này.
-
Phù hợp khí hậu: Mái Nhật có khả năng thoát nước tốt, chống nóng hiệu quả, rất phù hợp với kiểu thời tiết khắc nghiệt tại miền Bắc Việt Nam.
-
Vẻ đẹp vượt thời gian: Sự đơn giản trong đường nét khiến ngôi nhà không bị lỗi mốt sau 10 hay 20 năm nữa.
-
Chi phí hợp lý: So với các mẫu biệt thự cổ điển cầu kỳ, mẫu nhà 2 tầng mái Nhật tại Bắc Ninh giúp chủ đầu tư tiết kiệm được đáng kể chi phí nhân công đắp vẽ nhưng vẫn giữ được vẻ sang trọng.

4. Báo giá thi công trọn gói tại Techhome (Tham khảo 2026)
Để bạn dễ dàng hình dung và chuẩn bị ngân sách, Techhome xin đưa ra bảng báo giá sơ bộ cho mẫu nhà tương tự như của anh Thịnh.
Lưu ý: Đây chỉ là mức chi phí ước tính. Để nhận được báo giá chính xác và chi tiết nhất cho công trình của bạn, vui lòng liên hệ trực tiếp với chúng tôi. Hoặc để tìm hiểu rõ hơn về tiêu chuẩn vật liệu xây dựng và các yếu tố ảnh hưởng đến chi phí, bạn có thể tham khảo thêm tại các bài viết chuyên sâu về vật liệu xây dựng cao cấp trên Wikipedia.

5. Cảm nhận của khách hàng về dịch vụ của Techhome
Khi nhận bàn giao hồ sơ thiết kế, anh Thịnh có chia sẻ với chúng tôi: “Anh thích cái cách mà các bạn kiến trúc sư lắng nghe. Anh nói anh cần nhiều phòng ngủ nhưng nhà phải thoáng, các bạn đã xử lý rất mượt mà trên bản vẽ”.
Đó cũng chính là kim chỉ nam của Techhome. Chúng tôi không chỉ xây nhà, chúng tôi xây dựng sự an tâm. Mọi chi tiết trong mẫu nhà 2 tầng mái Nhật tại Bắc Ninh đều được tính toán kỹ lưỡng từ hướng gió, ánh sáng đến phong thủy tuổi của gia chủ.

6. Những lưu ý “vàng” khi xây mẫu nhà 2 tầng mái Nhật tại Bắc Ninh
Nếu bạn đang có ý định xây dựng tổ ấm theo phong cách này, đừng bỏ qua những kinh nghiệm xương máu sau:
-
Lựa chọn màu ngói: Nên chọn các tông màu trầm như xanh đen, xám hoặc nâu socola để tạo sự vững chãi. Tránh các màu quá rực rỡ làm mất đi nét tinh tế của mái Nhật.
-
Độ dốc mái: Mái Nhật cần độ dốc khoảng 25-30 độ. Nếu làm dốc quá sẽ thành mái Thái, nếu phẳng quá sẽ khó thoát nước.
-
Hệ thống thoát nước: Phải được tính toán ẩn bên trong sê-nô để không làm ảnh hưởng đến thẩm mỹ mặt tiền của mẫu nhà 2 tầng mái Nhật tại Bắc Ninh.

7. Kết luận
Ngôi nhà của anh Quang Hợp Thịnh là một minh chứng cho thấy: Không cần diện tích quá lớn hay chi phí quá xa xỉ, chỉ cần một thiết kế thông minh và tâm huyết, bạn hoàn toàn có thể sở hữu một không gian sống đẳng cấp. Mẫu nhà 2 tầng mái Nhật tại Bắc Ninh chính là lựa chọn hoàn hảo cho những ai yêu thích vẻ đẹp hiện đại, tinh tế và ấm cúng.
Bạn có muốn sở hữu một bản thiết kế “đo ni đóng giày” cho gia đình mình như anh Thịnh không? Đừng ngần ngại liên hệ với Techhome nhé!
THÔNG TIN LIÊN HỆ:
-
Công ty Cổ phần Kiến trúc và Xây dựng Techhome
-
Website: nhadeptechhome.vn
-
Hotline: 036.273.2222
-
Địa chỉ: B1.1 LK18 Ô 3 – KĐT Thanh Hà – Cienco 5 – Thanh Oai- Hà Nội.
Hãy để Techhome biến ngôi nhà trong mơ của bạn thành hiện thực với mẫu nhà 2 tầng mái Nhật tại Bắc Ninh tuyệt đẹp này!
