Nếu có ai đó hỏi Tôi rằng: “Làm thế nào để xây một ngôi nhà vừa sang trọng như biệt thự, lại vừa tiết kiệm chi phí, mà công năng vẫn phải thừa thãi cho gia đình 3 thế hệ?”, thì câu trả lời chắc chắn là hãy tham khảo ngay mẫu nhà 2 tầng 1 tum mái Nhật.
Hôm nay, Techhome không nói về lý thuyết suông. Chúng tôi muốn đưa các bạn về thăm mảnh đất Thạch Thất – Hà Nội, nơi Techhome vừa bàn giao hồ sơ thiết kế cho gia đình anh Nam. Đây không chỉ là một ngôi nhà, đó là bài toán cân não về việc xử lý khu đất không vuông vức thành một không gian sống lý tưởng. Hãy cùng Techhome “mổ xẻ” công trình này nhé!
1. Thông tin tổng quan dự án
Trước khi đi sâu vào chi tiết, mời quý gia chủ điểm qua các thông số “vàng” của công trình này. Đây là những con số biết nói, minh chứng cho năng lực của đội ngũ Techhome:
| Hạng mục | Thông tin chi tiết |
| Chủ đầu tư |
Anh Nam |
| Địa điểm |
Thạch Thất – Hà Nội |
| Loại hình | Mẫu nhà 2 tầng 1 tum mái Nhật (Biệt thự Tân cổ điển) |
| Kích thước xây dựng |
mặt tiền 11m x chiều sâu 10m |
| Tổng diện tích sàn |
282 m2 |
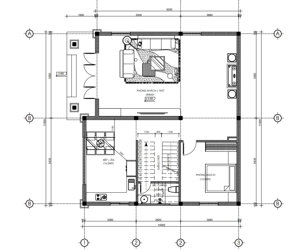
| Công năng tầng 1 |
Phòng khách kết hợp phòng thờ (45m2), Bếp ăn (16.5m2), 1 Ngủ, 1 WC |
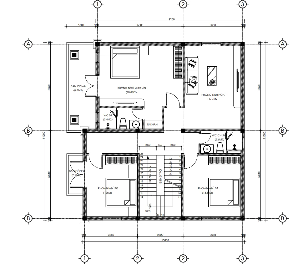
| Công năng tầng 2 |
1 Ngủ Master (20.8m2), 2 Ngủ thường, Phòng sinh hoạt chung |
| Công năng tầng Tum |
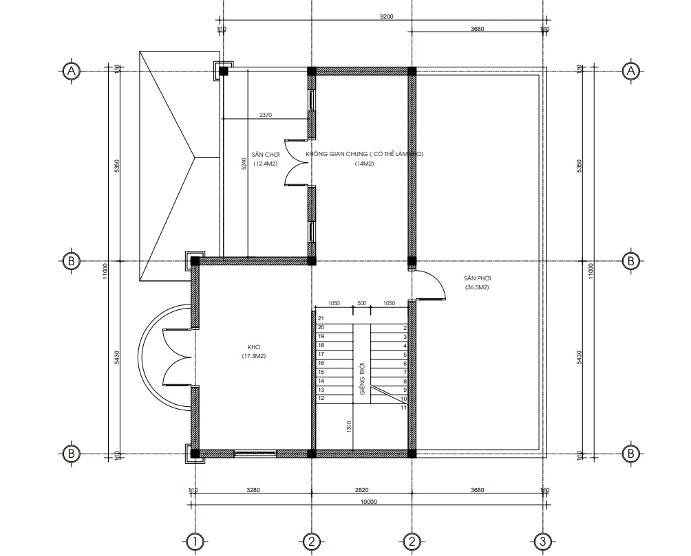
Kho, Sân chơi, Không gian chung, Sân phơi |
| Đơn vị thiết kế |
Công ty Cổ phần Kiến trúc và Xây dựng Techhome |

2. Tại sao “Mẫu nhà 2 tầng 1 tum mái Nhật” lại trở thành xu hướng năm 2025-2026?
Nhiều người thắc mắc: “Tại sao không xây hẳn 3 tầng cho oách, mà lại làm 2 tầng 1 tum?”. Câu chuyện nằm ở sự tinh tế và bài toán kinh tế.
Với mẫu nhà 2 tầng 1 tum mái Nhật, gia chủ sẽ tận dụng được phần “tum” (tầng thượng có mái che một phần) để làm các khu vực chức năng như kho, sân phơi mà không tốn quá nhiều chi phí xây dựng như một tầng trọn vẹn. Hơn nữa, xét về thẩm mỹ, khối tum giúp ngôi nhà trông cao ráo, bề thế hơn hẳn so với nhà 2 tầng truyền thống, nhưng lại thanh thoát hơn nhà 3 tầng đồ sộ.
Nhìn vào phối cảnh mặt tiền nhà anh Nam, bạn sẽ thấy sự kết hợp hoàn hảo giữa màu trắng sứ chủ đạo và hệ mái Nhật màu xanh than. Các phào chỉ chạy dọc trụ cột không quá rườm rà mà rất gãy gọn, tạo nên nét đẹp bền vững với thời gian. Đây chính là “chân ái” cho những ai yêu cái đẹp nhưng sợ sự lỗi mốt.

3. Phân tích chuyên sâu: Giải mã công năng bên trong
Là một người làm nghề viết và am hiểu kiến trúc, Tôi luôn tâm niệm: “Nhà đẹp bên ngoài chỉ để ngắm, nhà tiện bên trong mới để sống”. Hãy xem Techhome đã bố trí mẫu nhà 2 tầng 1 tum mái Nhật này như thế nào để thuyết phục được anh Nam ngay từ phương án đầu tiên.
3.1. Tầng 1: Sự kết nối và tôn nghiêm
Bước vào sảnh chính, chúng ta bắt gặp ngay không gian Phòng khách kết hợp Phòng thờ rộng tới 45m2. Đây là nét văn hóa rất đặc trưng của người Bắc Bộ nói chung và khu vực Thạch Thất nói riêng. Việc đặt bàn thờ tại tầng 1 giúp việc hương khói của ông bà, cha mẹ già thuận tiện hơn, đồng thời tạo cảm giác ấm cúng mỗi khi con cháu quây quần.
Khu vực Bếp và Ăn (16.5m2) được thiết kế khéo léo, ngăn cách nhẹ nhàng với phòng khách và phòng ngủ bằng cầu thang và hệ lam gỗ. Điều này giúp mùi thức ăn không bay trực tiếp ra nơi tiếp khách – một lỗi sơ đẳng mà nhiều thiết kế nghiệp dư hay mắc phải. Đặc biệt, Techhome bố trí một Phòng ngủ nhỏ (13.5m2) ở tầng 1. Đây là sự tính toán nhân văn dành cho người lớn tuổi trong gia đình, hạn chế việc leo cầu thang gây đau khớp, mỏi gối.

3.2. Tầng 2: Không gian riêng tư chuẩn “Resort”
Di chuyển lên tầng 2 thông qua cầu thang 25 bậc (chuẩn phong thủy Sinh – Lão – Bệnh – Tử), chúng ta đến với thế giới riêng tư. Điểm nhấn là Phòng ngủ Master rộng 20.8m2 dành cho vợ chồng anh Nam. Phòng này có WC khép kín, đảm bảo sự tiện nghi tối đa. Hai phòng ngủ còn lại dành cho các con, diện tích lần lượt là 12m2 và 13.5m2, đủ để bố trí bàn học, tủ quần áo và giường lớn.
Ở trung tâm là Phòng sinh hoạt chung (17.7m2). Trong các mẫu nhà 2 tầng 1 tum mái Nhật hiện đại, không gian này cực kỳ quan trọng. Đó là nơi cả nhà cùng xem phim, hát karaoke vào cuối tuần mà không làm ồn xuống khu vực tiếp khách tầng 1.

3.3. Tầng Tum: “Vũ khí bí mật” của ngôi nhà
Tầng tum chính là lý do khiến mẫu nhà 2 tầng 1 tum mái Nhật trở nên đắt giá. Tại nhà anh Nam, tầng tum có diện tích thiết kế 52m2, bao gồm:
-
Kho chứa đồ (17.3m2): Nơi cất giữ những vật dụng ít dùng, giúp nhà cửa luôn gọn gàng.
-
Sân chơi (12.4m2) và Sân phơi (36.5m2): Techhome đã tính toán hướng gió và ánh nắng để quần áo luôn thơm tho, đồng thời tạo ra một khoảng trời riêng để gia chủ trồng cây, thưởng trà.
-
Một không gian chung dự phòng (14m2) có thể linh hoạt biến đổi thành phòng tập gym hoặc phòng thờ riêng biệt nếu sau này gia chủ muốn tách biệt không gian thờ cúng.

4. Góc nhìn chuyên gia: Những “điểm chết” đã được Techhome hóa giải ra sao?
Khi nhìn vào bản vẽ định vị, các bạn sẽ thấy khu đất của anh Nam không hề vuông vắn. Nếu không khéo léo, ngôi nhà sẽ bị méo mó, phạm phong thủy.
Các Kiến trúc sư (KTS) đã áp dụng giải pháp “lấy vuông bỏ méo”. Chúng tôi định vị khối nhà chính vuông vức, đẩy các phần diện tích xéo ra làm sân vườn và công trình phụ. Đặc biệt, hệ thống Giếng trời được bố trí xuyên suốt từ mái xuống cầu thang. Trong mẫu nhà 2 tầng 1 tum mái Nhật, giếng trời là “lá phổi”, giúp đối lưu không khí, xua tan sự bí bách của những ngôi nhà phố hay nhà trong ngõ hẹp.
5. Báo giá thiết kế và thi công: Sự thật trần trụi
Nhiều đơn vị thường báo giá “ảo” để kéo khách, nhưng Techhome chọn cách thẳng thắn. Để sở hữu một mẫu nhà 2 tầng 1 tum mái Nhật đẳng cấp như nhà anh Nam, chi phí sẽ phụ thuộc vào thời điểm, giá vật liệu và vị trí địa lý. Tuy nhiên, Tôi xin đưa ra khoảng giá tham khảo sát sườn nhất năm 2025-2026 tại thị trường Hà Nội để các bạn chuẩn bị tài chính:
5.1. Chi phí thiết kế kiến trúc
Hiện nay, đơn giá thiết kế của chúng tôi là 108.000đ/m2. Ví dụ, với tổng diện tích 282m2 như nhà anh Nam, chi phí thiết kế trọn gói (bao gồm kiến trúc, kết cấu, điện nước, phối cảnh 3D) sẽ cực kỳ hợp lý khoảng 31 triệu. Đây là khoản đầu tư “nhỏ nhưng có võ”, giúp bạn tránh lãng phí hàng trăm triệu đồng tiền vật liệu do thi công sai.
5.2. Chi phí thi công xây dựng (Dự toán)
Đối với mẫu nhà 2 tầng 1 tum mái Nhật phong cách Tân cổ điển:
-
Gói xây thô + nhân công hoàn thiện: Khoảng 3.800.000đ – 4.500.000đ/m2.
-
Gói xây nhà trọn gói (Chìa khóa trao tay): Dao động từ 6.500.000đ – 7.500.000đ/m2 (tùy chủng loại vật tư trung bình, khá hay cao cấp).
Lưu ý: Mức giá này có thể thay đổi tùy thuộc vào nền móng nhà bạn yếu hay khỏe, đường vào công trình xe to có vào được không.
Lời khuyên : Đừng ham rẻ mà chọn nhà thầu không uy tín. “Tiền nào của nấy”, một mẫu nhà 2 tầng 1 tum mái Nhật đẹp cần những người thợ có tay nghề cao để đắp vẽ phào chỉ sắc nét, chứ không phải thợ “tay ngang”.

6. Chất liệu làm nên vẻ đẹp vượt thời gian
Nhìn vào phối cảnh, bạn sẽ thấy ngôi nhà toát lên vẻ sang trọng. Để hiện thực hóa hình ảnh đó, Techhome đề xuất sử dụng các vật liệu sau:
-
Hệ cửa: Sử dụng nhôm kính Xingfa cao cấp màu đen tuyền. Nó tạo sự tương phản mạnh mẽ với sơn tường trắng, lại bền bỉ trước nắng mưa nhiệt đới.
-
Lan can: Lan can nhôm đúc nghệ thuật mạ vàng đồng. Đây là điểm nhấn “đắt giá” nâng tầm đẳng cấp cho mẫu nhà 2 tầng 1 tum mái Nhật, thay vì dùng inox lạnh lẽo hay con tiện bê tông thô kệch.
-
Mái ngói: Ngói sóng màu xanh than (Fuji hoặc Prime). Loại ngói này tản nhiệt tốt, giúp tầng 2 và tầng tum luôn mát mẻ vào mùa hè.
Để tìm hiểu rõ hơn về tiêu chuẩn vật liệu xây dựng và các yếu tố ảnh hưởng đến chi phí, bạn có thể tham khảo thêm tại các bài viết chuyên sâu về vật liệu xây dựng cao cấp trên Wikipedia.

7. Quy trình làm việc “Thực chiến” tại Techhome
Để ra được bộ hồ sơ dày dặn , quy trình của chúng tôi không có chỗ cho sự hời hợt:
-
Khảo sát thực địa: KTS trực tiếp về Thạch Thất đo đạc bằng máy laser, bay flycam để nhìn tổng thể khu đất.
-
Lên phương án mặt bằng: Nghiên cứu để tìm ra hướng nhà hợp tuổi anh Nam, bố trí bếp tọa hung hướng cát.
-
Dựng phối cảnh 3D: Giúp gia chủ hình dung rõ nét mẫu nhà 2 tầng 1 tum mái Nhật của mình trong tương lai.
-
Bổ kỹ thuật thi công: Chi tiết đến từng viên gạch, ổ cắm điện.
-
Giám sát tác giả: Hỗ trợ tư vấn kỹ thuật qua hotline 0364.04.2222 trong suốt quá trình xây dựng.
8. Tại sao khách hàng Thạch Thất, Hà Nội tin chọn Techhome?
Thạch Thất là vùng đất của những làng nghề, người dân ở đây có gu thẩm mỹ rất cao và cực kỳ kỹ tính về gỗ lạt, xây dựng. Việc anh Nam chọn Techhome để gửi gắm mẫu nhà 2 tầng 1 tum mái Nhật là minh chứng cho sự uy tín của chúng tôi.
Chúng tôi hiểu rằng, xây nhà là chuyện cả đời. Có những khách hàng tích cóp 10 năm, 20 năm mới đủ tiền xây dựng tổ ấm. Vì vậy, mỗi nét vẽ của Techhome đều chứa đựng trách nhiệm. Chúng tôi không chỉ vẽ nhà, chúng tôi vẽ nơi để “bão dừng sau cánh cửa”.

9. Câu chuyện bên lề: “Bát đũa còn có lúc xô”
Trong quá trình thiết kế, không phải lúc nào ý kiến của KTS và gia chủ cũng đồng nhất ngay lập tức. Có lúc anh Nam muốn làm mái bằng cho rẻ, nhưng chúng tôi đã kiên trì thuyết phục anh chọn mẫu nhà 2 tầng 1 tum mái Nhật. Bởi lẽ, mái bằng rất dễ bị nóng và thấm dột sau vài năm sử dụng tại khí hậu miền Bắc. Mái Nhật có độ dốc vừa phải, thoát nước nhanh và tạo lớp đệm không khí cách nhiệt tuyệt vời. Sau khi nghe phân tích thấu đáo, anh Nam đã đồng ý và giờ đây rất hài lòng với quyết định đó.
Đó, làm nghề kiến trúc sư đôi khi phải “cứng đầu” một chút vì lợi ích lâu dài của khách hàng.
10. Tổng kết
Mẫu nhà 2 tầng 1 tum mái Nhật của gia đình anh Nam tại Thạch Thất là một ví dụ điển hình cho xu hướng nhà ở hiện đại: Thẩm mỹ tinh tế – Công năng tối ưu – Chi phí hợp lý. Với diện tích sàn 282m2 được bố trí khoa học, đây sẽ là tổ ấm vững chãi che chở cho cả gia đình qua bao mưa nắng.
Nếu bạn đang sở hữu một mảnh đất tương tự, hay đơn giản là trót yêu thích vẻ đẹp thanh lịch của mẫu nhà 2 tầng 1 tum mái Nhật, đừng ngần ngại liên hệ với Techhome. Dù bạn ở Hà Nội hay bất cứ tỉnh thành nào, chúng tôi đều sẵn sàng lên đường kiến tạo không gian sống cho bạn.
Hãy nhớ, một bản thiết kế tốt sẽ tiết kiệm cho bạn rất nhiều tiền phát sinh và hàng tấn lo âu khi xây dựng.

🚦 BẠN CẦN TƯ VẤN THIẾT KẾ & THI CÔNG TRỌN GÓI?
Đừng để những băn khoăn về chi phí hay phong thủy làm chậm trễ kế hoạch xây nhà của bạn. Techhome ở đây để lắng nghe và đưa ra giải pháp tối ưu nhất.
👉 Liên hệ ngay để nhận báo giá chi tiết cho mẫu nhà 2 tầng 1 tum mái Nhật:
-
Hotline/Zalo: 0364.04.2222 – 0387.60.3333
-
Website: https://nhadeptechhome.vn/
-
Địa chỉ: B1.1 LK18 Ô 3 – KĐT Thanh Hà – Cienco 5 – Thanh Oai- Hà Nội.
Techhome – Kiến tạo không gian, Vun đắp hạnh phúc!
