Mẫu Biệt Thự Mái Nhật 2 Tầng Tân Cổ Điển Đẳng Cấp Tại Hà Nam – Tuyệt Tác Kiến Trúc Nhà Anh Thành

Chiêm ngưỡng mẫu biệt thự mái Nhật 2 tầng phong cách Tân cổ điển sang trọng của gia đình anh Thành tại Hà Nam. Thiết kế 4 phòng ngủ tiện nghi, phào chỉ tinh tế. Liên hệ Techhome: 0364.04.2222.

Giới thiệu chung về dự án

Giữa vô vàn phong cách kiến trúc hiện nay, sự kết hợp giữa nét thanh lịch của kiến trúc Châu Âu và hệ mái Á Đông luôn tạo nên sức hút khó cưỡng. Mẫu biệt thự mái Nhật 2 tầng mà Techhome vừa hoàn thiện hồ sơ thiết kế cho gia đình Anh Thành tại Lý Nhân – Hà Nam chính là một tuyệt tác như vậy.

Không chạy theo những đường nét vuông vức đơn giản của phong cách Hiện đại, anh Thành lựa chọn phong cách Tân cổ điển (Neo Classical) để khẳng định vị thế và gu thẩm mỹ tinh tế của mình. Công trình là sự giao thoa hoàn hảo giữa sự bề thế, sang trọng của các thức cột, phào chỉ và nét thanh thoát, gần gũi của hệ mái Nhật.

  • Chủ đầu tư: Anh Thành

  • Địa điểm xây dựng: Lý Nhân – Hà Nam

  • Kích thước xây dựng: 10.2m x 15.95m

  • Phong cách: Tân cổ điển

  • Đơn vị thiết kế: Techhome

biệt thự mái nhật 2 tầng

Phân tích mặt bằng công năng tối ưu

Với diện tích xây dựng lý tưởng, các KTS Techhome đã bố trí công năng cho biệt thự mái Nhật 2 tầng này một cách khoa học, đáp ứng nhu cầu của gia đình đa thế hệ:

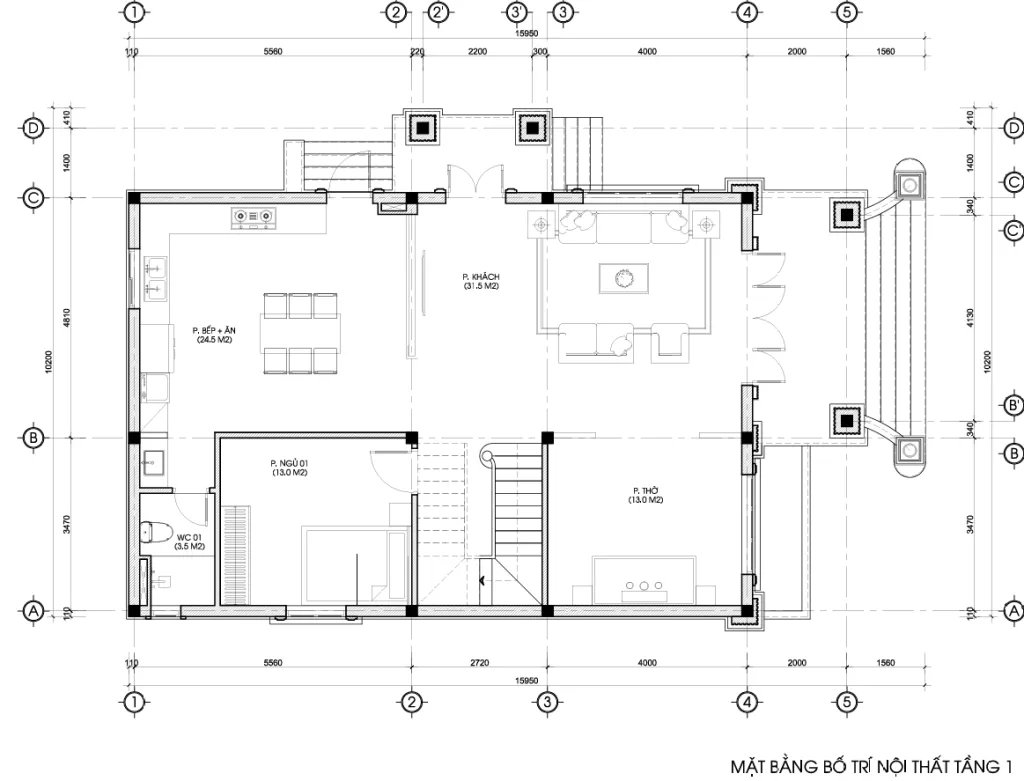
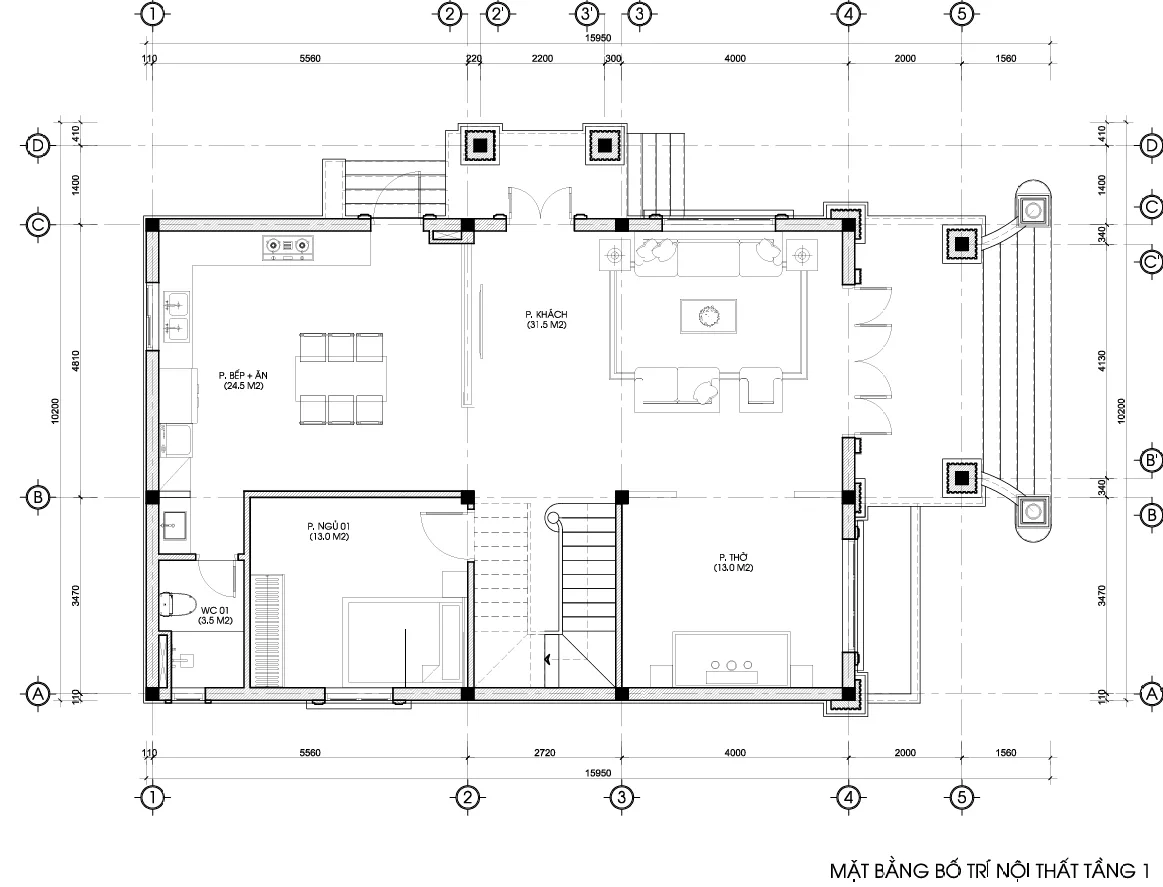
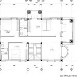
Tầng 1: Không gian kết nối và trang trọng

  • Phòng khách (31.5 m2): Không gian đại sảnh rộng lớn ngay sau cửa chính, là bộ mặt của ngôi nhà với nội thất sang trọng.

  • Phòng thờ (13.0 m2): Được đặt tại vị trí trang trọng phía trước nhà, cạnh phòng khách, đảm bảo sự tôn nghiêm và phong thủy.

  • Phòng Bếp + Ăn (24.5 m2): Khu vực giữ lửa gia đình rộng rãi, có cửa sổ lớn thoáng khí.

  • Phòng ngủ 01 (13.0 m2): Phòng ngủ khép kín tiện nghi dành cho người lớn tuổi để hạn chế leo cầu thang.

  • Vệ sinh chung (3.5 m2): Bố trí kín đáo, thuận tiện.

mặt bằng biệt thự mái nhật 2 tầng

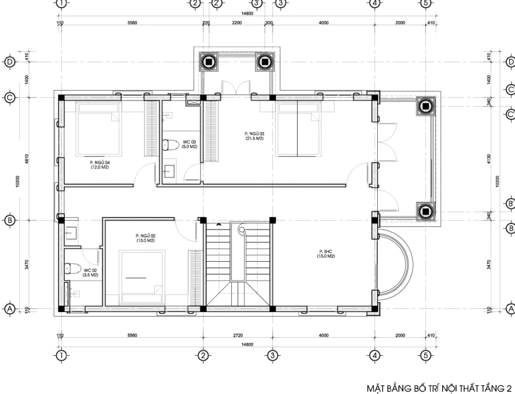
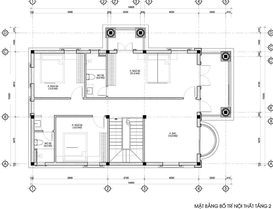
Tầng 2: Không gian nghỉ ngơi riêng tư

  • Phòng sinh hoạt chung (13.0 m2): Nơi sum họp riêng tư của các thành viên trước khi đi ngủ.

  • Phòng ngủ Master 03 (21.5 m2): Không gian rộng nhất dành cho gia chủ, có ban công vòm lớn hướng ra mặt tiền cực thoáng.

  • Phòng ngủ 02 (13.0 m2) và Phòng ngủ 04 (12.0 m2): Hai phòng ngủ cho các con được bố trí hợp lý, đảm bảo ánh sáng tự nhiên.

  • Khu vực vệ sinh: Gồm 1 WC chung rộng 5.0 m2 và 1 WC khép kín 3.5 m2.

mặt bằng biệt thự mái nhật 2 tầng

Phối cảnh ngoại thất: Vẻ đẹp Tân cổ điển lộng lẫy

Điều làm nên giá trị của mẫu biệt thự mái Nhật 2 tầng này chính là tỷ lệ vàng trong kiến trúc và sự tỉ mỉ trong từng chi tiết trang trí:

  • Hệ mái Nhật thanh thoát: Khác với mái Thái cao vút, hệ mái Nhật màu xanh than của ngôi nhà có độ dốc vừa phải, mở rộng ra các hướng, tạo cảm giác đầm ấm, vững chãi nhưng vẫn vô cùng thanh thoát.

  • Kiến trúc vòm cong mềm mại: Điểm nhấn đắt giá của mặt tiền là hệ sảnh đón và các ô cửa sổ vòm cong tại tầng 2. Chi tiết này giúp làm mềm đi sự cứng nhắc của các khối bê tông, mang lại vẻ đẹp lãng mạn đặc trưng của kiến trúc Pháp.

  • Hệ cột và Phào chỉ tinh xảo: Hệ thống trụ cột vuông vức tại sảnh chính tầng 1 tạo sự uy nghi , nâng đỡ ban công tầng 2 với các thức cột tròn mềm mại. Các đường gờ, phào chỉ chạy dọc thân cột, viền cửa sổ và phân tầng được đắp vẽ tỉ mỉ theo tỷ lệ chuẩn, không quá rườm rà nhưng đủ để toát lên sự quý phái.

  • Vật liệu cao cấp: Sắc trắng sứ chủ đạo làm nổi bật hệ lan can nhôm đúc nghệ thuật màu vàng kim sang trọng. Cửa chính sử dụng gỗ tự nhiên pano kính lớn tạo sự bề thế, trong khi hệ cửa sổ nhôm kính cao cấp giúp đón sáng tự nhiên tối đa.

biệt thự mái nhật 2 tầng

Đánh giá về Kết cấu và Vật liệu hoàn thiện

Để kiến tạo nên một căn biệt thự mái Nhật 2 tầng phong cách Tân cổ điển bền vững cùng thời gian, Techhome chú trọng đặc biệt vào phần kết cấu và vật liệu:

  • Sàn và Nền: Phòng khách và các khu vực sinh hoạt chung được lát gạch Granite vân đá khổ lớn 800×800, tạo hiệu ứng không gian rộng mở và sang trọng. Khu vực ban công và WC sử dụng gạch chống trơn đảm bảo an toàn.

  • Trần thạch cao: Hệ trần thạch cao giật cấp kết hợp phào chỉ trang trí và đèn hắt âm trần là yếu tố bắt buộc để tôn lên vẻ đẹp Tân cổ điển của nội thất.

  • Hệ thống cửa: Sự kết hợp giữa cửa gỗ tự nhiên ấm cúng tại sảnh chính và cửa nhôm hệ kính an toàn (dày 6.38mm – 8.38mm) tại các cửa sổ giúp ngôi nhà vừa an toàn, vừa hiện đại và cách âm tốt.

biệt thự mái nhật 2 tầng

Lợi ích và Giá trị khi chọn Techhome

Tại sao gia đình anh Thành tại Hà Nam lại tin tưởng giao phó công trình tâm huyết cho Techhome?

  1. Chuyên sâu về Tân cổ điển: Chúng tôi am hiểu sâu sắc về tỷ lệ kiến trúc, thức cột và hoa văn phào chỉ, đảm bảo ngôi nhà toát lên “thần thái” sang trọng đúng nghĩa chứ không phải là sự chắp vá.

  2. Hồ sơ kỹ thuật chi tiết: Bộ hồ sơ thiết kế dày dạn chi tiết từ mặt bằng lát sàn, bố trí đèn trần đến từng chi tiết con sơn, phào cửa… giúp việc thi công chính xác tuyệt đối.

  3. Đồng hành cùng gia chủ: Techhome hỗ trợ tư vấn kỹ thuật xây dựng 24/7 qua hotline 0364.04.2222, giúp chủ nhà yên tâm trong suốt quá trình thi công.

biệt thự mái nhật 2 tầng

Biệt thự mái nhật 2 tầng nhà anh Thành có giá bao nhiêu?

So với phong cách hiện đại, chi phí xây dựng biệt thự mái Nhật 2 tầng phong cách Tân cổ điển thường cao hơn do yêu cầu kỹ thuật đắp vẽ phào chỉ thủ công và vật liệu hoàn thiện cầu kỳ hơn.

  • Diện tích sàn xây dựng: Khoảng 160m2/sàn. Tổng diện tích sử dụng khoảng 320m2.

  • Chi phí hoàn thiện (Dự kiến): Với mức độ hoàn thiện khá như nhà anh Thành (cửa gỗ, nhôm hệ cao cấp, ngói sóng, đá ốp…), chi phí xây dựng trọn gói thường dao động từ 7 – 8 triệu đồng/m2.

Lưu ý: Đây chỉ là mức chi phí ước tính. Để nhận được báo giá chính xác và chi tiết nhất cho công trình của bạn, vui lòng liên hệ trực tiếp với chúng tôi. Hoặc để tìm hiểu rõ hơn về tiêu chuẩn vật liệu xây dựng và các yếu tố ảnh hưởng đến chi phí, bạn có thể tham khảo thêm tại các bài viết chuyên sâu về vật liệu xây dựng cao cấp trên Wikipedia.

Kết luận 

Mẫu biệt thự mái Nhật 2 tầng Tân cổ điển của gia đình anh Thành là minh chứng cho thấy một ngôi nhà đẹp không chỉ ở vẻ bề ngoài lộng lẫy mà còn ở công năng sử dụng thông minh. Đây chắc chắn là mẫu nhà mơ ước của nhiều gia chủ yêu thích sự sang trọng và tinh tế.

Bạn muốn sở hữu một cơ ngơi đẳng cấp như vậy? Hãy để Techhome giúp bạn!

👉 Liên hệ ngay để nhận tư vấn và báo giá chi tiết:

  • CÔNG TY CỔ PHẦN KIẾN TRÚC VÀ XÂY DỰNG TECHHOME

  • Hotline/Zalo: 0364.04.2222 – 0387.60.3333

  • Xem thêm các dự án nổi bật khác của Techhome tại https://nhadeptechhome.vn/

Để lại một bình luận

Email của bạn sẽ không được hiển thị công khai. Các trường bắt buộc được đánh dấu *

    Vui lòng nhấn nút YÊU CẦU TƯ VẤN và đợi 1 - 2 giây đến khi thấy thông báo thành công

    YÊU CẦU TƯ VẤN