Tuyệt Phẩm Nhà Tân Cổ Điển 2 Tầng Mái Nhật: Dấu Ấn Thượng Lưu Của Gia Đình Anh Đô – Ninh Bình

Chiêm ngưỡng vẻ đẹp vượt thời gian của mẫu nhà tân cổ điển 2 tầng mái Nhật tại Xuân Hưng – Ninh Bình. Thiết kế 4 phòng ngủ sang trọng, công năng hoàn hảo từ Techhome. Hotline: 0364.04.2222.

Khởi nguồn cảm hứng: Khi nét đẹp Á – Âu giao hòa

Trong dòng chảy kiến trúc đương đại, việc tìm kiếm một ngôi nhà vừa mang dáng vẻ bề thế, quyền quý của phương Tây, vừa giữ được nét thanh tao, gần gũi của văn hóa Á Đông là mong muốn của rất nhiều gia chủ thành đạt. Dự án nhà tân cổ điển 2 tầng mái Nhật mà Techhome kiến tạo cho gia đình Anh Đô tại Xuân Hưng – Ninh Bình chính là câu trả lời hoàn hảo cho bài toán đó.

Không đơn thuần là nơi che mưa nắng, ngôi nhà này được ví như một “dinh thự mini” giữa lòng cố đô, nơi khẳng định gu thẩm mỹ tinh tế và vị thế của chủ nhân.

nhà tân cổ điển 2 tầng mái Nhật

Đánh giá ngoại thất: Vẻ đẹp hút hồn từ mọi ánh nhìn

Điểm “đắt giá” nhất của mẫu nhà tân cổ điển 2 tầng mái Nhật này chính là nghệ thuật phối màu và tạo hình khối:

  • Sự đăng đối chuẩn mực: Mặt tiền ngôi nhà tuân thủ nghiêm ngặt tỷ lệ vàng của kiến trúc Tân cổ điển. Hệ cột trụ vuông vức, khỏe khoắn tại tầng 1 nâng đỡ sự mềm mại, uyển chuyển của hệ cột tròn và các vòm cong tại tầng 2, tạo nên một bản giao hưởng kiến trúc nhịp nhàng .

  • Hệ mái Nhật thanh thoát: Thay vì sử dụng mái ngói đỏ truyền thống hay mái Mansard đồ sộ, các KTS Techhome đã khéo léo sử dụng hệ mái Nhật màu xanh than lịch lãm. Độ dốc vừa phải của mái Nhật không chỉ giúp thoát nước mưa nhanh, chống nóng tốt cho khí hậu Ninh Bình mà còn giúp tổng thể công trình trở nên cao ráo và thanh thoát hơn .

  • Hoa văn phào chỉ tinh tế: Các chi tiết phào chỉ, con sơn, phù điêu đầu cột được giản lược bớt sự rườm rà, chỉ giữ lại những đường nét tinh túy nhất. Sắc trắng sứ chủ đạo làm nền cho hệ lan can nhôm đúc nghệ thuật màu vàng kim tỏa sáng, tạo nên vẻ đẹp sang trọng, quyền quý.

nhà tân cổ điển 2 tầng mái Nhật

Phân tích công năng: Trải nghiệm sống tiện nghi và khoa học

Sở hữu kích thước xây dựng lý tưởng (khoảng 9m x 13.2m) trên khuôn viên đất rộng, nhà tân cổ điển 2 tầng mái Nhật của anh Đô được Techhome quy hoạch công năng tối ưu cho gia đình đa thế hệ:

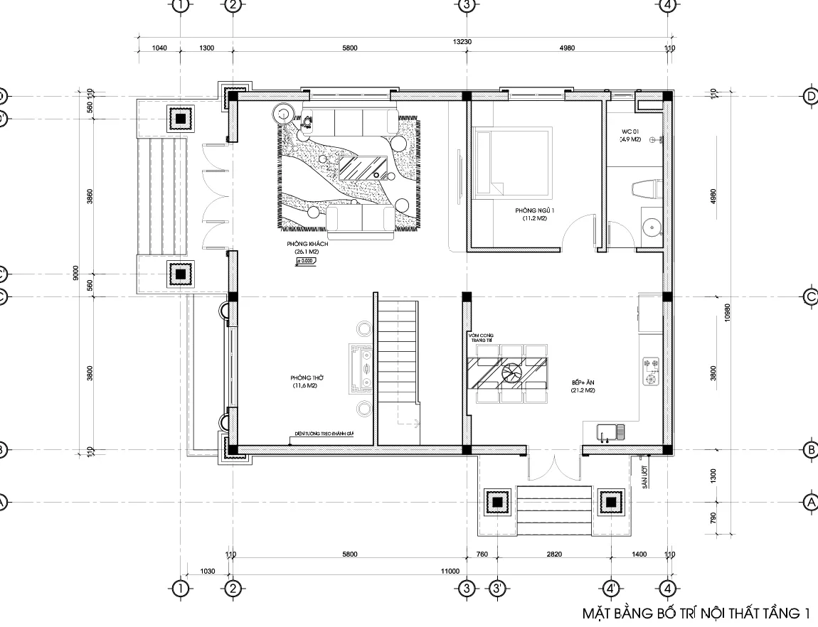
Tầng 1: Không gian kết nối yêu thương

Bước qua sảnh chính bề thế là không gian Phòng khách rộng 26.1m2 sang trọng, nơi thể hiện lòng hiếu khách của gia chủ. Điểm đặc biệt trong thiết kế này là Phòng thờ (11.6m2) được đặt ngay tầng 1, vị trí trang trọng phía trước, thuận tiện cho việc hương khói của người lớn tuổi. Khu vực Bếp + Ăn (21.2m2) được bố trí liên thông nhưng vẫn kín đáo, kết nối trực tiếp với sảnh phụ và sân ướt, giúp không gian luôn thoáng đãng, không bị ám mùi. Ngoài ra, tầng 1 còn có 01 phòng ngủ dành cho ông bà, đảm bảo sự yên tĩnh và an toàn .

mặt bằng nhà tân cổ điển 2 tầng mái Nhật

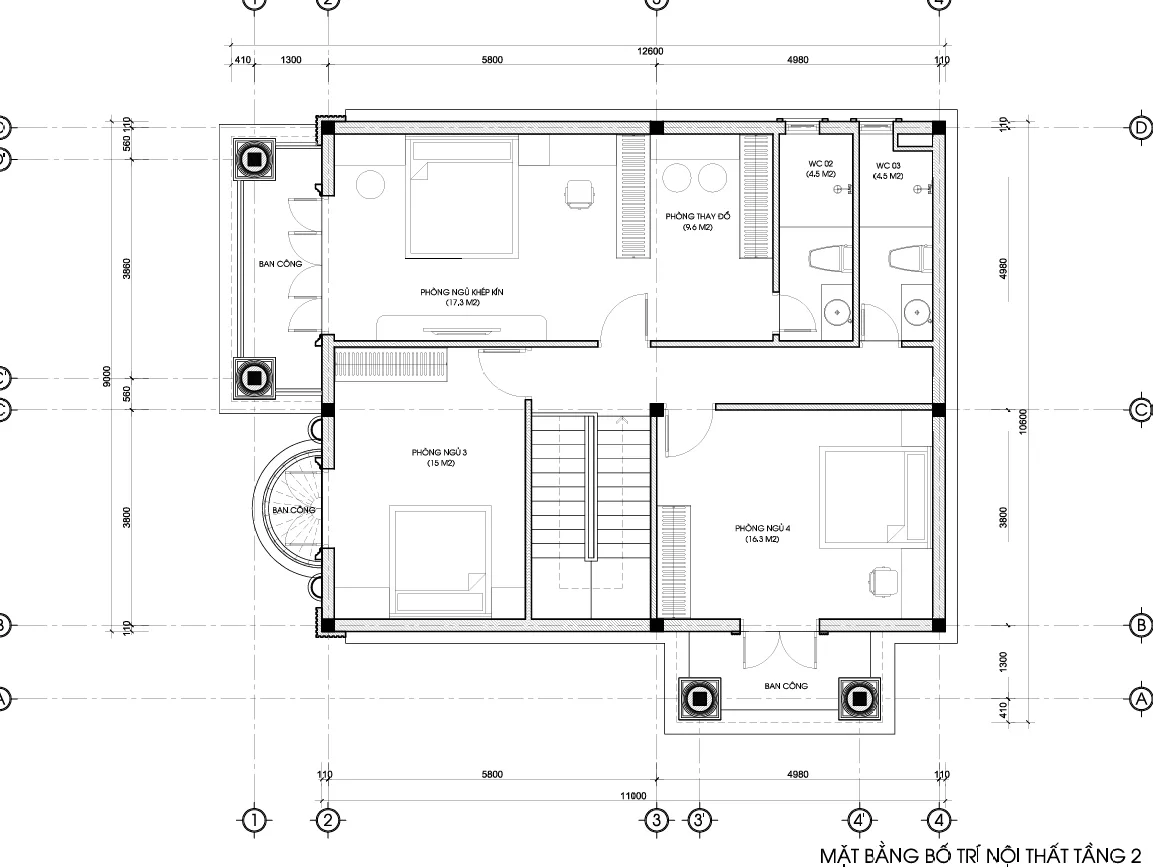
Tầng 2: Chốn nghỉ ngơi riêng tư đẳng cấp

Không gian tầng 2 được dành trọn vẹn cho sự nghỉ ngơi với 03 phòng ngủ. Trong đó, Phòng ngủ Master (17.3m2) dành cho vợ chồng anh Đô được thiết kế như một căn hộ cao cấp với phòng thay đồ riêng (9.6m2), vệ sinh khép kín và ban công vòm lớn hướng ra mặt tiền – nơi lý tưởng để thưởng trà và ngắm cảnh mỗi sáng. Hai phòng ngủ còn lại dành cho các con đều có diện tích rộng rãi (15m2 – 16.3m2) và cửa sổ lớn đón gió trời .

Kết cấu vững chãi – Vật liệu xứng tầm

Để hiện thực hóa vẻ đẹp của bản vẽ nhà tân cổ điển 2 tầng mái Nhật, Techhome đã đưa ra những chỉ định kỹ thuật khắt khe trong hồ sơ thi công:

  • Hệ kết cấu: Sử dụng móng được gia cố chắc chắn phù hợp với địa chất Ninh Bình, khung cột bê tông cốt thép chịu lực cường độ cao.

  • Sàn nhà: 100% diện tích sàn chính được lát gạch Granite vân đá khổ lớn (800×800 hoặc 600×600), mang lại vẻ đẹp bóng bẩy và độ bền vĩnh cửu. Khu vực ban công và WC sử dụng gạch chống trơn đảm bảo an toàn tuyệt đối .

  • Hệ thống cửa: Cửa chính sử dụng gỗ tự nhiên pano kính, chạm khắc hoa văn tinh xảo. Hệ thống cửa sổ sử dụng nhôm hệ kính an toàn 6.38mm – 8.38mm, vừa cách âm, cách nhiệt, vừa lấy sáng tối đa cho nội thất .

nhà tân cổ điển 2 tầng mái Nhật

Tại sao Anh Đô chọn Techhome làm đơn vị thiết kế?

  1. Hồ sơ “biết nói”: Bộ hồ sơ thiết kế của Techhome bao gồm hàng chục bản vẽ chi tiết từ kiến trúc, kết cấu đến điện nước , chi tiết đến từng viên gạch lát, từng đường phào chỉ. Điều này giúp thợ thi công địa phương dễ dàng thực hiện chính xác 100% ý đồ thiết kế.

  2. Am hiểu địa phương: Chúng tôi hiểu rõ khí hậu và thổ nhưỡng tại Ninh Bình để đưa ra giải pháp móng và chống thấm mái Nhật hiệu quả nhất.

  3. Đồng hành 24/7: Dịch vụ giám sát và hỗ trợ kỹ thuật từ xa của Techhome giúp gia chủ an tâm tuyệt đối trong suốt quá trình xây dựng.

nhà tân cổ điển 2 tầng mái Nhật

Dự toán chi phí cho mẫu nhà tân cổ điển 2 tầng mái Nhật này là bao nhiêu?

Mức đầu tư cho một ngôi nhà tân cổ điển 2 tầng mái Nhật thường nhỉnh hơn phong cách hiện đại do yêu cầu cao về nhân công đắp vẽ phào chỉ và vật liệu hoàn thiện. Với tổng diện tích sàn sử dụng khoảng 250m2 (2 sàn), chi phí thi công trọn gói (chìa khóa trao tay) với mức vật liệu khá – tốt tại Ninh Bình dự kiến dao động từ 1.8 – 2.2 tỷ đồng.

Lưu ý: Đây chỉ là mức chi phí ước tính. Để nhận được báo giá chính xác và chi tiết nhất cho công trình của bạn, vui lòng liên hệ trực tiếp với chúng tôi. Hoặc để tìm hiểu rõ hơn về tiêu chuẩn vật liệu xây dựng và các yếu tố ảnh hưởng đến chi phí, bạn có thể tham khảo thêm tại các bài viết chuyên sâu về vật liệu xây dựng cao cấp trên Wikipedia.

Lời kết

Mẫu nhà tân cổ điển 2 tầng mái Nhật của gia đình anh Đô không chỉ là một công trình kiến trúc đẹp, mà là tổ ấm vững chãi, nơi lưu giữ những khoảnh khắc hạnh phúc của gia đình. Techhome tự hào là người kiến tạo nên những không gian sống đẳng cấp như vậy.

Nếu bạn đã “phải lòng” phong cách kiến trúc này, hãy để chúng tôi giúp bạn hiện thực hóa giấc mơ.

📞 Liên hệ ngay để nhận tư vấn chuyên sâu:

  • CÔNG TY CỔ PHẦN KIẾN TRÚC VÀ XÂY DỰNG TECHHOME

  • Hotline/Zalo: 0364.04.2222 – 0387.60.3333

  • Xem thêm các dự án nổi bật khác của Techhome tại https://nhadeptechhome.vn/

Bạn muốn xem thêm các mẫu nhà đẹp tại Ninh Bình? Hãy ghé thăm website của Techhome để cập nhật những xu hướng mới nhất nhé!

Để lại một bình luận

Email của bạn sẽ không được hiển thị công khai. Các trường bắt buộc được đánh dấu *

    Vui lòng nhấn nút YÊU CẦU TƯ VẤN và đợi 1 - 2 giây đến khi thấy thông báo thành công

    YÊU CẦU TƯ VẤN