Nhà Biệt Thự Mái Nhật 2 Tầng Đẹp Hiện Đại: Tuyệt Phẩm 4 Phòng Ngủ Tại Hải Phòng

Chiêm ngưỡng mẫu nhà biệt thự mái nhật 2 tầng mặt tiền 8.6m sang trọng của gia đình chú Chung tại Hải Phòng. Kiến trúc hiện đại, công năng 4 phòng ngủ tiện nghi do Techhome thiết kế.

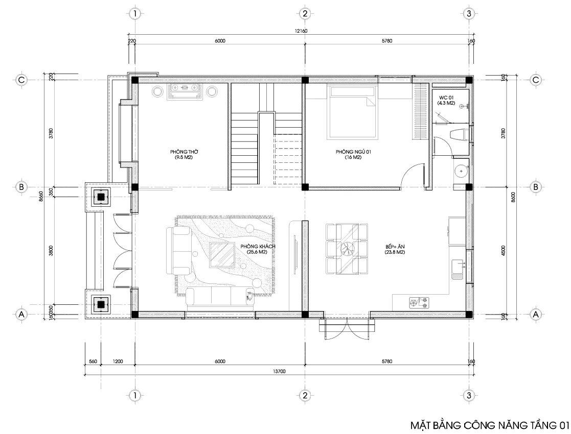
1. Phân tích mặt bằng công năng tối ưu cho gia đình đa thế hệ

Với kích thước xây dựng khoảng 8.6m x 12.1m, Techhome đã giải bài toán công năng một cách xuất sắc, đảm bảo sự riêng tư nhưng vẫn gắn kết cho các thành viên.

Tầng 1: Không gian kết nối và Tâm linh

Điểm đặc biệt trong thiết kế nhà biệt thự mái nhật 2 tầng này là sự bố trí Phòng thờ ngay tại tầng 1, thuận tiện cho việc hương khói của người lớn tuổi.

  • Phòng khách (25.6 m2): Rộng rãi, nằm ngay sảnh chính, là bộ mặt của ngôi nhà.

  • Phòng thờ (9.5 m2): Đặt trang trọng bên cạnh phòng khách, hướng ra mặt tiền hợp phong thủy.

  • Bếp + Ăn (23.8 m2): Không gian mở liên thông, có cửa phụ bên hông và lối ra sân ướt phía sau, giúp thông khí tốt và thuận tiện đi lại.

  • Phòng ngủ 01 (16 m2): Dành cho ông bà hoặc người lớn tuổi để hạn chế leo cầu thang.

  • Vệ sinh chung (WC 01): Bố trí kín đáo ở góc nhà, tối ưu diện tích.

mặt bằng nhà biệt thự mái nhật 2 tầng

Tầng 2: Không gian nghỉ ngơi riêng tư

  • Sinh hoạt chung (9.5 m2): Nơi cả gia đình quây quần xem tivi, trò chuyện trước khi đi ngủ.

  • 03 Phòng ngủ tiện nghi:

    • Phòng ngủ 02: 16 m2.

    • Phòng ngủ 03: 18 m2.

    • Phòng ngủ 04: 18.3 m2. Diện tích các phòng rất đồng đều và rộng rãi.

  • Vệ sinh chung (WC 02): Đồng trục với WC tầng 1, thuận tiện cho kỹ thuật đường ống.

mặt bằng nhà biệt thự mái nhật 2 tầng

2. Xu hướng thiết kế nhà biệt thự mái Nhật 2 tầng lên ngôi

Trong những năm gần đây, kiến trúc mái Nhật (hay còn gọi là mái lùn) đang trở thành xu hướng dẫn đầu tại Việt Nam nhờ vẻ đẹp thanh thoát, cân đối và khả năng thích nghi tuyệt vời với khí hậu nhiệt đới. Không quá cầu kỳ như phong cách cổ điển, mẫu nhà biệt thự mái nhật 2 tầng mang lại cảm giác vững chãi, bình yên nhưng vẫn toát lên sự sang trọng cần có.

Dự án tâm huyết mới nhất được Techhome hoàn thiện hồ sơ thiết kế cho gia đình Chú Chung tại Hải Phòng là minh chứng rõ nét cho vẻ đẹp này. Trên khuôn đất mặt tiền rộng gần 9m, các kiến trúc sư đã kiến tạo nên một không gian sống lý tưởng, kết hợp hài hòa giữa thẩm mỹ ngoại thất và sự tiện dụng trong công năng.

nhà biệt thự mái nhật 2 tầng

3. Phối cảnh ngoại thất ấn tượng: Vẻ đẹp của sự cân bằng

Khác với sự bay bổng của mái Thái, mẫu biệt thự của chú Chung gây ấn tượng bởi sự vuông vức, bề thế và tỷ lệ hình khối chuẩn mực.

  • Hệ mái Nhật đẳng cấp: Hệ mái được thiết kế với độ dốc vừa phải, mở rộng ra các hướng giúp thoát nước mưa dễ dàng và làm mát ngôi nhà vào mùa hè. Màu ngói xanh than (Blue Grey) được lựa chọn, tạo nên sự tương phản trang nhã trên nền sơn trắng sứ chủ đạo của tường nhà.

  • Mặt tiền hiện đại: Mặt tiền rộng 8.6m được chia khối rõ ràng. Hệ cột vuông vức nâng đỡ sảnh chính và ban công tầng 2 tạo cảm giác khỏe khoắn. Các đường kẻ chỉ lõm chạy ngang tường là chi tiết trang trí tinh tế, giúp giảm bớt sự đơn điệu của các mảng tường lớn.

  • Vật liệu cao cấp:

    • Cửa chính: Sử dụng cửa gỗ tự nhiên pano đặc, chạm khắc hoa văn đồng tâm, mang lại vẻ uy nghi cho lối vào chính.

    • Hệ thống cửa sổ: Toàn bộ cửa sổ và cửa ban công sử dụng nhôm hệ kính cường lực (như Xingfa), giúp đón tối đa ánh sáng tự nhiên và gió trời, đồng thời cách âm chống ồn hiệu quả.

    • Lan can: Ban công tầng 2 sử dụng lan can kính cường lực dày 12mm, tạo tầm nhìn thoáng đãng và vẻ đẹp hiện đại, không giới hạn không gian.

nhà biệt thự mái nhật 2 tầng

4. Đánh giá về Kết cấu và Vật liệu xây dựng

Để đảm bảo tuổi thọ công trình nhà biệt thự mái nhật 2 tầng bền vững cùng thời gian, Techhome và chủ đầu tư đã thống nhất các giải pháp kỹ thuật tiên tiến:

  • Kết cấu chịu lực: Hệ khung bê tông cốt thép (BTCT) chịu lực, móng được tính toán kỹ lưỡng dựa trên địa chất tại Hải Phòng. Sàn và mái đều đổ bê tông cốt thép, đảm bảo chống thấm và cách nhiệt tuyệt đối.

  • Hệ vì kèo mái: Sử dụng xà gồ hợp kim nhôm siêu nhẹ (100x75mm và 61x75mm), giúp giảm tải trọng lên móng nhà mà vẫn đảm bảo độ bền chắc trước gió bão.

  • Sàn nhà: Tầng 1 lát gạch Granite kích thước lớn 800×800 tạo sự sang trọng. Cầu thang và tam cấp ốp đá Granite tự nhiên, đảm bảo độ cứng và thẩm mỹ.

Để tìm hiểu rõ hơn về tiêu chuẩn vật liệu xây dựng và các yếu tố ảnh hưởng đến chi phí, bạn có thể tham khảo thêm tại các bài viết chuyên sâu về vật liệu xây dựng cao cấp trên Wikipedia.

nhà biệt thự mái nhật 2 tầng

5. Lợi ích và Giá trị khi chọn Techhome thiết kế & thi công

Dự án nhà chú Chung tại Hải Phòng là một trong hàng trăm công trình Techhome đã thực hiện. Khách hàng lựa chọn chúng tôi vì:

  1. Giải pháp thiết kế thông minh: Chúng tôi không chỉ vẽ nhà, chúng tôi kiến tạo không gian sống phù hợp với thói quen và văn hóa của từng gia đình (như việc bố trí phòng thờ tầng 1 cho chú Chung).

  2. Hồ sơ kỹ thuật chi tiết: Bộ hồ sơ bao gồm đầy đủ Kiến trúc, Kết cấu, Điện nước (ME), Dự toán… giúp gia chủ kiểm soát chính xác khối lượng vật tư, tránh thất thoát.

  3. Đồng hành sát sao: Techhome hỗ trợ giải đáp thắc mắc kỹ thuật 24/7 qua hotline trong suốt quá trình thi công, đảm bảo thợ xây làm đúng bản vẽ.

  4. Thẩm mỹ vượt trội: Các mẫu thiết kế luôn cập nhật xu hướng mới nhất, đảm bảo ngôi nhà không bị lỗi thời sau nhiều năm sử dụng.

nhà biệt thự mái nhật 2 tầng

6. Nhà biệt thự mái Nhật 2 tầng này có giá bao nhiêu?

Với tổng diện tích sàn xây dựng khoảng 210m2 – 220m2 (chưa bao gồm diện tích mái đua), chi phí đầu tư cho mẫu nhà này sẽ phụ thuộc vào mức độ hoàn thiện:

  • Chi phí xây thô + nhân công: Dao động trong khoảng giá thị trường (liên hệ để có báo giá chi tiết theo thời điểm).

  • Chi phí hoàn thiện (Trọn gói): Tùy thuộc vào chủng loại vật liệu (Gạch ốp lát, thiết bị vệ sinh, cửa nhôm kính, ngói lợp…). Mẫu nhà chú Chung sử dụng vật liệu mức Khá – Tốt.

Để nhận bảng dự toán chi tiết và chính xác nhất cho lô đất của bạn, hãy liên hệ ngay với Techhome để được bóc tách khối lượng miễn phí.

7. Kết luận

Mẫu nhà biệt thự mái nhật 2 tầng của chú Chung là sự lựa chọn hoàn hảo cho những gia đình yêu thích sự hiện đại, tinh tế và đề cao công năng sử dụng thực tế. Ngôi nhà không chỉ là nơi che mưa nắng mà còn là tổ ấm bình yên, vững chãi cho cả gia đình.

Bạn đã sẵn sàng xây dựng ngôi nhà mơ ước? Hãy liên hệ ngay với Techhome!

  • Hotline/Zalo tư vấn kỹ thuật: 0364.04.2222 – 0387.60.3333.

  • Đơn vị thực hiện: Công ty Cổ phần Kiến trúc và Xây dựng TECHHOME.

  • Xem thêm các dự án nổi bật khác của Techhome tại https://nhadeptechhome.vn/

Để lại một bình luận

Email của bạn sẽ không được hiển thị công khai. Các trường bắt buộc được đánh dấu *

    Vui lòng nhấn nút YÊU CẦU TƯ VẤN và đợi 1 - 2 giây đến khi thấy thông báo thành công

    YÊU CẦU TƯ VẤN